全回转拖轮
全回转拖轮具有个头小、马力大、操纵灵活等特点,广泛应于协助大轮受限水域靠离泊、护航作业,以及大型拖带和应急抢险作业。
动力传输
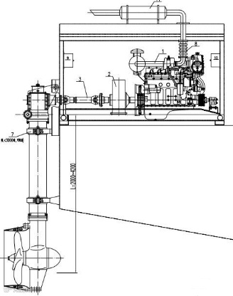
全回转拖轮采用双车双桨配置,主机与舵桨之间设气动或液压离合器,舵桨选用Z型传动方式(如下图)。主机曲轴中心与舵桨输入轴中心不在同一轴线上,通过两段万向轴与中间轴组合实现动力传输。
舵桨功能
舵桨集成了桨动力传输和舵动力传输两个重要功能(具体结构见下图)。柴油机动力经过中间轴、离合器转送到舵桨上齿箱输入横轴,再由上齿箱内伞形齿轮副、中间立轴、下齿箱内伞形齿轮副传送到输出横轴(螺旋桨轴)带动螺旋桨转转动实现桨动力传输。安装在下齿箱及立柱上的导流罩不仅使螺旋桨的推力作用得到加强,另一方面在转舵液压马达的驱动下,导流罩跟随立柱水平方向转动改变推力方向,实现转舵功能。
操纵性能
桨的速度由可以通过改变主机转速实现,在安装有半程滑差式液压离合器的船舶,还可以在主机转速不变的情况下,通过比例阀调节实现螺旋桨转速一定范围内无级变速功能。港作拖轮由于安装了360度可自由转动的全回转舵桨,转向灵活,旋回半径小,可实现原地打转,侧向横移,紧急制动(可在较短时间和距离内把船停住)等功能,具备极佳的操纵性能。
安全性能
舵机和离合器普遍采用机带泵提供液压动力和润滑,部分拖轮还设置设置有电机驱动液压泵作为备用动力,在机带泵故障时可随时替代;舵桨控制系统均采用双电源供电模式,即使主电源失电,应急电源(拖轮一般采用蓄电池组作为应急电源)会自动无缝切入,船舶的操纵几乎不受影响;两台舵桨在动力系统和控制系统上相互独立即使一台故障,仅凭单台舵桨就可实现对船位的控制,具备良好的安全性。
驾驶台操纵
驾驶室操纵台可实现主机转速控制、离合器接脱排控制和转舵控制,根据配置不同大致可分为两类,一类是采用联合操纵手柄,即在一个操纵手柄上集合了离合器、主机调速、转舵控制功能;另一类是舵机操作手柄独立实现转舵功能,离合器和主机调速由操车手柄控制实现桨速控制功能。驾驶室操纵台一般配有主操作和备用操作两套独立操作系统,主操作系统可以实现主机转速、离合器、转舵的随动控制功能,随动转舵速度大约12秒/180度(如正舵0度至倒车180度大约需12秒);备用操作系统可以实现主机转速、离合器、转舵的手动控制功能,手动转舵速度大约30秒/180度。在机旁也可以实现主机、离合器、舵机的手动控制功能。
全回转拖轮不仅具有非常高的安全性、可靠性,而且还具备极佳的操纵性能,能够满足协助大轮靠离泊、护航、大型拖带这、应急抢险等作业需求。
编辑:夏文虎
扫码关注我们
微信号
Blue_Shield_Studio
邮箱
yangshanpsc@shmsa.gov.cn

