url="https://mmbiz.qpic.cn/sz_mmbiz_gif/Bmtv94fPo8CTLbFVELSgObxwV161Ml8l4ibUbKbsKtib0znYJ1jFnia2ricMm8dWebM7d5Pb0Gze1iaKvHNB4aoGiaTQ/640?wx_fmt=gif&from=appmsg" linktype="image" tab="innerlink" target="_blank" data-linktype="1">

浅谈散货船克令吊相关参数及实务操作注意事项(一)
作者:赵庆伟(船长) 孙鑫锋(船长)
一般散杂货船上都配备起货设备,一些老旧船配备的是老式的吊杆(derrick),目前主流的则是液压克令吊或者电动的克令吊(CRANE)。本篇文章以常见的HANDYMAX和SUPRAMAX船型的液压电动克令吊为例浅谈一下。
1、技术标准
不同国家对克令吊有自己相应的标准,有的是设计标准,有的是国家港口的使用标准。比如日本的设计标准是JIS B8801, 使用标准常见的有澳大利亚,印度,加拿大,新西兰,美国等国家的港口,有的港口甚至要求船舶靠泊后重新检验发证后才能允许使用,有的标准或规则是工会制定的。
2、常见的参数
以MASADA吊为例对一些常见的参数做个解释:
|
|
|
|
|
|
|
通常会标记在吊杆上,例如30T HOOK ,24T GRAB,指的是用钩头直接吊货时SWL是30吨(货物+锁具自重),用抓斗时抓取货物时SWL是24吨(货物+抓斗自重)。GRAB模式时通常会留出HOOK模式20%的SWL余量,这个设计主要目的为了留出安全余量抵消抓斗抓货后离开CARGO BODY的瞬间吸附力,譬如镍矿等货物抓斗抓取货物后起升脱离货体的瞬间吸附力是很大的。同时在使用抓斗时处于随时负载状态,这个设计也是为了减轻持续负载下其它部件的工作压力。
|
|
|
|
通常指的是SWL,如果使用抓斗的话,起吊能力通常是GRAB模式SWL减去抓斗自重。因此根据货物积载因素和抓斗安装不同数目的侧板后的容积,是避免超载的重要一环。
|
|
|
|
指的是克令吊钩头在SWL时的起升速度,通常为每分钟多少米表示。目前大部分机型通常在不同负载下起升速度不一样。
|
|
|
|
指的是克令吊钩头在SWL时的下降速度,通常为每分钟多少米表示。大部分克令吊设计成一个稳定下降速度,不分负载。
|
|
|
|
指的是克令吊吊臂从最大的工作半径起升到最小的工作半径的起升速度,例如50S。
|
|
|
|
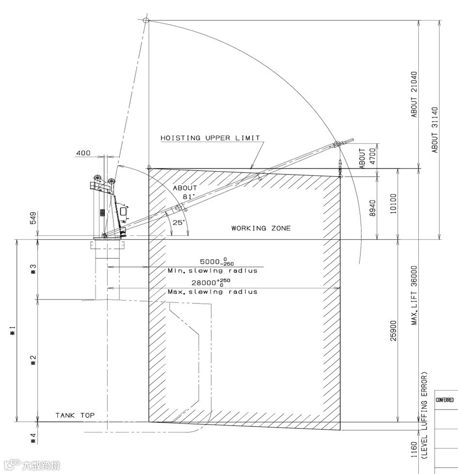
指的是克令吊在工作时钩头距离吊中心的横向距离,例如MAX 28米,MIN 5米,超过此范围克令吊的安全限位会启动。同时超过这个范围不可以进行货物操作。(和最大/最小仰角概念差不多)
|
|
|
|
指的是克令吊吊臂的回转速度,通常用 RPM表示(每分钟转多少圈,常见在0.45-0.55 r/min之间)
|
|
|
|
指的是克令吊的回转角度,常见的克令吊通常可以360度无障碍旋转。
|
|
|
|
指的是克令吊在最小工作半径时,钩头从最低位置往上升到最高位置时钢丝在滚筒上的缠绕距离。结合说明书中要求的钢丝长度,这个参数在更换钢丝绳时比较重要,也是设定克令吊钢丝限位的最基本依据之一,钢丝太长超过缠绕高度很容易发生钢丝滑脱滚筒而跳槽。钢丝太短在滚筒上的系留力不够。
|
|
|
|
指的是克令吊允许的最大纵倾TRIM和横倾HEEL的角度。对于船舶装卸过程中的浮态做出了限制,装卸过程中浮态没有控制好从而导致的事故发生,这个也是用于追责扯皮的一个点。
|
备注:关于上述速度,有的设计标准允许一个范围,例如JIS允许95%-125%
line-block;vertical-align: middle;width: 13%;align-self: center;flex: 0 0 auto;height: auto;">
3、常见的安全装置设计(以上述机型为例,目前主流机型安全装置原理大致相同)
|
|
|
|
|
|
|
钩头上限位。防止吊钩滑轮组(Hook Block)在起升过程中过度上升,与吊臂顶端的滑轮组(或结构)发生碰撞。它的主要目的是为了防止 “冲顶”事故。一旦发生冲顶,会带来一系列严重后果:吊钩滑轮组被“顶死”后,若起升马达仍在运转或受力,会导致起升钢丝绳被剧烈拉拽,超过其破断强度而断裂。重物会直接从高空坠落,后果不堪设想。巨大的冲击力会损坏吊钩滑轮组、吊臂顶端的滑轮组,甚至导致吊臂结构本身变形或开裂。严重的冲顶事故可能导致起升卷筒、齿轮箱或马达因瞬间过载而损坏。断裂下坠的钢丝绳和重物会对下方的人员和设备造成毁灭性伤害。"Hoisting upper limit" 是克令吊起升系统的 “最后一道防线”。它不直接参与吊运,但时刻守护着起升过程的终点安全,是防止因操作失误或设备故障导致灾难性“冲顶”事故的关键保命装置。
|
|
|
|
钩头下限位。防止吊钩滑轮组(Hook Block)在下降过程中 过度下放,导致吊货钢丝绳在卷筒上缠绕圈数不足(上述机需最少保持3圈钢丝缠绕在滚筒上),从而失去有效握持。它的存在主要是为了防止过度释放吊货钢丝,导致握持力不够,吊货钢丝绳从卷筒上被完全拉脱。如果缺少该装置的保护,在过度释放吊货钢丝会导致整个吊钩滑轮组和负载的重量超过钢丝握持力,钢丝从滚筒拉脱后,钩头和负载会像自由落体一样砸向甲板或货舱,造成货物严重损坏砸毁船体结构。突然失去负载的钢丝绳会以巨大的力量回弹,抽打周围的设备和结构,对克令吊本身及附近设施造成严重破坏。钩头上下限位,共同构成了克令吊起升运动的垂直安全边界,是保障起吊作业安全不可或缺的重要装置。
|
|
|
Loosen detector of hoisting wire rope
|
“起升钢丝绳松弛检测器” 或 “起升钢丝绳松绳保护装置”。他的作用是实时监测起升钢丝绳的张力,当钢丝绳出现 意外松弛 时能 自动检测并立即触发安全保护动作,以防止发生严重事故。(如起升机构的刹车意外失灵、打滑,下降速度过快;吊钩或抓斗瞬间撞击到已堆积的货物上;吊钩或抓斗在下降过程中被下方的货物或其他障碍物卡住、绊住)。当吊钩或抓斗落在货物堆上,若操作员未及时停止,继续下放钢丝绳,就会导致钢丝绳松弛。此时若再次起吊,松弛的钢丝绳会突然绷紧,产生巨大的冲击载荷(顿挫力),可能导致钢丝绳锁具受损、重物直接坠落。松弛的钢丝绳在卷筒上会排列紊乱,容易跳槽(脱离滑轮槽),一旦跳槽,钢丝绳会被压扁、断丝,甚至卡死。突然绷紧的冲击力也会损伤起升马达、齿轮箱和卷筒轴等传动部件。"Loosen detector of hoisting wire rope"时刻监控着钢丝绳的张力状态,专门应对那些因操作疏忽或机械故障导致的意外松弛情况,是防止堆叠事故、货物坠落和设备损坏的一道重要安全防线。
|
|
|
|
吊臂工作上限位,用于限制吊臂最大工作仰角/最小工作半径,上述机型为85度/5米。防止吊臂在变幅(俯仰)过程中 过度上扬,超过其设计允许的 最大安全仰角。克令吊的设计具有特定的稳性范围。当吊臂过度上扬时,整个起重机的重心会急剧后移,大幅降低稳定性,可能导致克令吊失去平衡,向后翻倒,造成灾难性事故。
|
|
|
|
吊臂工作下限位,用于限制吊臂最小工作仰角(最大工作半径),上述机型为25度/28米。防止吊臂在俯下时 过度下放,超过其设计允许的 最小安全仰角(或最大安全幅度)。吊臂过度俯下会导致变幅钢丝绳与吊臂之间的夹角变得过大,从而使钢丝绳上的实际张力远大于吊重产生的理论拉力。这可能导致钢丝绳过载断裂。同时,过大的作用力也会施加在吊臂、滑轮和塔身结构上,可能造成永久性变形或损坏。
|
|
|
Loosen detector of luffing wire rope
|
“变幅钢丝绳松弛检测器” 或 “变幅钢丝绳松绳保护装置”。 当负责控制吊臂俯仰(变幅)的钢丝绳出现 意外松弛 时,该装置能 自动检测到并触发安全保护动作,以防止发生严重事故(如变幅卷筒的离合器意外脱开、刹车失灵、在错误的方向进行变幅操作等)。它不参与正常的变幅工作,但时刻监控着钢丝绳的张力状态。一旦发现异常松弛,它就立即“叫停”危险,是确保克令吊安全运行至关重要的一个保护装置。
|
|
|
|
“吊臂停放限位器” 或 “变幅休息限位器”。他的功能主要用于当克令吊结束作业、不使用时,自动将吊臂引导并锁定在一个预设的、最安全的停放角度。例如防止因以下情况导致的事故(船舶在航行中会横摇和纵摇。如果吊臂没有固定在一个优化的位置,巨大的惯性力会使吊臂像钟摆一样晃动,对克令吊的转盘、轴承和结构造成持续的、破坏性的应力;确保了当吊臂下放时,能平稳的落在吊臂支架上,避免因力度不对而砸在支架上。它是连接工作状态与停放状态的关键安全环节。
|
|
|
Main electric motor overload preventing device
|
电机过载防止装置。实时监测驱动克令吊(起升、变幅、回转机构)的主电动机的电流,当电流超过设定的安全限值时,自动切断电源或采取其他措施,以防止电动机因过载而烧毁或损坏。该装置的监测和保护是实时进行的。通常由电流传感器和电子保护继电器共同完成。主要防止机械性过载(如吊运的货物重量远超过克令吊的安全工作负荷,急速的启动、停止或换向,产生巨大的动载荷和冲击电流,钢丝绳跳槽后被卡死,或者回转机构被障碍物挡住,产生远大于安全符合的情况);电器性过载(例如电源电压过低,会导致电机为输出同样功率而汲取更大的电流,过载电流会使电动机绕组急剧发热,超过其绝缘材料的耐热极限,导致绝缘破坏、短路,最终电机烧毁)。他的主要作用是它通过监测电流这个最直接的参数,在电机因各种原因不堪重负时,及时切断电源,是保障克令吊电气系统安全稳定运行的核心装置。
|
|
|
Push button for emergency stop
|
紧急停止按钮。它的核心功能是在任何紧急或危险情况下,当正常操作无法控制局面时,能以最快速、最直接的方式切断克令吊的动力源,使其所有动作立即停止,以规避事故、保护人员和设备安全。紧急停止按钮是克令吊所有安全装置中优先级最高、动作最果断的一个。它不参与任何正常作业,其唯一的存在价值就是在千钧一发之际,提供一个简单、粗暴、有效的手段来立即终止危险,是保护生命和设备安全的最后一把“保护伞”。每一位船员和操作员都必须清楚其位置和使用方法。
|
|
|
Handle off-notch interlock
|
操纵杆零位联锁装置。它的作用是确保克令吊的主电源或启动电路只有在所有操纵杆都处于空档(零位) 时才能被接通。防止克令吊在启动时,因操纵杆不在零位而突然动作,造成意外。它是一个被动的、预防性的安全装置,通过一个简单而有效的逻辑——“不归零,不通电”——来确保设备在启动瞬间处于安全可控的状态,从而防止因操作疏忽导致的意外启动和突然动作,是保障克令吊安全操作的第一道坚实防线。
|
|
|
Controller is adopt the self return method
|
操纵杆采用自动回中设计。当操作员松开克令吊的操纵杆时,操纵杆会在内部弹簧的作用下,自动返回到中间的“空档”或“零位”,从而停止相应的动作。当操作员想要进行某个动作时,他必须主动地握住并推动或拉动操纵杆。只要手不松开,操纵杆就保持在那个工作位置,克令吊就持续执行该动作。一旦操作员松开操纵杆,在内部复位弹簧的作用下,操纵杆会立刻自动弹回中心零位。它的设计主要是为了应付一旦操作员因任何原因失去主动控制(无人控制操纵手柄时),设备便会自动回归安全状态。
|
|
|
Collision preventing limit between jib tip and falling block
|
吊臂顶端与吊钩滑轮组防碰撞限位器。主要作用是在钩头上升过程中,自动防止吊钩滑轮组与吊臂最顶端的滑轮组或结构发生物理碰撞。它的功能与 “钩头起升上限位器” 非常相似。它们都是为了防止吊钩上升过度,但通常存在分级保护的关系:钩头起升限位为第一级保护这是主要的、常规的停止点,这是正常工作时的停止限位,它在吊钩离吊臂顶端还有一段安全距离时就会动作切断动力。吊臂顶端与吊钩滑轮组防碰撞限位器是第二级保护装置,如果主限位器(钩头上限位器)失灵,操作员没有停止,吊钩继续上升并非常接近吊臂顶端时,这个防碰撞限位器将紧急停止起升动作。
|
|
|
Pressure switch for overload protection(Hook and Grab)
|
用于过载保护的压力开关(吊钩与抓斗模式),它的功能是通过监测液压系统的压力,来间接判断吊运的负载是否超过了克令吊的安全工作负荷,防止吊臂、塔身、钢丝绳等主要承力部件因超负荷而发生永久性变形(如弯曲)或断裂,防止液压马达、齿轮箱、卷筒轴)因承受过大的扭矩而损坏,这种机械性损伤往往是不可逆的。一旦检测到过载,它会自动触发保护动作,防止设备因超负荷而损坏。上诉机型通过设定吊钩和抓斗两种不同模式设定了两种液压限制,在使用钩头和抓斗模式下一旦负载试图突破对应模式的上限,就会切断电源,是保护克令吊主体结构免受超载破坏的最关键防线之一。如果错误地在使用抓斗时选择了“Hook”模式,过载保护将失效,因为系统会用一个更高的限值来判断,极易导致设备损坏。
|
备注:以上文章仅代表作者个人观点,引用数据仅供参考。
【投稿】【提供线索】【转载】请后台留言或电邮投稿,主题格式为【投稿】+文章标题,发送至media@xindemarine.com邮箱。
电话/微信:15998511960
yangchen@xindemarine.com
服务平台,传递海运正能量!" data-id="MzA5MzI4NDI5MQ==" data-is_biz_ban="0" data-origin_num="6346" data-biz_account_status="0">