url="" imgdata="null" tab="innerlink" data-linktype="1">
line: 0px;font-family: "PingFang SC", system-ui, -apple-system, BlinkMacSystemFont, "Helvetica Neue", "Hiragino Sans GB", "Microsoft YaHei UI", "Microsoft YaHei", Arial, sans-serif;letter-spacing: 0.544px;background-color: rgb(255, 255, 255);line-height: 1.6em;text-align: center;visibility: visible;">
舱盖怎么维护保养才能水密并且在检察中不被记录缺陷
舱盖作为保护货物安全的第一道屏障,做到完全水密是维护保养的重中之重,这里总结了几点内容 供船员兄弟参考。

RUBBER PACKING 橡胶条
WATERTIGHT AND WEATHERTIGHT风雨密和水密
HOSE TEST冲水压力实验的要求以及通常做法
HATCH COVER LEAKING REASEN 舱盖漏水的原因以及处理方法和建议
EMCY OPEN AND CLOSE HATCH COVER 应急开舱
SAFETY INSTRUCTIONS FOR OPENING/CLOSING OF HATCH COVERS 安全开关舱的注意事项
一、RUBBER PACKING 橡胶条
在申请压舱橡胶条的时候要确定直角接头和转角接头的方向尺寸以及数量,粘结剂胶水的数量和使用方法要根据图纸和说明书使用,这里是本船的图纸 仅供参考

二、WATERTIGHT AND WEATHERTIGHT风雨密和水密

Weathertight : in any sea condition, water will not penetrate into the vessel
Watertight: capable of preventing the passage of water through the structure under a head of water for which the surrounding structure is designed.
水密:在设计水压力下,任何方向水均不能通过该结构。
三、HOSE TEST冲水压力实验的要求以及通常做法

试验水压Pressure: not less than 2kg/cm2
这个实验建议留有照片并且存档 RIGHTSHIP 的检查项目 有图有真相更有说服力
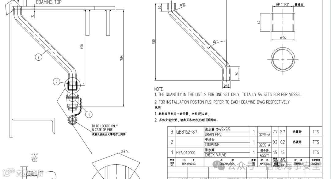
四、HATCH COVER LEAKING REASEN 要解决舱盖漏水 首先得知道每个位置的名字

compression bar damaged 压条损坏
bearing pad problem 支撑块的问题
drain chocked/broken 泄水通道堵塞或破裂
1.DRAIN PIPE AND DRAIN CHANNL PROBLEM 泄水通道的常见问题


2.DAMAGED OR INPROPERLY ADJUSTED CLEAT
压紧器损坏或者调整不到位也会导致不水密


压紧器是PSC检查的重点项目,风暴舱的压紧器和普通货舱压紧器有区别 在申请备件时候要特别注意。


3.BEARING PAD 支撑块 磨损的支撑块会导致橡胶条加速磨损永久变形
Steel pad,Wear more than 3mm consider to adjust 本轮的支撑快是钢材质 说明书指导磨损超过3MM需要垫高调整,并根据橡胶条的磨损程度选择更换

Applying of grease regularly can prevent corrosion and minimize the wear and tear 本轮钢铁材质的支撑块可在每次开关舱的时候加牛油进行保养减少锈蚀
4.COMPRESSION BAR 水密压条(压板)
Damaged compression bar can cause water leakage 水密压板的损坏会导致舱盖不水密 卸货过程中有抓斗碰到舱口围位置要及时维修

五、EMCY OPEN AND CLOSE HATCH COVER 应急开舱步骤需要打印并张贴在甲板办公室

fba-dae5ec88e424.png" src="https://cdn.10100.com/content/20251218/05ecb396-df5d-42be-afba-dae5ec88e424.png">
应急开仓测试的照片需要保留并且开舱步骤打印张贴于甲板办公室这也是一个检查项目



六、开舱的注意事项要打印出来并且张贴在甲板办公室 开舱培训记录要存档
FOR OPENING/CLOSING OF HATCH COVERS
1. Opening or closing of Hatch Covers should be carried out only with Chief Officer’s or Master’s approval 开关舱必须经过船长大副同意
2. A Deck Officer must always be present to check and supervise the opening and closing of the hatch covers.开关舱必须有驾驶员在场
3. Minimum 3 persons are required for opening-closing of hatch covers:至少三人参与开关舱
1 Person (Bosun) to drive the covers;水头负责开关舱操作
1 Person to oversee and supervise (Deck Officer);驾驶员负责掌控全局
1 Person to check all is clear at the other side of the hatch to the controls and report positively before the covers are moved (A/B). 一般AB负责观察周围情况并且实时报告
The three crew members should stand in positions where they have a good view of all of the hatch covers and the comings and can see if there are any problems, obstructions and see the cleats, wheels, hydraulics etc. 三名船员要站在合适的位置观察整个舱盖包括舱口围 液压管 滚轮 压紧器 发现任何问题及时停止
If it is necessary, and need more crew members - then it is OOW decision based on his assessment of the risks and the nature of the hatch covers, and the conditions at the time.
4. Hatch covers stoppers MUST NEVER BE REMOVED if crew members are still working on or near hatch covers / track ways. 如果还有人在附近工作 不允许移掉STOPPER
5. Hatch covers wheel stoppers MUST NEVER BE REMOVED until any sweeping is completed. The pins should be removed by the crew member(s) doing the sweeping.
清理舱口围结束之前不允许移掉STOPPER 安全插销只能由清舱口围的船员移开
6. Before opening or closing hatch covers OOW should carefully read and take into account the points considered in the risk assessment (attached with these safety precautions). 开关舱之前相应的驾驶员要做风险评估
在工作中总结一些内容供大家参考,安全是一切工作的前提和基础,愿兄弟们航安。。。。。。
【投稿】【提供线索】【转载】请后台留言或电邮投稿,主题格式为【投稿】+文章标题,发送至media@xindemarine.com邮箱。
联系主编:15998511960

服务平台,传递海运正能量!" data-from="2" data-origin_num="6346" data-isban="0" data-biz_account_status="0" data-index="2">