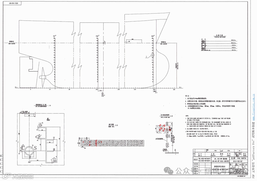
图2
图1中的 
图2中

图1和图2 中的相同点:横杠、间隙空格正常都是2cm高度
图1和图2 中的不同点:图2中多了奇数点,图1整数米的读数高度同样10cm,而图2整米读数高度为20cm,变成了双倍,比如数字3的10cm高度时左侧为3/7读数,而当高度为20公分高的时候,读数变成了6/14,图纸中
,其中200就是代表整数米时,需要读数乘以2的意思。图1中数字3左侧的上下横杆是2/8,而图2中数字3左侧的上下横杠是3/7,这点也要注意。最后图1和图2中M字母高度均为10cm高度,但是他们的布置差异(下图),需要注意一下。
图1的字母M
和图2的字母M
2024年1月初,收到航次指令——在美国VANCOUVER和LONGVIEW俩个港分别装载bentonite(膨润土)&petcoke(石油焦),到四个港卸货,分别为INDIA CHENNAI、QATAR MESAIEED、UAE KHALIFA PORT、OMAN SOHAR。当时租家邮件不断提醒验舱非常严格,笔者跟水头当时还是有点不理解得,脏货为什么验舱这么严格呢?
既然收到租家指令了,本着DUE DILIGENCE的工作态度,船方认真努力高标准备舱。后来在美国LONG BEACH加油时,租家又安排人员上船进行货舱预验,并提出建议,笔者这才从验舱人员哪里得知,原来货物价值700美金一吨,非常贵重,发货人要求很高。后来在码头做水尺的时候,明明风平浪静,但是商检(surveyor)跟笔者读出的水尺数值差异较大,当时我们双方都不能接受对方数据(货物价值大),后来笔者拿出笔,画出水线位置,询问商检水线位置是不是在这个位置,商检回复是的,得到他的回复之后,笔者瞬间知道原因了,商检理解的水尺布置图跟我们船舶实际的水尺布置图不一样(笔者实习的时候,就已经详细研究了船舶水尺标识布置图纸,愚以为理论指导实践,只有记熟图纸,才能看的准,给新手大副的建议是存在手机里,每次水尺计量,都拿出来看一分钟)。
笔者随后与商检沟通说:刚刚您的回复,说明我们已经达成一致了,现在我们可以回船去查阅我们船的水尺布置图,也许是我们的水尺布置图跟其他船舶不一样,才导致了我们之间的分歧。回到办公室打印了水尺标识布置图 ,然后拿出来跟商检沟通,小本子上画出来的水线位置到底读数为多少。商检回复,真的是其他船的水尺布置图跟我们船的布置图不一样,最终导致了我们难以达成一致。
这件事过后,笔者把自己之前搜集了各种吨位的船舶完工图,都找出来了,详细查询了一下水尺布置图,进行了大量数据详细比对,研读之后,发现果然差别还是有的。这种类似情景,在QATAR MESAIEED又遇到了,又再次打印了船舶水尺布置图,同样的方法去沟通再次取得成功。
最后总结一下,除了笔者列出来的俩种布置图,还有没有其他的不一样图纸呢?答案很明显是有的
分享此些许收集与浅显的研读成果,其目的是想提醒新证大副在刚开始时,切记把本船的水尺布置图记熟了,只有记熟了本船图纸的特点,才能根据水线读准水尺。商检跟船方比起来,他们学的是统一的标准,船方能查到具体船舶的图纸布置。同时在发生分歧的时候,记得录像、搜集所有的水尺计量相关的证据、准好图纸、同时拒签并备注REMARK。
为了方便读者快速查阅本船数据,首先找到全船图纸的文件夹(笔者从来没有读过纸质的,在我看来电子版更符合我的阅读习惯,也方便我搜集数据), 其次在资源管理器内输入 载重线及吃水标志 LOADING LINE AND DRAFT MARK,为了能查出结果,可以适当删除词语,只留关键词mark或者吃水等尝试,如果还是查询不到,还会存在于装载手册内。利用Adobe Acrobat pro DC或者其他的软件,CTRL+F 查询,输入同样的关键词查找。如果最后最后实在是找不到,那么我搜集的水尺布置图,比对本船是否符合其中之一,以当做一个参考。其下载链接如下,链接: https://pan.baidu.com/s/1didp625N-bMeOv41m-aSMw
2025年2月12日于阿尔及利亚锚地抛锚一个月之后,在闲暇之余,回首望去,已然入行悠悠十多年。因为很喜欢航海这个职业,所以一直愿意在这个行业深耕,也正是因为这种喜爱,期间主动拜读了各位前辈高手大神的分享,每有所得,都会心生欢喜。
如今想到自己也有一些收集和些许收获,也就自然而然地想尝试着分享一下。本文只是针对新手大副的一些分享,算不得高深莫测的本事,如果业内前辈高手大神,看到此文章,还请多多海涵。
联系主编:陈洋 15998511960


