绿树成荫
小桥流水
在阿联酋,一直流传着一句俚语,“如果你想知道这家人是不是真的很有钱,那就看他家院子里的树多不多,高不高。”
在迪拜,一直有一个高端社区,堪称迪拜的世外桃源-Al Barari,但是价格确实令很多人望而却步。
如今,在距离国际城20分钟的地方,也有 这么一个世外桃源社区,别墅社区总面积达1900万平方英尺,社区总共有多达5万颗树,使这里成为阿联酋最宁静的住宅社区。
该项目一共有8个社区,今年第三季度会交付第一个社区,开发商已告知,前5期均已售罄。
目前正在开售的是第6个社区,将于2025年12月交付,该项目总共有4000套别墅:
联排别墅户型有2-4居室,独栋别墅4-5-6居室。联排别墅之间有4-8米绿化带,绿化带所栽树高达3-4米 。
别墅院子属于精装过的,只需填充绿化,花园石板路也都已铺好 。
以自然为主导的生活方式:
花点时间来呼吸,欢迎你回家的清凉宁静,很适合在德拉和国际城生活工作的华人。
离城市只有几分钟的路程,却又是一个世界。
社区环境俨然中国南方山区的景色,绿化特别好。
项目地理位置:
距离Downtown--35分钟
距离国际机场--20分钟
距离国际城--20分钟
一条长长的绿色脊柱蜿蜒穿过社区,有数英亩的清新空间可供森林散步、 野餐、跑步、骑自行车或冥想。
智能住宅和智能家居技术应用于整个社区。
✦
社区配套设施:
对公众开放的社区中心,包括 :
探索中心,表演别墅,水上游乐区,Zad餐车 公园、滑板公园和儿童冒险游乐场,泳池,餐饮中心,超市,药店,理发店,和洗衣房。
健康的生活方式:
- 一条5公里长的环形自行车道贯穿森林绿脊
- 一条6.6公里长的专业慢跑和自行车道
教育设施:大型国际学校和托儿所
社区内会有一个大型购物中心,商场面积25万平方英尺左右,共两层,将于2025年9月完工。
社区内还将会有一个最大医疗中心medical center,距离社区仅5分钟。
这项由BEEAH集团、麻省总医院网络和达纳-法伯癌症研究所牵头的在阿联酋和该地区的首次合作,准备在酋长国建立一个先进的综合医疗系统网络。
以医院、实验室、研发中心等为特色,在阿拉伯世界的医疗领域树立一个新的标杆,所有这些都将由最新的国际最佳实践来管理。
建立一个具有世界级规格的医疗保健网络,带有专业中心和个人护理的综合先进医疗项目将通过独特的全球治疗和保健模式进一步加强治疗技术生态系统。
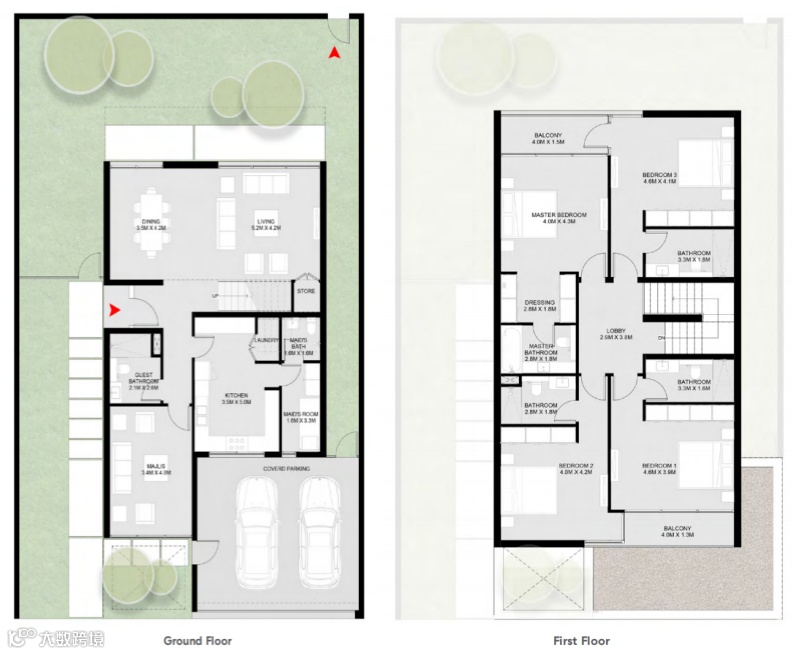
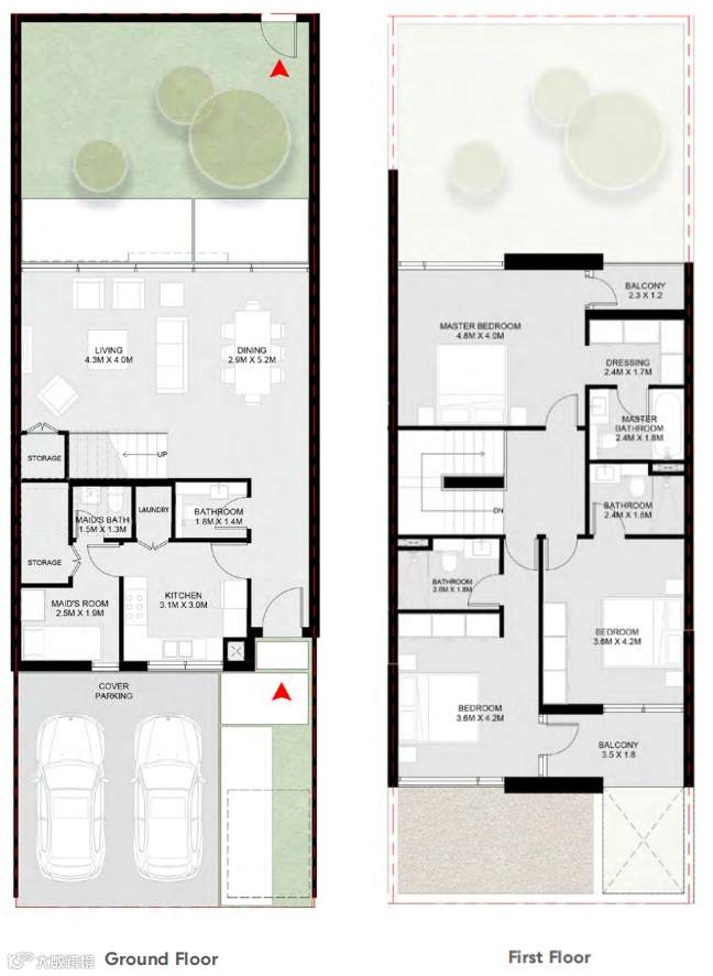
项目户型图
联排别墅2居室
G层: 1,085 sq. ft
1楼 : 880 sq. ft
总面积: 1,965 sq. ft
联排别墅3居室
G层: 1,264 sq. ft
1楼:1,084 sq. ft
总面积: 2,348 sq.ft
联排别墅4居室
G层: 1,418 sq. ft
1楼:1,243 sq. ft
总面积: 2,661sq.ft
此户型配备
会客厅
独栋别墅4居室
G层: 1,896 sq. ft
1楼:1,644 sq. ft
总面积: 3,540sq.ft
此户型配备
会客厅
独栋别墅5居室
G层: 2,839 sq. ft
1楼:2,371sq. ft
2楼:1,264 sq. ft
总面积: 6,474sq.ft
此户型配备
会客厅
独栋别墅6居室
G层: 3,804 sq. ft
1楼:3,249sq. ft
2楼:1,776 sq. ft
总面积: 8,829sq.ft
此户型配备
会客厅
价格&付款方式:首付只需5%
联排别墅:
两室:1,696,000 AED起
三室:2,315,000 AED起
四室:2,620,000 AED起
独栋别墅:
四室:3,679,000 AED起
五室:6,372,000 AED起
六室:8,315,000 AED起
在同个区域也有另一个别墅现房项目,该项目社区内无任何配套设施,且房屋面积偏小,当时售价899,000迪拉姆起,目前市场价格是120万迪拉姆起。
租金大概在60k-70k迪拉姆之间,保守估计投资回报率在5%-7%。
可以对比预测得出,此新项目未来租金12万起,升值空间至少30-40%,投资回报率6-7%以上。
完美平衡
真
正
和
谐
社区帮助你在生活中取得健康的平衡 ,生活工作和娱乐。
城市的便利和自然的美丽:记起线下生活的乐趣,找到一个安静的角落,与朋友和家人聊天 ,穿过12公里长的自行车道,在宽敞的林地中蜿蜒前行。
请联系天美地产
中国市场总监:杨女士
+971 509 298 366
✦
迪拜天美地产公司
自2019年9月迪拜天美房产成立以来,我们一直秉承实现可持续经营发展的理念,在阿联酋房地产市场提供最佳房地产产品和广泛细致的服务。
总部位于迪拜中央商务区-商务港马拉西大道的 Citadel Tower。
公司三年以来蝉联Al Dar开发商前五名,Arada开发商前十名,屡次获得伊玛尔、首霸等大型开发商的销售奖杯。
公司拥有者四十多人的销售团队,国际部以及中国部。
公司拥有自己的旅行社,承接各种投资考察团、购房团、私人订制游等等,公司专车司机接送,专业地接团队服务。
我们致力于提供真正务实、高效的一站式服务平台,以鲜明的特色满足阿联酋房地产市场的要求。
提供无与伦比的优质服务水平的目标是实现客户与投资管理服务之间始终如一的关系。
我们将永远与您携手迈向成功!

