恭贺STAMN公司
新办公室装修开工大吉
STAMN
2024.08.19
Congratulations on the successful start of the renovation of STAMN's new office!
2024年8月19日,STAMN公司迎来了一个激动人心的时刻——新办公室装修工程正式开工!这是公司发展历程中的又一个重要里程碑。标志着我们公司不断发展壮大,全体员工并进前行,共创美好的未来。
开工仪式现场
当开工仪式现场STAMN公司的CEO敲响金锤那一刻,不仅是我们在业务上的进一步拓展,也是我们未来的进一步拓展发展奠定了坚实的基础。
公司自拿地以来,均在高效推进每一个工作事项,旨在传递公司实力、工作效率,亦是员工充分享受企业发展成果的先进理念。
全面升级,迈向新征程。随着公司的不断壮大,我们的需求也在不断升级。
开工仪式现场 /Groundbreaking ceremony site
开工仪式现场 /Groundbreaking ceremony site
开工仪式现场 /Groundbreaking ceremony site
展望未来,携手共进。
这次新办公室装修工程的顺利开工,是我们海外公司发展史上的重要节点之一。我们将继续秉持专业、创新、高效的理念,不断提升服务品质和工作环境,为每一位客户和合作伙伴提供更优质的服务。
01
形象区-效果图展示
New office renderings display
02
接待区-效果图展示
New office renderings display
03
办公区-效果图展示
New office renderings display
STAMN公司新办公室
暨迪拜江西商会办事处装修开工大吉
STAMN
”
STAMN公司,来自江西-赣鄱大地的房地产开发公司,公司CEO作为迪拜江西商会副会长,为支持和服务江西商会,特在STAMN公司新办公室设立迪拜江西商会办事处,该办事处未来成为江西籍企业与阿联酋商贸衔接的重要平台之一,积极促进中阿经贸往来的深度合作。通过这样的平台,为更多江西企业的国际化之路提供宝贵的资源和机会,助力更多江西企业登上国际舞台上绽放光彩。
在此,我们热烈祝贺STAMN公司新办公室暨迪拜江西商会办事处装修开工大吉!期待全新的办公空间早日开业,为公司和商会的发展注入新的活力与动力。相信在不久的将来,STAMN公司将继续在国际市场上大展宏图,迪拜江西商会也将在全球范围内进一步扩展影响力。
让我们共同期待,STAMN公司与迪拜江西商会在新的起点上开启更精彩的篇章!
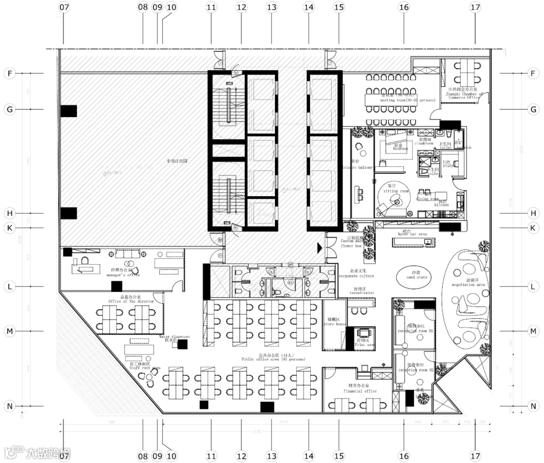
新
办公室规划设计布局图
新办公室地理位置如下
新办公司楼栋名 - Court Tower
地址 - Business Bay - Dubai▼
【说明:以上效果图仅供参考】
公司简介
迪拜-星月房地产公司▼
迪拜星月房地产,是一家总部位于中国江西南昌,且拥有着30年综合性开发经验的集团化公司“新湾控股”在海外的独立分公司。
新湾控股集团是一家综合性、多元化发展的大型成长型集团公司,始于1993年,总部位于粤港澳大湾区-深圳。集团旗下拥有多个核心业务子公司,如深圳市铜锣湾文旅集团有限公司、九江铜锣湾投资有限公司、深圳市世方商业管理有限公司、富航商业管理有限公司等。
集团始终秉持“为城市点亮繁华、为生活缔造美好”的企业使命,持续践行”以心致新 人生更美”的品牌理念,贯彻“塑造城市新地标,激活文旅新生活”的发展目标,协同商业开发运营、文旅地标打造、综合地产开发、资产管理四大核心板块逐步向综合性文商旅集团化革新迈步,建设持续向上的城市价值和美好生活。
集团发展至今,累计投资开发面积超400万平米,自持物业近120万平米,对外累计投资金额超300亿元。
代表案例:
▲庐山°铜锣湾广场
▲深圳°融悦世方里
▲莲花°铜锣湾广场
▲樟树°三皇里
......
星月房地产- 新湾集团海外公司,未来业务发展模式,以四大模块“驱动”,分别为地产开发运营、商业投资运营、房产销售租赁、移民留学服务,四大板块相互协助、相互融合发展;公司致力于打造迪拜房地产相关链条业务的四大核心板块,建立坚实的专业基础,为客户提供全方位的产品服务。
2024年星月房地产以“开发+营销+商业+移民留学”四大业务模式发展,首先突围为商业,借助商业运营,以轻资产模式落定迪拜,以轻资产形式向客户、同行进行背书,其次为地产开发,以重资产开发作为爆点,展示公司专业能力、资金实力,让更多的客户、同行信赖公司,再次营销、移民、留学进行引流,将公司的发展推向新的高度。
新项目
迪拜-STAMN ONE【暂定名】▼
STAMN ONE【暂定名】由STAMN公司开发建设,一栋全新舒适级住宅楼,项目位于Dubai-Jumeirah Garden City。
项目规划设计77套,户数少,私密性高;户型有studio441-518Sqf、1BR828-1439Sqf。项目为住户打造专属主题景观、健身设施、泳池等齐全的生活设施。Jumeirah Garden City是迪拜市中心的核心,通便利、生活设施齐全,10分钟交通圈可到达市中心、海滩、老城区中心、金融中心和地铁站入口,STAMN ONE已成为市中心之上的明珠项目。居住在这里的住户可以充分享受迪拜这座充满活力的国际大都市的繁华。
▲项目效果图
联系我们,共同开创美好明天
办公地址:Office 402,Iris Bay Tower,Business Bay,Dubai,UAE
公司邮箱:starandmoonrealestate @gmail.com
公司电话:+971 048805580 0504003556
欢迎关注|星月房地产微信公众号


