
达马克山庄
DAMAC PROPERTIES
优质房源推荐
四房联排别墅
建筑面积:
1988.85sq.ft
占地面积:
1583sq. ft
价格:
3096131迪拉姆
交房时间:2024年第四季度
付款方式
首付:
5%+4%DLD
完工前:
59%(33个月内)
完工时:
10%
完工后:
16%(12个月内)
交房时间:
2024年第四季度
项目特点
1:
成熟旗舰综合大型配套社区, 总占地面积4200万平方英尺,约390万平方米
2:
公园占地面积400万平方英尺,约37万平方米: 配套设施场地应有尽有
3:
4个主出入口
4:
24个别墅社区
5:
18洞锦标赛高尔夫球场:获奖设计者
6:
中东亚洲唯一一家川普高尔夫球俱乐部
7:
1所英制学校
8:
3个超市
9:
1家诊所
项目位置
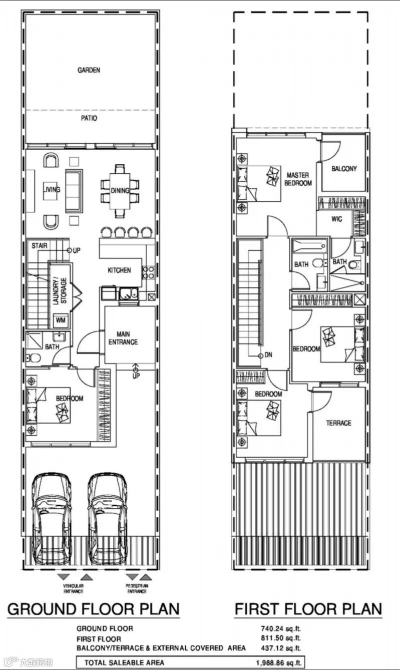
户型图
震中是20多年的老迪拜,十几年的迪拜中华网平台,优势明显,如房产的投资,托管和后续租赁都有上佳服务保障!尤其投资海外项目,最怕失联,网络平台的口碑是需要持久的良好信用建立起来的,更是长远发展的考量,所以杜绝任何失联情况发生。
手上有现房的房东也可以直接联系我们,可提供房产租赁及托管。
迪拜中华网是忠恒房产战略合作伙伴,将定期提供优质房产项目,关于迪拜房产、海外买房和别墅投资看房热线:
电话:00971509527888
微信:
yingzhenzhong5
小飞机:
@zhenzhong
更多房源信息
手慢无!今天预定迪拜LAGOONS 3期别墅分分钟省下20万,仅剩6套!
【视频】“中看迪拜”迪拜分期付款现房,适合小投资,目前仅剩3套!
【视频】“中看迪拜”迪拜商务港Studio现房,低于市场价捡漏,超值!
迪拜Creek云溪港水岸别墅仅有8套,另一居室一房二房开售!
DAMAC 达马克联手Roberto Cavalli推出前所未有的奢华别墅生活
迪拜中华网最新网址:www.dubaichina.com
▶ 迪拜中华网2022年“迪中传媒”APP更新,苹果和安卓全新上线
▶【视频】“中看迪拜”国内至迪拜集运省钱小技巧,满满干货走起!
▶【视频】“中看迪拜”迪拜考驾照“包过”套餐是走后门还是...
▶【视频】“中看迪拜”在迪拜这些公证认证无需回国办理,转起来!
迪拜中华网
阿联酋华人第一门户网站,目前会员达到 50多万,网站每天流量超 150多万,每日新增百度、谷歌搜索迪拜信息用户达 5 万以上,迪中传媒集团集迪拜中华网网站(2021年简称:迪中传媒)、迪中传媒APP、华文迪拜杂志及华文中东刊、迪中传媒视频、承办活动及策划、中阿旅行社、迪中汽车进出口公司等。此外,更是资深专业承办活动、策划、搭建大中型舞台、灯光音响,9 年来做过 400 多场活动,包含阿联酋华人商会成立庆典、大型春节联欢会、体育赛事,还承办迪拜政府机关活动,是迪拜警局最佳活动合作公司,并承办迪拜政府2018年表彰颁奖大会,2018年德云社全球巡演迪拜站首演等等。
■ 新闻投稿、应聘邮箱:600001000@qq.com
■ 投资、业务、活动微信:yingzhenzhong5
■ 公司地址:迪拜JLT,Tiffay Tower 1401

迪拜中华网
点击二维码查看大图,准确识别







