
迪拜水晶湖第七期马贝拉小镇开盘的消息发布后,我们收到了很多会员的大量咨询,达马克打造的水晶湖从第一期开售以来,凭借高性价比、地理位置优越等特点一直以来备受关注,很多会员对水晶湖第七期也是很感兴趣,通过咨询的问题发现,大家对房产面积、价格以及户型比较关注,于是我们决定再做一下水晶湖第七期的详细介绍!
第7期 马贝拉小镇 约600套连排
西班牙女性主题
◉增值率超高社区
◉完善的配套
四房起价--190万迪拉姆起
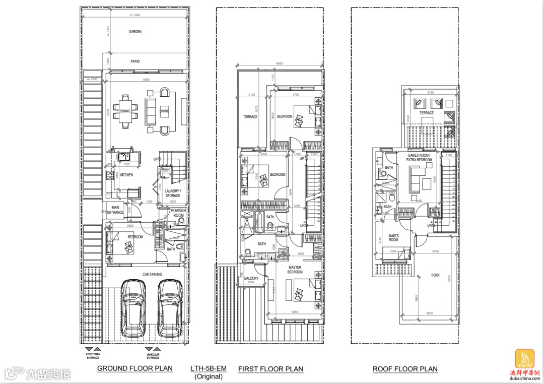
五房起价--257万迪拉姆起
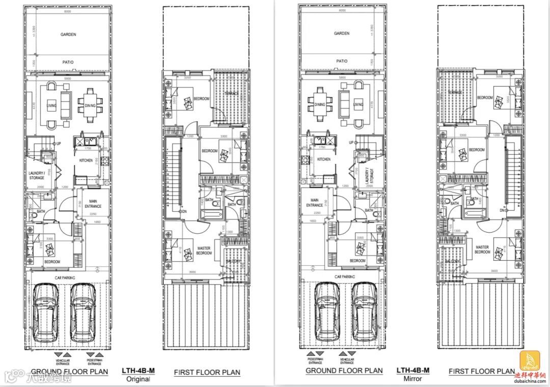
4 房连排
建筑面积: 2273 sq.ft
土地面积: 1550 sq.ft
售价:190万迪拉姆起
付款计划:根据工程进度
预计完工: 2026
户型图
规划图

位置
8个著名的地中海沿岸打卡圣地为灵感,注入水为主题的概念,贯穿8个别墅社区群,综合的配套设施,集休闲,娱乐,工作,学习,生活于一体的在自家门口就能体验到不同风情的大型度假社区。
社区地理位置优越,靠近主路,优质房源,先到先得!
手上有现房的房东也可以直接联系我们,可提供房产租赁及托管。
迪拜中华网是忠恒房产战略合作伙伴,将定期提供优质房产项目,关于迪拜房产、海外买房和别墅投资看房热线:
电话 :00971509527888
微信:yingzhenzhong5
小飞机:@zhenzhong
更多房源信息
毗邻迪拜哈利法塔,达马克新项目“CHIC”现已接受楼层预订,快来抢占先机!
捡漏房源!达马克CASABLANCA四房连排别墅出售,性价比超高!
迪拜高尔夫景观+黑宝石外墙,达马克山庄GEMS ESTATES宝石别墅时尚又不失奢华!
【中看迪拜】迪拜顶级超豪华宫殿别墅,想不到的奢华!
迪拜世外桃源奢华度假酒店出售,保底年回报8.33%
【中看迪拜】迪拜商业区大型五星级酒店出售,即将完工!
【中看迪拜】迪拜商业区大型五星级酒店出售,即将完工!
【中看迪拜】好消息!迪拜棕榈岛即将完工的酒店公寓出售
【中看迪拜】带你看迪拜The Villa独栋别墅,共5个6房户型!
【中看迪拜】迪拜DAMAC房产lagoons水晶湖第五期发布会火爆...
好房推荐!迪拜DAMAC PROPERTIES ‖ 达马克山庄,配套齐全,...
迪拜别墅现房出售,3房到6房各种别墅现房性价比高!
迪拜Lagoons波托菲诺小镇别墅第四期抢先开盘!
迪拜Creek云溪港水岸别墅仅有8套,另一居室一房二房开售!
太香了!迪拜现房分期付,小户型,大款请绕道!
阿吉曼土地,位置好,交通方便!
DAMAC 达马克联手Roberto Cavalli推出前所未有的奢华别墅生活
迪拜中华网网址:www.dubaichina.com
▶ 迪拜中华网2022年“迪中传媒”APP更新,苹果和安卓全新上线
▶【中看迪拜】人在国内如何授权迪拜朋友?分享迪拜视频公证流程!
▶【视频】“中看迪拜”国内至迪拜集运省钱小技巧,满满干货走起!
▶【视频】“中看迪拜”迪拜考驾照“包过”套餐是走后门还是...
▶【视频】“中看迪拜”在迪拜这些公证认证无需回国办理,转起来!
迪拜中华网
阿联酋华人第一门户网站,目前会员达到 50多万,网站每天流量超 150多万,每日新增百度、谷歌搜索迪拜信息用户达 5 万以上,迪中传媒集团集迪拜中华网网站(2021年简称:迪中传媒)、迪中传媒APP、华文迪拜杂志及华文中东刊、迪中传媒视频、承办活动及策划、中阿旅行社、迪中汽车进出口公司等。此外,更是资深专业承办活动、策划、搭建大中型舞台、灯光音响,9 年来做过 400 多场活动,包含阿联酋华人商会成立庆典、大型春节联欢会、体育赛事,还承办迪拜政府机关活动,是迪拜警局最佳活动合作公司,并承办迪拜政府2018年表彰颁奖大会,2018年德云社全球巡演迪拜站首演等等。
■ 新闻投稿、应聘邮箱:600001000@qq.com
■ 投资、业务、活动微信:yingzhenzhong5
■ 公司地址:迪拜JLT,Tiffay Tower 1401
迪拜中华网
点击二维码查看大图,准确识别








