
钢筋堆放
工艺说明:
钢筋的堆放场地应采用C15素混凝土或碎石硬化,并有排水坡度。应按级别、品种、直径、厂家分垛码放,并挂标识牌,注明产地、规格、品种、数量、复试报告单号、质量检验状态(待检、合格、不合格)。为防止钢筋锈蚀,应设置垄墙或方木,架空高度不应低于100mm。
钢筋弯曲
工艺说明:
HPB235级钢筋末端应作180°弯钩,其弯弧内直径不应小于钢筋直径的2.5倍,弯钩的弯后平直部分长度不应小于钢筋直径的3倍;当设计要求钢筋末端需作135 °弯钩时, HPB335、级HPB400级钢筋的弯弧内直径不应小于钢筋直径的4倍,弯钩的弯后平直部分长度应符合设计要求;钢筋作不大于90°的弯折时,弯折处的弯弧内直径不应小于钢筋直径的5倍。



剪力墙竖向钢筋顶部锚固
工艺说明:
纵向受拉钢筋在各种抗震等级下的最小锚固长度应符合设计要求,并且应符合《混凝土结构施工图平面整体表示方法制图规则和构造详图》(03G101-1)第34页中纵向受拉钢筋的最小锚固长度的要求。当设计与施工图集要求不同时,应与设计协商,办理相应变更手续确定取值大小。上图为剪力墙结构几种常见的锚固方式,均考虑一、二级抗震。钢筋具体锚固形式可按照《混凝土结构施工图平面整体表示方法制图规则和构造详图》(03G101-1)的要求施工。


剪力墙端部水平钢筋锚固
工艺说明:
剪力墙端部水平钢筋应伸至对边且有15d直拐,施工中注意控制水平钢筋应伸至对边竖筋内侧,转角墙外侧水平筋应连续通过转弯。


转角墙端部水平钢筋锚固
工艺说明:
剪力墙端部水平钢筋应伸至对边且有15d直拐,施工中注意控制水平钢筋应伸至对边竖筋内侧,转角墙外侧水平筋应连续通过转弯。


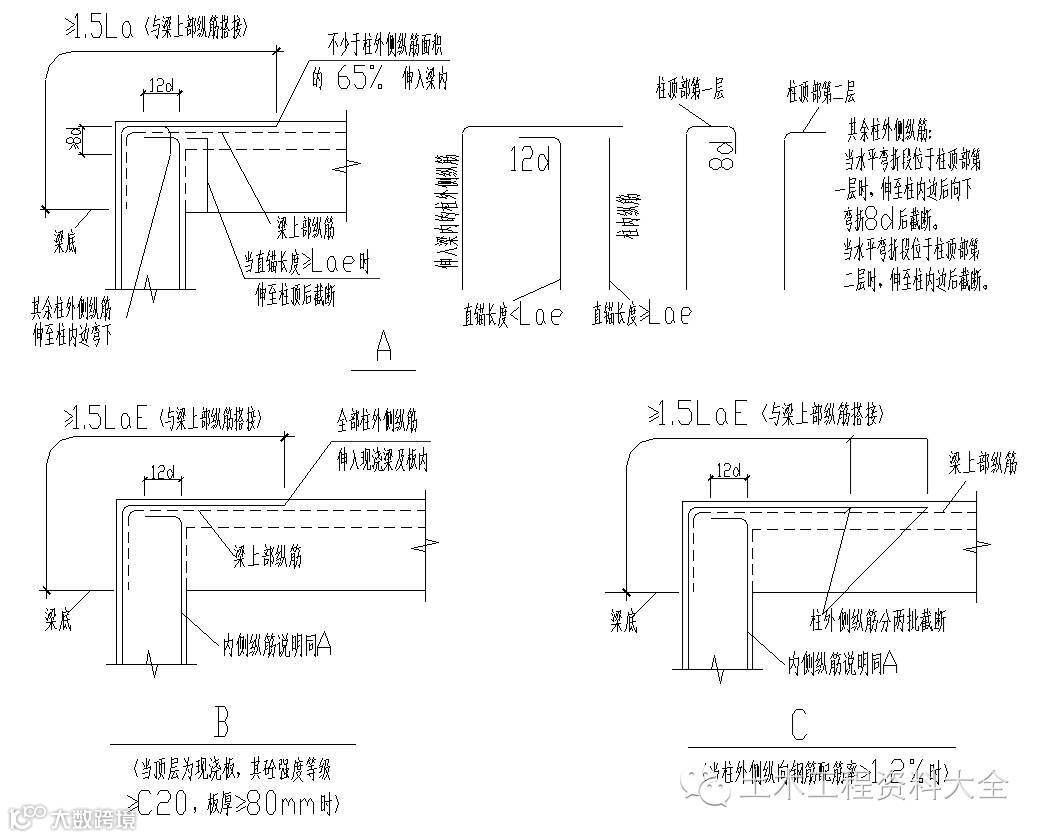
框架柱钢筋安装构造要求
工艺说明:
基础反梁柱子插筋要在梁内至少设两道箍筋,以对插筋起到定位作用。


框架柱角(边)柱主筋收头
转角墙端部水平钢筋锚固
工艺说明:
1.括号内尺寸用于非抗震。
2.柱纵筋进入节点位置从梁腋底部计算,梁腋下部斜纵筋,箍筋及梁下部纵筋在节点处的锚固构造与本图节点构造相同;
3.梁腋下部斜纵筋根数不大于伸入支座的梁下部纵筋根数n 的n-1(且不少于2根),并对称插空放置,具体设置应以设计要求为准。

洞口钢筋安装构造
工艺说明:
洞口尺寸≥200mm时,洞口设附加筋,构造加筋、预埋件、电器线管、线盒、预应力筋及其配件等,位置准确,绑扎牢固,需焊接固定部位,不准咬伤受力钢筋。安装电盒时,尽量不切断钢筋,电盒焊在附加的钢筋上,安装牢固,不得焊在主筋上,且附加钢筋不得焊在受力筋上,而应绑扎在主筋上。


板上洞口钢筋
工艺说明:
洞口尺寸≥300mm时,钢筋绕过洞口,洞口尺寸> 300mm时,洞口设附加筋。

穿梁管洞加强筋
工艺说明:
当在基础承台梁上开洞时洞口尺寸D≥h/5,连续开洞净距﹥4D;当在框架梁上开洞时洞口尺寸D≤h/5,且≤150mm,连续开洞净距﹥3D。
梁柱(墙)钢筋放置顺序
工艺说明:
当梁与柱或墙侧平时,梁该侧主筋置于柱或墙竖向纵筋之内。


主次梁钢筋放置顺序
工艺说明:
框架结构中,次梁上下主筋置于主梁上下主筋之上,框架连梁的上下主筋置于框架主梁的上下主筋之上。

主次梁钢筋放置顺序(基础钢筋倒盖式做法)
工艺说明:
基础钢筋,次梁上部主筋置于主梁上部主筋之下,板筋上层筋置于基础梁上部主筋之下。

底板(顶板)钢筋放置顺序
工艺说明:
两向钢筋交叉时,基础底板及楼板短跨方向上部主筋宜放置于长跨方向主筋之上,短跨方向下部主筋置于长跨方向主筋之下。
搭接范围内三点绑扎
工艺说明:
每根钢筋在搭接长度内必须采用三点绑扎。用双丝绑扎搭接钢筋两端头30mm处,中间绑扎一道,且过三道竖向筋。

搭接范围内通过三根筋
工艺说明:
墙体竖向钢筋搭接范围必须保证有三道水平筋通过,墙体水平钢筋搭接范围内必须保证有三道竖向筋通过。

剪力墙水平筋交错搭接
工艺说明:
墙体水平钢筋搭接接头错开间距应≥500mm,同一构件中相邻纵向受力钢筋的绑扎搭接接头应相互错开50%。


剪力墙竖向筋接头错开
工艺说明:
剪力墙同排内相邻两根竖向筋接头应相互错开,不同排相邻两根竖向筋接头也应相互错开。搭接接头错开500mm,机械连接接头错开35d。注意搭接接头的长度除应满足1.2laE外,还应满足搭接范围内通过三根水平筋。

箍筋安装
工艺说明:
主筋必须在箍筋弯折处接触紧密。搭接部位应制作双主筋箍筋,箍筋弯钩应将两根主筋全部钩住。

梁柱(墙)钢筋放置顺序
工艺说明:
连梁箍筋应有1根在暗柱内,且距暗柱边50mm(顶层连梁在暗柱范围内箍筋应满布)。

定位箍筋框
工艺说明:
框架柱模板上口设置定位箍筋框,用于控制钢筋位移,定位箍分内控式和外控式两种,置于柱顶的定位箍可周转使用。

箍筋错开套筒位置
工艺说明:
绑扎柱、墙箍筋或水平钢筋时,应错开直螺纹套筒位置,如果错不开,对应将箍筋或水平钢筋直径变小一个规格(局部加密,但总断面不能减小)进行代换,以保证此处保护层厚度。


板筋成品保护
工艺说明:
顶板混凝土浇筑前,搭设操作马道,严格控制负弯距筋被踩下。




