
摘要:工作室仅有两间3.6米宽,7.2米深,3.6米高大小的空间,面积约51.8平方米。需要容纳一个独立的办公空间3.3×3.6m,18个工作学习的位置,至少12个普通书柜大小的藏书空间,以及用于会议或讨论的空间。

你见过这样的工作室么?办公还要爬上两层!
首先确定采用开放建筑的理念和方法来完成这个近乎不可能完成的任务——极限空间的设计。采用40×40的方钢管制作支撑体(Skeleton),采用指接板打制可拆合单元(台面、储物柜或书柜)(Infill),采用可适应的原则进行组合,同时保证灵活变化和弹性使用。

你见过这样的工作室么?办公还要爬上两层!
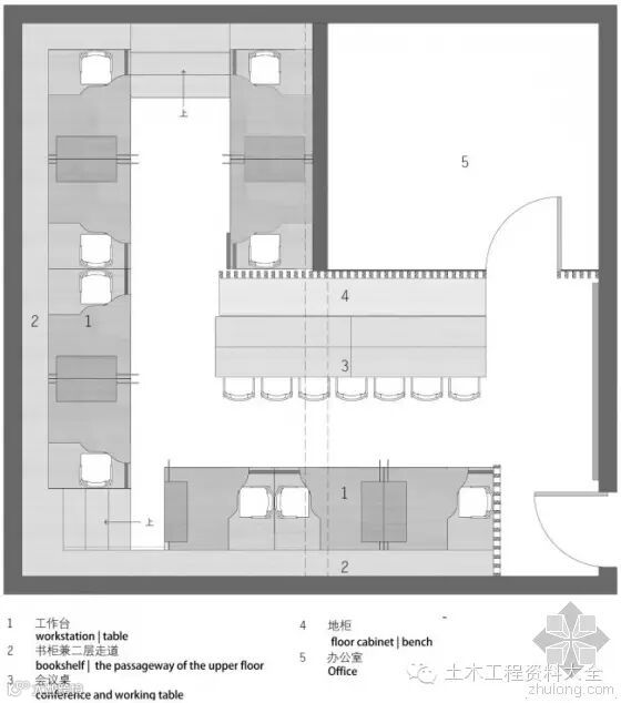
3.6米的层高不能简单划分为两层,因此竖向(z轴)空间采用错层——Z字形,保证人使用的空间净空高度大于2.2米。18个座位上下两层布置,沿墙边每层必须安排9个座位,由于进深的限制,采用Z字形构架可充分利用上下两层的空间,提高纵深(Y轴)方向的空间利用,同时满足工作台的合理间距。
开间(X轴)方向靠墙的部分降低”书架“的高度,构建二楼的步行通道,与二层的台面齐平,将二楼各个相对独立分隔的座位串联起来,便于了二楼学生/员工的交流,也减少了爬梯的数量。

你见过这样的工作室么?办公还要爬上两层!
走道尽端布置“楼梯”(盒子),其中一部楼梯可以作为书架,非常深的盒子又可以作为图纸图筒的存放空间,另一部楼梯则更似箱子,又大又深可以存放测绘仪器等物件。这两处楼梯也是休息阅读的地方,临窗的箱子楼梯利用双层窗帘作为摄影的背景布——黑布靠外,白布靠里,可以用于一般的人像和模型的拍摄。

你见过这样的工作室么?办公还要爬上两层!

你见过这样的工作室么?办公还要爬上两层!

你见过这样的工作室么?办公还要爬上两层!

你见过这样的工作室么?办公还要爬上两层!

你见过这样的工作室么?办公还要爬上两层!
会议讨论空间采用可以单边、双边折叠收放的工作台。完全折叠、单边折叠以及完全展开的尺寸分别为10cm、50cm和90cm。靠边的地柜既是存贮文本的档案柜,也是会议的座凳。

你见过这样的工作室么?办公还要爬上两层!
工作室倡导“读万卷书”,也要“行万里路”。王希孟的青绿山水画《千里江山图》中连绵逶迤的山峦,既壮阔雄浑而又细腻精到。青山叠翠之间的林木村野、茅棚楼台、舟船桥梁,,让人有寄居或游走其间之感。读行千里江山正吻合工作室的求知理念。

你见过这样的工作室么?办公还要爬上两层!

你见过这样的工作室么?办公还要爬上两层!

你见过这样的工作室么?办公还要爬上两层!

你见过这样的工作室么?办公还要爬上两层!

你见过这样的工作室么?办公还要爬上两层!

你见过这样的工作室么?办公还要爬上两层!

你见过这样的工作室么?办公还要爬上两层!

你见过这样的工作室么?办公还要爬上两层!

你见过这样的工作室么?办公还要爬上两层!

你见过这样的工作室么?办公还要爬上两层!

你见过这样的工作室么?办公还要爬上两层!


