
混凝土防水

工艺说明:
适用于地下室防水等级为1-4级的整体式防水混凝土结构。水泥强度等级不应低于32.5MPa;砂宜用中砂,不得为碱活性骨料,含泥量不得大于3%,泥块含量不得大于1%;石子粒径宜为5-40mm,含泥量不得大于1%,泥块含量不得大于0.5%。不得使用碱活性骨料;防水混凝土可掺入一定数量的粉煤灰、磨细矿渣粉、硅粉等,粉煤灰的级别不应低于Ⅱ级,掺量不宜大于20%,硅粉等其他掺和料的掺量应经过试验确定;防水混凝土可根据工程需要掺入减水剂、膨胀剂、密实剂、引气剂、防水剂、复合型外加剂、水泥渗透结晶型防水材料、钢纤维或合成纤维等,其品种及掺量应根据试验确定,技术性能应符合现行国家或行业标准一等品及以上的质量要求。
底板及地下室外墙卷材防水
工艺说明:
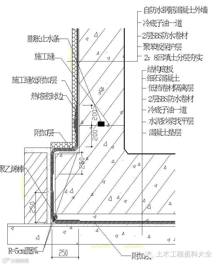
底板垫层混凝土平面部位的卷材宜采用空铺法或点粘法,其他与混凝土结构相接触的部位应采用满粘法;卷材接缝必须粘贴严密,接缝口宽度不应小于10mm;在立面与平面的转角处,卷材的接缝应留在平面上,距立面不应小于600mm;阴阳角处找平层应做成圆弧或45°(135 ° )角,并应增加1层相同的卷材,宽度不宜小于500mm;防水基层必须平整、牢固,铺贴卷材前应使基层表面干燥,基层含水率小于9%,新作业面施工前先用简易法测基层含水率,即用1㎡的卷材覆盖4h后察看凝结水情况,若无凝结水即可进行卷材的铺贴。
地下室外墙水泥基渗透结晶型涂料防水
工艺说明:
施工前15min左右将施工面提前用干净水浇透;刮涂时应用力按刀,使刮刀与被涂面的倾斜角为50°~60°,按刀要用力均匀。涂层一般刮涂一至两遍,总厚度达到0.8mm。刮涂后的防水涂层,必须在初凝前马上用油漆刷醮水涂刷均匀;防水涂层施工完毕,须采用干净的雾状水喷洒养护。


底板及地下室外墙聚氨酯涂膜防水
工艺说明:
施工缝、墙面的管根、阴阳角、变形缝等细部薄弱环节,应先做一层加层。将已搅拌好的聚氨酯涂膜防水材料用塑料或橡胶刮板均匀涂刮在已涂好底胶的基层表面,刮两遍,总厚度为1.2-2.0mm。外墙防水接茬时,应将砖墙拆除两层。
底板及防水卷材错槎接缝
工艺说明:
两幅卷材的搭接长度,长边与短边均不应小于100mm。相邻两幅卷材接缝应错开1/3-1/2幅宽,上下两层卷材接缝应错开1500-1600mm,上下层卷材不得相互垂直铺贴。阴角及附加层做法同底板及地下室外墙防水。


电梯井、集水坑防水
工艺说明:
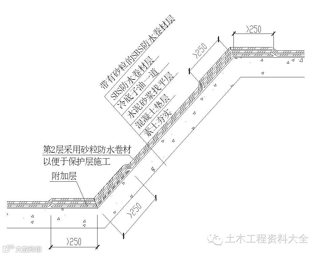
电梯井、积水坑基层阴阳角必须做成≥ 50mm的圆弧或45°(135 ° )八字角,阴阳角、立面内角、外角及施工缝处均做500mm宽的附加层。电梯井、积水坑斜面的第二层防水卷材采用带有砂粒的,以便于防水保护层的施工。
外墙后浇带防水
工艺说明:地下室外墙后浇带在做防水施工前,内侧的卷材保护层先施工。铺贴外墙卷材时,先在预制板外侧铺一层防水加强层,然后大面卷材直接铺过与之盖板。绑扎墙体钢筋时,用附加筋将止水钢板固定墙体中间。

底板后浇带防水
工艺说明:
底板后浇带处先做防水卷材附加层,再大面卷材防水卷材。在绑扎底板钢筋时,用附加钢筋将橡胶止水带和钢止水带分别固定在底板后浇带的底部和中间。
外墙防水卷材搭接
工艺说明:
铺贴外墙卷材之前,应先将接槎部位的卷材揭开,并将其表面清理干净,如卷材有局部损伤,应及时进行修补后方可继续施工,两层卷材应错槎接缝,错开距离不得小于350㎜,上层卷材应盖过下层卷材。两幅卷材的搭接长度,长边与短边均应不小于100mm。

外墙散水防水
工艺说明:
防水收口位置设置在距室外散水150mm处,末端先用3mmX25mm金属压条钢钉固定(间距200mm),用钢钉固定后再用密封胶将上口密封。散水与外墙之间预留30mm宽的缝隙,采用嵌缝油膏灌严。
施工缝止水钢板
工艺说明:钢板的凹面应朝向迎水面,转角处止水钢板应做成45°角。止水钢板居中布置。橡胶止水带及钢板橡胶止水带做法同上。

施工缝止水条
工艺说明:
在浇筑混凝土时,在施工缝部位埋植30㎜×10㎜木条,沿墙厚居中留置出宽30 ㎜、深10 ㎜通长凹槽,混凝土接缝前将止水条放入凹槽内,用水泥钉固定。遇水膨胀止水条应具有缓胀性能,7d膨胀率不应大于低膨胀率的60%。

墙体竖向施工缝止水带
工艺说明:
在支设结构模板时,把止水带的中间夹于木模上,同时将木板钉在木模上,并把止水带的翼边用钢丝固定在侧模上,然后浇筑混凝土,待混凝土达到一定强度后,拆除端模,用钢丝将止水带另一翼边固定在侧模上,再浇筑另一侧的混凝土。

柔性穿墙管迎水面防水
工艺说明:
在进行大面积防水卷材铺贴前,应先穿好带有止水环的设备管道(止水环外径比套管内径小4mm),并固定好,设备管道与套管之间的缝隙先填塞沥青麻丝,再填塞聚硫密封膏 ,将防水卷材收口嵌入设备管道与套管之间的缝隙,再用聚硫密封膏灌实,最后做一层矩形加强层防水卷材。穿墙管与内墙角凹凸部位的距离应大于250mm,管与管的间距应大于300mm。
螺栓孔眼处理
工艺说明:
拆模后将预埋的垫块取出,沿混凝土结构边缘将螺栓割断,对割断处进行涂刷防锈漆处理后,嵌入防水油膏(嵌入2/3),最后用聚合物砂浆将螺栓眼抹平。
卷材防水层封边(1)
工艺说明:
防水收口位置设置在距室外散水下150mm处,浇筑墙体混凝土时应预留凹槽,防水末端先用3㎜×25㎜,金属压条钢钉固定(间距500㎜再用密封膏封闭。
卷材防水层封边(2)
工艺说明:
防水收口位置设置在距室外散水下150mm处,浇筑墙体混凝土时应预留凹槽,防水卷材施工时,将防水卷材端部压在凹槽中,待室外散水施工完再用密封膏将凹槽及散水与外墙缝隙灌严。

卷材防水层甩槎
工艺说明:
从底板折向里面的卷材与永久保护墙的接触部位,采用空铺法施工。2层卷材接槎部位先甩出搭接长度300mm、450mm,顶端临时用石灰砂浆砌四皮砖固定。待结构墙体做外防外贴卷材防水层时,分层错槎接缝。

顶板变形缝防水
工艺说明:
结构底板变形缝处所用的中埋式橡胶止水带用钢筋卡具将其固定在相应位置,变形缝内贴聚苯板。
卷材防水层平面阴阳角
工艺说明:
平面阴阳角附加层卷材按上图所示形状的下料和裁剪。附加层卷材铺贴时,不要拉紧,要自然松铺,无皱折即可。

卷材防水层三面阴角
工艺说明:
三面阴角附加层卷材按上图所示形状的下料和裁剪。附加层卷材铺贴时,不要拉紧,要自然松铺,无皱折即可。


桩头防水
工艺说明:
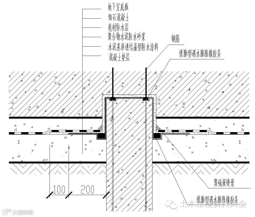
在桩头、桩侧及桩侧外围200mm范围内垫层的表面涂刷水泥基渗透结晶型防水涂料,在桩头根部及桩头钢筋根部凹槽内埋设遇水膨胀橡胶条,在桩顶、桩侧及桩侧外围300mm范围内垫层上表面5mm厚聚合水泥防水砂浆。待基层达到卷材施工条件时进行大面积防水卷材施工,卷材施工完毕后在桩侧与卷材接缝处嵌聚硫嵌缝膏。


卷材防水铺贴顺序
工艺说明:
先铺贴阴阳角等部位的加强层,在将地坑、后浇带等处的防水卷材铺贴完毕厚再铺大面。先铺平面,后铺立面,交叉处应交叉搭接。

窗井防水
工艺说明:
采光井内先用2:8灰土回填夯实,再浇筑细石混凝土层;集水坑用灰砂砖砌筑;集水坑及细石混凝土层表面均抹掺有防水粉的水泥砂浆,向集水坑找坡。

外墙聚苯板保护
工艺说明:
肥槽(地下室外墙或基础墙以外的未回填的槽叫做肥槽)回填前,先用建筑胶将聚苯板点粘贴在防水层(随着回填高度进行),在回填土夯实时,不得破坏聚苯板保护层,根部采用人工夯实。




