
(欢迎关注“施工员”微信搜索shigy-007)

一、施工缝:因施工组织需要而在各施工单元分区间留设的缝。
施工缝并不是一种真实存在的“缝”,它只是因后浇注混凝土超过初凝时间,而与先浇注的混凝土之间存在一个结合面,该结合面就称之为施工缝。

二、施工缝留设方法?
施工缝的位置应设置在结构受剪力较小和便于施工的部位,且应符合下列规定:柱应留水平缝, 梁、板、墙应留垂直缝。
( 1) 施工缝应留置在基础的顶面、梁或吊车梁牛腿的下面、吊车梁的上面、无梁楼板柱帽的下面。
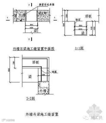
( 2) 和楼板连成整体的大断面梁,施工缝应留置在板底面以下20mm~30mm处。当板下有梁托时,留置在梁托下部。
( 3) 对于长宽比大于二比一的单向板,施工缝应留置在平行于板的短边的任何位置,同时施工缝应垂直留置,不能做成斜槎。
( 4) 有主次梁的楼板,宜顺着次梁方向浇筑,施工缝应留置在次梁跨度中间1/3
的范围内。
( 5) 墙上的施工缝应留置在门洞口过梁跨中1/3 范围内,也可留在纵横墙的交接处。
( 6) 楼梯上的施工缝应留在踏步板的1/3 处。楼梯的混凝土宜连续浇注。若为多层楼梯,且上一层为现浇楼板而又未浇注时,可留置施工缝;应留置在楼梯段中间的1/3部位,但要注意接缝面应斜向垂直于楼梯轴线方向。(施工中存在争执原因是旧规范规定了楼梯施工缝必须留置在中间1/3区段,传统施工留置在向上、下3步处,留置在梯段中间时,理论上是剪力较小,但施工时施工缝质量不好控制,二次支模时容易产生已浇筑部位形成短时“悬挑”,反而不利于构件的质
量控制。)
( 7) 水池池壁的施工缝宜留在高出底板表面200mm~500 mm的竖壁上。
( 8) 双向受力楼板、大体积混凝土、拱、壳、仓、设备基础、多层刚架及其他复杂结构,施工缝位置应按设计要求留设。

三、浅谈施工缝能否留置
1、施工规范中规定的“柱应留水平缝、梁板墙应留垂直缝”比较片面,没有对混凝土构件作出统一规定,例如,混凝土楼梯如果说留水平缝或垂直缝都是不合适的。应规定为:使施工缝接缝面与结构的纵向轴线垂直。
2、对于大体积混凝土,由于浇注数量大,整体性要求高,一般不应留施工
缝。
3、混凝土条行基础和独立柱基础也应一次浇注完毕,不宜留施工缝。
4、承受动力作用的设备基础,一般不应留置施工缝。如设计没有规定,而施工时又必须分段浇注混凝土时,应先征得设计单位同意,并符合施工规范要求方可设置。但在同一设备机座的地脚螺栓之间,在重要机座之下和用轴连接传动的设备机座之间不得留置垂直缝。
5、基础的薄壁或悬壁部位以及被孔洞削弱部位不应留置施工缝。
6、施工规范规定:“和板连成整体的大断面梁,施工缝应留置在板底面以下20-30mm,当板下有梁托时,留在梁托下部。”大断面梁, 没有具体规定端面
尺寸,一般认为和板连成整体的梁应和板同时浇注,只有当梁的高度大于1m时,才允许将梁单独浇注并按规范规定留置施工缝。
7、对简支梁作受力分析,在荷载作用下跨中的剪力较小,施工也比较方便,施工缝应留置在跨度中间1/3的范围内。
8、浇注圈梁时,由于砖墙的十字、丁字、转角墙垛、门窗洞、预留洞的上部以及圈梁与其他混凝土构件交接处如带有雨蓬、阳台、天沟板等的圈梁属于薄弱环节或关键部位,都应连续浇注混凝土,除此之外的部位均可留置施工缝。
9、楼梯的混凝土宜连续浇注。若为多层楼梯,且上一层为现浇楼板而又未
浇注时,可留置施工缝;应留置在楼梯段中间的1/3部位,但要注意接缝面应斜向垂直于楼梯轴线方向。

10、雨蓬由于浇注量少且属于悬臂构件,应一次浇注混凝土完毕,不能留施工缝。
11、有分阶的独立柱基础各阶应连续施工、各阶之间禁止留水平施工缝。
a。在独立基础(假设分3阶,从底往上分别是1、2、3阶,其厚度分别是h1、h2、h3)设计计算时,依据有关计算理论确定每阶的计算高度时是这样考虑的:第3阶厚度=h3、第2阶厚度=h3+h2、第1阶厚度=h1+h2+h3。
b。设计受力计算、冲切验算、独立基础底板的配钢筋计算都是按这个方法确定
的厚度(高度)去设计。如果施工时,每阶之间留水平施工缝,他们互相之间就不是一个相对匀质的结构体、够不成一个整体,结构抵御荷载的能力就会大打折扣,甚至由于各阶互相分离,很早就被破坏退出工作,受力达不到设计要求最终形成结构安全事故。你说各阶分开施工(留施工缝)的危害有多大!
c.因此,在独立柱基础施工时三阶要连续施工,安装柱基模板时第1阶模板直接放置在砼垫层上、其他两阶(第2、3阶)采用吊模,浇筑混凝土时必须同时三阶一次性连续施工、保证混凝土初凝前浇筑并振动完毕、禁止各阶之间留水平施工缝。

四、常出现问题的现象
施工缝处混凝土骨料集中, 混凝土酥松, 新旧混凝土接茬明显, 沿缝隙处渗漏水
五、提出几点具体处理措施
1、立缝表面凿毛法
砼终凝后,挡板拆除,用斩斧或钢杆将表面凿毛,清理松动石子,此时砼强度很低,凿深20~30MM较容易,待二次浇筑砼时,提前用压力水将缝面冲洗干净,边浇边刷素水泥浆一道,以增强咬合力。
2、增加粗骨料法
梁、板体积较大造成留置缝厚大,表面的浮浆层、泌水层也相应厚,施工
缝的处理难度较大;如采取刮除表面的浮浆或二次振捣效果不佳,可采用添加粗骨料的方法,将级配干净的碎石撒入浮浆内,重新振捣防止石子集中。这样会使缝处浇筑砼在体积较大处时粗细骨料均匀,水泥浆不会流失且强度不会降低,亦能提高新旧界面的粘结力和咬合力。
3、清除浮浆法
当砼体量较小,简单的方法是铁抹子将表面的浮浆刮去一层,深度<25MM,并挖压出条纹状,可以提高水平施工缝的粘结质量,对新旧砼结合有利。

4、二次开发振捣法
掌握好时间,在砼初凝后,终凝前进行二次重振,这样会对沉下的石子和
上浮浆水重新搅拌组合一次,使之更均匀密实,缝的重新振捣实践表明是有效措施之一。
5、在施工缝处继续浇筑混凝土时, 应符合下列规定:
①已浇筑的混凝土, 其抗压强度不应小于1.2 MPa。
②在已硬化的混凝土表面上, 应清除水泥薄膜和松动石子以及软弱混凝土层, 并加以充分湿润和冲洗干净, 且不得积水。即要做到: 去掉乳皮, 微露粗砂, 表面粗糙。
③浇筑前, 水平施工缝宜先铺上10 mm~15 mm 厚的水泥砂浆一层, 其配合比与混凝土内的砂浆成分相同。
④ 混凝土应细致振捣密实, 以保证新旧混凝土的紧密结合。
⑤防水混凝土结构设计, 其钢筋的布置和墙体厚度均应考虑方便施工, 易于保证施工质量。
⑥防水混凝土应连续浇筑, 宜少留置施工缝。当需留置施工缝时,应遵守下列规定:

第一, 底板、顶板不宜留施工缝, 底拱、顶拱不宜留纵向施工缝。
第二, 墙体不应留垂直施工缝。水平施工缝不应留在剪力与弯矩最大处或底板与侧墙交接处, 应留在高出底板表面不小于300 mm 的墙体上。当墙体有孔洞时, 施工缝距孔洞边缘不应小于300 mm。拱墙结合的水平施工缝, 宜留在拱( 板) 墙接缝线以下150 mm~300 mm 处, 先拱后墙的施工缝可留在起拱线处, 但必须注意加强防水措施。缝的迎水面采取外贴防水止水带, 外涂抹防水涂料和砂浆等做法。
第三, 承受动力作用的设备基础不应留置施工缝。
⑦地下室大承台由于施工难度原因先于底板和其他承台浇筑,由于基础竖直方向存在着极大的剪应力,跟据剪应力互等定理可知,在其水平方向也存在着同样大小的剪应力。要想设置水平施工缝,就必须在施工缝上设置抗剪凹槽和抗剪筋,因在定量分析上还存在一定困难,故对此未作出明确规定。

素材来源于网络,版权归原作者所有,如有侵权请联系删除!

感谢关注“施工员”,请点赞!长按“二维码识别关注”我们哦,把技术和精彩分享给朋友

