
(四)施工电梯防护
(1)施工电梯底面吊笼入口处需搭设安全通道,做法参加上文中“(二)安全通道”。
(2)施工电梯应单独搭设,与外架完全分开,施工电梯平台脚手架应设置之字斜撑,每层平台两侧设两道防护栏杆,高1.2m,底部设置18mm厚200mm高木胶合板作为挡脚板。挡脚板和防护栏杆均涂刷相间400mm红白警示油漆。立杆内侧满挂密目网。所有水平杆控制伸出立杆外侧100mm。
(3)施工电梯平台每层应设置连墙件,并严格按照施工方案设计进行搭设。
(4)平台至吊笼之间的净距≤100mm。
(5)人货电梯卸料平台进出口设置用钢筋焊接防护门,防护门高度1.2m,中间用模板封闭。
(五)卸料平台防护
(1)卸料平台的制作安装必须编制专项施工方案,经设计计算并审核通过后,方可实施。
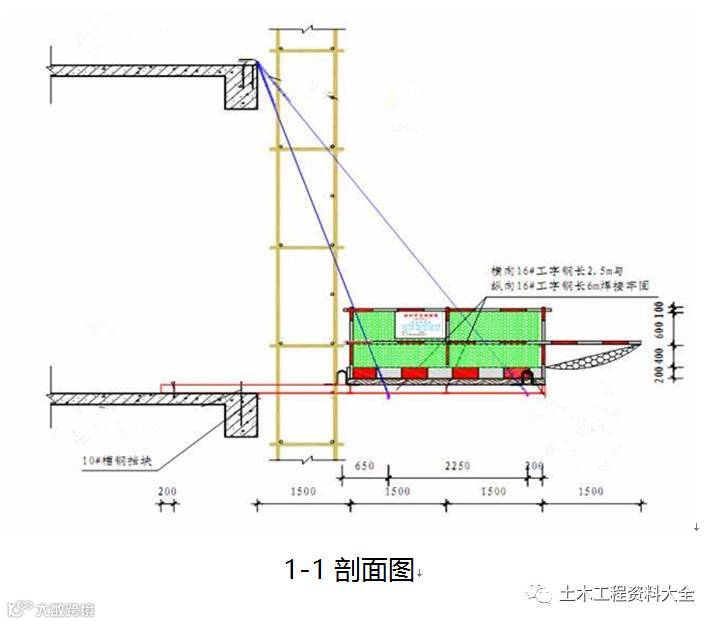
(2)卸料平台采用16#工字钢焊接主框架,纵向工字钢长6.0m,横向长2.5m,上铺50×100×2000mm@300木方,面层铺18mm厚木胶合板。
(3)卸料平台两侧分别设置前后两道Ф14 6×19+1斜拉钢丝绳,使用绳卡连接。钢丝绳卡固定时,绳卡数量不得少于4个,绳头距最后一个绳卡的距离不小于140mm,并采用细钢丝捆绑。钢丝绳受力时固定绳卡,受力后再度进行紧固,作业时经常对钢丝绳进行检查。锚固端预埋Ф20 U型环,两侧分别设置前后两道U型环,后一道U型环距离工字钢端头200mm。
(4)卸料平台两侧各设置一道1.2m高防护栏杆,主杆与工字钢可靠焊接,防护栏杆内侧满挂密目网。底部设置18mm厚200mm高木胶合板作为挡脚板。
(5)卸料平台正面设置1.0m高双开门(内开),骨架根据现场实际情况,用Ф14~16钢筋焊接,外侧设置1.5m长平网。



(六)外脚手架防护
1、综合管理规定
(1)建筑工程实行工程总承包的,外脚手架专项施工方案应由总承包单位编制。附着脚手架等专业工程实施分包的,其专项方案由总承包单位组织专业承包单位编制。
(2)架体高度超过50m(含50m)的双排落地式脚手架、高度超过20m的悬挑外架及爬架、提升架等特种外架由编制单位组织专家进行论证,论证完毕后,由方案编制人按照专家意见修改完善,经单位技术负责人审批后,报项目总监理工程师,建设单位项目负责人审核签字。
(3)悬挑架高度超过24m或6层时,要求分段悬挑。
(4)搭设高度不足50m的双排落地式脚手架,高度不足20m的悬挑脚手架,由项目技术负责人审核,报项目总监理工程师审批签字。
(5)由分包单位编制的外架施工方案必须经总包单位审核,并逐级上报审查。
(6)外架必须由具备相应资质的人员进行搭设,做好技术交底,并留下书面记录。
(7)外架搭设完毕,由项目经理组织方案编制人、外加施工员、专职安全员、作业班组长等相关人员进行验收,保存相关验收记录,验收合格后方可投入使用。
(8)外架拆除时,应制定专项施工方案,由编制技术人员对作业班组进行技术交底,并留下书面交底记录。由具备资质的施工人员进行拆除作业。
2、落地式脚手架
(1)架体形象
1)外加剪刀撑应涂刷红白相间的警示油漆(每段长度400mm)。
2)每个主节点处设一道小横杆,小横杆外伸长度在100mm至150mm之间。在双排教授架中,小横杆靠墙一侧的外伸长度不应大于杆长的0.4倍,且不应大于500mm。主节点处两个直角扣件的中心距不应大于150mm。
3)架体外应满挂安全网进行封闭,安全网强度符合规范要求,张挂整洁平顺,无破损。
4)一字型、开口型双排脚手架必须在两端设置横向斜撑,中间每隔6跨设置一道。
5)高度在24m以下的封闭性脚手架可不设横向斜撑,高度在24m以上时,除拐角处应设置横向斜撑外,中间每隔6跨设置一道。
(2)架体基础
1)位于土层上的架体基础应垫木坊。垫板应采用长度不少于2跨、厚度不小于50mm、宽度不小200mm的木垫板。
2)位于结构楼板上的架体基础垫150×150×18mm的木胶合板。
(3)架体搭设要求
1)立杆的纵距、横距、步距等应根据荷载经计算确定,并应符合设计方案及规范要求。底层步距不应大于2.0m。
2)立杆必须采用对接扣件对接,对接扣件应交错布置,相邻两个接头不应布置在同步同跨内。同步内隔一根立杆的两个相隔立杆接头在高度方向上错开的接头不应小于500mm。各接头中心距主节点的距离不应大于步距的1/3。
3)每一个主节点处必须设置一根横向水平杆,采用直角扣件固定在立杆上,且严禁拆除。主节点处两个直角扣件的中心距不应大于150mm。
4)纵向水平杆应布置在立杆内侧,并用直角扣件扣紧。
5)扫地杆:必须设置纵横向扫地杆,纵向扫地杆应采用直角扣件固定在距离底座上皮200mm处的立杆上。横向扫地杆也应采用直角扣件固定在紧靠纵向扫地杆下方的立杆上。当立杆基础不在同一水平高度上时,必须将高处的纵向扫地杆向低处延伸两跨并与立杆固定。高低差不应大于1.0m。靠边坡上方的立杆轴线到边坡的距离不应小于500mm。
6)连墙件:脚手架必须用连墙件与建筑物可靠连接,且必须采用刚性连接。连
墙件的设置按下表进行。
7)连墙件与建筑物之间可采用抱柱拉结或预埋钢管拉结等方式设置。
连墙件布置最大间距
脚手架高度(m) |
竖向间距 |
水平间距 |
每根连强墙件 覆盖面积(㎡) |
备注 |
|
双排架 |
≤50 |
3 h |
3 la |
≤40 |
三步三跨 |
>50 |
2 h |
3 la |
≤27 |
二步三跨 |
|
单排架 |
≤24 |
3 h |
3 la |
≤40 |
三步三跨 |
h—步距 la—纵距

8)剪刀撑:双向脚手架必须设剪刀撑及斜撑,单排脚手架应设剪刀撑。
9)高度在24m以下的单、双排脚手架,均必须在外侧设置立面的两端设置一道剪刀撑,并由底至顶连续设置,中间各道剪刀撑的净间距不应大于15m。
10)高度在24m以上的双排脚手架应在外侧立面整个长度和高度方向连续设置剪刀撑。开口型脚手架的两端必须设置连墙件,连墙件的垂直间距不应大于建筑物的层高,并不应大于4m。
11)剪刀撑的接长采用搭接,搭接长度不小于1.0m,并用三个旋转扣件固定。
12)每道剪刀撑不小于4跨,且不小于6.0m。斜杆与地面的青椒在45°~60°之间。
13)外架必须在作业层的下一层设置安全平网。安全平网应挂至建筑结构边。外架给隔三层且不大于10m设置一道水平封闭层,悬挑外架的第一道水平封闭层设置在悬挑梁上;爬梯的第一道水平封闭层设在底座上;落地式脚手架第一道水平封闭层设置在建筑物第一层顶板位置。
14)架体人行斜道:人行斜道每跑宽度不得小于1.0m;斜道两侧及护栏及挡脚板,人行斜道每隔300mm设置一根防滑条,木条厚度20~30mm。斜道外立面设置连续剪刀撑。
15)脚手架外临街、通道、交叉作业等位置应搭设防护棚。防护棚搭设应考虑坠落半径的要求。
16)脚手板:脚手板的设置根据现场实际情况确实,可选用钢脚手板、木脚手板、竹脚手板等。脚手板铺设应严密、牢固、平稳,两端用铅丝固定牢固。
17)未尽事宜请遵照《建筑施工扣件式钢管脚手架安全技术规范》(JGJ 130-2011)规范要求执行。
3、悬挑式脚手架
(1)根据现场实际施工要求选用主挑梁工字钢大小。
(2)结构外悬挑部分长度不宜大于1.4m,建筑物内工字钢长度不应小于外挑长度的1.5倍。锚固端预埋Ф20 U型环,两侧分别设置前后两道U型环,后一道U型环距离工字钢端头200mm。
(3)工字钢悬挑部位前端设置一道Ф14 6×19+1斜拉钢丝绳,使用绳卡连接。钢丝绳卡固定时,绳卡数量不得少于4个,绳头距最后一个绳卡的距离不小于140mm,并采用细钢丝捆绑。
(4)悬挑工字钢顶部及与建筑相邻的侧面铺设18mm厚木胶合板封闭牢固。首层进行全封闭,每隔3层或10m设置全封闭,并设置200mm高踢脚板。
(5)悬挑架高度控制在24m以内。
(6)连墙件采用刚性构件,按“两步三跨”布置在主节点位置,每根连墙件覆盖面积不大于27㎡。
(7)悬挑架遇转角处时,应在转角处增加一根悬挑工字钢。











