

1. 独立基础底部钢筋网,哪个方向的钢筋在下层?那个方向的钢筋在上层?
答:独立基础钢筋长向筋在下面,短向筋在上面。
2. 独立基础在什么情况下会出现顶部钢筋网?哪个方向的钢筋在下层?那个方向的钢筋在上层?
答:一般是双柱型独立基础或者是杯口独立基础时,有上部钢筋,受力钢筋在下,分布钢筋在上。
3、起步筋距离基础边尺寸是怎样确定的?
答:是75mm和S/2(半个间距)比较,哪个小取哪个。
4、 计算根数时候“取整”一般有几种选择方式?分别是什么?通常选择哪种方式?
答:计算根数取整时一般有“三种”注写方式,分别是:向上取证、向下取整、四舍五入,一般选择向上取整
5、 DJJ、DJP、BJJ、BJP分别表示什么意思?
答:DJJ表示阶形截面普通独立基础,DJP坡形截面普通独立基础,BJJ阶形截面杯口独立基础,BJP坡形截面杯口独立基础。
第二节
1、 什么是复合箍筋?什么是非复合箍筋?答:复合箍是两个及以上的箍筋组合为一组的,只有一个箍筋的就是非符合箍。如下图所示:
2.柱子基础根部的箍筋是用复合箍筋还是非复合箍筋?
答:柱子基础根部因只起固定纵筋的作用,一般非符合箍就可以。
3、 柱子纵筋拐头a值是怎样判断的?
答:是通过一个表来判断的。也就是插筋埋入基础的高度和锚固长度的比较来判断,见下表。
4、 柱子纵筋不能在一个截面搭接,焊接连接情况下错开长度是多少?绑扎连接情况下错开长度是多少?
答:焊接情况下错开长度是35d和500比较取大。绑扎情况下是0.3Lae(0.3的搭接长度)
5、 柱子纵筋与基础相邻层非连接区是多少?首层的非连接区是多少?焊接和绑扎连接有区别吗?
答:与基础邻层的非连接区是1/3净高,首层也是1/3净高,焊接和绑扎没有区别。
6、 如果一根柱子遇到一根屋面框架梁,梁高为1200,柱子纵筋的锚固长度是850,这时候柱子的纵筋是伸到梁顶—保护层还是满足锚固长度就可以了?
答:因为柱子是梁的支座,所以必须伸到梁顶-保护层。
7、 为什么箍筋的弯钩长度是11.9d?
答:10d+1.9d,10d是箍筋弯钩的直段长度,抗震结构是10d(非抗震为5d),1.9d是135度角弯钩的延伸尺寸。
8、 柱子纵筋绑扎情况下搭接范围内的箍筋加密间距怎样判断?
答:是100、5d、箍筋加密间距三者比较取小。
9、 箍筋根数计算时取整有几种情况发生?在实际工程中怎样应用?
答:有三种:向上取证、向下取整、四舍五入,一般选择向上取整。
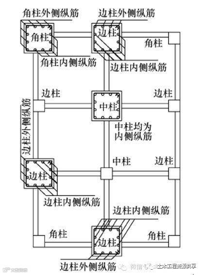
10、 怎样判断中柱、边柱、角柱?怎样判断一根柱子的纵筋是内侧钢筋还是外侧钢筋?怎样确定一根柱子的角筋是外侧还是内侧?
答:一般用柱上支撑的梁的相交形式来判断,梁与梁L型相交的柱一般是角柱,梁与梁T型相交的柱是边柱,十字相交的柱子一般是中柱。判断每个柱子钢筋属于外侧还是内侧,见下图。
如果遇到一根柱子的角筋可以归入外侧,也可以归入内侧,一般是都归入外侧(此处是我们的经验,此答案仅供参考)
第三节
1. 梁的集中标注中,KL5(3)300*500中的(3)是什么意思?¢10@100/200(4)中的(4)是什么意思?2Φ25+(2¢14);2Φ25中,前一个2Φ25是什么意思?后一个2Φ25是什么意思?中间的(2¢14)是什么意思?
答:KL5(3)300*500的(3)表示三跨,¢10@100/200(4)中的(4)表示四肢箍,
2Φ25+(2¢14);2Φ25中,前一个2Φ25表示梁的上部贯通筋为两根二级25的钢筋:后一个2Φ25表示梁的下部贯通筋为两根二级25的钢筋:中间的(2¢14)表示跨中无负筋去布置两根一级14的架立筋。
2. 原位标注中5Φ25 2(-2)/3是什么意思?
答:表示梁的下部有5根二级25的钢筋,分两排布置,其中上排为2根,下排为3根,上排2根不伸入支座。
3. 梁纵筋在梁端部什么情况下采用直锚?什么情况下采用弯锚?
答:当:支座宽度-保护层≥锚固长度LaE(La)时,采用直锚构造;
当:0.4LaE(La)≤支座宽-保护层<锚固长度LaE(La)时,采用弯锚构造
4. 梁的纵筋上部搭接在什么位置?下部通长筋如果大于钢筋的定值长度怎么办?
答:上部通长筋搭接位置应在净跨的1/3范围内,并且要满足一个搭接长度,下部通长筋如果定值长度不够,一般采用锚固方式,不搭接,长度计算同下部非通长筋。
5. 一根梁在端部遇到一个很宽的柱子时,纵筋是一直伸到柱子对边还是满足锚固长度就可以了?
答:是锚固长度和过柱子中心线+5d比较取大值。
6. 梁与柱子相交处,是柱子箍筋通过去还是梁箍筋通过去?
答:梁与柱子相交处,因是柱子是梁的支座,柱为主,梁为次,柱子的箍筋贯通,梁的箍筋到柱侧。
7. 一根梁的中间支座两边负筋根数不同时,多余一边的负筋怎样处理?
答:一根梁的中间支座两边负筋根数不同时,根数多的一侧负筋,有两种处理方式,或伸至支座对边弯折15d,或采用直锚的方式,伸入支座的长度满足一个锚固长度就可以(此锚固长度可以超过支座宽度)。
8. 我们在计算梁的钢筋长度时,是否考虑纵筋之间的间距必须满足25mm?
答:预算没有考虑。
9. 梁在什么情况下会出现架立筋?架立筋主要起什么作用?
答:当通长筋根数少于复合箍筋肢数时设置架力筋,架立筋主要起固定中间箍筋的作用。
10. 梁的构造侧面纵筋和抗扭侧面纵筋,在锚固长度上有什么区别?
答:抗扭侧面纵筋同梁的下部钢筋,在端支座也分弯锚和直锚两种情况,在中间支座时采用直锚情况;构造侧面纵筋伸入支座内的长度为15d。
11. 框架梁一级抗震和二~四级抗震箍筋加密区有什么区别?
答:一级抗震时框架梁的加密区范围是≥2hb,且≥500;二~四级抗震时框架梁的加密区范围是≥1.5hb,且≥500。
12. 吊筋是放在主梁上还是次梁上?长度怎样计算?
答:吊筋应放在主梁上,当梁高hb≤800时,吊筋斜度为45?,吊筋长度公式推导为:吊筋长度=b+50*2+(hb-2C)/sin45?*2+20d*2;当梁高hb>800时,吊筋斜度为60?,吊筋长度公式推导为:吊筋长度=b+50*2+(hb-2C)/sin60?*2+20d*2(上述公式若看不懂看参考《算量就这么简单》109页“框架梁吊筋计算”)。
13. 屋面框架梁和楼层框架梁有什么区别?
答:屋面层框架梁除了上部通长筋和支座负筋弯折长度必须伸入梁底外,其余钢筋的算法和楼层框架梁相同。
14. 非框架梁和楼层框架梁有什么区别?
答:1、锚固长度不同,框架梁锚固是LaE,非框架梁锚固是La
2、 端支座的支座负筋深入梁内的长度:框架梁是1/3净跨长,非框架梁是1/5净跨长.
3、 下部钢筋深入支座的长度:框架梁是要判断直弯锚,非框架梁是12d。
第四节
1、板的底筋伸入支座内的长度有几种情况?平法图图集规定的是哪种情况?
答:板底筋伸入支座内的长度有七种情况(见书上册p177)。图集上规定的是max(5d,hc/2),其他是经验做法或图纸有明确规定的做法。
2、 计算板的底筋根数时,要用到起步距离,起步距离一般有几种情况?在实际工程计算时怎样使用?
答:有4种:50mm、1/2间距(两种情况)、保护层。图集是距梁角筋1/2间距,50mm是各地特殊的规定(例如北京的长城杯,规定的就是50)实际计算时经常会采用50mm或1/2间距(距梁边)。
3、 板的负筋锚入端支座内的长度有几种情况发生?平法图集规定的是哪种情况?
答:书上册给大家介绍了6种情况,见书上册P179-180,平法图集是第一种情况,是锚固长度和250取大值。
4、 计算板的负筋根数时,要用到起步距离,起步距离一般有几种情况?在实际工程计算时怎样使用?
答:同板底筋的计算方法。
5、 板的温度筋一般出现在什么地方?温度筋的长度与负筋参差多少?计算温度筋根数时,也用到一个起步距离,这个起步距离是多少?
答:一般会出现在屋面板或中间层板相对比较厚时。温度筋与负筋的参差长度没有说明时就按150mm考虑。温度筋起步距离是一个间距,起步位置是负筋分布筋的最后一根位置。
6、 Ⅱ型马凳长度一般怎样确定?怎样计算Ⅱ型马凳每排根数?马凳的起步排距是多少?
答:Ⅱ型马凳L1长度是1~1.5米; L2长度用板厚度-上下保护层-上下钢筋直径,预算时为方便起见,一般只减上下保护层; L3长度一般是支撑马凳的底筋间距两边共加100。每排根数=(基础宽-2保护层)/L1取整+1(+1是因为马凳之间有参差,此处为近似值);起步排距:取1/2排距。
7、 手工怎样计算圆弧处板的底筋长度?请举例说明。
答:手工计算取平均长度计算。方法是先计算弧形板的面积,然后再折算成矩形的。见书上册P195。
8、 板的负筋如果遇到丁字形梁时,此处板的负筋长度要发生一些变化,怎样计算其长度?锚入梁头内负筋根数怎样计算?在丁字梁的宽度范围内的负筋,按边支座考虑,根数一般按(梁宽-2个起步)/间距+1考虑,如果此梁两侧负筋长度不同,各按一半考虑,根数按(梁宽/2-1个起步)/间距+1考虑(两边都+1会多算一根钢筋,这时候要按(梁宽-2个起步)/间距+1)算出总根数,用总根数去控制最后的根数。
9、 计算板的阳角散射筋时,散射筋的外部间距是多少?
答:是板负筋的间距。
第五节
1. 楼梯底筋锚入支座内的长度是多少?
答:5d和h(梯板厚)比较取大。
2. 楼梯负筋锚入支座内的长度是多少?
答:是La(一个锚固长度)
3. 楼梯负筋伸入梯板内的长度是多少?
答:Ln/4(此处Ln为梯板水平净长,计算时要这算成斜长)
4. 怎样计算楼梯的斜度系数?
答:用踏步的高的平法+梯板宽的平法再开方,再除以踏步宽度得出的系数(见书上册p244)。
5. 如果一个楼梯采用的是平法标注,怎样判断负筋的直径和根数?
答:如果一个梯板的底筋平法标注为¢12@100,并没有给出负筋的间距,按照平法图集理解,负筋的配筋率应该按底筋的1/2(配筋率是钢筋混凝土构件中纵向受力(拉或压)钢筋的面积与构件的有效面积之比),负筋间距就一般取¢12@200就满足要求。
6、如果一个楼梯底筋直接锚入底板内,这时如何计算楼梯的净跨长度?
答:如果底筋直接锚如底板内,第一个踏步成为锚固的支点,所以在计算净长的时候要减去一个踏步长度。






