16G101-3:混凝土结构施工图平面整体表示方法制图规则和构造详图(独立基础、条形基础、筏形基础、桩基础)
本图集是对11G101-3《混凝土结构施工图平面整体表示方法制图规则和构造详图(独立基础、条形基础、筏形基础及桩基承台)》的修编。本次修编按GB 18306-2015《中国地震动参数区划图》、GB 50011-2010《建筑抗震设计规范》及2016年局部修订、GB 50010-2010《混凝土结构设计规范》(2015版)等新标准,结合近年来工程实践对图集提出的反馈意见,对图集原有内容进行了系统的梳理、修订,同时考虑实际工程应用需要又新增了混凝土灌注桩等内容。
本图集适用于各类结构类型下现浇混凝土独立基础、条形基础、筏形基础(分为梁板式和平板式)及桩基础施工图设计。
图集中包括常用的现浇混凝土独立基础、条形基础、筏形基础(分为梁板式和平板式)及桩基础的平面整体表示方法制图规则和构造详图两大部分内容。
温馨提醒,不要看标红的内容!
备注
替代11G101-3
目录
| 目录 | |
| 总说明 | |
| 第一部分 平法制图规则 | |
| 1 总则 | 5 |
| 2 独立基础平法施工图制图规则 | 7 |
| 2.1 独立基础平法施工图的表示方法 | 7 |
| 2.2 独立基础编号 | |
| 2.3 独立基础的平面注写方式 | 7 |
| 独立基础平法施工图平面注写方式示例 | 18 |
| 2.4 独立基础的截面注写方式 | 19 |
| 2.5 其他 | 20 |
| 3 条形基础平法施工图制图规则 | 21 |
| 3.1 条形基础平法施工图的表示方法 | 21 |
| 3.2 条形基础编号 | 21 |
| 3.3 基础梁的平面注写方式 | 21 |
| 3.4 基础梁底部非贯通纵筋的长度规定 | 24 |
| 3.5 条形基础底板的平面注写方式 | 24 |
| 条形基础平法施工图平面注写方式示例 | 27 |
| 3.6 条形基础的截面注写方式 | 28 |
| 3.7 其他 | 29 |
| 4 梁板式筏形基础平法施工图制图规则 | 30 |
| 4.1 梁板式筏形基础平法施工图的表示方法 | 30 |
| 4.2 梁板式筏形基础构件的类型与编号 | 30 |
| 4.3 基础主梁与基础次梁的平面注写方式 | 30 |
| 4.4 基础梁底部非贯通纵筋的长度规定 | 33 |
| 4.5 梁板式筏形基础平板的平面注写方式 | 33 |
| 4.6 其他 | 35 |
| 基础主梁JL和基础次梁JCL标注图示 | 36 |
| 梁板式筏形基础平板LPB标注图示 | 37 |
| 5 平板式筏形基础平法施工图制图规则 | 38 |
| 5.1 平板式筏形基础平法施工图的表示方法 | 38 |
| 5.2 平板式筏形基础构件的类型与编号 | 38 |
| 5.3 柱下板带、跨中板带的平面注写方式 | 38 |
| 5.4 平板式筏形基础平板BPB的平面注写方式 | 39 |
| 5.5 其他 | 40 |
| 柱下板带ZXB与跨中板带KZB标注图示 | 42 |
| 平板式筏形基础平板BPB标注图示 | 43 |
| 6 桩基础平法施工图制图规则 | 44 |
| 6.1 灌注桩平法施工图的表示方法 | 44 |
| 6.2 列表注写方式 | 44 |
| 6.3 平面注写方式 | 45 |
| 6.4 桩基承台平法施工图的表示方法 | 46 |
| 6.5 桩基承台编号 | 46 |
| 6.6 独立承台的平面注写方式 | 46 |
| 6.7 承台梁的平面注写方式 | 49 |
| 6.8 桩基承台的截面注写方式 | 51 |
| 6.9 其他 | 51 |
| 7 基础相关构造制图规则 | 52 |
| 7.1 相关构造类型与表示方法 | 52 |
| 7.2 相关构造平法施工图制图规则 | 52 |
| 7.3 其他 | 56 |
| 第二部分 标准构造详图 | |
| 混凝土结构的环境类别 混凝土保护层的最小厚度 | 57 |
| 受拉钢筋基本锚团长度lab 抗震设计时受拉钢筋基本锚固长度labE 钢筋弯折的弯弧内直径D | 58 |
| 受拉钢筋锚固长度ιa 受拉钢筋抗震锚固长度laE | 59 |
| 纵向钢筋弯钩与机械锚固形式 纵向受力钢筋搭接区箍筋构造 纵向钢筋的连接 | 60 |
| 纵向受拉钢筋搭接长度ιι | 61 |
| 纵向受拉钢筋抗震搭接长度lιE | 62 |
| 箍筋及拉筋弯钩构造 基础梁箍筋复合方式 非接触纵向钢筋搭接构造 | 63 |
| 墙身竖向分布钢筋在基础中构造 | 64 |
| 边缘构件纵向钢筋在基础中构造 | 65 |
| 柱纵向钢筋在基础中构造 | 66 |
| 独立基础DJj、DJp 、BJj、BJp底板配筋构造 | 67 |
| 双柱普通独立基础底部与顶部配筋构造 | 68 |
| 设置基础梁的双柱普通独立基础配筋构造 | 69 |
| 独立基础底板配筋长度减短10%构造 | 70 |
| 杯口和双杯口独立基础构造 | 71 |
| 高杯口独立基础配筋构造 | 72 |
| 双高杯口独立基础配筋构造 | 73 |
| 单柱带短柱独立基础配筋构造 | 74 |
| 双柱带短柱独立基础配筋构造 | 75 |
| 条形基础底板配筋构造(一) | 76 |
| 条形基础底板配筋构造(二) | 77 |
| 条形基础板底不平构造 条形基础底板配筋长度减短10%构造 | 78 |
| 基础梁JL纵向钢筋与箍筋构造 附加箍筋构造附加(反扣)吊筋构造 | 79 |
| 基础梁JL配置两种箍筋构造 基础梁JL竖向加腋钢筋构造 | 80 |
| 梁板式筏形基础梁JL端部与外伸部位钢筋构造 条形基础梁JL端部与外伸部位钢筋构造 | 81 |
| 基础梁侧面构造纵筋和拉筋 | 82 |
| 基础梁JL梁底不平和变截面部位钢筋构造 | 83 |
| 基础梁JL与柱结合部侧腋构造 | 84 |
| 基础次梁JCL纵向钢筋与箍筋构造 基础次梁JCL端部外伸部位钢筋构造 | 85 |
| 基础次梁JCL竖向加腋钢筋构造 基础次梁JCL配置两种箍筋构造 | 86 |
| 基础次梁JCL梁底不平和变截面部位钢筋构造 | 87 |
| 梁板式筏形基础平板LPB钢筋构造 | 88 |
| 梁板式筏形基础平板LPB端部与外伸部位钢筋构造 梁板式筏形基础平板LPB变截面部位钢筋构造 | 89 |
| 平板式筏基柱下板带ZXB与跨中板带KZB纵向钢筋构造 | 90 |
| 平板式筏形基础平板BPB钢筋构造 | 91 |
| 平板式筏形基础平板(ZXB、KZB、BPB) 变截面部位钢筋构造 | 92 |
| 平板式筏形基础平板(ZXB、KZB、BPB) 端部与外伸部位钢筋构造 | 93 |
| 矩形承台CTj和CTp,配筋构造 | 94 |
| 等边三桩承台CTj配筋构造 | 95 |
| 等腰三桩承台CTj配筋构造 | 96 |
| 六边形承台CTj配筋构造 | 91 |
| 双柱联合承台底部与顶部配筋构造 | 99 |
| 墙下单排桩承台梁CTL配筋构造 | 100 |
| 墙下双排桩承台梁CTL配筋构造 | 101 |
| 灌注桩通长等截面配筋构造 灌注桩部分长度配筋构造 | 102 |
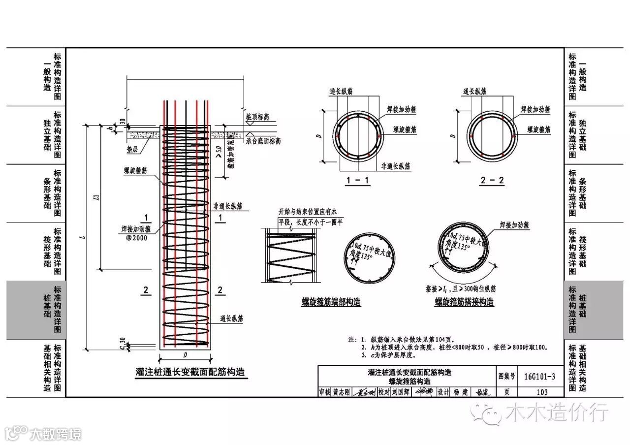
| 灌注桩通长变截面配筋构造 螺旋箍筋构造 | 103 |
| 钢筋混凝土灌注桩桩顶与承台连接构造 | 104 |
| 基础联系梁JLL配筋构造 搁置在基础上的非框架梁 | 105 |
| 基础底板后浇带HJD构造 基础梁后浇带HJD构造 | 106 |
| 后浇带HJD下抗水压垫层构造 后浇带HJD超前止水构造基坑JK构造 | 107 |
| 上柱墩SZD构造(棱台与棱柱形) | 108 |
| 下柱墩XZD构造(倒棱台与倒棱柱形) | 109 |
| 防水底板JB与各类基础的连接构造 | 110 |
| 窗井墙CJQ配筋构造 | |
样张欣赏(一)


之前11G的起步距离参考12G901来的,min{s/2,75}(眼力好的可以看见上图做的笔记,我的书一直很烂,但是很有成就感),现在16G直接明确了,就不用纠结了!注意条形基础距离基础梁的起步距离16G也明确了小于等于s/2(s为条形基础钢筋间距)。
样张欣赏(二)


平板式筏形基础平板变截面构造,钢筋无变化!大叉叉,So easy!
样张欣赏(三)


16G增加搁置在基础上的非框架梁做法,锚进基础锚固长度la,注意这里不是Labe也不是lae,所以是不是可以认为是非抗震构件。
样张欣赏(四)

16G101-3算是最大的变化吧,增加灌注桩通长百年界面配筋构造螺旋箍筋构造,大家仔细欣赏下!
回复“16G”可以下载最新平法图集16G101-1册电子版;16G101-3也有消息,16G101-2也快了,一有电子版会立马微信分享哟。纸质版预定还剩40余套,点击阅读原文即可进微店下单!!!

