搜索
首页
大数快讯
大数活动
服务超市
文章专题
出海平台
流量密码
出海蓝图
产业赛道
物流仓储
跨境支付
选品策略
实操手册
报告
跨企查
百科
导航
知识体系
工具箱
更多
找货源
跨境招聘
DeepSeek
首页
>
干货分享▕ 钢筋知识点详解
>
0
0
干货分享▕ 钢筋知识点详解
AI土木通
2017-08-27
2
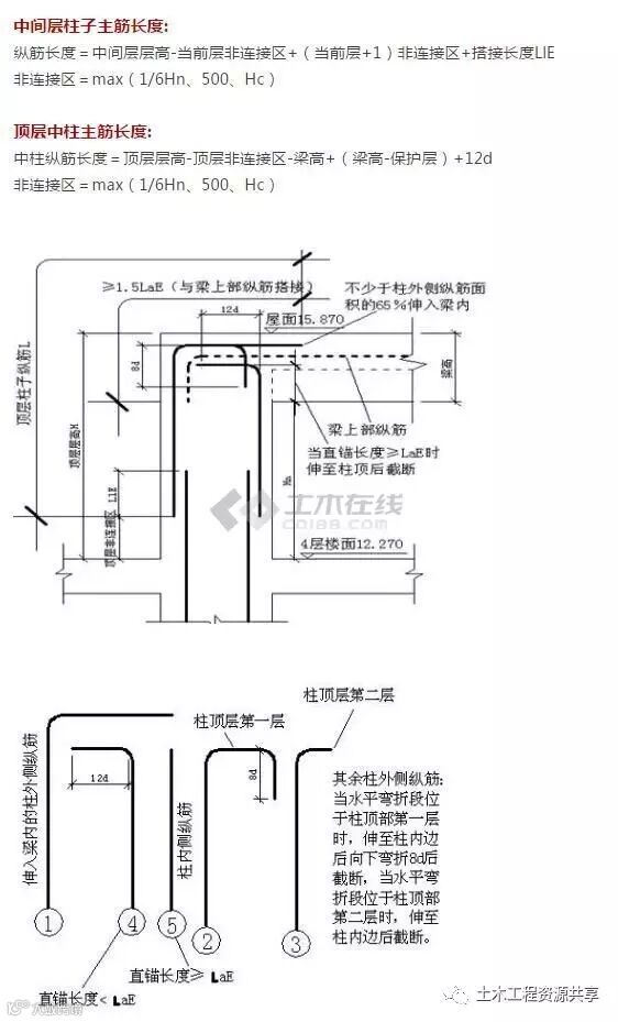
导读:钢筋知识点详解
钢筋知识点详解
【声明】内容源于网络
0
0
AI土木通
作为深耕土木行业10年的权威资源平台,构建了覆盖建筑工程、道路桥梁、水利工程等领域规范图集与资料的共享,以“让每个土木人都能零门槛驾驭AI”为使命,开启智能建造新纪元!
内容
5703
粉丝
0
关注
在线咨询
AI土木通
作为深耕土木行业10年的权威资源平台,构建了覆盖建筑工程、道路桥梁、水利工程等领域规范图集与资料的共享,以“让每个土木人都能零门槛驾驭AI”为使命,开启智能建造新纪元!
总阅读
7.3k
粉丝
0
内容
5.7k
在线咨询
关注