
装修单位进场后,项目部根据与土建单位移交的轴线、控制线以及标高线,结合各层建筑总平面图以及施工现场的实际情况以及不同的施工时间节点,分五个步骤进行测量、放线叫做五步放线法。根据五步放线界定的尺寸进行施工的方法又叫做五步放线施工法。
五步放线的目的是什么?
1、是根据施工平面总平面图核对与施工现场理论尺寸与现场实际尺寸是否相吻合;
2、通过对图纸与现场的核定,确认是否存在施工障碍,并记录在总平面图上。以便深化图纸,为后续工作打好基础;
3、根据实际数据调整平面图后,进一步调整和确认轴线、控制线以及标高线。
↓图文解读五步放线的具体步骤↓
第一步放线
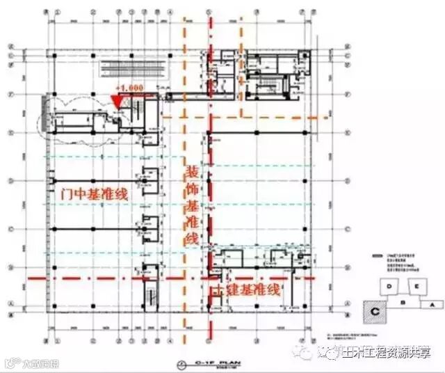
1、根据总平面图在各施工空间放出三根基准控制线(轴线、控制线以及标高线);
2、在地面、顶面以中轴线为基点,向拟完成工作面延伸一米,平行放制完成面控制线;
3、根据图纸标注尺寸,以完成面控制线为基准放制各墙面完成线;
4、根据图纸标注尺寸,以1米水平线为基准放制顶面完成线;
5、以顶面完成线为基准,向上延伸250mm放制机电控制标高线;
6、根据图纸标注尺寸,以1米水平线为基准,放制地面±0.00水平线。可根据工作面采用多种放线方式:流水放线法和分组放线法。

说明:此阶段是放线最佳时期,这时空调、给排水、暖通、强弱电单位均未进场施工,土建二次结构又进入尾声,工地障碍物少,有利于经纬仪器、水准仪放线施工(减少以施工单位进场后材料堆放影响放线增加协调难度)。
此阶段是主控线、标高线移交、抢放主控线、水平线、轴线或一米的控制线。


复核主控制线
1、根据土建图纸平移出来的主控线,现场确定主控线。
2、以主控线复核总包轴线(检查总包轴线是否与理论轴线有误 差),如有误差,测出误差数据标在平面图纸上,然后以理论轴距尺寸减一米,弹墙面控制线。


第二步放线
1、根据图纸,以轴向控制线为基准,放制各区域厨、卫墙面四周瓦工粉刷完成面线;
2、根据图纸,以轴向控制线为基准,放制各区域油工粉刷完成面线;
3、根据图纸,以轴向控制线为基准,放制各区域木硬包、软包完成面线;
4、根据图纸,以轴向控制线为基准,放制各区域木饰面完成面线。

根据轴向控制线,测量土建墙面粉刷完成面平整度、方正度是否满足施工要求。
如有误差,首先应对不平整墙面进行处理。墙面个别高出整体的部分,如面积不大于0.5㎡,建议剔除。避免过厚粉刷层形成空鼓。


第三步放线
(1)根据图纸要求,以已放制的控制线为基准,放制家具、洁具等造型线。
(2)根据图纸要求,以已放制的控制线为基准,放制空调、送回风口、检修口、喷淋头、烟感、广播、投影仪及投影幕、灯具孔等定位线,并在墙面放制插座、开关等定位线。对暂时无法确定的造型,应留活口。以不影响大面积施工为控制原则。

造型完成面线




第四步放线
根据图纸标注尺寸及使用要求,以通道中间控制线为基准线,调整门套内、外侧墙面完成面尺寸,并放线定位。
此种放线方法称为平行放线法,也称为走道施工法或门套成品化放线施工法。


各种控制线


技术交底
向家具厂提交的深化图纸,其中确定了门套、石材、木饰面、软硬包的图纸尺寸。交接双方要在图纸上签字确认。
第五步放线
在生产过程中,一些原有的定位线会被施工作业遮盖。此时施工单位应根据原有尺寸在相同位置重新放线。因此被称为第五步放线。又称为二次放线。

被地面找平覆盖后,重新放制的家具、灯具控制线

五步放线施工法的四大核心
1、细心研读图纸;
2、认真勘察现场;
3、放线修正误差;
4、放线定位,确定尺度,确定收头方案。
五步放线前期准备工作的三个重点
一、基础准备
1、仪器: 经纬仪、水平仪、红外线、垂直水平仪、100m测量皮尺、7.5m钢卷尺、200m红外线测距仪、三凌镜等。
2、工具: 墨斗、钩鱼丝线(红色、蓝色) 。
3、材料: 大锤、小锤、铁楸、木工板、150*150*3铁板、30*30*3角铁、 Ø8*40膨胀螺栓、划瓷砖的金刚钻刀头,冲击钻、电焊机、切割机等。
4、人员:施工员、现场总带班、瓦油木带班、放线员、弹线工2人、扫地清理人员2人(此放线5人为一组,根据工作量的大小可增加2-6组人员)。

预先刻制喷绘面板
二、仪器准备

红外线和水准仪
红外线:是用来复合水准仪抄平是否误差。如没有用木抖弹1m水平线,红外线远距离线粗以中为准。
水准仪:找平层1m水平线,夹在中间以减少误差。
三、图纸资料准备
1)阅读核对并审核所有的建筑施工图纸,应尽早发现并防止建筑图纸与施工现场出现互相矛盾,尺寸差错的问题。(因为所有的水电、暖通、消防图纸,几乎都是按照建筑总平面和建筑立面设计的。有时会出现同一空间各种设备、设施或检修位置相互矛盾的问题。如果项目部没有提前并准确地深化图纸,施工过程中必然会产生问题,到时候再去协调会产生很大的时间、成本消耗。)
阅读图纸时应注意,总平面图方格网中轴线的位置。还应注意看清、看懂图纸的总说明,以了解该建筑物的施工要求以及相关要求。要特别注意首层±0.00的绝对标高值。
2)其次看建筑施工图的总平面,建筑立面,建筑剖面图。但详图可以暂时不看。待窗台和窗帘盒深化图纸时看。这些图纸往往是搞装饰的人员认为对我们装修没有用而忽略不看的。再看结构施工图,主要是基础图,主体结构平面、剖面图等。
最好能详细阅读一下水、电、暖通安装施工图。看清出入口与土建和装饰的关系。
看图时要注意建筑与结构相对照、土建与设备安装相对照。这些是项目部组织容易忽略的问题。提前把平面图、建筑剖面图、机电安装图)看清楚、想明白,做到心中有数,才算阅图准备工作完毕。
3)应事先将施工测量放线的数据资料准备好。最好先在电脑里模拟放线定位,进行图纸推演。然后将已制定的测量放线数据与土建图纸反复比较核对。尤其要注意±0.00标高、主控线和轴线。
应提前根据图纸和现场实际制定施工放线的程序及施工计划。准确地把拟施工空间墙、顶、地、门窗和水电设备的控制尺寸,按计划在墙面、地面和顶面上放制控制线并据此施工,就称为五步放线法。
五步放线法的核心是要做到全体人员通过提前读图,现场测量,反复核对,制定计划的手段,达到对施工作业内容心中有数的目的。



