
1、管桩桩身倾斜

防治措施:
(1)施工前应对桩构件进行检查,发现桩身弯曲超过规定或桩尖不在桩纵轴线上的不能使用;
(2)接桩时要保证上下两节桩在同一轴线上,接头处应严格按照操作规程施工;
(3)施工过程中应根据地层情况、基础形式、布桩情况选择合理的施工机械,并限制打桩速率,并优化打桩的施工方向和顺序路线,并根据桩的入土深度,宜先长后短、先高后低,若桩较密集,宜自桩群中间向两个方向或四周对称施工,当一侧毗邻建筑物时,可从毗邻建筑物处开始沉桩;
(4)桩机进场前先平整场地,使打桩机(静压桩机)底盘保持稳定和水平;
(5)为防止桩机下陷而造成桩身倾斜、桩机挤压导致桩位偏移等影响施工质量问题及施工安全隐患,必须对施工场地进行局部回填平整,采取必要的措施提高地基承载力,使其达到打(压)桩施工要求;
(6)开挖前应分层均匀进行,必须加强维护措施,防止土体侧压力对桩身上产生附加弯矩而导致桩身偏斜;
(7)施工前应清除地下障碍物(如墓穴、地下废旧建筑物等)。
2、桩身断裂

桩身断裂
防治措施:
(1)对桩身质量进行全面检查,测量管桩的外径、壁厚、桩身弯曲度等有关尺寸,并详细记录,发现桩身弯曲超过规定或桩尖不在桩纵轴线上的不宜使用;
(2)管桩外径 300-400 的桩叠层不宜超过 5 层,沿垂直于长度方向的地面上设置 2 道垫木,垫木分别位于据桩端 0.21 倍桩长处,底层最外缘管桩应在垫木处用木楔塞紧以防滚动。管桩达到设计强度 70%方可起吊,达到 100%方可运输及打桩;
(3)合理安排压桩线路,预防压桩机侧向挤压已完成的管桩;
(4)施工前应对桩位下的障碍物进行清理,必要时对每个桩位采用钎探方法查明;
(5)应保证施工场地平整坚实。有排水措施,让桩机行走或施打过程机身平稳不晃动;
(6)在稳桩过程中如发现桩不垂直应及时纠正,桩压入一定深度发生严重倾斜时,不宜采用移架方法来校正,接桩时要保证上下两节桩在同一轴线上,接头处应严格按照操作规程;
(7)土方开挖应沿桩周边分层均匀进行,防止土体侧压力导致桩身断裂;
(8)当基础埋深较大时,桩身完整性检测应在基坑开挖至基底标高后进行。

管桩桩身位置准确、未断裂
3、箍筋不方正、成型尺寸不准

防治措施:
(1)预先确定各种形状钢筋下料长度调整值,根据钢筋弯制角度和钢筋直径确定好扳距大小。
(2)一次弯曲多个箍筋时需在弯折处逐根对齐。
4、滚轧直螺纹钢筋接头施工不规范
防治措施:
(1)钢筋加工前应首先检查机械设备状况,及时更换不合格刀具;
指定专人检查并处理不合格的钢筋切口后,再交付滚扎加工;
(2)配备经检测合格的力矩扳手,并做好施工和质量技术交底;
(3)直径>30 的钢筋宜用切割机切割;
5、电渣压力焊接头偏心、弯折

接头偏心
防治措施:
(1)电渣压力焊焊机容量应根据所焊钢筋直径选定,接线端应连接紧密,确保良好导电。
(2)焊接夹具应具有足够刚度,夹具型式、型号应与焊接钢筋配套,上下钳口应同心,在最大允许荷载下应移动灵活,操作便利,电压表、时间显示器应配备齐全。
(3)电渣压力焊工艺过程应符合下列要求:
1)焊接夹具的上下钳口应夹紧于上、下钢筋上;钢筋一经夹紧,钢筋应同心,且不得晃动;
2)引弧可采用直接引电弧法,或铁丝圈(焊条芯)引弧法;
3)引燃电弧后,应先进行电弧过程,然后,加快上钢筋下送速度,使上钢筋端面插入液态渣池约 2mm,转变为电渣的过程,最后在断电的同时,迅速下压上钢筋,挤出熔化金属和熔渣;
4)接头焊毕,应稍作停歇,方可回收焊剂和卸下焊接夹具;敲去渣壳后,四周焊包凸出钢筋表面的高度,当钢筋直径为 25mm 及以下时不得小于 4mm;当钢筋直径为 28mm 及以上时不得小于 6mm。

6、钢筋闪光对焊中有氧化膜、未焊透、夹渣或裂纹(脆断)
防治措施:
(1)钢筋端头弯折应调直,钢筋下料宜采取锯割或其它措施对钢筋端面进行平整处理。
(2)闪光对焊时,应选择合适的调伸长度、烧化留量、顶锻留量以及变压器级数等焊接参数。
(3)变压器级数应根据钢筋牌号、直径、焊机容量以及焊接工艺方法等具体情况选择。
(4)HRB500 钢筋焊接时,应采用预热闪光焊工艺。当接头拉伸试验结果,发生脆性断裂或弯曲试验不能达到规定要求时,尚应在焊机上进行焊后热处理。
(5)在闪光对焊生产中,当出现异常现象或焊接缺陷时,应查找原因,采取措施,及时消除。
7、钢筋电弧焊接焊缝不饱满

焊缝不饱满
防治措施:
(1)钢筋电弧焊应根据钢筋牌号、直径、接头型式和焊接位置,选择合适的焊接材料,确定焊接工艺和焊接参数。
(2)焊接地线与钢筋应接触良好。
(3)焊接时,引弧应在垫板、帮条或形成焊缝的部位进行,不得烧伤主筋。
(4)焊接过程中应及时清渣,焊缝表面应光滑, 焊缝余高应平缓过渡,弧坑应填满。

焊缝均匀饱满
8、墙、柱竖向钢筋偏移

钢筋偏移、间距不均匀
防治措施:
(1)增加定位箍筋(或限位钢筋)固定主筋,必要时定位箍筋(或限位钢筋)用点焊或多道绑扎的方式进行连接固定;
(2)设置定位箍筋框用于控制钢筋位移,定位箍筋框分内控式和外控式两种,置于柱顶的定位箍可周转使用;
(3)墙钢筋采用定位梯进行控制,保证墙两排钢筋的间距和钢筋保护层厚度;
(4)楼层模板安装完成后,应进行轴线复线及边线检查,以保证柱、墙模板上口位置准确;




预防控制措施效果
9、钢筋保护层超标
防治措施:
(1)控制保护层措施要合理,竖向、水平、悬挑结构、单层或双层钢筋,要依据钢筋直径大小,合理安放水泥砂浆垫块、塑料限位卡、铁凳、支架或定位卡具,垫块(卡子)的厚度尺寸、位置、间距、数量应确保混凝土振捣不位移、不脱落。
(2)浇筑砼采用"后退法",严禁采用"前进法"。当浇筑特殊构件或实际确实需要在刚浇筑好的砼上行走时,必须采用胶合板铺设在砼上,所有的操作必须在砼初凝前全部完成。
(3)浇筑砼时任何人员不得随意在安装好的钢筋上踩踏;在浇筑砼时,派专职钢筋工进行护筋,发现钢筋被踩踏移位时,及时进行修整。


板筋保护层控制措施效果

竖筋保护层控制措施效果
10、梁柱结合处模板拼缝不严密

模板拼缝不严密
防治措施:
(1)从上到下样模,梁柱结合处根据梁截面尺寸在整块木模上精确开槽,减少梁柱结合处接缝数量。
(2)梁、柱交接部位支撑要牢固,拼缝要严密,发生错位要校好。
11、楼板模板拼缝缝隙过大

模板拼缝不严密、缝隙过大
防治措施:
(1)翻样要认真,严格按 1/10~1/50 比例将分部分项细部翻成详图,详细编注,经复核无误后认真制作模板拼装。
(2)安装时控制好平整度,拼缝连接要严密。

模板拼缝严密、平整
12、梯板留缝位置有误

防治措施:
楼梯梯段施工缝设置在梯段板跨度端部的 1/3 范围内。

预防控制措施效果
13、后浇带支撑不规范
防治措施:
(1)梁板模板支设时,在后浇带两侧利用双立杆和顶托将两侧模板和支撑断开,使后浇带模板及支撑形成独立体系,确保支撑不被拆除(避免二次支撑加固)。
(2)后浇带混凝土未浇筑前宜有保护钢筋的措施,可用模板封闭遮盖保护钢筋。

预防控制措施效果
14、现浇结构混凝土开裂

混凝土结构开裂、渗水
防治措施:
(1)混凝土坍落度要适宜,水泥用量不宜过大,采用掺加外加剂拌制混凝土,减少混凝土用水量,振捣要均匀。
(2)终凝前用混凝土打磨机(或木磨板)打磨压实,以提高混凝土表面密实度和平整度,在浇筑混凝土完毕后 12 小时以内,对混凝土加以覆盖并保湿或进行蓄水养护。
(3)大体积混凝土施工应编制专项施工方案控制混凝土裂纹。
15、现浇结构混凝土露筋

钢筋外露
防治措施:
(1)钢筋混凝土施工时,注意保护层垫块、支架、马蹬筋、撑条等设置数量要足,位置要准,并固定牢固。
(2)钢筋混凝土结构钢筋密集时,要选配适当石子,以免石子过大卡在钢筋处。
(3)混凝土振捣时严禁振动钢筋,防止钢筋变形位移,在钢筋密集处,可采用带刀片的振捣棒进行振捣。
(4)混凝土自由差落高度超过 2m 时,要用串筒或溜槽等进行下料。操作时不得踩踏钢筋,如钢筋有踩弯或脱扣者,及时调直,补扣绑好。

混凝土结构外光内实、无露筋
16、现浇结构混凝土蜂窝、孔洞、夹渣、疏松
防治措施:
(1)模板面清理干净,不得粘有干硬水泥砂浆等杂物,木模板灌注混凝土前,用清水充分湿润,清洗干净,不留积水,使模板缝隙拼接严密,如有缝隙要填严,防止漏浆。钢模板涂模剂要涂刷均匀,不得漏刷。
(2)混凝土浇筑时间要适宜。
(3)混凝土浇筑高度超过 2m,要采取措施,如用串筒、斜槽或振动溜管进行下料。
(4)混凝土入模后,必须掌握好振捣时间,一般每点振捣时间约 20~30 秒。使用内部振动器时,振动棒应垂直插入,并插入下层未初凝的混凝土内 50~100mm,以促使上下层混凝土相互结合良好。合适的振捣时间可由下列现象来判断:混凝土不再显著下沉,不再出现气泡,混凝土表面出浆且呈水平状态,混凝土将模板边角部分填满充实。
(5)浇筑混凝土时,经常观察模板,发现有模板走动,立即停止浇筑,并在混凝土初凝前修整完好。

混凝土结构内实外光无蜂窝、孔洞、夹渣、疏松
17、现浇结构混凝土楼梯踏步尺寸不均匀、观感质量差

防治措施:
(1)加强施工尺寸和标高控制,确定楼梯第一步和最后一步阳角位置,拉通线,在斜线上等分梯段,确保踏步的阳角在一条直线上,支撑要稳固。
(2)可使用定型楼梯模板。
(3)楼梯混凝土自下而上浇筑,先振实底板混凝土,达到踏步位置后再与踏步混凝土一起浇筑,不断连续向上推进,并随时用木抹子将踏步上表面抹平。
(4)加强混凝土养护及成品保护(封闭)。

楼梯踏步民族尺寸均匀、观感质量好
18、现浇结构同条件混凝土养护方法错误
防治措施:
(1)混凝土同条件养护试件拆模后,使用定制的钢筋笼把试块靠近相应结构构件或结构部位同时养护。
(2)严格执行结构实体检验用同条件养护试件强度检验的原则,即等效养护龄期可取按日平均温度逐日累计达到600℃·d时所对应的龄期,0℃及以下龄期不计入;等效养护龄期不应小于 14d,也不宜大于 60d;
(3)同条件养护试件,应有适当的保护措施,以防损坏。

预防控制措施效果
19、砌体后置锚固钢筋数量不足,构造柱、圈梁设置不到位
防治措施:
(1)施工前应确定锚固钢筋的施工方法,根据砌体的模数确定拉结钢筋的位置,保证拉结钢筋埋设在灰缝中。
(2)采用化学植筋施工法的,须明确锚固力、埋设深度、原材料要求等,如设计没提出要求则拉结钢筋植入深度应≥10d;孔内灰尘要清理干净(可用空压机);植筋注胶需采用专用工具(一般为手持式自动压力灌浆器),拉结筋缓缓旋转插入植筋孔,边插入边沿一定方向转动多次,以使植筋胶与拉接结筋和混凝土孔壁表面粘结牢实,并按要求进行钢筋拉拔检验,确保钢筋锚固质量。
(3)墙长超过 4m 时需设置钢筋混凝土构造柱;墙高超过 4m 时,墙体半高宜设置与柱连接且沿墙全长贯通的钢筋混凝土水平系梁。

打孔

植筋

构造柱钢筋安装
20、填充墙砌体排脚砖少于三皮,马牙槎、滚砖施工不规范
防治措施:
(1)墙脚按要求砌筑三皮实心砖。
(2)马牙槎先退后进对称砌筑设置,马牙槎凹凸尺寸不小于 60mm,高度不超过 300mm。
(3)墙顶宜预留 100mm 左右的空隙 14 天后在采用 120 砖横向斜砌滚砖(200 墙可使用配砖),角度一般取 60 度。
21、填充墙砌体搭砌长度不足
防治措施:
(1)错缝搭砌需作统筹安排,按砌块排列图预先确定砌体线范围内分块定尺、画线、排列砌块的方法。
(2)砌块不应用斧头或灰刀随意砍切,蒸压加气混凝土砌块需使用切割机或手锯切割。

人工锯块示意

砌块搭接长度规范
22、灰缝饱满度不够

灰缝饱满度差
防治措施:
(1)砌筑尽可能采用和易性好,掺外加剂的混合砂浆砌筑,以提高灰缝砂浆的饱满度。
(2)水平灰缝的砂浆饱满程度对砌体强度和整体性影响很大,竖向灰缝对砌体抗剪强度影响显著,如果竖向灰缝不饱满,则砌体的抗剪强度将降低 40%-50%.具体措施如下:
①改善砂浆的和易性是确保灰缝砂浆饱满和提高粘结强度的关键;
②改进砌筑方法,应推广"三一砌砖法",又称挤揉法,即"一刀灰、一块砖、一挤揉";
(3)砌筑过程中,应注意检查竖向灰缝饱满,不得出现透明缝、瞎缝和假缝。
(4)立皮数杆砌筑,控制水平灰缝厚度。

灰缝均匀饱满
23、砌体与混凝土结构缝和砌体开槽处开裂

现象
防治措施:
(1)填充墙与承重主体结构间的空(缝)隙部位施工,应在填充墙砌筑 14d 后进行;开槽宜使用锯槽机。
(2)砌体与混凝土结构交界缝隙和砌体开槽线管固定后提前采用 1:2.5 水泥砂浆抹平,后跟内墙同时抹灰。
(3)砌体与混凝土结构交界缝隙、宽为 50mm~100mm 的线槽宜加挂钢板网(或用 1︰1 水泥砂浆内掺水重 20%白乳胶粘贴耐碱玻璃纤维网格布)加强后跟内墙同时抹灰。
(4)线槽深度超过 35mm 分两次抹灰。线槽深度 50mm 以上宜采用细土混凝土填充后,再用 1:2.5 水泥砂浆抹平。
(5)线管外壁与抹灰完成面间距不小于 15mm。
24、地下室底板开裂、渗漏
防治措施:
(1)底板混凝土要一次性浇筑成型,不得中途停止浇筑以免出现冷缝,如底板面积过大需分开浇筑时,可按设计图纸要求利用后浇带作为施工缝;
(2)混凝土浇筑须连贯,混凝土间搭接必须在初凝前完成,以免产生冷缝;
(3)大体积混凝土在施工及养护过程中,须采取适当措施以防止出现温差裂缝;
(4)泵送大体积混凝土表面水泥浆较厚,故浇筑结束后须在初凝前用铁滚筒碾压数遍,并打磨压实,防止混凝土表面出现收缩裂缝;
(5)可采取在后浇带处预留企口槽或采用预埋止水钢板和止水条的方法避免该处渗漏;
(6)混凝土浇筑前做好降水措施,地下水位应降至底板以下 500mm;
(7)底板外防水层应选用质量合格的防水材料;防水层接头的搭接长度及搭接方法应符合施工工艺要求;底板施工时应做好外防水层的成品保护。
25、地下室后浇带渗漏

地下室底板开裂
防治措施:
(1)逢源未做企口带也没有安装遇水膨胀止水条(胶)的,应粘贴外贴式止水带,止水带粘贴后,混凝土浇筑前,应避免雨水和其他水浸泡;浇筑混凝土时,湿模一段,浇筑一段;
(2)后浇带两侧宜用木模封缝,尽量减少混凝土水泥浆流失;后浇带部位未施工之前应做好防护措施,以免污水及杂物进入;
(3)浇筑混凝土前,应将后浇带两侧的接缝表面浮浆和杂物清除,然后铺设净桨或涂刷混凝土界面处理剂、水泥渗透结晶型防水涂料等材料,再铺 30~50mm 厚的 1:1 水泥砂浆,并应及时浇筑混凝土;
(4)采用掺膨胀剂的补偿收缩混凝土,膨胀剂掺量不宜大于 12%,坍落度按 160~180mm 控制(泵送混凝土),水中养护 14d 后的限制膨胀率不应小于 0.015%,膨胀剂的掺量应根据不同部位的限制膨胀率设定值经试验确定;
(5)混凝土浇筑后应及时养护,养护时间不得少于 28d;拆模后,在迎水面做附加防水层和护墙。

预防控制措施效果
26、厨房、卫生间、阳台、屋面排水不畅、积水

防治措施:
(1)卫生间楼板排水管周围混凝土时,先剔净楼板预留管洞混凝土软弱层,用水清水充洗湿润,若排水管周间隙在 30mm 内时,在预留洞周围结构混凝土上刷水泥素浆一道,用掺防水剂的 1︰2 略硬水泥砂浆捣塞密实;若管周围间隙大于 30mm 时,刷一道水泥素浆,用 1:2:4 混凝土捣塞密实。
(2)应把卫生间防水层和铝塑管、PP-R 管的成品保护作为一件重中之重工作。防水层施工后,水暖班组、室内装修、室外装修班组、电气班组负防水层成品保护责任;室内装修班组、室外装修班组、电气班组负水暖管道成品保护责任,室内装修班组要提高防水保护层施工质量(并且防水基层的管根不能抬的过高),保护层抹压密实,门槛、管根、墙边楼面较高处细部抹压到位。
(3)抹防水基层前,楼面结构上的污物,浮尘,浮浆要剔凿干净;找平层砂浆稠度适中,不能过稀,抹压成面时,保证在水泥终凝前完成,防水防水基层起砂;防水基层过薄处使用聚合物胶灰时,要清净基层后,套一遍胶灰,防水基层操作完 24 小时后要浇水养护到位。
27、地漏渗漏
防治措施:
在做水泥砂浆防水层前,把地漏管跟修整做为一道工序,检验地漏、穿墙套管有无破坏,有无超高,发现问题及时进行维修。地漏周边有无铁丝未从跟部剪掉,地漏周边堵洞是否堵好,修整合格后与附墙管槽一并验收。
28、管根渗漏

套管与结构板根部未封堵

套管未封堵
防治措施:
(1)有隔墙板的部位,浇筑卫生间隔墙板前,要固定好套管位置和标高,套管与套管间要有 30mm 以上间隙,套管入卫生间内墙皮要回退 10mm(做防水基层时将此处做成凹槽或喇叭口);
(2)浇筑卫生间导墙时,套管周围要用瓦刀捣实;
(3)隔墙板处安放套管位置标高安放正确,套管与隔墙板间隙堵塞密实;
(4)主体结构预留套管,其位置标高要留正确。做防水基层前,要将此处再检查一遍,套管有无遗漏;
(5)靠卫生间内一侧的套管周边要留 15×10mm 的凹槽或做成喇叭口;
(6)贴卫生间地砖时,要将套管处甩一块砖,待暖气安装合格后,将套管周边用防水油膏将其封堵密实;最后闭水不漏才能封地砖。
29、女儿墙根部漏水

女儿墙根部漏水
防治措施:
(1)施工屋面找平层和刚性防水层时,在女儿墙交接处应留 30mm的分格缝,缝中嵌填柔性密封膏;
(2)女儿墙根部的阴角粉成圆弧,女儿墙高度大于 800mm 时,要留凹槽,卷材端部应裁齐压入预留凹槽内,钉牢后用水泥砂浆或密封材料将凹槽嵌填严实。女儿墙高度低于 800mm 时,卷材端头直接铺贴到女儿墙顶面,再做钢筋混凝土压顶。
30、屋面泛水处开裂、渗漏
防治措施:
(1)宜在屋面女儿墙设一道钢筋混凝土反梁,梁面高于屋面的完成面 150mm,梁宽与女儿墙厚度相等,反梁与屋面板同时浇筑;
(2)屋面与女儿墙交接处做圆弧;
1)防水层往女儿墙墙身做高≥250mm;
2)离女儿墙面 200mm 处在找平层及面层留全长伸缩缝;
3)距女儿墙面 200mm 处留全长伸缩缝时,应避免伸缩缝留在排水沟内;
(3)防水施工前,应周密计算屋面各层的厚度,并根据屋面的坡度,计算女儿墙、管道根部、门槛等部位的泛水的最低高度。防水施工时,避免泛水的高度低于规范要求。
31、卷材防水层起鼓、粘结不牢

防水卷材粘贴不牢固
防治措施:
(1)找平层应平整;
(2)卷材铺贴前,应认真清理基层,清扫浮灰、杂质等;
(3)找平层应干燥,可用简易办法检验,将 1m²材料平坦的干铺于找平层上,静置 3~4h 后掀开,覆盖部位与卷材上均未见水即可;
(4)不在雨、雪、雾天等施工;
(5)胶粘剂的涂刷应均匀一致,不得过厚或者过薄,当用热玛蒂脂时,其涂刷厚度宜为 1~1.5 ㎜,用冷玛蒂脂时,其涂刷厚度宜为 0.5~1 ㎜。当采用其他胶粘剂时,应根据其性能确定好涂刷与铺贴的间隔时间,不得过早或过晚;
(6)卷材铺贴时,必须抹除下面的空气,滚压密实。也可采用条粘、点粘、空铺的方法,确保排气道畅通;
(7))有保温层的卷材防水屋面工程,必须设置纵横贯通的排气槽和穿出防水层的排气井。
32、楼板裂缝

楼板开裂
防治措施:
楼面裂缝常见分两类:一类是预理线管及线管集散处,另一类为施工中周转材料临时较集中和较频繁的吊装卸料堆放区域。
(1)模板和支撑的选用必须经过计算,除满足强度要求外,还必须有足够的刚度和稳定性。施工时严格按方案要求搭设,不得随意加大立杆间距。板下背楞铺设应均匀。拆模时,混凝土强度应满足施工规范要求后方可拆模。
(2)严格控制现浇板的厚度和现浇板中钢筋保护层的厚度。同时,楼板、屋面混凝土浇筑前,必须搭设可靠的施工平台、走道,确保钢筋位置符合要求。
(3)楼板内敷设电线管应避免交叉,必须交叉时宜采用接线盒形式。
严禁三层及三层以上管线交错叠放。必要时宜在管线处增设钢丝网等加强措施;
(4)现场浇捣混凝土时,防止振捣或插入不当,漏振、过振或振捣棒抽撤过快,以免影响混凝土的密实性和均匀性,诱导裂缝的产生。在混凝土初凝前应进行 2 次振捣,在混凝土终凝前进行 2-4 次压抹,宜采用机械磨光机磨平。混凝土浇筑完毕后的 12h 以内,对混凝土加以覆盖和保湿养护,养护时间不得少于 14d,防止混凝土内部温度过高、内外温差过大及早期脱水产生裂缝;
(5)现浇板养护期间,当混凝土强度小于 1.2MPa 时,不得进行后续施工。混凝土强度小于 10 MPa 时,不应在现浇板上吊运、集中堆放重物;吊运、堆放重物时应采取相应措施,以减轻对现浇板的冲击影响。
33、地面花岗岩、地砖板面空鼓

地面平整、观感质量佳、无空鼓
防治措施:
(1)基层应彻底处理干净,并用水冲洗干净,然后晾至没有积水为止;
(2)结合层的砂浆应拍实、揉平、搓毛;
(3)面板铺贴前,应将板面浸泡后晾干,随铺随刷一层水泥浆,定位后,将板块均匀轻击压实;
(4)铺贴时板与板之间留 0.5 ㎜宽缝隙,遇到边、角等局部空鼓时,可用水泥水浆沿缝注水泥浆的方法修理空鼓,避免起砖;
(5)铺贴后 24h 后,散水养护,养护 7d 以上。
34、一般抹灰层空鼓
防治措施:
(1)抹灰前必须将脚手眼、支模孔洞填堵密实,对混凝土表面凸出较大的部分要凿平。
(2)必须将底层、基层表面清理干净,并于施工前一天将准备抹灰的面浇水润湿。
(3)对表面较光滑的混凝土表面,抹底灰前应先凿毛,或掺 107 胶水泥浆,或用界面处理剂处理。
(4)抹灰层之间的材料强度要接近。
35、抹灰层裂缝
防治措施:
(1)抹灰用的材料必须符合质量要求,例如水泥的强度与安定性应符合标准;砂不能过细,宜采用中砂,含泥量不大于 3%;白灰要熟透,过滤要认真。
(2)基层要分层抹灰,一次抹灰不能厚;各层抹灰间隔时间要视材料与气温不同而合理选定。
(3)为防止窗台中间或窗角裂缝,一般可在底层窗台设一道钢筋混凝土梁。
(4)夏季要避免在日光曝晒下进行抹灰,对重要部位与曝晒的部分应在抹灰后的第二天洒水养护 7d。
(5)对基层由两种以上材料组合拼接部位,在抹灰前应视材料情况,采用贴耐碱网格布、钉钢丝网等方法处理。
(6)对抹灰面积较大的墙、柱、檐口等,要设置分格缝,以防抹灰面积过大而引起收缩裂缝。
36、分格缝不规范
防治措施:
(1)分格条材料要选好,少用木条,宜用塑料条与玻璃条;条子必须顺直,厚度与宽度统一(一般厚为 3~5mm,宽为 12~20mm),下部应割角。
(2)对墙、柱要拉通线,弹出横向水平分格线或竖向垂直分格线;水平分格条一般应粘(贴)在水平线下边,垂直分格条应粘在垂直线右侧;分格条起点与终点上下左右应一致。
(3)分格条有固定分格条与取出分格条两种,玻璃条与凹形塑料条为固定不取出的分格条。
(4)分格条取出的时间与方法一般有两种:一是分格条用水泥砂浆固定后,待砂浆
达到一定强度后才能取出分格条;二是分格条用水泥砂浆固定后,当天就抹面层(抹罩面灰),等压光或蟹毛后,应将分格条上水泥砂浆清刷干净,即可取出分格条。
(5)分格缝(指取出分格条)必须用水泥浆嵌密实;刷黑漆时,应用美术笔将缝底涂黑,不能污染缝边,否则会产生视觉差,似乎分格缝不平直。

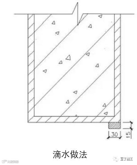
37、滴水线不标准
防治措施:
(1)雨蓬、檐口、阳台、上窗套、窗台下等边缘部位必须做滴水线。
(2)滴水线形式大致可分为四类(种):一类为凹形;二类为凸形,这两种滴水线其高(深)与宽均应大于或等于 10mm,且距外边缘大于或等于 20mm;三类为台阶形,宽度为 20~50mm,厚度为 10~20mm;四类为鹰嘴形,其高(厚)大于或等于 15mm,宽(长)大于或等于 30mm。
(3)各类滴水线必须用水泥砂浆(1:2.5 或 1:2)分层抹灰,压光密实,线条顺直,根部清晰光洁。


滴水线标准
38、窗框渗水,密封质量不好
防治措施:
(1)在窗中横框处应装挡水板,横竖框的相交部位,应注上硅酮密封胶,外露螺丝头也应在其上面注一层密封胶;按设计要求选择密封材料。
(2)窗框与饰面交接处不密实部位注一层硅酮密封胶,安窗框时,窗框与结构间的间隙应填塞密实。
(3)窗台面应外倾排水,外倾高差不小于 30mm,窗台面饰面层不应高于窗框泄水孔。上窗楣做成鹰嘴形或滴水槽。
(4)为使窗框内积水尽快排除,门窗下框槽口应钻 4mm×20mm 平底泄水孔,其间距宜 600mm 左右。通过小孔将水排向室外。
(5)施工中脱落的橡胶条应及时补上,用橡胶条密封的窗肩应在转角部位注胶,使其粘结,窗外侧的密封材料宜使用整体的硅酮密封胶。

窗框密封质量好、不渗水
39、干挂大理石或花岗岩固定不牢固;接缝不平整,嵌缝不密实、不均匀、不平直。
防治措施:
(1)干挂大理石或花岗岩前,应事先在基层按规定预埋铁件;
(2)根据干挂板材的规格大小,选定竖向与横向组成钢构架的规格与质量,例如:25mm×600mm×1200mm的板材,可选竖向用 6~8号槽钢,横向用 3~4 号角钢,竖向按 1200mm 分格,横向按 600mm分格;
(3)板材上、下两端应准确切割连接槽两条,并分别安装不锈钢挂件与其连接;
(4)严格按打胶工艺嵌实密封胶。
40、屋面积水、排水坡度不足,落水口部位排水不顺畅
防治措施:
(1)找平层施工前要做好技术交底,并根据水落口位置确定好排水走向,测量和确定最高点标高和水落口的标高的控制点设置施工标志;
(2)从结构工程施工开始,施工中应严格控制水落口施工标高,防止水落口标高过高;
(3)水平过水孔使用圆管的,管底应比完成面低 5~10mm,保证出水顺畅,并根据水落口位置确定好排水走向,确定最高位置标高和水落口标高的控制点设置施工标志。
41、套管安装质量常见问题未按要求设置套管或套管设置不规范
防治措施:
穿楼板和墙体管道安装时必须按要求加设套管,套管要参照规范要求和土建完成面做法确定其预制长度。安装在墙壁内的套管其两端与饰面相平;安装在楼板内的套管,其顶部高出装饰地面 20mm; 安装在卫生间及厨房内的套管,其顶部高出装饰地面 50mm,底部应与楼板底面相平,套管周围用细实混凝土填充密实、养护到位,无渗漏。外露套管部分刷漆防腐、套管与管道之间缝隙宜采用阻燃密实材料填充,且端面应光滑。成排管道的套管还要做到整齐划一。套管安装平直,排水管居中。


穿板套管安装规范
42、屋面通气管套管安装不规范
防治措施:
出屋面套管的长度,要参照屋面做法厚度并按规范要求预制,套管周围用细实混凝土填充密实、养护到位,无渗漏。外露套管部分刷漆防腐、套管与管道之间缝隙宜采用阻燃密实材料填充,且端面应光滑。套管安装平直,通气管居中。上人屋面的金属通气管出屋面较高,结构预留套管时应留设避雷用圆钢。

屋面的通气管套管安装规范
43、管道支架安装间距过大,管道局部"塌腰"
防治措施:
(1)支架安装前应根据管道设计坡度和起点标高,算出中间点、终点标高,弹好线,根据管径、管道保温情况,按"墙不作架、托稳转角,中间等分,不超最大"原则。
(2)支架安装必须保证标高、坡度正确,平正牢固,与管道接触紧密,不得有扭斜、翘曲现象;弯曲的管道,安装前需调直。
(3)安装后管道产生"塌腰",应拆除"塌腰"管道,增设支架,使其符合设计要求。


管道支架间距安装均匀
44、阀门支架缺失,可能导致爆管
防治措施:
水平管道阀门两端必须设置固定支架,起到固定保护作用。

规范安装
45、埋地给水管漏水
防治措施:
(1)必须选用合格管材、器具及配件;如果有预制管段、管件,应妥善保管,防止损坏、破裂导致渗漏。
(2)截管时,切口必须平齐,并要清掉毛刺、飞边、熔渣,一旦产生缩径,必须进行扩径。
(3)管道安装接口必须牢固、严密。管道连接采用螺纹连接,套制螺纹质量的好坏与管道连接的牢固性和严密性有直接关系,套丝必须规整,并且无断丝、缺丝等缺陷;给水管道上安装直径大于 50mm 的阀门时,均采用法兰连接;安装时,对口法兰应平行,间隙要均匀,垫片要平整,并且不能突入管内,也不许用双垫调整 法兰间隙,紧固螺栓时,要十字交叉对称进行,不可一次将一螺栓拧死,紧固压力要分布均匀。
(4)埋地给水管安装完毕,必须进行水压实验,实验合格后再涂刷防腐涂料,然后才准许使用。
(5)隐蔽管接头做好保护,回填土基层必须夯实处理,并做好埋地管道保护,保护层不得高于垫层面,回填土时需有人值守,隐蔽后再次做水压实验,如发现不合格和渗漏立马现场处理修复直至合格。

管道压槽深浅一至

管道上上砂浆保封
46、卫生器具安装不牢固
防治措施:
(1)固定用的螺栓,在墙上按核对好的位置预埋平整、牢固。严禁采用后凿墙洞再埋螺栓固定。
(2)卫生器具安装前,应测定标高和位置线,组装的器具要平整、牢固,严禁安装松动的器具。应事先把该部分墙、地面找平,并在墙体划出该器具的上沿水平线和十字交叉中心线,再将卫生器具用水平尺找平后安装;固定用的膨胀螺栓、六角螺栓规格应符合国家标准图的规定,并垫上铅垫或橡胶垫,用螺母拧紧牢固。
(3)安装卫生器具的支托架结构,尺寸应符合国家标准图集要求,有足够刚度和稳定性;器具与支托架间空隙用白水泥砂浆填补饱满、牢固,并抹平正。
(4)在轻质墙上安装固定卫生器具时,尽量采用落地式支架安装,必须在墙上固定时,应事先配合土建对墙体卫生器具安装位置进行局部加固处理后,再用铁件固定或用锚固。
(5)卫生器具与墙面不得有缝隙,如因给排水管道位置位移而酿成的难以消除的缝隙可用白水泥麻刀灰填平。特别在立式小便器安装时尤应注意。


洁具安装牢固、整洁有序
47、管道生锈、油漆未涂
防治措施:
(1)涂漆前必须清除管道和金属结构表面灰尘、铁锈、焊渣、油污、水分等杂物,待露出金属光泽后,及时涂上底漆、面漆,每层涂料厚不小于 30~ 40μm;底漆稍厚,每层涂 40~50μm;油漆种类和涂刷遍数符合设计要求,漆膜附着牢固、光滑均匀、颜色一致,无漏涂、流淌、污染、剥落、起泡、皱纹、掺杂、透绣等缺陷;油漆后各活动部件保持灵活,松紧适度,阀门启闭标记明确、清晰、美观;支、吊、托架的防腐(油漆)处理及颜色符合设计要求,色泽一致,无漏涂。
不污染管道、设备及支撑面。
(2)安装后不便涂漆的管子、散热器、水箱等必须在安装前涂底漆,安装后刷面漆,可用小镜子反照背面,发现漏漆部位及时补涂。
(3)设备、散热器、水箱及管道涂漆应自上而下,自左至右,先内后外进行,刷漆要勤蘸少蘸,用力均匀,防止漏刷和出现针孔;用过氯乙稀漆涂刷时,应沿一个方向一次涂刷,不得往复进行,以防咬底。


管道支架油漆、涂漆均匀、附着良好
48、结构预埋时电管甩口定位不准
防治措施:
结构预埋管道前,先认真熟悉关联电气、结构施工图,明确开关、插座、配电箱等位置,并在施工图上标注预埋坐标尺寸,对班组进行交底,电管隐蔽检查时严格按照事先既定坐标尺寸逐一核对;穿梁线管应事先考虑后期砌墙的位置,根据墙体位置预埋穿梁线管,确保其在后砌墙体内。
49、金属电管敷设前不作防腐处理
防治措施:
(1)金属电管应作防腐处理。当埋于混凝土内时,管外壁可不作防腐处理;直接埋于土层的钢管外壁应涂两遍沥青;采用镀锌管时,镀锌层剥落处应涂防腐漆。
(2)金属管必须在安装敷设前进行防腐处理,以防止敷设后再防腐处理而局部不到位。

混凝土内非镀锌导管敷设
50、预埋电管堵塞
防治措施:
(1)电管敷设前检查管内有无杂物。
(2)电管敷设完毕后应及时将管口进行有效的封堵。不应使用水泥袋、破布、塑料膜等物封堵管口,应采用束节、木塞封口,必要时采用跨接焊封口。箱、盒内管口采用镀锌铁皮封箱。
(3)多弯及长管预穿铁丝或加过线盒以便穿线。
(4)电管预埋隐蔽时仔细检查,混凝土浇灌时派专人值守,土建拆模、砌砖、粉刷装修阶段派专人值守,逐个对敞开管口进行有效封堵,发现破损或堵塞电管及时处理。

箱合管口封堵措施有效
51、电管弯头制作不符合规范要求
防治措施:
(1)电管敷设中弯头超过 3 个(直弯为 2 个)时,必须设置过路箱。电管弯曲施工,弯曲半径不应小于管外径的 6 倍(埋地或埋混凝土的电管则不小于 10 倍),电管弯扁程度不大于电管外径的 10%。
(2)电管施工时严格按照事先既定坐标尺寸安装隐蔽;综合考虑后期砖砌体、配电箱、开关盒、插座盒的位置。就能避免由于结构预埋时电管甩口定位不准,导致电管入墙过深或严重偏离配电箱、插座盒,增加电管转弯,影响穿线。

电管弯头制作规范
52、电管进箱、盒的质量常见问题
防治措施:
(1)电管进箱(盒)应顺直,不应倾斜进箱(盒)。
(2)暗配的厚壁钢管与箱(盒)连接采用焊接,管口宜高出箱 (盒)内壁3~5mm,且焊后应补涂防腐漆。
(3)明配钢管、薄型钢管或暗配镀锌钢管与箱(盒)连接应采用锁紧螺母或护圈帽固定,用锁紧螺母固定的管端螺纹宜外露锁紧螺母 2~3 扣。
另外,采用此类连接方法还应用 φ6 圆钢做电管与箱(盒)间的接地跨接,跨接采用焊接,两侧的焊接长度应不小于 36mm,且进行两面焊接。如镀锌电管接地应采用专用线卡。

电管进线顺直、锁扣完整
53、PVC 电管敷设不牢固或断裂
防治措施:
粘接部位应处理干净,套管内侧及连接管外侧均要将胶合剂除刷均匀,套管长度宜为管外径的 1.5~3 倍,管与管的对口处应位于套管的中心,电管插入后待胶粘剂固化后才能移动连接后的电管;按规范规定的间距设置支吊架固定电管。

PVC 电管专用接头、粘接牢固可靠
54、电缆桥架、支架以及电线保护管的支吊架不符合要求
防治措施 :
(1)所有非镀锌制品的支、吊架,必须先预制、打孔、防腐完毕后方可安装。
(2)支、吊架安装前必须拉线,保证支、吊架的水平、垂直。
(3)应用机械切割和钻孔,必须使用气割下料和开孔,气割后必须磨去所有氧化物,并做防腐保护。

电缆桥架吊架均匀

线管吊架间距均匀、安装端正
55、线头无号牌或号牌字迹不清晰
防治措施:
使用专用号牌或用 E 型管现场加工号牌,下料应力求长短一致,使用不退色的标记笔书写标记号。

线头号牌字迹清晰
56、灯具安装质量差,固定不牢固
防治措施:
(1)悬吊灯具的支吊物应与吊灯重量相配,重量超过 3kg 时,应预埋吊钩或螺栓;成排吊灯在安装好后应拉线调整吊灯高度
(2)成排灯具安装前应先拉线定位,避开吊顶龙骨,中心偏差不大于5mm。
(3)灯具应固定在专设的框架上,开孔不能过大,固定灯罩的边框边缘应紧贴在顶棚上。

灯具安装居中,紧贴饰面
57、风管总管与支管连接质量差
防治措施:
(1)首先在总管上准确划线开孔。
(2)支管一端口伸入总管开孔处应垂直。
(3)相接时,咬口翻边宽度应相等,咬口受力均匀。

风管连接垂直,衔接严密
58、风管柔性接管及法兰垫片材料不符合要求
防治措施:
(1)根据风管两端口间距尺寸调整好柔性接管长度。
(2)对所使用的法兰垫片、柔性接管材料的质量进行严格的控制,所采用的必须是不燃材料,查验质量合格证明文件、产品检验报告,必要时进行点燃试验。

法兰垫片、柔性接管不燃材料
1、管桩桩身倾斜

防治措施:
(1)施工前应对桩构件进行检查,发现桩身弯曲超过规定或桩尖不在桩纵轴线上的不能使用;
(2)接桩时要保证上下两节桩在同一轴线上,接头处应严格按照操作规程施工;
(3)施工过程中应根据地层情况、基础形式、布桩情况选择合理的施工机械,并限制打桩速率,并优化打桩的施工方向和顺序路线,并根据桩的入土深度,宜先长后短、先高后低,若桩较密集,宜自桩群中间向两个方向或四周对称施工,当一侧毗邻建筑物时,可从毗邻建筑物处开始沉桩;
(4)桩机进场前先平整场地,使打桩机(静压桩机)底盘保持稳定和水平;
(5)为防止桩机下陷而造成桩身倾斜、桩机挤压导致桩位偏移等影响施工质量问题及施工安全隐患,必须对施工场地进行局部回填平整,采取必要的措施提高地基承载力,使其达到打(压)桩施工要求;
(6)开挖前应分层均匀进行,必须加强维护措施,防止土体侧压力对桩身上产生附加弯矩而导致桩身偏斜;
(7)施工前应清除地下障碍物(如墓穴、地下废旧建筑物等)。
2、桩身断裂

桩身断裂
防治措施:
(1)对桩身质量进行全面检查,测量管桩的外径、壁厚、桩身弯曲度等有关尺寸,并详细记录,发现桩身弯曲超过规定或桩尖不在桩纵轴线上的不宜使用;
(2)管桩外径 300-400 的桩叠层不宜超过 5 层,沿垂直于长度方向的地面上设置 2 道垫木,垫木分别位于据桩端 0.21 倍桩长处,底层最外缘管桩应在垫木处用木楔塞紧以防滚动。管桩达到设计强度 70%方可起吊,达到 100%方可运输及打桩;
(3)合理安排压桩线路,预防压桩机侧向挤压已完成的管桩;
(4)施工前应对桩位下的障碍物进行清理,必要时对每个桩位采用钎探方法查明;
(5)应保证施工场地平整坚实。有排水措施,让桩机行走或施打过程机身平稳不晃动;
(6)在稳桩过程中如发现桩不垂直应及时纠正,桩压入一定深度发生严重倾斜时,不宜采用移架方法来校正,接桩时要保证上下两节桩在同一轴线上,接头处应严格按照操作规程;
(7)土方开挖应沿桩周边分层均匀进行,防止土体侧压力导致桩身断裂;
(8)当基础埋深较大时,桩身完整性检测应在基坑开挖至基底标高后进行。

管桩桩身位置准确、未断裂
3、箍筋不方正、成型尺寸不准

防治措施:
(1)预先确定各种形状钢筋下料长度调整值,根据钢筋弯制角度和钢筋直径确定好扳距大小。
(2)一次弯曲多个箍筋时需在弯折处逐根对齐。
4、滚轧直螺纹钢筋接头施工不规范
防治措施:
(1)钢筋加工前应首先检查机械设备状况,及时更换不合格刀具;
指定专人检查并处理不合格的钢筋切口后,再交付滚扎加工;
(2)配备经检测合格的力矩扳手,并做好施工和质量技术交底;
(3)直径>30 的钢筋宜用切割机切割;
5、电渣压力焊接头偏心、弯折

接头偏心
防治措施:
(1)电渣压力焊焊机容量应根据所焊钢筋直径选定,接线端应连接紧密,确保良好导电。
(2)焊接夹具应具有足够刚度,夹具型式、型号应与焊接钢筋配套,上下钳口应同心,在最大允许荷载下应移动灵活,操作便利,电压表、时间显示器应配备齐全。
(3)电渣压力焊工艺过程应符合下列要求:
1)焊接夹具的上下钳口应夹紧于上、下钢筋上;钢筋一经夹紧,钢筋应同心,且不得晃动;
2)引弧可采用直接引电弧法,或铁丝圈(焊条芯)引弧法;
3)引燃电弧后,应先进行电弧过程,然后,加快上钢筋下送速度,使上钢筋端面插入液态渣池约 2mm,转变为电渣的过程,最后在断电的同时,迅速下压上钢筋,挤出熔化金属和熔渣;
4)接头焊毕,应稍作停歇,方可回收焊剂和卸下焊接夹具;敲去渣壳后,四周焊包凸出钢筋表面的高度,当钢筋直径为 25mm 及以下时不得小于 4mm;当钢筋直径为 28mm 及以上时不得小于 6mm。

6、钢筋闪光对焊中有氧化膜、未焊透、夹渣或裂纹(脆断)
防治措施:
(1)钢筋端头弯折应调直,钢筋下料宜采取锯割或其它措施对钢筋端面进行平整处理。
(2)闪光对焊时,应选择合适的调伸长度、烧化留量、顶锻留量以及变压器级数等焊接参数。
(3)变压器级数应根据钢筋牌号、直径、焊机容量以及焊接工艺方法等具体情况选择。
(4)HRB500 钢筋焊接时,应采用预热闪光焊工艺。当接头拉伸试验结果,发生脆性断裂或弯曲试验不能达到规定要求时,尚应在焊机上进行焊后热处理。
(5)在闪光对焊生产中,当出现异常现象或焊接缺陷时,应查找原因,采取措施,及时消除。
7、钢筋电弧焊接焊缝不饱满

焊缝不饱满
防治措施:
(1)钢筋电弧焊应根据钢筋牌号、直径、接头型式和焊接位置,选择合适的焊接材料,确定焊接工艺和焊接参数。
(2)焊接地线与钢筋应接触良好。
(3)焊接时,引弧应在垫板、帮条或形成焊缝的部位进行,不得烧伤主筋。
(4)焊接过程中应及时清渣,焊缝表面应光滑, 焊缝余高应平缓过渡,弧坑应填满。

焊缝均匀饱满
8、墙、柱竖向钢筋偏移

钢筋偏移、间距不均匀
防治措施:
(1)增加定位箍筋(或限位钢筋)固定主筋,必要时定位箍筋(或限位钢筋)用点焊或多道绑扎的方式进行连接固定;
(2)设置定位箍筋框用于控制钢筋位移,定位箍筋框分内控式和外控式两种,置于柱顶的定位箍可周转使用;
(3)墙钢筋采用定位梯进行控制,保证墙两排钢筋的间距和钢筋保护层厚度;
(4)楼层模板安装完成后,应进行轴线复线及边线检查,以保证柱、墙模板上口位置准确;




预防控制措施效果
9、钢筋保护层超标
防治措施:
(1)控制保护层措施要合理,竖向、水平、悬挑结构、单层或双层钢筋,要依据钢筋直径大小,合理安放水泥砂浆垫块、塑料限位卡、铁凳、支架或定位卡具,垫块(卡子)的厚度尺寸、位置、间距、数量应确保混凝土振捣不位移、不脱落。
(2)浇筑砼采用"后退法",严禁采用"前进法"。当浇筑特殊构件或实际确实需要在刚浇筑好的砼上行走时,必须采用胶合板铺设在砼上,所有的操作必须在砼初凝前全部完成。
(3)浇筑砼时任何人员不得随意在安装好的钢筋上踩踏;在浇筑砼时,派专职钢筋工进行护筋,发现钢筋被踩踏移位时,及时进行修整。


板筋保护层控制措施效果

竖筋保护层控制措施效果
10、梁柱结合处模板拼缝不严密

模板拼缝不严密
防治措施:
(1)从上到下样模,梁柱结合处根据梁截面尺寸在整块木模上精确开槽,减少梁柱结合处接缝数量。
(2)梁、柱交接部位支撑要牢固,拼缝要严密,发生错位要校好。
11、楼板模板拼缝缝隙过大

模板拼缝不严密、缝隙过大
防治措施:
(1)翻样要认真,严格按 1/10~1/50 比例将分部分项细部翻成详图,详细编注,经复核无误后认真制作模板拼装。
(2)安装时控制好平整度,拼缝连接要严密。

模板拼缝严密、平整
12、梯板留缝位置有误

防治措施:
楼梯梯段施工缝设置在梯段板跨度端部的 1/3 范围内。

预防控制措施效果
13、后浇带支撑不规范
防治措施:
(1)梁板模板支设时,在后浇带两侧利用双立杆和顶托将两侧模板和支撑断开,使后浇带模板及支撑形成独立体系,确保支撑不被拆除(避免二次支撑加固)。
(2)后浇带混凝土未浇筑前宜有保护钢筋的措施,可用模板封闭遮盖保护钢筋。

预防控制措施效果
14、现浇结构混凝土开裂

混凝土结构开裂、渗水
防治措施:
(1)混凝土坍落度要适宜,水泥用量不宜过大,采用掺加外加剂拌制混凝土,减少混凝土用水量,振捣要均匀。
(2)终凝前用混凝土打磨机(或木磨板)打磨压实,以提高混凝土表面密实度和平整度,在浇筑混凝土完毕后 12 小时以内,对混凝土加以覆盖并保湿或进行蓄水养护。
(3)大体积混凝土施工应编制专项施工方案控制混凝土裂纹。
15、现浇结构混凝土露筋

钢筋外露
防治措施:
(1)钢筋混凝土施工时,注意保护层垫块、支架、马蹬筋、撑条等设置数量要足,位置要准,并固定牢固。
(2)钢筋混凝土结构钢筋密集时,要选配适当石子,以免石子过大卡在钢筋处。
(3)混凝土振捣时严禁振动钢筋,防止钢筋变形位移,在钢筋密集处,可采用带刀片的振捣棒进行振捣。
(4)混凝土自由差落高度超过 2m 时,要用串筒或溜槽等进行下料。操作时不得踩踏钢筋,如钢筋有踩弯或脱扣者,及时调直,补扣绑好。

混凝土结构外光内实、无露筋
16、现浇结构混凝土蜂窝、孔洞、夹渣、疏松
防治措施:
(1)模板面清理干净,不得粘有干硬水泥砂浆等杂物,木模板灌注混凝土前,用清水充分湿润,清洗干净,不留积水,使模板缝隙拼接严密,如有缝隙要填严,防止漏浆。钢模板涂模剂要涂刷均匀,不得漏刷。
(2)混凝土浇筑时间要适宜。
(3)混凝土浇筑高度超过 2m,要采取措施,如用串筒、斜槽或振动溜管进行下料。
(4)混凝土入模后,必须掌握好振捣时间,一般每点振捣时间约 20~30 秒。使用内部振动器时,振动棒应垂直插入,并插入下层未初凝的混凝土内 50~100mm,以促使上下层混凝土相互结合良好。合适的振捣时间可由下列现象来判断:混凝土不再显著下沉,不再出现气泡,混凝土表面出浆且呈水平状态,混凝土将模板边角部分填满充实。
(5)浇筑混凝土时,经常观察模板,发现有模板走动,立即停止浇筑,并在混凝土初凝前修整完好。

混凝土结构内实外光无蜂窝、孔洞、夹渣、疏松
17、现浇结构混凝土楼梯踏步尺寸不均匀、观感质量差

防治措施:
(1)加强施工尺寸和标高控制,确定楼梯第一步和最后一步阳角位置,拉通线,在斜线上等分梯段,确保踏步的阳角在一条直线上,支撑要稳固。
(2)可使用定型楼梯模板。
(3)楼梯混凝土自下而上浇筑,先振实底板混凝土,达到踏步位置后再与踏步混凝土一起浇筑,不断连续向上推进,并随时用木抹子将踏步上表面抹平。
(4)加强混凝土养护及成品保护(封闭)。

楼梯踏步民族尺寸均匀、观感质量好
18、现浇结构同条件混凝土养护方法错误
防治措施:
(1)混凝土同条件养护试件拆模后,使用定制的钢筋笼把试块靠近相应结构构件或结构部位同时养护。
(2)严格执行结构实体检验用同条件养护试件强度检验的原则,即等效养护龄期可取按日平均温度逐日累计达到600℃·d时所对应的龄期,0℃及以下龄期不计入;等效养护龄期不应小于 14d,也不宜大于 60d;
(3)同条件养护试件,应有适当的保护措施,以防损坏。

预防控制措施效果
19、砌体后置锚固钢筋数量不足,构造柱、圈梁设置不到位
防治措施:
(1)施工前应确定锚固钢筋的施工方法,根据砌体的模数确定拉结钢筋的位置,保证拉结钢筋埋设在灰缝中。
(2)采用化学植筋施工法的,须明确锚固力、埋设深度、原材料要求等,如设计没提出要求则拉结钢筋植入深度应≥10d;孔内灰尘要清理干净(可用空压机);植筋注胶需采用专用工具(一般为手持式自动压力灌浆器),拉结筋缓缓旋转插入植筋孔,边插入边沿一定方向转动多次,以使植筋胶与拉接结筋和混凝土孔壁表面粘结牢实,并按要求进行钢筋拉拔检验,确保钢筋锚固质量。
(3)墙长超过 4m 时需设置钢筋混凝土构造柱;墙高超过 4m 时,墙体半高宜设置与柱连接且沿墙全长贯通的钢筋混凝土水平系梁。

打孔

植筋

构造柱钢筋安装
20、填充墙砌体排脚砖少于三皮,马牙槎、滚砖施工不规范
防治措施:
(1)墙脚按要求砌筑三皮实心砖。
(2)马牙槎先退后进对称砌筑设置,马牙槎凹凸尺寸不小于 60mm,高度不超过 300mm。
(3)墙顶宜预留 100mm 左右的空隙 14 天后在采用 120 砖横向斜砌滚砖(200 墙可使用配砖),角度一般取 60 度。
21、填充墙砌体搭砌长度不足
防治措施:
(1)错缝搭砌需作统筹安排,按砌块排列图预先确定砌体线范围内分块定尺、画线、排列砌块的方法。
(2)砌块不应用斧头或灰刀随意砍切,蒸压加气混凝土砌块需使用切割机或手锯切割。

人工锯块示意

砌块搭接长度规范
22、灰缝饱满度不够

灰缝饱满度差
防治措施:
(1)砌筑尽可能采用和易性好,掺外加剂的混合砂浆砌筑,以提高灰缝砂浆的饱满度。
(2)水平灰缝的砂浆饱满程度对砌体强度和整体性影响很大,竖向灰缝对砌体抗剪强度影响显著,如果竖向灰缝不饱满,则砌体的抗剪强度将降低 40%-50%.具体措施如下:
①改善砂浆的和易性是确保灰缝砂浆饱满和提高粘结强度的关键;
②改进砌筑方法,应推广"三一砌砖法",又称挤揉法,即"一刀灰、一块砖、一挤揉";
(3)砌筑过程中,应注意检查竖向灰缝饱满,不得出现透明缝、瞎缝和假缝。
(4)立皮数杆砌筑,控制水平灰缝厚度。

灰缝均匀饱满
23、砌体与混凝土结构缝和砌体开槽处开裂

现象
防治措施:
(1)填充墙与承重主体结构间的空(缝)隙部位施工,应在填充墙砌筑 14d 后进行;开槽宜使用锯槽机。
(2)砌体与混凝土结构交界缝隙和砌体开槽线管固定后提前采用 1:2.5 水泥砂浆抹平,后跟内墙同时抹灰。
(3)砌体与混凝土结构交界缝隙、宽为 50mm~100mm 的线槽宜加挂钢板网(或用 1︰1 水泥砂浆内掺水重 20%白乳胶粘贴耐碱玻璃纤维网格布)加强后跟内墙同时抹灰。
(4)线槽深度超过 35mm 分两次抹灰。线槽深度 50mm 以上宜采用细土混凝土填充后,再用 1:2.5 水泥砂浆抹平。
(5)线管外壁与抹灰完成面间距不小于 15mm。
24、地下室底板开裂、渗漏
防治措施:
(1)底板混凝土要一次性浇筑成型,不得中途停止浇筑以免出现冷缝,如底板面积过大需分开浇筑时,可按设计图纸要求利用后浇带作为施工缝;
(2)混凝土浇筑须连贯,混凝土间搭接必须在初凝前完成,以免产生冷缝;
(3)大体积混凝土在施工及养护过程中,须采取适当措施以防止出现温差裂缝;
(4)泵送大体积混凝土表面水泥浆较厚,故浇筑结束后须在初凝前用铁滚筒碾压数遍,并打磨压实,防止混凝土表面出现收缩裂缝;
(5)可采取在后浇带处预留企口槽或采用预埋止水钢板和止水条的方法避免该处渗漏;
(6)混凝土浇筑前做好降水措施,地下水位应降至底板以下 500mm;
(7)底板外防水层应选用质量合格的防水材料;防水层接头的搭接长度及搭接方法应符合施工工艺要求;底板施工时应做好外防水层的成品保护。
25、地下室后浇带渗漏

地下室底板开裂
防治措施:
(1)逢源未做企口带也没有安装遇水膨胀止水条(胶)的,应粘贴外贴式止水带,止水带粘贴后,混凝土浇筑前,应避免雨水和其他水浸泡;浇筑混凝土时,湿模一段,浇筑一段;
(2)后浇带两侧宜用木模封缝,尽量减少混凝土水泥浆流失;后浇带部位未施工之前应做好防护措施,以免污水及杂物进入;
(3)浇筑混凝土前,应将后浇带两侧的接缝表面浮浆和杂物清除,然后铺设净桨或涂刷混凝土界面处理剂、水泥渗透结晶型防水涂料等材料,再铺 30~50mm 厚的 1:1 水泥砂浆,并应及时浇筑混凝土;
(4)采用掺膨胀剂的补偿收缩混凝土,膨胀剂掺量不宜大于 12%,坍落度按 160~180mm 控制(泵送混凝土),水中养护 14d 后的限制膨胀率不应小于 0.015%,膨胀剂的掺量应根据不同部位的限制膨胀率设定值经试验确定;
(5)混凝土浇筑后应及时养护,养护时间不得少于 28d;拆模后,在迎水面做附加防水层和护墙。

预防控制措施效果
26、厨房、卫生间、阳台、屋面排水不畅、积水

防治措施:
(1)卫生间楼板排水管周围混凝土时,先剔净楼板预留管洞混凝土软弱层,用水清水充洗湿润,若排水管周间隙在 30mm 内时,在预留洞周围结构混凝土上刷水泥素浆一道,用掺防水剂的 1︰2 略硬水泥砂浆捣塞密实;若管周围间隙大于 30mm 时,刷一道水泥素浆,用 1:2:4 混凝土捣塞密实。
(2)应把卫生间防水层和铝塑管、PP-R 管的成品保护作为一件重中之重工作。防水层施工后,水暖班组、室内装修、室外装修班组、电气班组负防水层成品保护责任;室内装修班组、室外装修班组、电气班组负水暖管道成品保护责任,室内装修班组要提高防水保护层施工质量(并且防水基层的管根不能抬的过高),保护层抹压密实,门槛、管根、墙边楼面较高处细部抹压到位。
(3)抹防水基层前,楼面结构上的污物,浮尘,浮浆要剔凿干净;找平层砂浆稠度适中,不能过稀,抹压成面时,保证在水泥终凝前完成,防水防水基层起砂;防水基层过薄处使用聚合物胶灰时,要清净基层后,套一遍胶灰,防水基层操作完 24 小时后要浇水养护到位。
27、地漏渗漏
防治措施:
在做水泥砂浆防水层前,把地漏管跟修整做为一道工序,检验地漏、穿墙套管有无破坏,有无超高,发现问题及时进行维修。地漏周边有无铁丝未从跟部剪掉,地漏周边堵洞是否堵好,修整合格后与附墙管槽一并验收。
28、管根渗漏

套管与结构板根部未封堵

套管未封堵
防治措施:
(1)有隔墙板的部位,浇筑卫生间隔墙板前,要固定好套管位置和标高,套管与套管间要有 30mm 以上间隙,套管入卫生间内墙皮要回退 10mm(做防水基层时将此处做成凹槽或喇叭口);
(2)浇筑卫生间导墙时,套管周围要用瓦刀捣实;
(3)隔墙板处安放套管位置标高安放正确,套管与隔墙板间隙堵塞密实;
(4)主体结构预留套管,其位置标高要留正确。做防水基层前,要将此处再检查一遍,套管有无遗漏;
(5)靠卫生间内一侧的套管周边要留 15×10mm 的凹槽或做成喇叭口;
(6)贴卫生间地砖时,要将套管处甩一块砖,待暖气安装合格后,将套管周边用防水油膏将其封堵密实;最后闭水不漏才能封地砖。
29、女儿墙根部漏水

女儿墙根部漏水
防治措施:
(1)施工屋面找平层和刚性防水层时,在女儿墙交接处应留 30mm的分格缝,缝中嵌填柔性密封膏;
(2)女儿墙根部的阴角粉成圆弧,女儿墙高度大于 800mm 时,要留凹槽,卷材端部应裁齐压入预留凹槽内,钉牢后用水泥砂浆或密封材料将凹槽嵌填严实。女儿墙高度低于 800mm 时,卷材端头直接铺贴到女儿墙顶面,再做钢筋混凝土压顶。
30、屋面泛水处开裂、渗漏
防治措施:
(1)宜在屋面女儿墙设一道钢筋混凝土反梁,梁面高于屋面的完成面 150mm,梁宽与女儿墙厚度相等,反梁与屋面板同时浇筑;
(2)屋面与女儿墙交接处做圆弧;
1)防水层往女儿墙墙身做高≥250mm;
2)离女儿墙面 200mm 处在找平层及面层留全长伸缩缝;
3)距女儿墙面 200mm 处留全长伸缩缝时,应避免伸缩缝留在排水沟内;
(3)防水施工前,应周密计算屋面各层的厚度,并根据屋面的坡度,计算女儿墙、管道根部、门槛等部位的泛水的最低高度。防水施工时,避免泛水的高度低于规范要求。
31、卷材防水层起鼓、粘结不牢

防水卷材粘贴不牢固
防治措施:
(1)找平层应平整;
(2)卷材铺贴前,应认真清理基层,清扫浮灰、杂质等;
(3)找平层应干燥,可用简易办法检验,将 1m²材料平坦的干铺于找平层上,静置 3~4h 后掀开,覆盖部位与卷材上均未见水即可;
(4)不在雨、雪、雾天等施工;
(5)胶粘剂的涂刷应均匀一致,不得过厚或者过薄,当用热玛蒂脂时,其涂刷厚度宜为 1~1.5 ㎜,用冷玛蒂脂时,其涂刷厚度宜为 0.5~1 ㎜。当采用其他胶粘剂时,应根据其性能确定好涂刷与铺贴的间隔时间,不得过早或过晚;
(6)卷材铺贴时,必须抹除下面的空气,滚压密实。也可采用条粘、点粘、空铺的方法,确保排气道畅通;
(7))有保温层的卷材防水屋面工程,必须设置纵横贯通的排气槽和穿出防水层的排气井。
32、楼板裂缝

楼板开裂
防治措施:
楼面裂缝常见分两类:一类是预理线管及线管集散处,另一类为施工中周转材料临时较集中和较频繁的吊装卸料堆放区域。
(1)模板和支撑的选用必须经过计算,除满足强度要求外,还必须有足够的刚度和稳定性。施工时严格按方案要求搭设,不得随意加大立杆间距。板下背楞铺设应均匀。拆模时,混凝土强度应满足施工规范要求后方可拆模。
(2)严格控制现浇板的厚度和现浇板中钢筋保护层的厚度。同时,楼板、屋面混凝土浇筑前,必须搭设可靠的施工平台、走道,确保钢筋位置符合要求。
(3)楼板内敷设电线管应避免交叉,必须交叉时宜采用接线盒形式。
严禁三层及三层以上管线交错叠放。必要时宜在管线处增设钢丝网等加强措施;
(4)现场浇捣混凝土时,防止振捣或插入不当,漏振、过振或振捣棒抽撤过快,以免影响混凝土的密实性和均匀性,诱导裂缝的产生。在混凝土初凝前应进行 2 次振捣,在混凝土终凝前进行 2-4 次压抹,宜采用机械磨光机磨平。混凝土浇筑完毕后的 12h 以内,对混凝土加以覆盖和保湿养护,养护时间不得少于 14d,防止混凝土内部温度过高、内外温差过大及早期脱水产生裂缝;
(5)现浇板养护期间,当混凝土强度小于 1.2MPa 时,不得进行后续施工。混凝土强度小于 10 MPa 时,不应在现浇板上吊运、集中堆放重物;吊运、堆放重物时应采取相应措施,以减轻对现浇板的冲击影响。
33、地面花岗岩、地砖板面空鼓

地面平整、观感质量佳、无空鼓
防治措施:
(1)基层应彻底处理干净,并用水冲洗干净,然后晾至没有积水为止;
(2)结合层的砂浆应拍实、揉平、搓毛;
(3)面板铺贴前,应将板面浸泡后晾干,随铺随刷一层水泥浆,定位后,将板块均匀轻击压实;
(4)铺贴时板与板之间留 0.5 ㎜宽缝隙,遇到边、角等局部空鼓时,可用水泥水浆沿缝注水泥浆的方法修理空鼓,避免起砖;
(5)铺贴后 24h 后,散水养护,养护 7d 以上。
34、一般抹灰层空鼓
防治措施:
(1)抹灰前必须将脚手眼、支模孔洞填堵密实,对混凝土表面凸出较大的部分要凿平。
(2)必须将底层、基层表面清理干净,并于施工前一天将准备抹灰的面浇水润湿。
(3)对表面较光滑的混凝土表面,抹底灰前应先凿毛,或掺 107 胶水泥浆,或用界面处理剂处理。
(4)抹灰层之间的材料强度要接近。
35、抹灰层裂缝
防治措施:
(1)抹灰用的材料必须符合质量要求,例如水泥的强度与安定性应符合标准;砂不能过细,宜采用中砂,含泥量不大于 3%;白灰要熟透,过滤要认真。
(2)基层要分层抹灰,一次抹灰不能厚;各层抹灰间隔时间要视材料与气温不同而合理选定。
(3)为防止窗台中间或窗角裂缝,一般可在底层窗台设一道钢筋混凝土梁。
(4)夏季要避免在日光曝晒下进行抹灰,对重要部位与曝晒的部分应在抹灰后的第二天洒水养护 7d。
(5)对基层由两种以上材料组合拼接部位,在抹灰前应视材料情况,采用贴耐碱网格布、钉钢丝网等方法处理。
(6)对抹灰面积较大的墙、柱、檐口等,要设置分格缝,以防抹灰面积过大而引起收缩裂缝。
36、分格缝不规范
防治措施:
(1)分格条材料要选好,少用木条,宜用塑料条与玻璃条;条子必须顺直,厚度与宽度统一(一般厚为 3~5mm,宽为 12~20mm),下部应割角。
(2)对墙、柱要拉通线,弹出横向水平分格线或竖向垂直分格线;水平分格条一般应粘(贴)在水平线下边,垂直分格条应粘在垂直线右侧;分格条起点与终点上下左右应一致。
(3)分格条有固定分格条与取出分格条两种,玻璃条与凹形塑料条为固定不取出的分格条。
(4)分格条取出的时间与方法一般有两种:一是分格条用水泥砂浆固定后,待砂浆
达到一定强度后才能取出分格条;二是分格条用水泥砂浆固定后,当天就抹面层(抹罩面灰),等压光或蟹毛后,应将分格条上水泥砂浆清刷干净,即可取出分格条。
(5)分格缝(指取出分格条)必须用水泥浆嵌密实;刷黑漆时,应用美术笔将缝底涂黑,不能污染缝边,否则会产生视觉差,似乎分格缝不平直。

37、滴水线不标准
防治措施:
(1)雨蓬、檐口、阳台、上窗套、窗台下等边缘部位必须做滴水线。
(2)滴水线形式大致可分为四类(种):一类为凹形;二类为凸形,这两种滴水线其高(深)与宽均应大于或等于 10mm,且距外边缘大于或等于 20mm;三类为台阶形,宽度为 20~50mm,厚度为 10~20mm;四类为鹰嘴形,其高(厚)大于或等于 15mm,宽(长)大于或等于 30mm。
(3)各类滴水线必须用水泥砂浆(1:2.5 或 1:2)分层抹灰,压光密实,线条顺直,根部清晰光洁。


滴水线标准
38、窗框渗水,密封质量不好
防治措施:
(1)在窗中横框处应装挡水板,横竖框的相交部位,应注上硅酮密封胶,外露螺丝头也应在其上面注一层密封胶;按设计要求选择密封材料。
(2)窗框与饰面交接处不密实部位注一层硅酮密封胶,安窗框时,窗框与结构间的间隙应填塞密实。
(3)窗台面应外倾排水,外倾高差不小于 30mm,窗台面饰面层不应高于窗框泄水孔。上窗楣做成鹰嘴形或滴水槽。
(4)为使窗框内积水尽快排除,门窗下框槽口应钻 4mm×20mm 平底泄水孔,其间距宜 600mm 左右。通过小孔将水排向室外。
(5)施工中脱落的橡胶条应及时补上,用橡胶条密封的窗肩应在转角部位注胶,使其粘结,窗外侧的密封材料宜使用整体的硅酮密封胶。

窗框密封质量好、不渗水
39、干挂大理石或花岗岩固定不牢固;接缝不平整,嵌缝不密实、不均匀、不平直。
防治措施:
(1)干挂大理石或花岗岩前,应事先在基层按规定预埋铁件;
(2)根据干挂板材的规格大小,选定竖向与横向组成钢构架的规格与质量,例如:25mm×600mm×1200mm的板材,可选竖向用 6~8号槽钢,横向用 3~4 号角钢,竖向按 1200mm 分格,横向按 600mm分格;
(3)板材上、下两端应准确切割连接槽两条,并分别安装不锈钢挂件与其连接;
(4)严格按打胶工艺嵌实密封胶。
40、屋面积水、排水坡度不足,落水口部位排水不顺畅
防治措施:
(1)找平层施工前要做好技术交底,并根据水落口位置确定好排水走向,测量和确定最高点标高和水落口的标高的控制点设置施工标志;
(2)从结构工程施工开始,施工中应严格控制水落口施工标高,防止水落口标高过高;
(3)水平过水孔使用圆管的,管底应比完成面低 5~10mm,保证出水顺畅,并根据水落口位置确定好排水走向,确定最高位置标高和水落口标高的控制点设置施工标志。
41、套管安装质量常见问题未按要求设置套管或套管设置不规范
防治措施:
穿楼板和墙体管道安装时必须按要求加设套管,套管要参照规范要求和土建完成面做法确定其预制长度。安装在墙壁内的套管其两端与饰面相平;安装在楼板内的套管,其顶部高出装饰地面 20mm; 安装在卫生间及厨房内的套管,其顶部高出装饰地面 50mm,底部应与楼板底面相平,套管周围用细实混凝土填充密实、养护到位,无渗漏。外露套管部分刷漆防腐、套管与管道之间缝隙宜采用阻燃密实材料填充,且端面应光滑。成排管道的套管还要做到整齐划一。套管安装平直,排水管居中。


穿板套管安装规范
42、屋面通气管套管安装不规范
防治措施:
出屋面套管的长度,要参照屋面做法厚度并按规范要求预制,套管周围用细实混凝土填充密实、养护到位,无渗漏。外露套管部分刷漆防腐、套管与管道之间缝隙宜采用阻燃密实材料填充,且端面应光滑。套管安装平直,通气管居中。上人屋面的金属通气管出屋面较高,结构预留套管时应留设避雷用圆钢。

屋面的通气管套管安装规范
43、管道支架安装间距过大,管道局部"塌腰"
防治措施:
(1)支架安装前应根据管道设计坡度和起点标高,算出中间点、终点标高,弹好线,根据管径、管道保温情况,按"墙不作架、托稳转角,中间等分,不超最大"原则。
(2)支架安装必须保证标高、坡度正确,平正牢固,与管道接触紧密,不得有扭斜、翘曲现象;弯曲的管道,安装前需调直。
(3)安装后管道产生"塌腰",应拆除"塌腰"管道,增设支架,使其符合设计要求。


管道支架间距安装均匀
44、阀门支架缺失,可能导致爆管
防治措施:
水平管道阀门两端必须设置固定支架,起到固定保护作用。

规范安装
45、埋地给水管漏水
防治措施:
(1)必须选用合格管材、器具及配件;如果有预制管段、管件,应妥善保管,防止损坏、破裂导致渗漏。
(2)截管时,切口必须平齐,并要清掉毛刺、飞边、熔渣,一旦产生缩径,必须进行扩径。
(3)管道安装接口必须牢固、严密。管道连接采用螺纹连接,套制螺纹质量的好坏与管道连接的牢固性和严密性有直接关系,套丝必须规整,并且无断丝、缺丝等缺陷;给水管道上安装直径大于 50mm 的阀门时,均采用法兰连接;安装时,对口法兰应平行,间隙要均匀,垫片要平整,并且不能突入管内,也不许用双垫调整 法兰间隙,紧固螺栓时,要十字交叉对称进行,不可一次将一螺栓拧死,紧固压力要分布均匀。
(4)埋地给水管安装完毕,必须进行水压实验,实验合格后再涂刷防腐涂料,然后才准许使用。
(5)隐蔽管接头做好保护,回填土基层必须夯实处理,并做好埋地管道保护,保护层不得高于垫层面,回填土时需有人值守,隐蔽后再次做水压实验,如发现不合格和渗漏立马现场处理修复直至合格。

管道压槽深浅一至

管道上上砂浆保封
46、卫生器具安装不牢固
防治措施:
(1)固定用的螺栓,在墙上按核对好的位置预埋平整、牢固。严禁采用后凿墙洞再埋螺栓固定。
(2)卫生器具安装前,应测定标高和位置线,组装的器具要平整、牢固,严禁安装松动的器具。应事先把该部分墙、地面找平,并在墙体划出该器具的上沿水平线和十字交叉中心线,再将卫生器具用水平尺找平后安装;固定用的膨胀螺栓、六角螺栓规格应符合国家标准图的规定,并垫上铅垫或橡胶垫,用螺母拧紧牢固。
(3)安装卫生器具的支托架结构,尺寸应符合国家标准图集要求,有足够刚度和稳定性;器具与支托架间空隙用白水泥砂浆填补饱满、牢固,并抹平正。
(4)在轻质墙上安装固定卫生器具时,尽量采用落地式支架安装,必须在墙上固定时,应事先配合土建对墙体卫生器具安装位置进行局部加固处理后,再用铁件固定或用锚固。
(5)卫生器具与墙面不得有缝隙,如因给排水管道位置位移而酿成的难以消除的缝隙可用白水泥麻刀灰填平。特别在立式小便器安装时尤应注意。


洁具安装牢固、整洁有序
47、管道生锈、油漆未涂
防治措施:
(1)涂漆前必须清除管道和金属结构表面灰尘、铁锈、焊渣、油污、水分等杂物,待露出金属光泽后,及时涂上底漆、面漆,每层涂料厚不小于 30~ 40μm;底漆稍厚,每层涂 40~50μm;油漆种类和涂刷遍数符合设计要求,漆膜附着牢固、光滑均匀、颜色一致,无漏涂、流淌、污染、剥落、起泡、皱纹、掺杂、透绣等缺陷;油漆后各活动部件保持灵活,松紧适度,阀门启闭标记明确、清晰、美观;支、吊、托架的防腐(油漆)处理及颜色符合设计要求,色泽一致,无漏涂。
不污染管道、设备及支撑面。
(2)安装后不便涂漆的管子、散热器、水箱等必须在安装前涂底漆,安装后刷面漆,可用小镜子反照背面,发现漏漆部位及时补涂。
(3)设备、散热器、水箱及管道涂漆应自上而下,自左至右,先内后外进行,刷漆要勤蘸少蘸,用力均匀,防止漏刷和出现针孔;用过氯乙稀漆涂刷时,应沿一个方向一次涂刷,不得往复进行,以防咬底。


管道支架油漆、涂漆均匀、附着良好
48、结构预埋时电管甩口定位不准
防治措施:
结构预埋管道前,先认真熟悉关联电气、结构施工图,明确开关、插座、配电箱等位置,并在施工图上标注预埋坐标尺寸,对班组进行交底,电管隐蔽检查时严格按照事先既定坐标尺寸逐一核对;穿梁线管应事先考虑后期砌墙的位置,根据墙体位置预埋穿梁线管,确保其在后砌墙体内。
49、金属电管敷设前不作防腐处理
防治措施:
(1)金属电管应作防腐处理。当埋于混凝土内时,管外壁可不作防腐处理;直接埋于土层的钢管外壁应涂两遍沥青;采用镀锌管时,镀锌层剥落处应涂防腐漆。
(2)金属管必须在安装敷设前进行防腐处理,以防止敷设后再防腐处理而局部不到位。

混凝土内非镀锌导管敷设
50、预埋电管堵塞
防治措施:
(1)电管敷设前检查管内有无杂物。
(2)电管敷设完毕后应及时将管口进行有效的封堵。不应使用水泥袋、破布、塑料膜等物封堵管口,应采用束节、木塞封口,必要时采用跨接焊封口。箱、盒内管口采用镀锌铁皮封箱。
(3)多弯及长管预穿铁丝或加过线盒以便穿线。
(4)电管预埋隐蔽时仔细检查,混凝土浇灌时派专人值守,土建拆模、砌砖、粉刷装修阶段派专人值守,逐个对敞开管口进行有效封堵,发现破损或堵塞电管及时处理。

箱合管口封堵措施有效
51、电管弯头制作不符合规范要求
防治措施:
(1)电管敷设中弯头超过 3 个(直弯为 2 个)时,必须设置过路箱。电管弯曲施工,弯曲半径不应小于管外径的 6 倍(埋地或埋混凝土的电管则不小于 10 倍),电管弯扁程度不大于电管外径的 10%。
(2)电管施工时严格按照事先既定坐标尺寸安装隐蔽;综合考虑后期砖砌体、配电箱、开关盒、插座盒的位置。就能避免由于结构预埋时电管甩口定位不准,导致电管入墙过深或严重偏离配电箱、插座盒,增加电管转弯,影响穿线。

电管弯头制作规范
52、电管进箱、盒的质量常见问题
防治措施:
(1)电管进箱(盒)应顺直,不应倾斜进箱(盒)。
(2)暗配的厚壁钢管与箱(盒)连接采用焊接,管口宜高出箱 (盒)内壁3~5mm,且焊后应补涂防腐漆。
(3)明配钢管、薄型钢管或暗配镀锌钢管与箱(盒)连接应采用锁紧螺母或护圈帽固定,用锁紧螺母固定的管端螺纹宜外露锁紧螺母 2~3 扣。
另外,采用此类连接方法还应用 φ6 圆钢做电管与箱(盒)间的接地跨接,跨接采用焊接,两侧的焊接长度应不小于 36mm,且进行两面焊接。如镀锌电管接地应采用专用线卡。

电管进线顺直、锁扣完整
53、PVC 电管敷设不牢固或断裂
防治措施:
粘接部位应处理干净,套管内侧及连接管外侧均要将胶合剂除刷均匀,套管长度宜为管外径的 1.5~3 倍,管与管的对口处应位于套管的中心,电管插入后待胶粘剂固化后才能移动连接后的电管;按规范规定的间距设置支吊架固定电管。

PVC 电管专用接头、粘接牢固可靠
54、电缆桥架、支架以及电线保护管的支吊架不符合要求
防治措施 :
(1)所有非镀锌制品的支、吊架,必须先预制、打孔、防腐完毕后方可安装。
(2)支、吊架安装前必须拉线,保证支、吊架的水平、垂直。
(3)应用机械切割和钻孔,必须使用气割下料和开孔,气割后必须磨去所有氧化物,并做防腐保护。

电缆桥架吊架均匀

线管吊架间距均匀、安装端正
55、线头无号牌或号牌字迹不清晰
防治措施:
使用专用号牌或用 E 型管现场加工号牌,下料应力求长短一致,使用不退色的标记笔书写标记号。

线头号牌字迹清晰
56、灯具安装质量差,固定不牢固
防治措施:
(1)悬吊灯具的支吊物应与吊灯重量相配,重量超过 3kg 时,应预埋吊钩或螺栓;成排吊灯在安装好后应拉线调整吊灯高度
(2)成排灯具安装前应先拉线定位,避开吊顶龙骨,中心偏差不大于5mm。
(3)灯具应固定在专设的框架上,开孔不能过大,固定灯罩的边框边缘应紧贴在顶棚上。

灯具安装居中,紧贴饰面
57、风管总管与支管连接质量差
防治措施:
(1)首先在总管上准确划线开孔。
(2)支管一端口伸入总管开孔处应垂直。
(3)相接时,咬口翻边宽度应相等,咬口受力均匀。

风管连接垂直,衔接严密
58、风管柔性接管及法兰垫片材料不符合要求
防治措施:
(1)根据风管两端口间距尺寸调整好柔性接管长度。
(2)对所使用的法兰垫片、柔性接管材料的质量进行严格的控制,所采用的必须是不燃材料,查验质量合格证明文件、产品检验报告,必要时进行点燃试验。

法兰垫片、柔性接管不燃材料
加入我们
投稿展示或者分享资料
一起交流一起成长
扫一扫下方二维码,灵感即刻进发
小编微信:colin-1209;
小编QQ:972206440;
QQ交流群:343778875;
![]()


