
一、 做法与特点
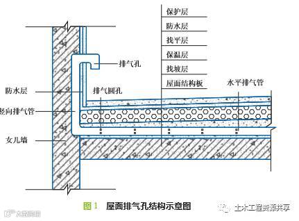
屋面暗设排气孔做法,此做法中屋面排气系统包括均敷设于屋 面内的多道纵横向水平排气管,纵向水平排气管与横向水平排气管 垂直布设,且内部相互连通,构成一个排气管网,同一方向相邻两道 水平排气管的间距不大于6 m。水平排气管上布设多组排气圆孔。 每道水平排气管的两端均与一根竖向排气管相接,竖向排气管埋设 于女儿墙内,竖向排气管上端连接排气弯头,使管道与大气相通。水 平排气管与竖向排气管均为 PVC 管,管径为 50 mm左右。 本施工做法步骤简单、设计合理且屋面排气系统的使用效果好, 能解决现有排气孔明设方式存在易封堵、易损坏、排气不畅、排气效 果较差等问题。屋面整体效果更加美观,同时避免了屋面排气管二 次封堵不严而造成的屋面渗漏现象。
二、 施工工艺流程
1.具体做法
(1) 测量放线。对屋面排气系统中横向水平排气管及纵向水平 排气管的布设位置分别进行测量放线,纵横向水平排气管相互垂直、贯通,同一方向相邻两道水平排气管的间距不大于6 m。根据测量 放线结果确定竖向排气管的布设位置和布设数量。水平排气管与竖 向排气管均为 PVC 管,管径为 50 mm左右。
(2) 竖向排气管预埋。女儿墙钢筋绑扎后,在相应位置绑扎固 定好竖向排气管,竖向排气管上下两端均连接直接弯头,方便与水平 排气管连接。浇筑混凝土,完成竖向排气管的预埋工作。
(3) 水平排气管定位安装。按照测量放线位置将水平排气管敷 设于找坡层内。纵横向水平管通过多个四通管连接,形成一个贯通 的排气管网。水平排气管上沿圆周方向布设排气圆孔,排气圆孔直 径为5 mm ~ 8 mm,相邻两组排气圆孔间距为10 cm 左右,为防止 排气圆孔在施工过程中被堵塞,可在排气圆孔外侧缠绕一圈密目网 格布。
(4) 水平排气管与竖向排气管密封连接。将水平排气管的两端 与相对应的竖向排气管通过直角弯头密封连接。女儿墙排气孔处做 好防水处理,防水层高度不低于屋面完成面300 mm。为防止雨水等 流入竖向排气管,在竖向排气管的排气口处密封连接直角弯头,使出 气口向下。
2. 附图







