
实测实量是确保工程质量, 加强工程管理的重要手段, 以漫画形式形象生动的讲解这一过程, 今天就分享给大家......

01
总则
☀取样原则

02
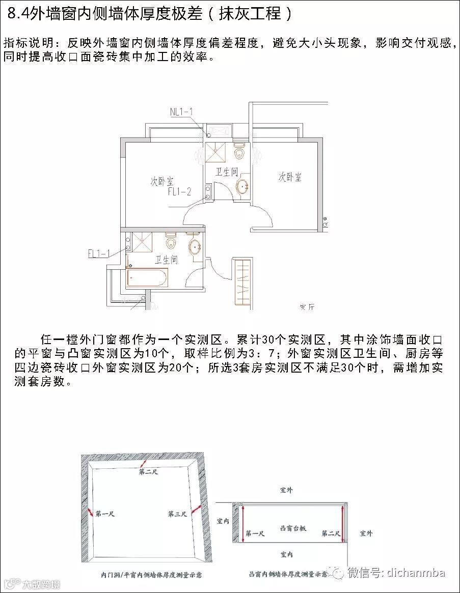
实测实量尺寸控制




















































03
定尺加工尺寸控制
























04
质量观感控制






















































05
防渗漏




















06
防空鼓、开裂






18.2内墙防开裂节点(砌筑工程)























18.8.裂缝/空鼓(墙面饰面砖工程)

实测区与合格率计算点:所选户型内有饰面砖墙面的厨房、卫 生间等每一自然间作为1个实测区。所选套房内所有墙体全检。累计 实测实量10个实测区。1个实测区的实测值作为1个实测合格率计算 点。所选2套房的实测区不满足10个时,需增加实测套房数。
数据记录:所选同一实测区只要发现有1条裂缝或通过空鼓锤敲 击发现有1处空鼓就可以认为该实测区的1个实测点不合格。反之,则 该实测区1个实测点为合格。不合格点均按“1”记录,合格点均按 “0”记录。

18.9.裂缝/空鼓(地面饰面砖工程)

指标说明:反映户厨房、卫生间、走道等地面饰面砖工程裂缝/空 鼓的程度。
18.9 裂缝/空鼓(地面饰面砖工程)

实测时,厨房和卫生间户内墙面测量部位需完成贴砖工程。同一实测区通过目测、空鼓锤敲击方式,检查是否符合合格标准。
18.9裂缝/空鼓(地面饰面砖工程)


来源:房地产精英讲堂
如需侵权,请联系删除

加入我们
投稿展示或者分享资料
一起交流一起成长
扫一扫下方二维码,灵感即刻进发
小编微信:TomuArc;
小编QQ:972206440;
QQ交流群:343778875;
需要购买一建、二建、监理、消防、造价等教材、VIP课程、加密锁(广联达、斯维尔等)、资料软件(筑业、品茗、恒智天成等)、zhulong网课的朋友,请猛戳阅读原文购买!!!!
![]()


