
模板工程质量控制
第一节 墙柱模板(放线)
1、由施工员测放控制线,并经相关人员复核,严禁直接交由班组测放。
2、根据控制线放出200mm模板控制线。
3、最后放出模板定位线。
4、离转角100mm弹大角垂直控制线。

柱模板控制线

剪力墙模板控制线
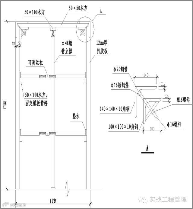
第一节 墙柱模板(加固)
墙模板加固通用要求
1、严格按照施工方案安装穿墙螺杆。
2、螺杆直径≥Ф12,并采用配套的螺帽和3型卡。
3、模板拼缝处要贴海绵条并用木方压实,木方间距200mm并符合方案要求。
4、螺杆一般设置:加固螺杆纵横间距600mm(应满足方案要求);
5、离地200mm设置第一道螺杆,离板底200mm设置一道螺杆,下面2-3排要用双螺帽(根据实际需要并应满足方案要求) 。点这免费下载施工技术资料
6、为防止根部漏浆形成烂根,采用砂浆将模板底部进行封闭。

墙配模剖面图

墙配模平面图
第一节 墙(柱)模板(加固效果)

模板加固

加固效果

加固效果

加固效果

加固示意图
第一节 墙柱模板(接茬工艺)
1、墙柱接茬位置模板应伸至接缝以下螺杆上,为防止漏浆,接缝位置采用双面胶条封堵,墙柱根部用水泥砂浆封堵模板。
2、当采用下层已有对拉螺杆洞对拉加固时,其距接缝位置应小于300mm;当采用预埋锁脚螺杆时,其距接缝位置150mm。点这免费下载施工技术资料
3、两种方法螺杆水平间距均为600mm,满足相应的专项施工方案。

墙预埋锁脚螺杆

利用下层已有对拉螺杆洞加固
第一节 墙柱模板(接茬、板面接缝)
1、梁板柱分开浇筑的柱面浇筑标高必须严格控制,其收口要平齐。
2、为保证柱接茬密实,其接缝位置必须在浇筑混凝土前将浮浆凿除。

柱接茬位置

楼板面接缝

楼板面接缝封堵
第二节 梁模板
梁模板加固通用要求:
1、严格按照施工方案安装穿梁螺杆(当梁高小于500mm时,可采用短木方或小块层板于梁中部加撑,外边梁需用螺杆加固)。
2、模板拼缝处要贴海绵条并用木方压实。
3、根据构件截面尺寸进行模板设计,一般内楞采用木方,间距200mm并符合方案要求,外楞采用木方或钢管,如采用钢管使用双钢管,穿梁螺杆紧固,螺杆直径≥ Ф12(根据方案要求),并采用配套的螺帽和3型卡。
4、梁底支撑体系满足方案要求,梁板模板应分开编制施工方案(分转换层、标准层、普通地下室),转换层方案须作专家论证。

标准层模板支撑体系
第三节 梁柱接头模板
1、采用层板定型加工制作,严格控制加工尺寸。
2、阴阳角模板制作加固同墙柱模板。

梁柱接头模板支设

梁柱接头模板支设
第四节 楼梯模板
1、模板必须每层清理干净并刷脱模剂。
2、封闭式模板在楼梯踏步的中间部位预留孔洞,方便振捣混凝土,避免气泡存积。
3、模板拼装接缝需平整严密,以防止漏浆。
4、敞开式模板定位和固定木方不得少于两排。
5、楼梯宜采用封闭式模板,当使用敞开式模板时必须加固牢固,控制好每部踏步高度及宽度,保证砼成型效果。

封闭式楼梯模板

敞开式楼梯模板
第五节 洞口模板(一)
1、模板阴角处可用L150×150×6的角钢与木模固定,阳角处用L75×75×6的角钢与木模固定,同时洞口模板内部加支撑,保证洞口的位置及尺寸准确,模板应易拼拆、刚度好、支撑牢、不变形、不移位。
2、洞口模板侧面加贴海绵条防止漏浆,浇筑混凝土时从洞口两侧同时浇筑,避免洞口模偏位。

洞口模板加固

墙洞口加固平面图
第五节 洞口模板(二)
1、螺杆间距设置同墙柱模板加固要求。
2、水平钢管加固贯通洞口两侧。
3、对顶采用钢管结合可调顶托配合使用。

电梯控制开关盒洞口

电梯控制开关盒洞口

加固后效果
第六节 高低跨模板
1、卫生间、阳台等降3-5cm板处,采用1mm厚方钢焊接成定型模板,在板筋绑扎完成后安装固定,每次安装前敲掉砼残渣后刷脱模剂。
2、高低跨吊模处,严禁使用砖块、木方穿底做临时支撑,应用预制砂浆垫块,以减小渗漏隐患。

成型方钢模板

安装后效果
第七节 模板支撑系统

模板支撑系统

立杆底座垫块
第八节 质量检查
1、模板垂直度偏差及偏位应满足规范的要求。
2、螺杆位置及间距符合方案设计要求。
3、螺帽紧固力矩必须满足40-65N*m(每个项目部可配一把力矩扳手检查)。

模板垂直度检查(1)

模板垂直度检查(2)

螺栓紧固检查
第九节 质量保证措施
1、模板的接缝不应漏浆;在浇筑混凝土前,木模板应浇水湿润,但模板内不应有积水。
2、模板与混凝土的接触面应清理干净并涂刷隔离剂。
3、柱、墙模板底部设置清扫、检查口,有利于清理及检查柱、墙内垃圾杂物,保证柱、墙根部混凝土的质量。

涂刷脱模剂

预留清扫口
第十节 模板成型质量

安装完成后的模板(一)

安装完成后的模板(二)
第二章 钢筋工程质量控制
说明:所有钢筋制作及安装必须满足施工规范 图纸、选用平法图集、钢筋排布图集的要求。
第一节 墙、柱钢筋要求:
1、墙柱水平筋端头绑扎牢固。
2、剪力墙竖向钢筋顶部弯折水平段≥12d,并保证锚固长度(从板底算起)。
3、端部有暗柱时剪力墙水平钢筋端部弯折水平段直钩为15d,一字柱时为10d;当水平筋为一级钢时加设3d长的180度弯钩,当为普通剪力墙时,水平筋置于竖向筋外侧(与暗柱箍筋在同一层面,伸至暗柱最外侧纵筋内侧直钩“扎进”暗柱内);当为地下室挡土墙及人防墙时水平筋置于竖向筋内侧。
4、框架节点核心区内均必须设置加密箍筋。抗震设防要求的,必须按施工图设计文件中的要求配置复合箍筋,不得随意减少。

墙筋收头要求

梁柱节点核心区箍筋

挡土剪力墙钢筋及垫块
第二节 梁钢筋安装
1、梁上部纵向钢筋的最小净距(即钢筋外边缘之间的最小距离),不应小于30mm和1.5d;各排钢筋之间及底筋的净距及梁底部纵筋间距不应小于25mm和d。
2、吊筋弯起段应伸至梁上纵筋处,并且加水平段20d,弯起角度当主梁高≤800mm为45度,>800mm时为60度。
3、主次梁相交处设置加密箍筋时,应在主梁上次梁两侧分别设置,每侧不少于3个(按设计要求),核心区箍筋不得漏设。
4、当梁的腹板高度hw≥450mm时,在梁的两个侧面沿梁高度范围内配置侧面纵向构造钢筋。

吊筋和侧面构造钢筋

梁上部纵向钢筋

主次梁交接处加密箍筋
第三节 板钢筋安装
1、为了保证楼面钢筋排布均匀,间距符合设计尺寸,在板底钢筋绑扎前,模板上进行划线控制。
2、钢筋马凳设置于两层板筋之间,脚部不得直接搁置在模板上,防止露筋后锈蚀影响结构质量。安装时可先行固定在下层板筋之上,以免安装不到位,有条件最好采用塑料或砼成品垫块。
3、钢筋绑扎应确保控制钢筋不位移。

板筋安装成形效果

弹线控制

弹线控制

定型化加工

弯钩尺寸要求

定型模具
第五节 钢筋焊接
焊接接头:
1、电渣焊钢筋轴心位移不超过0.1d, ≤2mm;气压焊轴心位移不超过0.2d, ≤ 4mm;墩粗最小直径不小于1.4d,墩长不小于1.2d;焊接钢筋直径差不宜大于7mm(两级别)。
2、接头处的弯折角不大于4°。
3、同一截面焊接接头不得大于50%。

接头焊包
电弧焊缝:
1、焊缝均匀饱满,不得有气孔等。
2、焊接过程应及时清除焊渣,检查焊缝如有不符合要求的及时补焊。
3、焊接长度需满足规范要求。

电弧焊缝
第六节 直螺纹套筒连接
1、钢筋切头整齐,不得倾斜或弯曲。点这免费下载施工技术资料
2、连接完毕后,连接套筒外露有效螺纹,单边不得超2p(p为螺纹螺距)。
3、接头应充分拧紧(可采用水管钳或特制工具检查)。

钢筋切头平直整齐


有效螺纹不得超2p 外露有效螺纹
外露有效螺纹
1、为保证钢筋的排距以及钢筋的保护层厚度,宜在墙体中设置定位卡具或焊接短钢筋支撑。
2、钢筋定位卡具采用Φ12钢筋和φ6钢筋制作,卡具采用“双F型”(在施工地区能购买的条件下也可购买砂浆预制内衬替代,但须能满足钢筋保护层尺寸的要求),在墙体中间隔600梅花形布置。
3、绑扎前,清理砼污染钢筋,结合所放墙外边线,校正立筋,如有位移较大时须特殊处理,再进行绑扎。
4、墙筋应逐点绑扎牢固,绑扎时相邻绑扎点的铁丝扣成八字形,以免钢筋网歪斜变形。钢筋锚固长度、搭接长度及接头错开要求应符合设计及规范的要求。
5、人防墙及作地下室挡土的剪力墙水平筋应置于竖向筋内侧,其他剪力墙水平筋置于竖向筋外侧(与暗柱箍筋在同一层面)。
6、各连接点的抗震箍筋的加密范围和间距,弯钩和直钩要求及锚固长度,均应按设计及抗震规范要求进行绑扎。
7、剪力墙水平分布钢筋的搭接长度、位置、接头百分率应满足规范要求。
8、配合其他工种安装预埋管件、预留洞等,其位置、标高均应符合设计要求。
9、 剪力墙钢筋的锚固及收头按设计要求及规范施工。
10、为保证洞口标高位置正确,在洞口竖筋上划出标高线。洞口要按设计和规范要求绑扎连梁钢筋,锚入墙内长度要符合设计及图集要求。

焊接定位卡具
焊接定位卡具
1、砼浇筑前柱钢筋必须采取有效措施定位(如下所示),避免浇筑完毕后造成钢筋位移现象。

制作尺寸

使用效果
第九节 钢筋保护层
1、砂浆垫块宜选用强度较高的垫块,间距符合规范和设计要求设置。
2、PVC垫块宜选用中部加强的垫块,其安装后卡口应背向模板方向。
3、墙、柱、梁宜采用PVC塑料垫块;板宜采用砂浆或PVC塑料垫块。

底板钢筋垫块设置

第十节 成品保护
1、钢筋按图绑扎成型完工后,将多余的钢筋、扎丝及垃圾清理干净。
2、梁、板绑扎成型后,应铺设跳板,以避免后续工序施工人员踩踏或重物堆置,导致钢筋弯曲变形。
3、浇筑过程中有钢筋工专门护筋,避免墙柱、墙钢筋位移;板筋踩乱,间距及保护层不符要求。

柱筋定位成型效果

铺设跳板
第三章 混凝土工程质量控制
第一节 浇筑准备工作
1、浇筑混凝土前,应清除模板内和钢筋上的垃圾及污染物;木模应浇水润湿,但不得积水,并将缝隙塞严以防漏浆。点这免费下载施工技术资料
2、泵送混凝土必须保证混凝土泵的连续工作;输送管道宜直,转弯宜缓,并有可靠的固定措施;进行泵送前,应预先用水泥砂浆或水泥浆润滑输送管道内壁。
3、对浇筑的部位、砼强度等级、施工缝留置、标高等要求必须交底到位。

固定泵管

泵管固定方法
第二节 混凝土浇筑
1、混凝土运输、浇筑及间歇的全部时间不得超过混凝土初凝时间,当超过时应留置施工缝。
2、混凝土运至浇筑地点时,并核对强度并进行坍落度检测,同时按规定要求留置相应砼试块。
3、控制振动棒振捣质量,振动棒插入点间距控制在500mm内,应避免碰撞钢筋、模板、预埋件等。
4、控制好标高,避免浪费;同时应安排钢筋工及时恢复变形和移位的钢筋。
5、开仓料不得浇筑与柱、墙、梁、大跨度板等重要部位(确保成型砼强度)。

标高控制

塌落度检测
第三节 混凝土收面
1、混凝土浇捣一次成型,板面原浆抹平,终凝前打磨压实。
2、收面时必须压实,并根据公司要求原浆清光或拉毛(为节约成本及砼成型效果)。
3、混凝土面平整度控制在±5mm,有坡度要求的,找坡方向准确坡度满足设计要求。

原浆收光

收面完成效果
第四节 混凝土养护
1、混凝土浇筑完成后12h内进行浇水养护(收面后宜采用塑料薄膜覆盖养护),夏季应增加浇水次数并保证表面湿润,冬季施工应有保温防冻措施(可采用麻袋片、薄膜或彩条布覆盖)。
2、混凝土强度未达要求前,严禁堆载或上人(以不踩起脚印为宜)。

塑料薄膜覆盖

覆盖养护
第五节 施工缝接茬处理
1、楼梯施工缝根据留设位置,用多层板制作梳子板(如图)做模板,再用短钢筋进行加固。
2、在剪力墙、柱浇筑砼前,应将水平施工缝处砼表面凿毛,清除杂物,冲洗干净,保持湿润;在施工缝表面宜铺上一层高标号水泥砂浆,其厚度宜为20~25mm。
3、楼梯施工缝留置在受剪力较小的部位,一般留置在Ln/3(Ln梯段净跨)处,即约第三个踏步处。

墙柱施工缝

楼梯施工缝

板施工缝
第六节 有防水部分的外墙柱螺杆处修补(1)
1、螺杆处理:先将外露螺杆摇断或割断,然后在做防水之前采用防水砂浆先在螺杆端头粉抹(成馒头状)。

处理完成的螺杆处
第六节 螺杆洞内墙修补(2)
一、砂浆抹平(地下室内墙直接在砼面上刮瓷粉的):
1、先将螺杆摇断(略比砼表面凹陷)。
2、采用水泥砂浆抹平(地下室外墙用防水砂浆)。

砂浆封堵

内墙修补效果
第七节 板厚控制
1、为控制非厨房、卫生间、阳台现浇板板厚,采用圆形预制砼块,中心预留Ф10圆孔,然后用扎丝与板筋固定,并在模板上用油漆标记,这即有效保证了板厚,同时为实测实量提供了方便;浇筑砼前必须在柱、墙钢筋上做好楼板面标高控制标记。

预留Ф10圆孔

安装效果
第八节 成品保护
1、混凝土浇筑后,在没有达到设计强度之前严禁在楼板等处集中堆放模板、架料等集中荷载。
2、楼层成品混凝土面上,按作业程序分批进场施工作业材料,分散均匀尽量轻放。混凝土浇筑后,严格控制拆模时间,严禁过早拆除模板,尤其是梁、板等水平构件模板。
3、结构完成后不得随意开槽打洞,在混凝土浇筑前事先做好预留预埋。
4、墙柱角(主要指容易被碰撞的“交通要道”)、楼梯踏步阳角等部位用保护条保护,保护条由模板边角料制作,并涂刷醒目颜色(目的提升形象)。

墙柱保护

楼梯保护
第九节 混凝土试块制作及养护
1、试件成型后,在混凝土初凝前1~2h内须进行抹面,沿模口抹平。
2、成型后带模试件应用湿布或塑料布覆盖,并在20±2℃的室内静置ld(但不得超2d),然后拆模编号。
3、拆模后试件应立即送人工标准养护室养护,试件间应保持10~20mm的距离,并避免直接用水冲淋试件。无标准养护室时,试件可在水温为20±2℃不流动的水中养护。
4、同条件养护拆模时间可与构件的实际拆模时间相同;拆模后,试件仍须保持同条件养护。

试块和试模

同条件试块
第十节 混凝土成型质量要求
1、混凝土结构应达到内实外光、表层平整,菱角方正饱满。
2、墙板阴角、阳角、线、面横平竖直;无蜂窝、麻面,无漏浆、胀模、烂根。
3、施工缝结合严密平整、无夹杂物。
4、混凝土楼板表面平整无痕迹,不得有脚印等。

剪力墙成型质量

梁柱接头成型质量

楼梯斜板成型质量

加入我们
投稿展示或者分享资料
一起交流一起成长
扫一扫下方二维码,灵感即刻进发
小编微信:TomuArc;
小编QQ:972206440;
QQ交流群:343778875;
![]()


