
哪个建筑人不想自己施工的工程被评为优质工程,我在施工的过程中做梦都想干出鲁班奖。想要拿出成绩学习很重要,那就撸起袖子,加油干。

下面我给大家分享一下装修工程工艺工法节选吧‘

1、U型轻钢龙骨吊平顶法。注意,安装罩面板时必须与龙骨连接牢固,平整缝隙均匀,正确。各种预留洞口应该留设正确。

2、U型轻钢龙骨吊平顶法(二)弹线定位应按照设计要求主、次龙骨间距在已弹好的顶棚标高水平线上划分龙骨分档线。

3、卡式龙骨薄吊顶,轻钢骨架未做防腐处理的表面,在各工序安装前必须刷防锈油漆,有防腐处理的表面无需刷防锈油漆。

4、铝合金条形扣板吊顶。严格按照图纸安装边龙骨,四边龙骨贴墙边,所有卡扣,配件位置要精准准确安装牢固。

5、铝合金方形扣板吊顶。铝扣板安装时在装配面积的中间位置垂直次龙骨方向拉一条基准线,对齐基准线向两边安装,安装时轻拿轻放,必须顺着翻边部位顺序将方形板两边轻压,卡进主龙骨后在推紧。

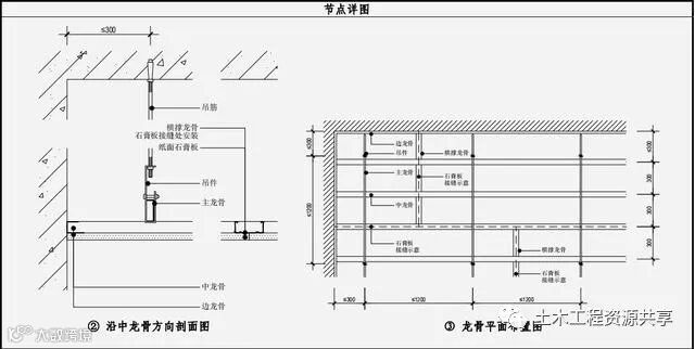
6、灯槽、灯带节点做法。木龙骨六面必须涂刷防火涂料,木龙骨与顶棚固定采用锤击式高度小于等于300涨钉。

7、灯槽、灯带节点做法(二)木龙骨与顶棚固定采用锤击式膨涨钉,与墙面固定采用地板钉,订间距400-500mm。

8、暗藏窗帘箱节点做法。吊筋与吊筋间距小于等于1200mm,吊筋直径为8mm。

9、普通窗帘箱节点做法。

10、普通窗帘箱节点做法(二)

11、吊顶与墙面交接节点做法(一)(二)细木工板基层不与石膏线条接触部位涂刷防火涂料,使用地板钉固定在墙上,木材必须防腐浸泡。

12、吊顶与墙面交接节点做法(三)(四)木龙骨六面涂刷防火涂料,木材必须防腐浸泡。

13、吊顶与墙面交接节点做法(五)(六)

14、吊顶留空做法(一)特别要注意的是防止下方细木工板下坠,引起开裂。一定要做好施工前的准备工作。

15、预留孔洞做法(二)空调风管机侧向风口吊顶高度应该小于等于200mm细木工板里面如上图。

16、预留孔洞做法(三)空调风管机顶面口应做好加固处理,进行技术交底。

17、地坪冲筋做法工艺施工地坪浇筑完成后,在厨卫门口,阳台门口,入户门口进行临时围堵蓄水养护,蓄水养护时间不少于3天。

18、地板木龙骨铺设工艺施工中特别要注意的是地板木龙骨的固定,地板木龙骨的间距调整与控制。

19、干法地暖龙骨开槽方式工艺

20、衣柜与踢脚板收头关系工艺。
好了就给大家分享到这里吧,建筑领域中的各个工程都有自己的特点和方法,我们应该学习创新更方便有效的工艺工法,在满足国家有关规范,技术标准的前提下,提高施工效率,为自己打造优质工程。
1、《土木工程资源共享:那些你不知道的事儿........》规范、图集、施工组织、软件免费下不停;
2、《土木工程资源共享:一个土建类职业快速提升的平台》助你职场人生飞跃发展!!!

加入我们
投稿展示或者分享资料
一起交流一起成长
扫一扫下方二维码,灵感即刻进发
官方微信:TomuArc
官方qq:483972950
官方qq群:343778875
官方微信群需要加官方微信即可进入!
技术交流、资料分享、特权权益服务尽在公众号、微信群、qq群,详情请咨询官方微信和qq!如果群里有其他人向你兜售等不法行为,请千万不要相信上当受骗,请认准我们官方微信和qq!
加入我们,不要偏离组织!!!
点击“阅读原文”,进入官方店铺!



