
创优工程离不开对每个细节的把控。质量安全双保证,还能兼顾经济效益等。这20个细部要点赶紧存起来,用得上。

灌注桩
悬臂式结构桩径不宜小于600mm。排桩顶部应设钢筋混凝土冠梁连接,冠梁宽度(水平方向)不宜小于400mm。排桩与桩顶冠梁的混凝土强度等级宜大于C20;当冠梁作为联系梁时可按构造配筋。
拉锚
孔位允许偏差不大于100mm;偏斜度不大于3%;锚固段强度大于15MPa并达到设计强度75%方可张拉。
基坑内支护
(1)钢结构支撑:钢结构支撑构件的链接可采用焊接或高强螺栓连接;腰梁连接节点宜设置在支撑点的附近,且不应超过支撑间距的1/3;钢腰梁与排桩、地下连续墙之间宜采用不低于C20细石混凝土填充;钢腰梁与钢支撑的连接节点应设加劲板。
(2)钢筋混凝土支撑:构件的混凝土强度等级不应低于C20;支撑体系在同一水平面内应整体浇筑,基坑平面转角处的腰梁连接点应按刚节点设计。内支撑的选型、平面布置、截面、节点连接等均须严格进行具体设计。

地下墙体模板安装
(1)外墙体根部模板。外墙模板制作时,长度比该结构层高尺寸增加50~100mm,模板最下沿通长贴双面海绵胶条,合模前将墙面清理干净。
(2)墙体阴角模板。墙体转角模板必须拼缝严密、顺直,从而保证混凝土的成型质量。
(3)地下墙体定型木模板。墙体模板采用1220mm×2440mm×15mm多层板,根据墙体实际尺寸,确定模板的块数及尺寸。
地上墙体模板
外墙大模板硬架必须按标高水平控制线支设,方木与墙体间用海棉条封堵,防止漏浆。 楼梯间墙体大模板须加高至顶板上平,此处墙体不允许出现两道施工缝。
顶板、梁模板拼装
结构顶板、梁均用15mm厚多层板。施工中各层弹出每个轴跨立杆排向间距线。确保每根立杆的位置自上而下贯通立杆下均应铺设垫木。
顶板主龙骨100mm×100mm的方木间距1200mm,次龙骨50mm×100mm的方木250mm,方木必须双面刨光。梁主龙骨直径48mm钢管,次龙骨50mm×100mm的方木,间距不大于200mm,梁侧模压底模,板底模压梁侧模,梁底模增加一根钢管支撑。在梁端设置一清扫口。楼板模板当采用单块就位时,宜以每个铺设单元从四周先用阴角模板与墙、梁模板连接,然后向中央铺设,L>4m时板模板应起拱L/400,L>1.2m的悬挑板悬挑端起拱L/200,起拱部位为中间起拱,四周不起拱。顶板与墙体交接处采用靠墙木方加海绵条封堵,防止漏浆。

基层处理
(1)对基层平整度存在偏差的部位,对抹灰总厚度不小于35mm的部位进行处理。
(2)在墙体与梁柱交接处设加强措施,可加设钢丝网片,并控制搭接长度不少于200mm。
(3)墙面砌筑砂浆应勾成凹槽缝,增大砂浆与基层的粘结面积。
(4)严密封堵墙上施工孔洞。
(5)清理基层表面尘土、污垢等杂物,并在基层光面处进行打毛处理。完毕后进行洒水湿润。
踢脚
(1)根据已抹好的灰饼充筋作为抹踢脚或墙裙及墙面抹灰的依据,底层抹1:3水泥砂浆。
(2)检测踢脚或墙裙厚度是否符合设计要求,无设计要求时应凸出墙面5~7mm,并确保凸出部位光洁顺直。
(3)踢脚凸出墙面棱角应做成钝角,并清理消除毛茬等质量问题。
护角
(1)墙柱间阳角部位应在墙、柱面抹灰前,用1:2水泥砂浆做护角,高度大于2m。
(2)阳角侧面抹水泥砂浆,抹平处理后按护角宽度清理多余的水泥砂浆。
(3)阳角正面处理同前,并再用素水泥浆涂刷护角尖角处,最后处理成钝角。

防水基层处理
卷材防水屋面的基层与突出屋面的结构(女儿墙、立墙、天沟墙、变形缝、烟囱等)连接处以及基层的转角处(水落口、天沟、檐沟、屋脊等)均应做成圆弧。圆弧半径,对沥青防水卷材为100~150mm;高聚物改性沥青防水卷材为50mm;合成高分子防水卷材为20mm。
天钩、檐沟部位的卷材铺贴
铺贴天钩、檐沟卷材时,宜顺天沟、檐沟方向,减少搭接。卷材(涂膜)防水层在天沟、檐沟与屋面交接处、泛水、阴阳角等部位,应增加卷材(涂膜)附加层。天沟、檐沟与屋面交接处的附加层宜空铺,空铺的宽度为200mm。
地下室外墙水泥基渗透结晶型
涂料防水
施工前15min左右将施工面提前用干净水浇透;刮涂时应用力按刀,使刮刀与被涂面的倾斜角呈50°~60°,按刀要用力均匀。涂层一般刮涂1~2遍,总厚度达0.8mm。刮涂后的防水涂层,必须在初凝前马上用油漆刷蘸水涂刷均匀;防水涂层施工完毕,须采用干净的雾状水喷洒养护。
底板及防水卷材错槎接缝
两幅卷材的搭接长度,长边与短边不应小于100mm。相邻两幅卷材接缝应错开1/3~1/2幅宽,上下两层卷材接缝应错开1500~1600mm,上下层卷材不得相互垂直铺贴。
防水卷材的收头处理
(1)卷材防水屋面的泛水构造为:当墙体为砖墙时,卷材收头可直接铺压设备基础和柱子四周。水泥砂浆面层分格缝间距不应大于1m,细石混凝土面层分格缝间距不应大于3m,保护层采用地砖等块材镶贴时,分格缝间距一般为6m,缝宽20mm,缝内嵌入密封防水材料。
(2)分隔缝嵌缝密实、光滑、无毛刺,分隔缝两侧板块高低差符合规范要求。
(3)女儿墙内侧面墙面抹灰长度超过6m时,设分隔缝。屋面分隔缝和女儿墙分隔缝力求对缝。
(4)檐沟两侧,女儿墙根部要按要求留置分隔缝。出气孔墩四周要设置分隔缝。
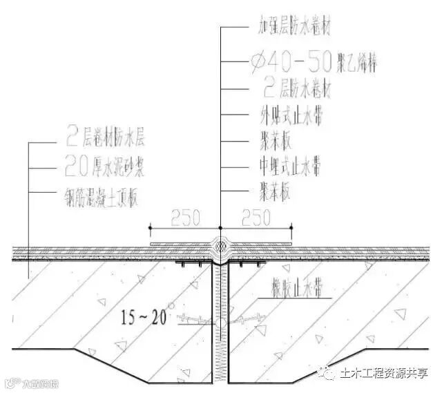
施工缝止水条

在浇筑混凝土时,在施工缝部位埋植30mm×10mm木条,沿墙厚居中留置出宽30mm,深10mm通长凹槽,混凝土接缝前将止水条放入凹槽内,用水泥钉固定。遇水膨胀止水条应具有缓胀性能,7d膨胀率不应大于低膨胀率的60%。
顶板变形缝防水

结构底板变形缝处所用的中埋式橡胶止水带用钢筋卡具将其固定在相应位置,变形缝内贴聚苯板。
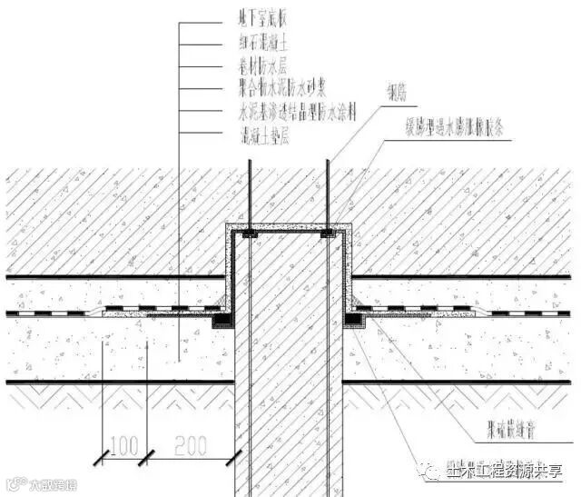
桩头防水

在桩头、桩侧及桩侧外围20mm范围内垫层的表面涂刷水泥基渗透结晶型防水涂料,在桩头根部及桩头钢筋根部凹槽内埋设遇水膨胀橡胶条,在桩顶、桩侧及桩侧外围300mm范围内垫层上表面5mm厚聚合水泥防水砂浆。待基层达到卷材施工条件时进行大面积防水卷材施工,卷材施工完毕后在桩侧与卷材接缝处嵌聚硫嵌缝膏。

钢筋弯钩设置
HPB235级钢筋末端应作180°弯钩,其弯弧内直径不应小于钢筋直径的2.5倍,弯钩的弯后平直部分长度不应小于钢筋直径的3倍;当设计要求钢筋末端需作135 °弯钩时, HPB335级、HPB400级钢筋的弯弧内直径不应小于钢筋直径的4倍,弯钩的弯后平直部分长度应符合设计要求;钢筋作不大于90°的弯折时,弯折处的弯弧内直径不应小于钢筋直径的5倍。
洞口钢筋安装构造
洞口尺寸不小于200mm时,洞口设附加筋,构造加筋、预埋件、电器线管、线盒、预应力筋及其配件等,位置准确,绑扎牢固,需焊接固定部位,不准咬伤受力钢筋。安装电盒时,尽量不切断钢筋,钢筋焊在附加的钢筋上,安装牢固,不得焊在主筋上,且附加钢筋不得焊在受力筋上,应绑扎在主筋上。
穿梁管洞加强筋
当在基础承台梁上开洞时,洞口尺寸不小于高度的1/5,连续开动净距大于4倍洞口直径;当在框架梁上开洞时,洞口尺寸不大于高度的1/5,且不大于150mm,连续开洞净距大于3倍洞口直径。
3、助力2018安全生产月,这100份安全资料合集值得入手(可下载)

加入我们
投稿展示或者分享资料
一起交流一起成长
扫一扫下方二维码,灵感即刻进
官方微信或qq:483972950
官方qq群:343778875
官方微信群需要加官方微信即可进入!
技术交流、资料分享、特权权益服务尽在公众号、微信群、qq群,详情请咨询官方微信和qq!如果群里有其他人向你兜售等不法行为,请千万不要相信上当受骗,请认准我们官方微信和qq!

