
1
修订背景
1、根据“四节一环保”要求,提倡应用高强、高性能钢筋;
2、根据我国钢筋标准的变化对混凝土结构用钢筋的品种进行了调整,涉及部分条文的修改或勘误。
2
主要修订内容
混凝土结构用钢筋应按下列规定选用:
1、将 400MPa、500MPa 级高强热轧带肋钢筋作为纵向受力的主导钢筋推广应用,尤其是梁、柱和斜撑构件的纵向受力配筋应优先采用 400MPa、500MPa 级高强钢筋;
2、淘汰直径 16mm 及以上 335MPa 级热轧带肋钢筋,保留小直径的 HRB335 钢筋,主要用于中、小跨度楼板配筋以及剪力墙的分布钢筋,还可用于构件的箍筋与构造配筋;
3、用 300MPa 级光圆钢筋取代 235MPa 级光圆钢筋,将其规格限于直径 6mm~14mm,主要用于小规格梁柱的箍筋与其他混凝土构件的构造配筋。对既有结构进行再设计时,235MPa级光圆钢筋的设计值仍可按原规范取值;
4、取消 HRBF335 牌号钢筋;
5、箍筋用于抗剪、抗扭及抗冲切设计时,其抗拉强度设计值发挥受到限制(360MPa),不宜采用强度高于 400MPa 级的钢筋。当用于约束混凝土的间接配筋(如连续螺旋配箍或封闭焊接箍等)时,钢筋的高强度可以得到充分发挥,采用 500MPa 级钢筋具有一定的经济效益;
6、局部修订中将 500MPa 级钢筋的抗压强度设计值从 410N/mm2 调整到 435N/mm2,保持与抗拉强度设计值一致;对轴心受压构件,由于受混凝土极限压应变 0.002 的限制,当采用500MPa 级钢筋时,其钢筋的抗压强度设计值取为 400N/mm2;
7、按预应力钢筋抗压强度设计值的取值原则,本次局部修订将预应力螺纹钢的抗压设计强度由 2010 版规范中取值 410MPa 修改为 400MPa;
8、HRB500、HRBF500、HTRB600、CRB600H(高延性冷轧带肋钢筋,用于板、墙类构件)、PC棒(用于约束箍筋)。
高强钢筋的应用,节约了钢筋用量,总体看来,采用 HRB400 级钢筋代替 HRB335 级钢筋的节材比率约为 10%,采用 HRB500 级钢筋代替 HRB335 级钢筋的节约比率约为 20%,采用HRB500 级钢筋代替 HRB400 级钢筋后钢筋用量减少约为 10%,即钢筋强度提高一个级别,钢筋用量减少 10%。
3
平法编制依据及适用范围
区别:
1、新增«中国地震动参数区划图»;
2、依据的混凝土结构设计规范和抗震设计规范均最新修订
3、16G 不适用于砌体结构
11G101:
«混凝土结构设计规范»GB50010-2010
«建筑抗震计规范»GB50011-2010
«高层建筑混凝土结构技术规程»JGJ3-2010
«建筑结构制图标准»GB/T50105-2010
16G101:
«中国地震动参数区划图»GB18306-2015
«混凝土结构设计规范»(2015 年版)GB20010-2010 «建筑抗震计规范»及 2016 年局部修订 GB50011-2010 «建筑结构制图标准»GB/T50105-2010
4
分项对比
16G101-1 部分
1、16G 中用“转换柱(编号 ZHZ)”代替旧图集“框支柱”

2、嵌固部位的注写:16G 中上部嵌固部位注写新增 3 种场景的说明。
①框架柱嵌固部位在基础顶面时无需注明;
②层高表中,双细线表示嵌固部位不在基础顶面时的嵌固部位;
③嵌固部位不在地下室顶板,但仍需要考虑地下室顶板对上部结构实际存在嵌固作用时,可在层高表中使用双虚线表示,此时首层柱端箍筋加密区长度范围及纵筋连接位置均按嵌固部位要求设置。
3、16G 中取消了“非抗震时,当剪力墙厚度大于 160 分布钢筋网片应配置双排”这一条款

4、16G 中新增条款“跨高比不小于 5 的连梁按框架梁设计时,代号为 LLK”

5、16G 中剪力墙拉结筋布置方式变为“矩形或梅花”;旧图集为“双向或梅花双向”

6、16G 中取消了“洞口补强钢筋如果按标准构造详图设置时,可不在平法图中标注”的规定

7、 基本锚固:
①16G 与 11G 基本锚固 lab、labe 相同,但 16G 非抗震和抗震拆成 2 个表;
②16G 没有给出修改系数和计算规则,后面直接给出了锚固搭接表,查表取值相对简单

8、箍筋构造:16G 明确注明“非框架梁以及不考虑地震作用的悬挑梁,箍筋及拉筋弯钩平直段长度可为 5d,当其受扭时,应为 10d”

9、16G 新增拉结筋构造:用于剪力墙分布钢筋的拉结,宜同时勾住外侧水平及竖向分布钢筋,弯钩有两种形式①两侧均为 135°、②一侧 135°,另一侧 90°,且弯钩平直段长度均为 5d

10、16G 中地下一层增加钢筋在嵌固部位的锚固构造:虚线部分表示弯折既可以内侧,也可以外侧弯折;“原基础底面”修改为“基础顶面”

11、梁上柱 LZ 纵筋构造:梁上柱节点,柱纵筋伸入节点内长度和弯折长度发生变化。16G要求伸至梁底且≥20d,≥0.6labE,弯折长度 15d

12、KZ 边柱和角柱柱顶纵向钢筋构造:①附加角筋,11G 是有柱纵筋≥25 时条件才设置,16G 可以理解为必须设置②节点⑤11G 无“且伸至梁底”的要求

13、柱变截面位置纵向钢筋构造:
16G 要求连续通过的纵筋,变截面处弯折位置为楼面往下 50mm

14、KZ 边柱、角柱柱顶等截面伸出时纵筋构造:16G 新增此节点构造,分两种形式①伸出长度自梁顶算起满足直锚长度 laE②伸出长度自梁顶算起不满足直锚长度 laE

15、剪力墙水平筋端部构造:
①16G 端部构造节点有增减;
②16G 端部有暗柱时水平筋伸至暗柱外侧纵筋内侧弯折;11G 为伸至最外侧弯折。

16、剪力墙水平筋通过转角暗柱构造:①转角墙(一)与转角墙(二)为连接区域在暗柱范围外选用,且明确选用的条件;11G 未明确②16G 中转角墙(三)与 11G 中节点存在差异,此处 16G 构造等同于 100%搭接构造

17、剪力墙水平筋端柱处构造:16G 注明“位于端柱纵向钢筋内侧的墙水平筋(节点中图示黑色墙体水平筋)伸入端柱的长度≥laE 时可直锚”;11G 中为直锚长度≥laE 时可不必弯折,但必须伸至端柱对边竖向钢筋内侧位置

18、16G 用“翼墙节点(二)”代替“水平变截面墙水平钢筋构造”,且新增翼墙节点(三)水平变截面钢筋贯通布置

19、剪力墙边缘构件纵向钢筋连接构造:
①16G 中绑扎搭接自基础或楼板顶面起算;11G为自基础或楼板顶面以上不小于 500 起算;
②16G 新增抗震缝处墙局部构造

20、剪力墙上起边缘构件构造:
①16G 中下插纵筋增设箍筋;11G 中下插纵筋未设置箍筋;
②16G 中新增一级剪力墙施工缝处抗剪用钢筋连接构造,具体由设计指定规格、排数、间距;
③16G 中新增条款“剪力墙层高范围最下一排拉结筋位于底部板顶以上第二排水平分布钢筋位置处,最上一排拉结筋位于层顶部板底(梁底)以下第一排水平分布钢筋位置处”。
21、剪力墙竖筋顶部构造:16G 中新增锚入边框梁弯锚情况;11G 只有直锚情况
22、16G 中剪力墙水平分布钢筋计入约束边缘构件体积配箍率的构造说明更详细、更准确

23、①16G 中新增连梁非贯通筋节点及梁端箍筋加密要求
②16G 新增连梁上部钢筋搭接节点构造,分两种形式:通长筋或架立筋构造

24、地下室外墙转角构造:
16G 中为单边弯折满足 0.8 倍抗震锚固长度;11G 为两边合计满足搭接长度

25、剪力墙洞口加强筋节点:16G 洞口直径大于 300 但不大于 800 时补强钢筋为四根钢筋另加圆环筋;11G 中为周边补强 6 根钢筋

26、KL、WKL 中间支座纵筋构造:
16G 要求直锚时需满足长度≥laE 且≥0.5hc+5d;
11G仅要求直锚时满足长度≥laE(la)即可
27、非框架梁配筋构造:
①16G 中梁面筋端部伸入支座直段长度满足 la 时可直锚,11G中无此条款
②16G 中新增端支座非框架梁梁下部纵筋弯锚构造及受扭非框架梁纵筋构造,11G 中无此节点

28、16G 中新增框架扁梁节点构造:
①新增框架扁梁遇到中柱节点
②新增框架扁梁边柱节点
③新增框架扁梁箍筋构造,框架扁梁箍筋也分加密区和非加密区,除符合扁梁条件外还需要符合框架梁的加密条件
29、①16G 新增框支梁上墙开洞构造,分三种形式,按条件选用
②16G 新增托柱转换梁箍筋加密构造
30、16G 新增板带相关连接构造及柱上板带暗梁构造

16G101-3 部分
1、墙身竖向分布钢筋在基础中构造:
①当 hj>laE 时,16G 中要求“隔二下一”伸至基础板底部,支承在底板钢筋网片上,也可支承在筏形基础的中间层钢筋网片上;11G 中为插至基础底部支承在底板钢筋网上
②当 hj≤laE 时,16G 要求竖筋伸至基础板底部支承在底板钢筋网上,竖直段≥0.6laE,且≥20d,弯折 15d;11G 中无≥20d 要求
③16G 中新增条款“在情况①中,当施工采取有效措施保证钢筋定位时,墙身竖向分布钢筋伸入基础长度满足直锚laE 即可”


2、16G 新增剪力墙边缘构件纵向钢筋在基础中构造:
①角部纵筋伸至基础板底部,支承在底板钢筋网片上,也可支承在筏形基础的中间层钢筋网片上
②伸至钢筋网片上的边缘构件角部纵筋(不包含端柱)之间间距不应大于 500,不满足时应将边缘构件其他纵筋伸至钢筋网片上(此钢筋网可为底部钢筋网或中间层钢筋网)

3、柱纵向钢筋在基础中构造:
16G 变更条款“当符合下列条件之一时,可仅将柱四角纵筋伸至底板钢筋网片上或筏形基础中间层钢筋网片上(伸至钢筋网片上的柱纵筋间距不应大于 1000,其余纵筋满足锚固即可)
①柱为轴心受压或小偏心受压,基础高度或基础顶面至中间层钢筋网片距离不小于 1200
②柱为大偏心受压,基础高度或基础顶面至中间层钢筋网片距离不小于 1400”

4、高杯口独立基础配筋构造:16G 新增了 3-3 剖面

5、等边三桩承台配筋构造:16G 新增承台受力钢筋端部构造

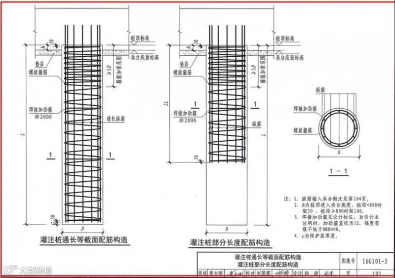
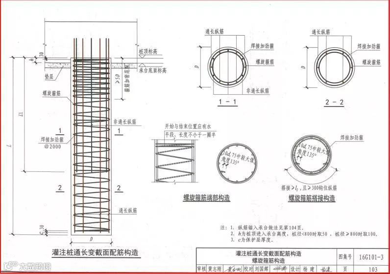
6、16G 新增灌注桩配筋构造


7、16G 新增搁置在基础上的非框架梁构造

3、助力2018安全生产月,这100份安全资料合集值得入手(可下载)

加入我们
投稿展示或者分享资料
一起交流一起成长
扫一扫下方二维码,灵感即刻进
官方微信或qq:483972950
官方qq群:343778875
资料下载群:61754465
官方微信群需要加官方微信即可进入!
技术交流、资料分享、特权权益服务尽在公众号、微信群、qq群,详情请咨询官方微信和qq!如果群里有其他人向你兜售等不法行为,请千万不要相信上当受骗,请认准我们官方微信和qq!

