点我资料免费下
【重磅福利】
为方便大家对相关工法有更多了解,今天向大家介绍其中的土建类安全类高效工法,供参考学习。
土建类
一、户内门洞优化施工工法
【实施效果】
对小于150mm二次结构门垛、过梁主体施工时一次配模浇筑成型,有效防治门洞侧空鼓开裂。

户内门垛优化示意图

门垛成型效果
二、窗台企口浇筑工法
【实施效果】
在二次结构施工时对窗台梁进行优化设置企口,有效防治窗框周边渗漏水。

窗台企口浇筑示意图

现场照片

窗台企口实景
三、上层钢筋保护层厚度控制
【实施效果】
通过设置通长钢筋马凳控制楼板钢筋保护层厚度减少楼板开裂

钢筋马凳

布置示意图

钢筋马凳布置现场实景
四、楼板厚度控制混凝土马凳
【实施效果】
采用定型预制混凝土马凳起到确保钢筋保护层厚度及楼板混凝土厚度的双重作用。

预制块马凳布置图

预制块马凳

预制块马凳应用

实施效果
五、电井桥架洞PC收口工法
【实施效果】
优化电井布置,确定桥架母线穿板洞口位置和尺寸,电井地面施工时采用PC小构件(可用廉价石材代替)做洞口边模,地面装饰收口一次成活。

桥架围挡PC设计图

PC产品

过程安装效果

围挡效果
六、屋面结构防水分区工法
【实施效果】
屋面结构施工时根据落水口位置、排水方向、排水面积等设置结构防水分区上翻梁,确保各区块渗漏不扩张,方便后期渗漏水排查修补。

反坎剖面图

结构反坎

反坎防水施工

分区蓄水试验
七、屋面通气管施工工法
【实施效果】
屋面套管预埋前根据屋面建筑图纸进行深化碰撞试验,优化调整通气管位置,绕开烟帽、排水沟等部位,降低后期防水施工难度改善屋面整体施工观感质量。

优化示意图

板底做法

屋面预埋效果

顶层通气管实景
八、基础承台PC施工工法
【实施效果】
采用PC板替代传统砖胎模,减少砌体粉刷施工量,提高基础施工进度及承台成型尺寸精度。

承台PC优化图

承台PC构件

承台PC构件拼装

承台PC实施效果
九、楼梯间梁PC施工工法
【实施效果】
优化剪刀楼梯楼梯间梁施工方式,采用PC预制梁代替传统混凝土现浇做法,降低该部位施工难度提高施工效率,同时更好的控制楼梯间梁成型尺寸的精度。

楼梯构造窄梁PC优化图

PC梁

PC梁吊装

PC梁实施效果
十、卫生间阴角免收口工法
【实施效果】
根据施工图识别卫生间降板位置、尺寸大小;采用定型化模具安装定位加固,使卫生间阴角一次成型,防水施工前减免阴角处理工序。

卫生间下沉弧形优化做法示意图

弧形定型化模具

卫生间下沉弧形效果

弧形成型效果
安全类
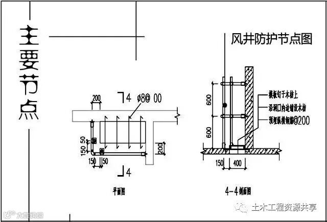
一、风井水平洞口钢筋网防护施工工艺
【实施效果】
1、不影响后期风井正常使用,钢筋免切割;
2、防护施工提效,防护安装难度降低,有效避免风井部位人员坠落。
【工法要点】
提前识别图纸风井部位,在风井洞口处加设Ф8不大于@200X2000上层钢筋网。

风井防护节点图

风井钢筋留设

风井钢筋预留成型效果

风井防护安装成型效果
二、箍筋分区高效吊装工法
【实施效果】
1、操作层箍筋使用做到点对点配送,按区备料;
2、采用专用吊笼直接放置到位,提高了吊料的效率;
3、操作层采用分区吊装配送,数量准确,无余料或补料情况。
【工法要点】
1、根据钢筋工程施工优化图,钢筋配料、送料采用分区划分管理;
2、各区吊具内,吊装时实现点对点配送。

按区分料码放

按区分料堆放

分区吊装

按区精准备料
三、楼层临电照明永临结合安装工法
【实施效果】
1、减少临电费用投入;
2、减少后期装饰施工穿楼板、墙面收口;
【工法要点】
1、主体预埋阶段将楼梯道上下开关管线连通;
2、楼梯照明按《电施图》标准穿线

楼层临电照明永临结合具体做法
四、定型化电梯井操作平台
【实施效果】
三角式操作平台通过两根工字钢斜撑和支角紧贴电梯井内壁和梯井洞口梁,当平台上增加荷载时形成自锚机制,安全可靠,同时平台侧部通过紧固件可顶住井壁,防止平台侧向倾斜。

电梯井操作平台示意图

操作平台全景

平台设置

操作平台的实际应用
猜你喜欢
1、工程葵花辞典(微信版),工程人100%需要,人手必备!
2、土木工程资源共享,一个土建类职业快速提升的平台!
3、助力2018安全生产月,这100份安全资料合集值得入手(可下载)
4、【公路工程】公路工程施工作业标准化,有这一套就够了!
5、【安全月】你可能急需的32套安全高清挂图
6、施工技术小动画视频134个,有需要的可以来下!skr!
7、做好安全技术交底,用这个靠谱!想看哪个工种点哪个,so easy!

加入我们
投稿展示或者分享资料
一起交流一起成长
扫一扫下方二维码,灵感即刻进
官方微信或qq:483972950
官方qq群:343778875
资料下载群:61754465
官方微信群需要加官方微信即可进入!
技术交流、资料分享、特权权益服务尽在公众号、微信群、qq群,详情请咨询官方微信和qq!如果群里有其他人向你兜售等不法行为,请千万不要相信上当受骗,请认准我们官方微信和qq!

