提示:点击↑上方"土木工程资源共享"关注加入
点我资料免费下
【重磅福利】
1 土方工程
1.1 土方开挖
(1)土方开挖平面图
工艺说明:土方开挖前绘制土方开挖图。开挖图要标示出基坑上口线、下口线、垫层边线、基础边线、基底标高、深挖部分标高上下口线,以及所有线的平面位置。

(2)土方开挖开槽支撑
工艺说明:开挖前先进行支撑施工,支撑形式在保证基坑安全的前提下,要选择利于出土的形式,同时确定支撑拆除方案,选择爆破方式拆除的需提前留置爆破孔。待支撑达到设计要求的强度后方可进行下步土方开挖。

(3)土方开挖分层
工艺说明: 机械开挖要分层进行,严禁一次透底,防止主、被动土压力严重不平衡对基坑安全造成风险。

(4)土方开挖严禁超挖
工艺说明:为防止超挖,土方开挖时派专人值班,负责标高控制。机械开挖时要求控制每层标高,以便开挖均匀并满足设备要求。人工进行基底开挖时,遵循“宁欠勿超”的原则,在基坑(槽)两边控制标高处插短钢筋头,在基坑中拉通白线,并用水准仪随时对开挖深度进行实测,保证最后的基底标高。

1.2 基坑支护
(1)放坡处理
工艺说明:土方开挖后需在基坑边做300×200mm宽的挡水台并在坡面进行防护。坡
面防护做法如下:满挂A6@200钢筋网片采用A20固定,浇筑C15细石混凝土。

(2)锚喷支护
工艺说明:借助高压喷射水泥混凝土和打入岩层中的金属锚杆的联合作用加固岩层。钻孔前,找出孔位,钻机就位后应保持平稳钻机立轴与锚杆倾角一致,并在同一轴线上,钻孔时,需事先备好膨润土,调好泥浆,以免塌孔,合理掌握钻进参数,并准确做好原始记录。

(3)环撑支护
工艺说明:环撑施工,垫层与环撑之间应采取脱模措施,底模也可采取油毡或木模板等,环撑交叉节点等部位配筋复杂,需提前进行深化设计,采取爆破法拆除时需提前留置爆破孔,变形监测单位需与施工同步配合。

1.3 土方回填
(1)防水成品保护
工艺说明:肥槽回填前,先用建筑胶将聚苯板点粘贴在防水层(随着回填高度进行),在回填土夯实时,不得破坏聚苯板保护层,根部采用人工夯实。

(2)管道下土方回填
工艺说明:管道下方受管道限制,已无法使用机械夯实时,采用人工从管道下方挤密夯实;管道两侧及正上方500㎜范围内用人工夯实,避免损坏管道。管道以上500㎜外,正常使用机械夯实。冬期回填管沟底至管顶0.5m范围内不得使用含有冻土的回填土。

(3)土方回填
工艺说明:填土分层虚铺厚度和压实遍数应符合上表规定。当分段回填时,接缝处每层应错开1m以上。冬期回填每层铺土厚度应比正常施工时减少20%~25%,其中冻土含量不得超过15%,其粒径不大于150㎜,常温回填土粒径不大于50㎜。



2 桩基施工
(1)截桩
工艺说明:桩须在设计标高下用红油漆或弹墨线确保桩顶标高。桩直径或桩截面边长<800mm时,桩顶嵌入承台50mm;桩径或桩截面边长≥800mm时,桩顶嵌入承台100mm。

(2)接桩
工艺说明:桩顶标高若低于设计标高,先将桩顶修平、凿毛、用比桩身混凝土高一个强度等级的素混凝土接桩至设计桩顶标高。

(3)预应力管桩灌芯
工艺说明:由于预拌砼粗骨料偏小,水灰比过大,振捣砼水泥浆时桩顶浮浆过厚,影响桩的抗压强度。桩浇筑砼应高于设计标高30~50㎜,砼初凝前剔除部分桩顶浮浆,砼终凝后采用人工凿打见石子为宜。

(4)桩身垂直度控制
工艺说明:桩护壁模板应按每安装一节在桩口架十字用线坠复核、调校。

(5)人工挖孔桩浮浆处理
工艺说明:由于泵送预拌砼粗骨料偏小,水灰比过大,振捣砼水泥浆时桩顶浮浆过厚,影响桩的抗压强度。 桩浇筑砼应高于设计标高30~50㎜,砼初凝前剔除部分桩顶浮浆,砼终凝后采用人工凿打见石子为宜。


3 垫层工程
(1)GRC水泥板安装
工艺说明:在水泥板安装位置线内侧用木楔固定。木楔露出土面高度必须小于垫层厚度。在垫层浇筑前用12#铁丝将水泥板顶部拉紧加固,一般间隔800mm左右一道铁丝,并与位于基础梁之间地基土上所钉的木桩拉紧。

(2)注意事项
工艺说明:GRC水泥板支设位置准确,严禁产生偏移。模板内部净尺寸必须保证设计要求的结构界面尺寸,要考虑抹灰层、防水层、防水保护层厚度。

(3)垫层标高控制
工艺说明:待混凝土浇筑并振捣后,及时拉线或采用红外线标线仪复核垫层上表面标高,确保垫层标高符合设计要求。

(4)垫层磨光收面
工艺说明:待垫层标高复核无误后,对混凝土表面进行第一道收面,待混凝土初凝时,采用磨光机提浆并进行第二道收面压光。


4 地下室防水
4.1 防水砼
(1)原材料坍落度控制
工艺说明:混凝土配合比、坍落度、外加剂符合设计和施工要求。混凝土浇筑前和浇筑过程中,严禁加水。胶凝材料用量应根据混凝土的抗渗等级和强度等级等选用,其总用量不宜小于320kg/m³ ;在满足混凝土抗渗等级、强度等级和耐久性条件下,水泥用量不宜小于260k8/m³

(2)下料振捣
工艺说明:浇筑前应浇水湿润,清除杂物,避免形成夹渣。混凝土浇筑离浇筑面300-400mm高为宜,避免离析。振捣快插慢拔,插点均匀,表面泛浆,振捣时上下层接缝密实,在初凝前插入下层50mm。振动棒与模板的距离不应大于振动棒作用半径的50%,振捣插点间距不应大于振动棒作用半径的1.4倍。

(3)施工缝止水钢板防水1
工艺说明:钢板的凹面应朝向迎水面,转角处止水钢板应做成45°角。止水钢板居中布置。橡胶止水带及钢板橡胶止水带做法同上。

(4)施工缝止水钢板防水2
工艺说明:止水钢板应加工成“〔”状,钢筋不宜穿止水钢板,采取补焊的方法无法保证质量。有箍筋的构件,箍筋在此处宜采取将箍筋断开,弯折10d以上与止水钢板焊接的工艺方法。止水钢板接头必须采用搭接焊接,搭接长度应≥50mm,焊接必须为4个方向焊接。

(5)施工缝止水条防水
工艺说明:在浇筑混凝土时,在施工缝部位埋植30㎜×10㎜木条,沿墙厚居中留置出宽30 ㎜、深10 ㎜通长凹槽,混凝土接缝前将止水条放入凹槽内,用水泥钉固定。遇水膨胀止水条应具有缓胀性能,7d膨胀率不应大于低膨胀率的60%。

(6)墙体竖向变形缝
工艺说明:考虑中埋式橡胶止水带施工质量很难保证,建议与设计院沟通,变更为伸缩式3厚镀锌铝板,为便于安装固定铝板,可将墙体局部加厚5cm 变形缝内贴聚苯板

(7)底板水平变形缝
工艺说明:考虑中埋式橡胶止水带施工质量很难保证,建议与设计院沟通,变更为伸缩式3厚镀锌铝板,为便于安装固定铝板,可将板底局部加厚。

(8)顶板水平变形缝1
工艺说明:变形缝两侧顶板在同一标高时,采用伸缩式3厚镀锌铝板,为便于安装固定铝板,可将两侧梁上部局部加厚5cm 。

(9)顶板水平变形缝2
工艺说明:当两侧顶板不在同一标高时,可采取在较高一侧墙体上现浇挑盖板的方式,挑盖板伸出较低一侧女儿墙150mm,挑板抹灰时,板下做滴水线。

(10)底板后浇带
工艺说明:推广使用下沉式超前防水后浇带,在后浇带下做同后浇带宽100厚沉渣槽,并向集水坑作.5%-1%找坡,防止凿毛的砼渣侵入后浇筑的砼中,后浇带封闭前必须进行老混凝土面全部剔凿,露出石子。原预留钢筋割除或松散的须恢复,搭接采用焊接,后浇带处铺一层3厚防水卷材作为附加层,两侧各伸过后浇带300mm。

(11)外墙后浇带
工艺说明:止水钢板应放置在外墙中间,两端弯折处应朝向迎水面。水平钢板在钢板止水带两侧拉通线,以保持其上口平直。采用斜向钢筋焊接固定止水钢板。钢板的接头采用焊接,两块钢板的搭接长度为100mm,两端均应满焊,后浇带处铺一层3厚防水卷材作为附加层,两侧各伸过后浇带300mm。。

(12)顶板后浇带
工艺说明:顶板后浇带两侧按施工缝做法预留好钢板止水带,在顶板混凝土浇筑前在后浇带两侧安装好钢丝网。后浇带支撑及模板应单独设置,加固应牢靠、模板与后浇带两侧混凝土结构拼缝应严密。

(13)地下室顶板:
工艺说明:考虑地下室顶板积水导致车库顶板渗漏可与设计院沟通增加一层60厚碎石滤水层或采用排水板滤水层,减少渗漏风险。

(14)地下室外墙结构措施:
工艺说明:外墙护壁柱与框架柱混凝土同强度等级,高于剪力墙强度时,易造成强柱交接处开裂严重,可与设计院沟通采用同一强度等级的混凝土浇筑。因地下室剪力墙钢筋保护层较厚,易出现裂缝,水平钢筋必须分布在外侧,或在剪力墙外侧增加一道钢筋网片。

(15)地下室外墙结构措施:
工艺说明:推广使用新型三段式止水螺杆,所有外墙螺杆眼拆模后嵌入防水油膏(嵌入2/3),最后用聚合物砂浆将螺栓眼抹平。

(16)地下室底板1
工艺说明:地下室底板在结构底板上铺一层最薄60厚碎石滤水层,并通过在外墙四周设排水沟进行有组织排水,地下室车库入口处及坡道结束处应设置截水沟,坡道结束处应设置水位自动报警,并与排水泵实现联动。

(17)地下室底板2
工艺说明:在底板结构板上增铺硬塑排水板,可有效起到防止底板渗漏的效果。

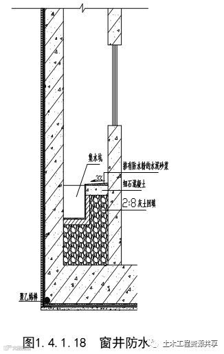
(18)窗井防水
工艺说明:采光井内先用2:8灰土回填夯实,再浇筑细石混凝土层;集水坑用灰砂砖砌筑;集水坑及细石混凝土层表面均抹掺有防水粉的水泥砂浆,向集水坑找坡。

4.2. 卷材防水
工艺说明:
1.底板垫层混凝土平面部位的卷材可采用空铺法或点粘法,其他与混凝土结构相接触的部位应采用满粘法;卷材接缝必须粘贴严密,接缝口宽度不应小于10mm;在立面与平面的转角处,卷材的接缝应留在平面上,距立面不应小于600mm;阴阳角处找平层应做成圆弧(半径50mm)或45°(135 ° )角,并应增加1层相同的卷材,宽度不宜小于500mm;防水基层必须平整、牢固,铺贴卷材前应使基层表面干燥,基层含水率小于9%,新作业面施工前先用简易法测基层含水率,即用1㎡的卷材覆盖4h后察看凝结水情况,若无凝结水即可进行卷材的铺贴。
2.地下室外墙、顶板、屋面施工完后,必须全数检查开裂渗水情况,做结构试水,对迎水面裂缝进行处理后方允许进行防水施工
3.屋面及地下室顶板防水尽可能采用“两油一毡一卷材”的防水方案,未采用此方案的应增设一道油膏防水层;地下室外墙卷材防水应通过变更改为自闭树脂涂膜防水

(1)卷材防水铺贴顺序
工艺说明:先铺贴阴阳角等部位的加强层,在将地坑、后浇带等处的防水卷材铺贴完毕厚再铺大面。先铺平面,后铺立面,交叉处应交叉搭接。

(2)卷材基层处理剂涂刷
工艺说明:基层处理剂应与卷材材性相容,宜与卷材配套使用。喷、涂刷之前应用毛刷对节点、周边、转角处先行涂刷。喷涂刷应均匀一致,不得漏底、堆积,控制好胶粘剂涂刷和卷材铺贴时间。潮湿的基层,应涂刷湿固化型胶粘剂或潮湿界面隔离剂。

(3)附加层施工
工艺说明:基层阴阳角应做成圆弧或45°坡角,其尺寸应根据卷材品种确定;在转角处、变形缝、施工缝,穿墙管等部位应铺贴卷材加强层,加强层宽度不应小于500mm。方法是先按细部形状将卷材剪好,在细部贴一下,视尺寸、形状合适后,进行粘贴。

(4)卷材铺贴
工艺说明:卷材与基面、卷材与卷材间的粘接应紧密牢固;铺贴完成的卷材应平整顺直,两幅卷材的搭接长度,长边与短边均不应小于100mm。不得产生扭曲及皱折。卷材搭接处和接头部位应粘贴牢固,接缝口应封严或采用材性相容的密封材料封缝。铺贴双层卷材时,上下两层和相邻两幅卷材的接缝应错开1/3~1/2幅宽,上下两层卷材接缝应错开1500-1600mm,且两层卷材不得相互垂直铺贴。

(5)卷材热熔铺贴
工艺说明:热熔卷材铺贴时,随放卷随用喷枪火焰加热基层和卷材的交接处,喷枪距离卷材适中,均匀加热,使卷材表面融熔至亮黑色,将卷材向前滚铺、粘贴。卷材下空气应排尽,并辊压粘贴牢固;铺贴的平整顺直,不得扭曲皱折,搭接宽度不小于100mm。

(6)外墙防水卷材搭接
工艺说明: 铺贴外墙卷材之前,应先将接槎部位的卷材揭开,并将其表面清理干净,如卷材有局部损伤,应及时进行修补后方可继续施工,两层卷材应错槎接缝,错开距离不得小于350㎜,上层卷材应盖过下层卷材。两幅卷材的搭接长度,长边与短边均应不小于100mm。

(7)电梯井、集水坑防水1
工艺说明:
平面阴阳角附加层卷材按上图所示形状的下料和裁剪。附加层卷材铺贴时,不要拉紧,要自然松铺,无皱折即可。

(8)电梯井、集水坑防水2
工艺说明:
电梯井、积水坑基层阴阳角必须做成≥ 50mm的圆弧或45°(135 ° )八字角,阴阳角、立面内角、外角及施工缝处均做500mm宽的附加层。电梯井、积水坑斜面的第二层防水卷材采用带有砂粒的,以便于防水保护层的施工。

(9)桩头防水
工艺说明:在桩头、桩侧及桩侧外围200mm范围内垫层的表面涂刷水泥基渗透结晶型防水涂料,在桩头根部及桩头钢筋根部凹槽内埋设遇水膨胀橡胶条,在桩顶、桩侧及桩侧外围300mm范围内垫层上表面5mm厚聚合水泥防水砂浆。待基层达到卷材施工条件时进行大面积防水卷材施工,卷材施工完毕后在桩侧与卷材接缝处嵌聚硫嵌缝膏。


(10)套管封堵(柔性套管内部封堵)
工艺说明:在进行大面积防水卷材铺贴前,应先穿好带有止水环的设备管道(止水环外径比套管内径小4mm),并固定好,设备管道与套管之间的缝隙先填塞沥青麻丝,再填塞聚硫密封膏 ,将防水卷材收口嵌入设备管道与套管之间的缝隙,再用聚硫密封膏灌实,最后做一层矩形加强层防水卷材。穿墙管与内墙角凹凸部位的距离应大于250mm,相邻穿线管的间距应大于300mm。

(11)外墙阳角防水
工艺说明:外墙防水基层必须平整、牢固,表面尘土、砂层等杂物清扫干净,且不得有凹凸不平、松动空鼓、起砂、开裂等缺陷;表面的阳角处,均应做成圆弧形或钝角,阳角圆弧半径为50mm,阳角部位加铺一层卷材加强层,加强层采用聚酯毡胎体加厚的SBS防水卷材,加强层过角线两层各不小于250mm。

(12)卷材防水层甩槎
工艺说明:从底板折向里面的卷材与永久保护墙的接触部位,采用空铺法施工。2层卷材接槎部位先甩出搭接长度300mm、450mm,顶端临时用石灰砂浆砌四皮砖固定。待结构墙体做外防外贴卷材防水层时,分层错槎接缝。

(13)卷材防水层封边(1)
工艺说明:防水收口位置设置在距室外散水上150mm处,浇筑墙体混凝土时应预留凹槽,防水末端先用3㎜×25㎜,金属压条钢钉固定(间距500㎜再用密封膏封闭。

卷材防水层封边(2)
工艺说明:防水收口位置设置在距室外散水下150mm处,浇筑墙体混凝土时应预留凹槽,防水卷材施工时,将防水卷材端部压在凹槽中,待室外散水施工完再用密封膏将凹槽及散水与外墙缝隙灌严。

4.3. 涂料防水
(1)聚氨酯防水涂料
工艺说明:外墙推荐使用单组份聚氨酯防水涂料。基层表面应坚实、清洁干净、干燥、平整光滑。在阴阳角、管道周围、施工缝及裂纹等处先涂膜1-2层防水附加层(贴玻离纤维布加强);分遍涂刷,下一遍涂刷方向与上一遍涂刷方向垂直。

(2)自闭树脂涂膜防水
工艺说明:首先在基层施工渗透剂,待完全干燥后方可涂刷自闭树脂防水涂膜层。将已搅拌好的自闭树脂防水涂料用馒刀均匀涂刮在已涂好渗透剂的基层表面上,使用毛刷对刚涂刮完毕的部位进行涂刷,使防水层达到均匀无漏涂的状态将防水涂料充分搅拌均匀后用刷子涂布两遍,每遍涂刷保养12-24小时待干燥后进行下一道工序。

(3)地下室外墙水泥基渗透结晶型涂料防水
工艺说明:
施工前15min左右将施工面提前用干净水浇透;刮涂时应用力按刀,使刮刀与被涂面的倾斜角为50°~60°,按刀要用力均匀。涂层一般刮涂一至两遍,总厚度达到0.8mm。刮涂后的防水涂层,必须在初凝前马上用油漆刷醮水涂刷均匀;防水涂层施工完毕,须采用干净的雾状水喷洒养护。

猜你喜欢:
3、助力2018安全生产月,这100份安全资料合集值得入手(可下载)

加入我们
投稿展示或者分享资料
一起交流一起成长
扫一扫下方二维码,灵感即刻进

官方微信或qq:483972950
官方qq群:343778875 或648915172
规范图集下载群:61754465
官方微信群需要加官方微信即可进入!
技术交流、资料分享、特权权益服务尽在公众号、微信群、qq群,详情请咨询官方微信和qq!如果群里有其他人向你兜售等不法行为,请千万不要相信上当受骗,请认准我们官方微信和qq!

