提示:点击↑上方"土木工程资源共享"关注加入
点我资料免费下
【重磅福利】
万科(全套)在建工程实测实量可视化体系,值得地产人收藏......

第一篇:万科实测实量体系-总则
《万科实测实量办法》适用于万科集团所有在建工程(自结构±0.00至交付完成)项目,包括全资项目以及非全资但万科负责经营管理的项目

☀万科实测实量取样原则


第二篇:万科实测实量尺寸控制篇

①混凝土结构工程尺差控制






















②砌筑工程尺差控制










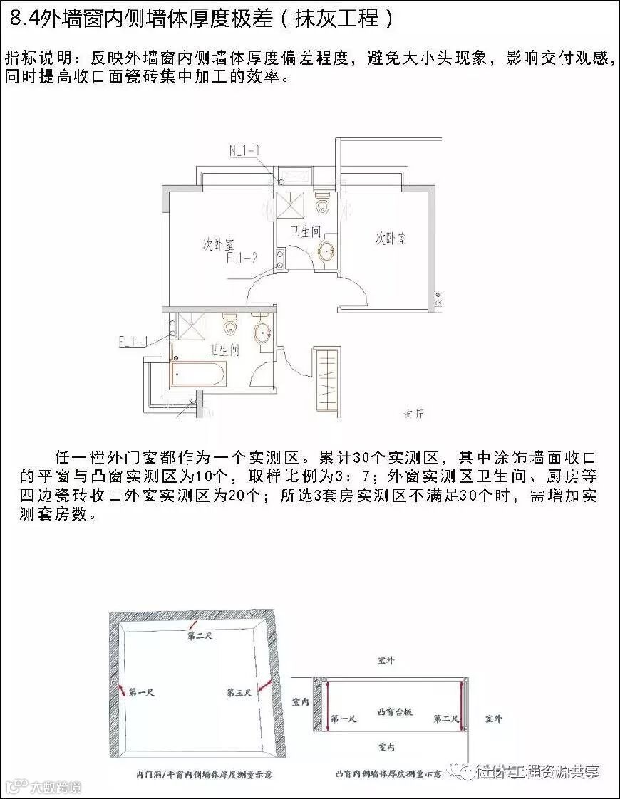
③抹灰工程尺差控制




















第三篇:万科定尺加工尺寸控制

①万科砌筑工程尺差控制



②万科抹灰工程尺差控制




















第四篇:万科质量观感控制篇

①万科设备安装观感质量



②万科抹灰程观感质量



③万科装饰工程观感质量











④万科饰面砖工程观感质量









⑤万科地面砖工程观感质量




⑥万科室内门观感质量



⑦铝合金门窗观感质量







⑧万科木地板工程观感质量












第五篇:万科防渗漏篇




















第六篇:万科防空鼓/开裂篇






18.2内墙防开裂节点(砌筑工程)























18.8.裂缝/空鼓(墙面饰面砖工程)

实测区与合格率计算点:所选户型内有饰面砖墙面的厨房、卫 生间等每一自然间作为1个实测区。所选套房内所有墙体全检。累计 实测实量10个实测区。1个实测区的实测值作为1个实测合格率计算 点。所选2套房的实测区不满足10个时,需增加实测套房数。
数据记录:所选同一实测区只要发现有1条裂缝或通过空鼓锤敲 击发现有1处空鼓就可以认为该实测区的1个实测点不合格。反之,则 该实测区1个实测点为合格。不合格点均按“1”记录,合格点均按 “0”记录。

18.9.裂缝/空鼓(地面饰面砖工程)

指标说明:反映户厨房、卫生间、走道等地面饰面砖工程裂缝/空 鼓的程度。
18.9 裂缝/空鼓(地面饰面砖工程)

实测时,厨房和卫生间户内墙面测量部位需完成贴砖工程。同一实测区通过目测、空鼓锤敲击方式,检查是否符合合格标准。
18.9裂缝/空鼓(地面饰面砖工程)


☀万科在建工程实测实量可视化体系分享完毕......
猜你喜欢:
3、助力2018安全生产月,这100份安全资料合集值得入手(可下载)

加入我们
投稿展示或者分享资料
一起交流一起成长
扫一扫下方二维码,灵感即刻进

官方微信或qq:483972950
官方qq群:343778875 或648915172
规范图集下载群:61754465
官方微信群需要加官方微信即可进入!
技术交流、资料分享、特权权益服务尽在公众号、微信群、qq群,详情请咨询官方微信和qq!如果群里有其他人向你兜售等不法行为,请千万不要相信上当受骗,请认准我们官方微信和qq!

