提示:点击↑上方"土木工程资源共享"关注加入
点我资料免费下
【重磅福利】


顶模系统实景图


支撑系统示意图


顶模系统效果图




数控弯箍机




数控弯箍机加工实景图



加压水泵系统原理图



加压水泵技术参数


铝模3D模型图

铝模实景图


墙面铝模施工效果图

楼板铝模施工效果图






高性能混凝土



运用于西塔项目





混凝土泵送管道布置


塔吊镝灯自动控制图


KG316T型电脑时控开关


导光管


照明效果


自制连接头

清洗布置


空气压缩机



厨房废污水收集

蓄水池收集

雨水收集















装配式围挡安装

装配式围挡实景图







预制式塔吊基础模型



预制式塔吊实景图



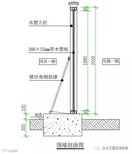
示意图
猜你喜欢:
3、助力2018安全生产月,这100份安全资料合集值得入手(可下载)
来源:筑龙论坛
版权归原作者所有

加入我们
投稿展示或者分享资料
一起交流一起成长
扫一扫下方二维码,灵感即刻进

官方微信或qq:483972950
官方qq群:343778875 或648915172
规范图集下载群:61754465
官方微信群需要加官方微信即可进入!
技术交流、资料分享、特权权益服务尽在公众号、微信群、qq群,详情请咨询官方微信和qq!如果群里有其他人向你兜售等不法行为,请千万不要相信上当受骗,请认准我们官方微信和qq!
点个“好看”,新年鸿运当头!

