提示:点击↑上方"土木工程资源共享"关注加入
点我资料免费下
【重磅福利】

同学们!如何识读建筑施工图纸,你学会了吗??还不会,没有关系!再看看这篇文章吧 !!加油 !!
房屋施工图是用来表达建筑物构配件的组成、外形轮廓、平面布置、结构构造以及装饰、尺寸、材料做法等的工程图纸,是组织施工和编制预、决算的依据。
建造一幢房屋从设计到施工,要由许多专业和不同工种工程共同配合来完成。按专业分工不同,可分为:建筑施工图(简称建施)、结构施工图(简称结施)、电气施工图(简称电施)、给排水施工图(简称水施)、采暖通风与空气调节(简称空施)及装饰施工图(简称装施)。本节只就建筑施工图的绘制步骤及其识读方法做了简要介绍,其它施工图的识读方法此处不作介绍。
建筑施工图:
主要用来表达建筑设计的内容,即表示建筑物的总体布局、外部造型、内部布置、内外装饰、细部构造及施工要求。它包括首页图、总平面图、建筑平面图、立面图、剖面图和建筑详图等。
施工图首页一般由图纸目录、设计总说明、构造做法表及门窗表组成。
图纸目录放在一套图纸的最前面,说明本工程的图纸类别、图号编排,图纸名称和备注等,以方便图纸的查阅。
设计总说明:
主要说明工程的概况和总的要求。内容包括工程设计依据(如工程地质、水文、气象资料);设计标准(建筑标准、结构荷载等级、抗震要求、耐火等级、防水等级);建设规模(占地面积、建筑面积);工程做法(墙体、地面、楼面、屋面等的做法)及材料要求。
构造做法表是以表格的形式对建筑物各部位构造、做法、层次、选材、尺寸、施工要求等的详细说明。
门窗表反映门窗的类型、编号、数量、尺寸规格、所在标准图集等相应内容、以备工程施工、结算所需。
建筑总平面图
总平面图是将拟建工程附近一定范围内的建筑物、构筑物及其自然状况,用水平投影方法和相应的图例画出的图样。主要是表示新建房屋的位置、朝向,与原有建筑物的关系,周围道路、绿化布置及地形地貌等内容。是新建房屋施工定位、土方施工、以及绘制水、暖、电等管线总平面图和施工总平面图的依据。
总平面的比例一般为1:500、1:1000、1:2000 等。

建筑平面图
建筑平面图,简称平面图,它是假想用一水平剖切平面将房屋沿窗台以上适当部位剖切开来,对剖切平面以下部分所作的水平投影图。平面图通常用1:50、1:100、1:200的比例绘制,它反映出房屋的平面形状、大小和房间的布置、墙(或柱)的位置、厚度、材料、门窗的位置、大小、开启方向等情况,作为施工时放线、砌墙、安装门窗、室内外装修及编制预算等的重要依据。
当建筑物各层的房间布置不同时应分别画出各层平面图;若建筑物的各层布置相同,则可以用两个或三个平面图表达,即只画底层平面图和楼层平面图(或顶层平面图)。此时楼层平面图代表了中间各层相同的平面,故称标准层平面图。
因建筑平面图是水平剖面图,故在绘制时,应按剖面图的方法绘制,被剖切到的墙、柱轮廓用粗实线(b),门的开启方向线可用中粗实线(0.5 b)或细实线(0.25 b),窗的轮廓线以及其他可见轮廓和尺寸线等用细实线(0.25 b)表示。
1.底层平面图的图示内容
(1)表示建筑物的墙、柱位置并对其轴线编号。
(2)表示建筑物的门、窗位置及编号。
(3)注明各房间名称及室内外楼地面标高。
(4)表示楼梯的位置及楼梯上下行方向及级数、楼梯平台标高。
(5)表示阳台、雨篷、台阶、雨水管、散水、明沟、花池等的位置及尺寸。
(6)表示室内设备(如卫生器具、水池等)的形状、位置。
(7)画出剖面图的剖切符号及编号。
(8)标注墙厚、墙段、门、窗、房屋开间、进深等各项尺寸。
(9)标注详图索引符号。
《规范》规定:图样中的某一局部或构件,如需另见详图,应以索引符号索引。索引符号是由直径为10mm的圆和水平直径组成,圆和水平直径均应以细实线绘制。
(10)画出指北针。
指北针常用来表示建筑物的朝向。指北针外圆直径为24mm,采用细实线绘制,指北针尾部宽度为3 mm,指北针头部应注明“北”或“N”字。
2. 标准层平面图的图示内容
(1)表示建筑物的门、窗位置及编号。
(2)注明各房间名称、各项尺寸及楼地面标高。
(3)表示建筑物的墙、柱位置并对其轴线编号。
(4)表示楼梯的位置及楼梯上下行方向、级数及平台标高。
(5)表示阳台、雨篷、雨水管的位置及尺寸。
(6)表示室内设备(如卫生器具、水池等)的形状、位置。
(7)标注详图索引符号。
3.屋顶平面图的图示内容
屋顶檐口、檐沟、屋顶坡度、分水线与落水口的投影,出屋顶水箱间、上人孔、消防梯及其他构筑物、索引符号等。
4.建筑平面图的识读举例
本建筑平面图分底层平面图(如图1-6-6)、标准层平面图(如图1-6-7)及屋顶平面图(如图1-6-8)。从图中可知比例均为1:100,从图名可知是哪一层平面图。从底层平面图的指北针可知该建筑物朝向为坐北朝南;同时可以看出,该建筑为一字形对称布置,主要房间为卧室,内墙厚240mm,外墙厚370mm。本建筑设有一间门厅,一个楼梯间,中间有1.8宽的内走廊,每层有一间厕所,一间盥洗室。有两种门,三种类型的窗。房屋开间为3.6米,进深为5.1米。从屋顶平面图可知,本建筑屋顶是坡度为3%的平屋顶,两坡排水,南、北向设有宽为600 mm的外檐沟,分别布置有3根落水管,非上人屋面。剖面图的剖切位置在楼梯间处。


建筑立面图,简称立面图,它是在与房屋立面平行的投影面上所作的房屋正投影图。它主要反映房屋的长度、高度、层数等外貌和外墙装修构造。它的主要作用是确定门窗、檐口、雨篷、阳台等的形状和位置及指导房屋外部装修施工和计算有关预算工程量。
1.建筑立面图的图示方法
为使建筑立面图主次分明、图面美观,通常将建筑物不同部位采用粗细的线型来表示。最外轮廓线画粗实线(b),室外地坪线用加粗实线(1.4b),所有突出部位如阳台、雨篷、线脚、门窗洞等中实线(0.5b),其余部份用细实线(0.35b)表示。
2.立面图的命名
立面图的命名方式有三种:
(1)用房屋的朝向命名,如南立面图、北立面图等。
(2)根据主要出入口命名,如正立面图、背立面图、侧立面图。
(3)用立面图上首尾轴线命名,如①~⑧轴立面图和⑧~①立面图。
立面图的比例一般与平面图相同。
1.室外地坪线及房屋的勒脚、台阶、花池、门窗、雨篷、阳台、室外楼梯、墙、柱、檐口、屋顶、雨水管等内容。
2.尺寸标注。用标高标注出各主要部位的相对高度,如室外地坪、窗台、阳台、雨篷、女儿墙顶、屋顶水箱间及楼梯间屋顶等的标高。同时用尺寸标注的方法标注立面图上的细部尺寸,层高及总高。
3.建筑物两端的定位轴线及其编号。
4.外墙面装修。有的用文字说明,有的用详图索引符号表示。
如图1-6-10所示,本建筑立面图的图名为①-⑧立面图,比例为1:100,两端的定位轴线编号分别为①、⑧轴;室内外高差为0.3米,层高3米,共有四层,窗台高0.9米;在建筑的主要出入口处设有一悬挑雨篷,有一个二级台阶,该立面外形规则,立面造型简单,外墙采用100×100黄色釉面瓷砖饰面,窗台线条用100×100白色釉面瓷砖点缀,金黄色琉璃瓦檐口;中间用墙垛形成竖向线条划分,使建筑给人一种高耸感。

建筑剖面图,简称剖面图,它是假想用一铅垂剖切面将房屋剖切开后移去靠近观察者的部分,作出剩下部分的投影图。
剖面图用以表示房屋内部的结构或构造方式,如屋面(楼、地面)形式、分层情况、材料、做法、高度尺寸及各部位的联系等。它与平、立面图互相配合用于计算工程量,指导各层楼板和屋面施工、门窗安装和内部装修等。
剖面图的数量是根据房屋的复杂情况和施工实际需要决定的;剖切面的位置,要选择在房屋内部构造比较复杂,有代表性的部位,如门窗洞口和楼梯间等位置,并应通过门窗洞口。剖面图的图名符号应与底层平面图上剖切符号相对应。
1.必要的定位轴线及轴线编号。
2.剖切到的屋面、楼面、墙体、梁等的轮廓及材料做法。
3.建筑物内部分层情况以及竖向、水平方向的分隔。
4.即使没被剖切到,但在剖视方向可以看到的建筑物构配件。
5.屋顶的形式及排水坡度。
6.标高及必须标注的局部尺寸。
7.必要的文字注释。
1.结合底层平面图阅读,对应剖面图与平面图的相互关系,建立起建筑内部的空间概念。
2.结合建筑设计说明或材料做法表,查阅地面、墙面、楼面、顶棚等的装修做法。
3.根据剖面图尺寸及标高,了解建筑层高、总高、层数及房屋室内外地面高差。如图1-6-12所示,本建筑层高3m,总高14 m,4层,房屋室内外地面高差0.3m。
4.了解建筑构配件之间的搭接关系。
5.了解建筑屋面的构造及屋面坡度的形成。该建筑屋面为架空通风隔热、保温屋面,材料找坡,屋顶坡度3%,设有外伸600mm天沟,属有组织排水。
6.了解墙体、梁等承重构件的竖向定位关系,如轴线是否偏心。该建筑外墙厚370mm,向内偏心90mm,内墙厚240 mm,无偏心。


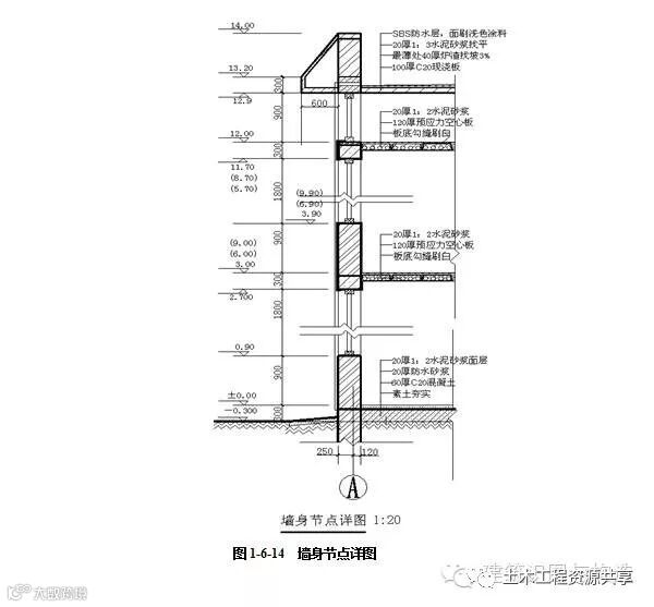
建筑详图
墙身详图也叫墙身大样图,实际上是建筑剖面图的有关部位的局部放大图。它主要表达墙身与地面、楼面、屋面的构造连接情况以及檐口、门窗顶、窗台、勒脚、防潮层、散水、明沟的尺寸、材料、做法等构造情况,是砌墙、室内外装修、门窗安装、编制施工预算以及材料估算等的重要依据。有时在外墙详图上引出分层构造,注明楼地面、屋顶等的构造情况,而在建筑剖面图中省略不标。
外墙剖面详图往往在窗洞口断开,因此在门窗洞口处出现双折断线(该部位图形高度变小,但标注的窗洞竖向尺寸不变),成为几个节点详图的组合。在多层房屋中,若各层的构造情况一样时,可只画墙脚、檐口和中间层(含门窗洞口)三个节点,按上下位置整体排列。。有时墙身详图不以整体形式布置,而把各个节点详图分别单独绘制,也称为墙身节点详图。
楼梯详图
楼梯详图主要表示楼梯的类型和结构形式。楼梯是由楼梯段、休息平台、栏杆或栏板组成。楼梯详图主要表示楼梯的类型、结构形式、各部位的尺寸及装修做法等,是楼梯施工放样的主要依据。
楼梯详图一般分建筑详图与结构详图,应分别绘制并编入建筑施工图和结构施工图中。对于一些构造和装修较简单的现浇钢筋砼楼梯,其建筑详图与结构详图可合并绘制,编入建筑施工图或结构施工图。
楼梯的建筑详图一般有楼梯平面图、楼梯剖面图以及踏步和栏杆等节点 详图。

您的转发是对我们最大的支持
猜你喜欢:
3、助力2018安全生产月,这100份安全资料合集值得入手(可下载)
本文由公众号土木工程资源共享进行整理,如需转载,请备注转载来源

加入我们
投稿展示或者分享资料
一起交流一起成长
扫一扫下方二维码,灵感即刻进

官方微信或qq:483972950
官方qq群:343778875 或648915172
规范图集下载群:61754465
官方微信群需要加官方微信即可进入!
技术交流、资料分享、特权权益服务尽在公众号、微信群、qq群,详情请咨询官方微信和qq!如果群里有其他人向你兜售等不法行为,请千万不要相信上当受骗,请认准我们官方微信和qq!


