提示:点击↑上方"土木工程资源共享"关注加入
点我资料免费下
【重磅福利】
1、挂篮的分类
1)按结构形式:桁架式、三角斜拉带式、预应力束斜拉式、斜拉自锚式;
2)按行走方式:滑移式和滚动式;
3)按平衡方式:压重式和自锚式。
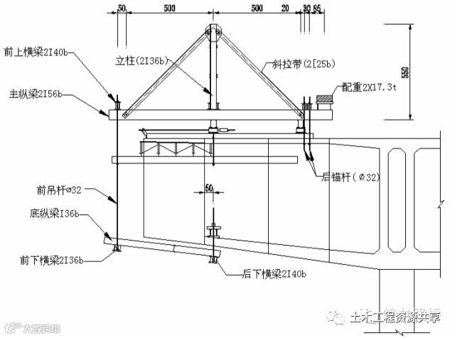
4)工地一般按挂篮形状:三角挂篮、梯形挂篮、菱形挂篮等。
桁架式
三角斜拉带式
压重式
自锚式
梁式

2、挂篮设计和计算
1)挂篮主要结构为:主桁结构、后锚和行走系统、悬吊系统、底篮系统、模板系统。
2)底篮系统:底篮前、后横梁、底篮纵向桁架。
![]()
![]()
3)悬吊系统:钢带吊带、精轧螺纹钢吊带。
底篮后吊带,锚固在已浇筑段底板上,在底板浇筑时注意预留孔洞,挂篮行走时放开锚固。
翼板模板滑轨锚固在已浇筑翼板上,前方吊带在大横梁。
4)后锚系统:图为自锚型;配重型也必须设锚固。
利用桥面竖向预应力锚固,为了牢固还加千斤顶。
![]()
内模板顶模利用滑动轨道跟随挂篮一起行走。
3、挂篮受力计算
1)选择有代表性的块段进行计算,一方面考虑块段重量最大的,另一方面选择集中力对已浇筑混凝土端面弯矩最大的。因为最危险。
2)计算方法
挂篮属空间结构体系,所以使用空间有限元分析软件对结构进行各种工况的分析,建立模型。
3)工况分析
工况一:挂篮行走工况。该工况考虑正常挂篮行走时自重效应;结构整体稳定分析。
工况二:浇筑最危险梁段混凝土。
验算挂篮的极限承载力状态,主要是验证挂篮结构强度符合规范要求,同时以挂篮最大变形作为评定挂篮刚度的参考标准;该工况考虑“挂篮自重+施工恒载 + 施工荷载” 的共同效应;
工况三:浇筑状态,结构整体稳定分析。选取最危险梁段浇筑工况模拟。
4)各小构件单独验算
后锚固吊带(精轧螺纹钢、锰钢带吊带);行走小车等。
5)一整套计算书和图
4、挂篮安装工艺流程
5、挂篮安装准备
1)0#块已经施工完毕,混凝土强度达到设计要求。
2)在0#块顶(对应腹板位置)测放挂篮轨道位置,并铺找平砂浆,安装轨道,利用竖向预应力锚固。【配重挂篮不用轨道,安放钢垫块】
3)挂篮各构件已经加工完毕,并在地面进行了试拼装。主桁架、横梁等在地面进行拼装,整体吊装。
6、安装主桁架系统
两个主桁片就位后,及时安装后锚固长横梁。搭设上人脚手架安装主桁架稳定杆件和前承重横梁和后行走横梁,构件均采用塔吊吊装
7、安装底篮系统
可以在地面拼装,也可以在托架上拼装
8、挂篮拼装技术要求
1)在已浇1#块箱梁两侧腹板顶面位置测量放样行走轨道中心线及安装行走轨道时,行走轨道允许偏差为:+2mm~-2mm;
2)用砂浆( M20级)调平行走轨道中心线时,两侧行走轨道中心线位置调平层面高差不得超过5mm;
3)安装吊带时,前后吊带的线形一定要顺直
9、挂篮预压
荷载为最重的块段重的1.2倍。加载与卸载一样,分5级进行。
10、观测项目
1)后锚上挠值
2)前支点沉降值
3)主桁前端销子处下挠值
4)主桁片上前横梁吊带处
5) 底篮前横梁吊带处挠度
11、观测点布置
1)在底篮前横梁各吊带位置设置观测点:观测底篮变形值;
2)在前承重桁架悬臂端、竖腹杆位置设置观测点:观测前承重桁架变形;
3)在后锚固横梁设置观测点:观测后锚变形情况,确认后锚是否紧固。
您的转发是对我们最大的支持
猜你喜欢:
3、助力2018安全生产月,这100份安全资料合集值得入手(可下载)

加入我们
投稿展示或者分享资料
一起交流一起成长
扫一扫下方二维码,灵感即刻进

官方微信或qq:483972950
官方qq群:343778875 或648915172
规范图集下载群:61754465
官方微信群需要加官方微信即可进入!
技术交流、资料分享、特权权益服务尽在公众号、微信群、qq群,详情请咨询官方微信和qq!如果群里有其他人向你兜售等不法行为,请千万不要相信上当受骗,请认准我们官方微信和qq!

































