提示:点击↑上方"土木工程资源共享"关注加入
点我资料免费下
【重磅福利】
01、实测实量目的
作为《产品质量评估管理办法(试行)》制度的补充;
规范产品质量实测过程中的程序、取样方法、测量操作、数据处理等具体步骤和要求;
提供产品质量实测的操作方法,尽可能消除人为操作引起的偏差。

02、总体要求
施工单位应按分户对分部分项工程的所有实测区进行100%实测实量并建立分户/分层实测档案;
监理公司对施工单位实测数据按不低于30%的比例进行复测;
项目部及工程部专职质量工程师对监理公司复测数据按不低于50%的比例进行复测;
一线公司应将经监理及公司相关部门复测后的实测数据作为对施工单位付款及评估的重要参考依据;
区域及集团进行实测实量时应对一线公司实测数据进行检查核对。
03、总体原则
04、砌体结构
4.1、选取原则:1个标段 → 2楼层→2*10=20个实测区
4.2、图例演示砼结构工程实测内容
4.2.1 截面尺寸偏差
【合格标准】 截面尺寸偏差[-5,8]mm
【测量工具】 5M钢卷尺
【图形演示】
4.2.2 表面平整度(砼结构)
【合格标准】 [0,8]mm
【测量工具】2米靠尺、楔形塞尺
【图例演示】
4.2.3垂直度(砼结构)
【合格标准】[0,8]mm
【测量工具】2米靠尺、楔形塞尺
【图例演示】
4.2.4 顶板水平度极差(砼结构)
【合格标准】[0,8]mm
【测量工具】2米靠尺
【图例演示】
4.2.5 楼板厚度偏差(砼结构)
【合格标准】[0,15]mm
【测量工具】激光扫平仪、具有足够刚度的5米钢卷尺(或2米靠尺、激光测距仪)
【图例演示】
4.2.6 施工控制线设置(砼结构阶段)
【合格标准】每面砌体正手墙要求设置砌筑控制线(对剪力墙则为抹灰控制线 )、线管定位控制线、水平标高控制线。
【测量工具】5M钢卷尺
【图例演示】
05、砌体工程
5.1、选取原则:1个标段 → 2-4套房→2*10=10个实测区
5.2、图例演示砌体工程实测内容
5.2.1 表面平整度(砌筑工程)
【合格标准】 [0,8]mm
【测量工具】 2米靠尺、楔形塞尺
【图形演示】
5.2.2 垂直度(砌筑工程)
【合格标准】 [0,5]mm
【测量工具】 2米靠尺
【图例演示】
5.2.3 方正度(砌筑工程)
【合格标准】 [0,10]mm
【测量工具】 5米钢卷尺、吊线或激光扫平议
【图例演示】
5.2.4 外门窗洞口尺寸偏差(砌筑工程)
【合格标准】 [0,5]mm
【测量工具】 5米钢卷尺或激光测距仪
【图例演示】
5.2.5 重要预制或现浇构件(砌筑工程)
【合格标准】
门窗框预制块:采用预制混凝土块、实心砖;空心砖墙体则在门窗洞边200mm内的孔洞须用细石混凝土填实;预制块或实心砖的宽度同墙厚;长度不小于200mm;高度应与砌块同高或砌块高度的1/2且不小于100mm;最上部(或最下部)的混凝土块中心距洞口上下边的距离为150~200mm,其余部位的中心距不大于400mm,且均匀分布。
砌体墙空调孔:须用预制混凝土块安装,无倒坡。
现浇窗台板:宽同墙厚,高度≥120mm,每边入墙内≥400mm(不足400mm通长设置);
现浇构造柱: 底部、顶部各预留4根钢筋,砼一次浇注至梁板底;
洞口(大于600MM)的过梁:同墙宽,入墙不少于250mm。
U型砌块:给水管出口、电气开关、插座位须用U型预制砼块。
【测量工具】目测,5米钢卷尺
【图例演示】
5.2.6 砌筑工序(砌筑工程)
【合格标准】
无断砖、通缝、瞎缝;
墙顶空隙的补砌挤紧或灌缝间隔不少于7天;
不同基体(含各类线槽)镀锌钢丝网规格为10×10×0.7mm,基体搭接不小于100MM;挂网前墙体高低差部分采用水泥砂浆填补;
砌体墙灰缝须双面勾缝。
【测量工具】 目测,5米钢卷尺,水泥钢钉、铁锤
【图例演示】
06、设备安装工程
6.1、选取原则:1个标段 → 2-4套房→内具备条件的设备安装工程实测指标需全部检测
6.2、图例演示设备安装工程实测内容
6.2.1 座便预留排水管孔距偏差(设备安装)
【合格标准】 [0,15]mm
【测量工具】 5米钢卷尺
【图形演示】
6.2.2 同一室内底盒标高差(设备安装)
【合格标准】 [0,10]mm
【测量工具】激光扫平仪、5米钢卷尺
【图形演示】
6.2.3 并列面板高度偏差(设备安装)
【合格标准】 [0,0.5]mm
【测量工具】钢尺或其他辅助工具(平直且刚度大)、塞尺
【图形演示】
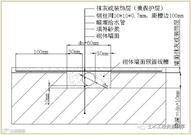
6..2.4 砼楼板和砼墙面给水管暗埋(设备安装)
【合格标准】
线槽形式:线槽采用预留方式,严禁人工打凿; 砼楼板和墙面的给水管预留线槽不得损坏结构钢筋。墙槽用水泥砂浆填补密实,且与砼面齐平;地槽用细石混凝土填补密实,并做出保护坎。
线槽尺寸:砼楼板和砼墙面预留槽深≤15MM,槽宽≤dn+60mm。
【测量工具】目测,5米钢卷尺、游标卡尺
【图形演示】
6.2.5 砌体墙面给水管暗埋(设备安装)
【合格标准】
线槽形式:采用预留、预埋或机械开槽和开洞,严禁人工打凿;墙槽用水泥砂浆填补密实,且与砌体墙平;小型空心砌块墙体的竖向管线应随墙体砌筑埋设在孔洞内,并在安装完后用水泥砂浆或细石砼灌实。
线槽尺寸:砌体墙槽深度≤dn+10mm,槽宽≤dn+60mm;空心砌块外墙水平沟槽长度大于390mm。
【测量工具】目测,5米钢卷尺、游标卡尺
【图形演示】
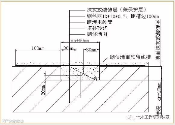
6.2.6 砌体墙电线管暗埋(设备安装)
【合格标准】
线槽形式:砌体墙面电线管应采用预留、预埋或机械开槽与开洞,严禁人工打凿;墙槽用水泥砂浆填补密实,且与砌体墙平;小型空心砌块墙体的竖向电管线应随墙体砌筑埋设在小砌块孔洞内,并在安装完后用水泥砂浆或细石砼灌实;
线槽尺寸:砌体墙槽深度≤dn+20mm,墙槽宽度≤dn+60mm,墙槽用水泥砂浆填补密实。空心砌块外墙水平沟槽长度大于390mm。
【测量工具】目测,5米钢卷尺、游标卡尺
【图形演示】
07、抹灰工程
7.1、选取原则:1个标段 → 2-4套房
7.2、图例演示抹灰工程实测内容
7.2.1 墙体表面平整度(抹灰工程)
【合格标准】 [0,4]mm
【测量工具】 2米靠尺、楔形塞尺
【图形演示】
7.2.2 墙面垂直度(抹灰工程)
【合格标准】 毛坯房交付垂直度≤4mm;装修房交付垂直度≤3mm
【测量工具】 2米靠尺
【图形演示】
7.2.3 室内净高偏差(抹灰工程)
【合格标准】 [-20,20]mm
【测量工具】 5米钢卷尺、激光测距仪
【图形演示】
7.2.4 顶板水平度极差(抹灰工程)
【合格标准】 ≤10mm
【测量工具】激光扫平仪、具有足够刚度的5米钢卷尺(或2米靠尺、激光测距仪)
【图形演示】
7.2.5 阴阳角方正(抹灰工程)
【合格标准】 ≤4mm
【测量工具】阴阳角尺
【图形演示】
7.2.6 房间开间/进深偏差(抹灰工程)
【合格标准】选用同一房间内开间、进深实际尺寸与设计尺寸之间的偏差。
【测量工具】 5米钢卷尺、激光测距仪
【图形演示】
7.2.7 方正度(抹灰工程)
【合格标准】选用同一房间内开间、进深实际尺寸与设计尺寸之间的偏差。
【测量工具】 [0,10]mm
【图形演示】
7.2.8 地面表面平整度(抹灰工程)
【合格标准】毛坯房交付地面平整度≤4mm;装修房交付地面平整度≤3mm。
【测量工具】 2米靠尺、楔形塞尺
【图形演示】
7.2.9 地面水平度极差(抹灰工程)
【合格标准】[0,10]mm。
【测量工具】激光扫平仪、具有足够刚度的5米钢卷尺(或2米靠尺、激光测距仪)
【图形演示】
7.2.10 户内门洞尺寸偏差(抹灰工程)
【合格标准】高度偏差[-10,10]mm;宽度偏差[-10,10]mm;墙厚偏差[-3,3]mm
【测量工具】5米钢卷尺
【图形演示】
7.2.11 外墙窗内侧墙体厚度极差(抹灰工程)
【合格标准】 [0,3]mm
【测量工具】5米钢卷尺
【图形演示】
7.2.12 降板(防水工程)
【合格标准】
厨房地面完成面应比相邻厅/房完成面低10~20mm。
卫生间地面完成面应比相邻/厅房完成面低20mm。
【测量工具】激光扫平仪、5米钢卷尺
【图形演示】
7.2.13 裂缝/空鼓(抹灰工程)
【合格标准】 户内墙体完成抹灰后,墙面无裂缝、空鼓
【测量工具】目测、空鼓锤
【图形演示】
7.2.14 同户型同厨卫间管井尺寸极差(抹灰工程)
【合格标准】 [0,5]mm
【测量工具】 5米钢卷尺
【图形演示】
7.2.15 同户型同厨卫间窗底框标高极差(抹灰工程)
【合格标准】 [0,10]mm
【测量工具】 激光扫平仪、5米钢卷尺
【图形演示】
7.2.16 同户型同厨卫间窗侧框墙距极差(抹灰工程)
【合格标准】 [0,15]mm
【测量工具】 5米钢卷尺
【图形演示】
7.2.17 柜体嵌入位尺寸偏差(抹灰工程)
【合格标准】 [-10,10]mm
【测量工具】 5米钢卷尺
【图形演示】
7.2.18 同户型同厨卫间开间/进深极差(抹灰工程)
【合格标准】 [-5,5]mm
【测量工具】激光扫平仪、5米钢卷尺
【图形演示】
08、防水工程
8.1、选取原则:1个标段 → 2-套房
8.2、图例演示防水工程实测内容
8.2.1 卫生间涂膜厚度(防水工程)
【合格标准】卫生间地面、墙面(非附加层部分)防水涂膜成膜良好,无分层。涂膜防水层平均厚度应符合设计,最小厚度大于设计厚度80%。
【测量工具】游标卡尺、5m卷尺
【图形演示】
8.2.2 外门窗框涂膜厚度(防水工程)
【合格标准】防水涂膜成膜良好,无分层。涂膜平均厚度应符合设计,最小厚度大于设计厚度80%。
【测量工具】游标卡尺
【图形演示】
8.2.3 卫生间附加防水层(防水工程)
【合格标准】
设置部位:卫生间的侧排口、落水口、管道周边、阴阳角、烟道反坎、管井反坎、门框底等部位须设防水附加层。防水附加层材料与防水层相同;
设置尺寸:防水附加层应从阴角开始上反和水平延伸各不小于250 mm。附加层四周上返高度超过地面完成面300mm,过门框向外延伸200mm。
涂膜厚度:切片厚度不小于设计厚度的150%。
【测量工具】游标卡尺,卷尺
【图形演示】
8.2.4 防水反坎(防水工程)
【合格标准】
空调板、雨蓬板、凸窗上部、卫生间和厨房周边后砌墙根部等部位须设置砼反坎;厚度同墙厚,高度不小于200mm;
沉箱式卫生间烟道和管井根部设置两道反坎,底部反坎宽200MM,高与装饰面层基层平,上部反坎宽不小于50MM,高出装饰完成面不小于100MM;
非沉箱式卫生间烟道和管井根部设置一道砼反坎,宽不小于50mm,高出楼地面完成面不小于100mm;
如砼反坎未与主体结构砼一起浇注,则底部须凿毛。
【测量工具】目测、5米钢卷尺
【图形演示】
8.2.5 卫生间地漏(防水工程)
【合格标准】沉箱式卫生间必须在降板最低处设侧墙式地漏。侧墙式地漏底边低于进水口底部的高度不小于15mm;垂直式地漏可以与地面完成面(装修房或毛坯房)齐平。
【测量工具】目测、5米钢卷尺
【图形演示】
09、涂饰工程
9.1、选取原则:1个标段 → 2-4套房
9.2、图例演示涂饰工程实测内容
9.2.1 墙面表面平整度(涂饰工程)
【合格标准】 [0,3]mm
【测量工具】 2米靠尺、楔形塞尺
【图形演示】
9.2.2 墙面垂直度(涂饰工程)
【合格标准】 [0,3]mm
【测量工具】 2米靠尺
【图形演示】
9.2.3 阴阳角方正(涂饰工程)
【合格标准】 [0,3]mm
【测量工具】 阴阳角尺
【图形演示】
9.2.4 顶棚(吊顶)水平度极差(涂饰工程)
【合格标准】 ≤10mm
【测量工具】激光扫平仪、具有足够刚度的5米钢卷尺(或2米靠尺、激光测距仪)
【图形演示】
9.2.5 裂缝/空鼓(涂饰工程)
【合格标准】涂饰墙面无裂缝、空鼓
【测量工具】目测、空鼓锤
【图形演示】
10、墙面饰面工程
10.1、选取原则:1个标段 → 2-套房
10.2、图例演示墙面饰面工程实测内容
10.2.1 表面平整度(墙面饰面砖工程)
【合格标准】 ≤3mm
【测量工具】 2米靠尺、楔形塞尺
【图形演示】
10.2.2 表面平整度(墙面饰面砖工程)
【合格标准】垂直度(墙面饰面砖工程)
【测量工具】 2米靠尺
【图形演示】
10.2.3 阴阳角方正(墙面饰面砖工程)
【合格标准】≤3mm
【测量工具】阴阳角尺
【图形演示】
10.2.4 接缝高低差(墙面饰面砖工程)
【合格标准】≤0.5mm
【测量工具】钢尺或其他辅助工具(平直且刚度大)、钢塞片
【图形演示】
10.2.5 裂缝/空鼓(墙面饰面砖工程)
【合格标准】饰面砖墙面无裂缝、空鼓
【测量工具】目测、空鼓锤
【图形演示】
11、地面饰面砖工程
11.1、选取原则:1个标段 → 2-4套房
11.2、图例演示地面饰面砖工程实测内容
11.2.1 表面平整度(地面饰面砖工程)
【合格标准】 ≤2.0mm
【测量工具】 2米靠尺、楔形塞尺
【图形演示】
11.2.2 接缝高低差(地面饰面砖工程)
【合格标准】 ≤0.5mm
【测量工具】钢尺或其他辅助工具(平直且刚度大)、钢塞片
【图形演示】
11.2.3 裂缝/空鼓(地面饰面砖工程)
【合格标准】饰面砖地面无裂缝、空鼓(单块砖边角局部空鼓,且每自然间不超过总数5%可不计)
【测量工具】目测、空鼓锤
【图形演示】
12、室内门安装工程
12.1、选取原则:1个标段 → 2-4套房
12.2、图例演示室内门安装工程实测内容
12.2.1 门框正、侧面垂直度(室内门)
【合格标准】反映室内门门框正、侧面垂直程度
【测量工具】 2M靠尺
【图形演示】
12.2.2 门扇与地面留缝宽度(室内门)
【合格标准】 [5,8]mm
【测量工具】楔形塞尺
【图形演示】
12.2.3 门扇与地面留缝宽度(厨卫门)
【合格标准】 [8,12]mm
【测量工具】楔形塞尺
【图形演示】
13、铝合金(或塑钢)门窗安装工程
13.1、选取原则:1个标段 → 2-4套房
13.2、图例演示铝合金(或塑钢)门窗安装工程实测内容
13.2.1 型材拼缝宽度(铝合金门窗)
【合格标准】 指铝合金门框型材拼接缝隙大小,反映观感质量和渗漏风险
【测量工具】钢塞片
【图形演示】
13.2.2 型材拼缝高低差(铝合金-塑钢门窗)
【合格标准】指铝合金门框型材接缝处相对高低偏差的程度。主要反映观感质量
【测量工具】钢尺或其他辅助工具(平直且刚度大)、钢塞片
【图形演示】
13.2.3 铝合金门或窗框正面垂直度(铝合金-塑钢门窗)
【合格标准】反映铝合金(或塑钢)门窗框垂直程度
【测量工具】 1M/2M靠尺
【图形演示】
13.2.4 门窗框固定(铝合金-塑钢窗)
【合格标准】角部固定片距门窗洞口四个角不大于200MM;中间各固定片中心距离不下于400MM;以1.5mm厚的镀锌板裁制,采用金属膨胀螺栓或射钉固定,应根据预留混凝土块位置,按对称顺序安装。
【测量工具】目测、5米尺
【图形演示】
13.2.5 边框外表面防水层(铝合金-塑钢窗)
【合格标准】
采用JS防水涂料Ⅰ型产品;洞口外侧四周分多遍涂刷JS防水,防水必须压门窗框不小于5mm且涂刷到过门窗洞阳角50mm处;
墙身为砌体时应先抹底层灰,对洞口四周粉刷收头,不能直接在砌块上涂刷JS防水;底灰不得空鼓、裂缝;涂膜无分层、起泡、裂缝现象。
【测量工具】目测
【图形演示】
13.2.6 边框收口与塞缝(铝合金-塑钢窗)
【合格标准】
窗框与洞口间无缠绕保护膜,临时固定木楔需取出;
门窗框底边及两侧边上翻150高范围采用干硬性水泥砂浆塞缝,上边及两侧边可采用发泡胶或干硬性水泥砂浆塞缝;填缝须密实;
超出门窗框外的发泡胶应在其固化前用手或专用工具压入缝隙中;严禁固化后用刀片切割。
【测量工具】目测、空鼓锤
【图形演示】
14、木地板安装工程
14.1、选取原则:1个标段 → 2-4套房
14.2、图例演示木地板安装工程实测内容
14.2.1 表面平整度(强化复合、实木复合、实木地板)
【合格标准】反映室内地板平整程度
【测量工具】 2米靠尺、楔形塞尺
【图形演示】
14.2.2 地板接缝宽度(实木复合、实木地板)
【合格标准】 ≤0.5mm
【测量工具】钢塞片
【图形演示】
14.2.3 地板接缝高低差(实木复合、实木地板)
【合格标准】 ≤0.5mm
【测量工具】钢尺或其他辅助工具(平直且刚度大)、钢塞片
【图形演示】
14.2.4 地板水平度极差(强化复合、实木复合、实木地板)
【合格标准】 ≤10mm
【测量工具】激光扫平仪、钢卷尺(或靠尺、激光测距仪)
【图形演示】
14.2.5 踢脚线与面层间缝宽(强化复合、实木复合、实木地板)
【合格标准】 ≤1mm
【测量工具】钢塞尺
【图形演示】
15、质量实测合格率评估表
您的转发是对我们最大的支持
猜你喜欢:
3、助力2018安全生产月,这100份安全资料合集值得入手(可下载)

加入我们
投稿展示或者分享资料
一起交流一起成长
扫一扫下方二维码,灵感即刻进

官方微信或qq:483972950
官方qq群:343778875 或648915172
规范图集下载群:61754465
官方微信群需要加官方微信即可进入!
技术交流、资料分享、特权权益服务尽在公众号、微信群、qq群,详情请咨询官方微信和qq!如果群里有其他人向你兜售等不法行为,请千万不要相信上当受骗,请认准我们官方微信和qq!





























































































