提示:点击↑上方"土木工程资源共享"关注加入

点我资料免费下
【重磅福利】
事故回顾
据网友爆料:2019年7月2日江苏扬州一在建工地施工升降机发生坠落事故、具体事故原因还在调查中、具体以现场事故勘察报告为准;严禁违章作业、安全生产人人有责、加强施工升降机安全技术交底,加强施工升降机安全隐患排查、严格按要求操作;加强施工升降机安全管理,具体事故原因以官方公布为准。安全从点滴做起,事故从细微防范、在此,希望建筑工作人员以此为戒,关注安全,关注生命。
施工电梯安全检查操作大全:
![]()
施工升降机
![]()
施工升降机检查评定应符合国家现行标准《施工升降机安全规程》GB 10055 和《建筑施工升降机安装、使用、拆卸安全技术规程》JGJ 215 的规定。
以下具体要求摘自《建筑施工安全检查标准》JGJ59-2011,看看怎么做才能确保升降机使用安全。
1 保证项目 1、安全装置
1)应安装起重量限制器,并应灵敏可靠;
2)应安装渐进式防坠安全器并应灵敏可靠,应在有效的标定期内使用;
3)对重钢丝绳应安装防松绳装置,并应灵敏可靠;
4)吊笼的控制装置应安装非自动复位型的急停开关,任何时候均可切断控制电路停止吊笼运行;5)底架应安装吊笼和对重缓冲器,缓冲器应符合规范要求;
6)SC 型施工升降机应安装一对以上安全钩。
![]()
起重量限制器 ![]()
举个栗子 ![]()
![]()
△这个在吊笼里,进去就可以看到的 ![]()
举个栗子 ![]()
![]()
![]()
举个栗子 ![]()
2、限位装置
1)应安装非自动复位型极限开关并应灵敏可靠;
2)应安装自动复位型上、下限位开关并应灵敏可靠,上、下限位开关安装位置应符合规范要求;
3)上极限开关与上限位开关之间的安全越程不应小于 0.15m;
4)极限开关、限位开关应设置独立的触发元件;
5)吊笼门应安装机电联锁装置并应灵敏可靠;
6)吊笼顶窗应安装电气安全开关并应灵敏可靠。![]()
举个栗子 ![]()
限位装置 ![]()
![]()
举个栗子 ![]()
3、防护设施
1)吊笼和对重升降通道周围应安装地面防护围栏,防护围栏的安装高度、强度应符合规范要求,围栏门应安装机电联锁装置并应灵敏可靠;
2)地面出入通道防护棚的搭设应符合规范要求;
3)停层平台两侧应设置防护栏杆、挡脚板,平台脚手板应铺满、铺平;
4)层门安装高度、强度应符合规范要求,并应定型化。![]()
举个栗子 ![]()
![]()
![]()
![]()
4、附墙架
1)附墙架应采用配套标准产品,当附墙架不能满足施工现场要求时,应对附墙架另行设计,附墙架的设计应满足构件刚度、强度、稳定性等要求,制作应满足设计要求;
2)附墙架与建筑结构连接方式、角度应符合产品说明书要求;
3)附墙架间距、最高附着点以上导轨架的自由高度应符合产品说明书要求。300G工程干货/建造师/八大员/施工运营方案全套学习资料![]()
![]()
附墙架安装 5、钢丝绳、滑轮与对重
1)对重钢丝绳绳数不得少于 2 根且应相互独立;
2)钢丝绳磨损、变形、锈蚀应在规范允许范围内;
3)钢丝绳的规格、固定应符合产品说明书及规范要求;
4)滑轮应安装钢丝绳防脱装置并应符合规范要求;
5)对重重量、固定应符合产品说明书要求;
6)对重除导向轮、滑靴外应设有防脱轨保护装置。![]()
6、安拆、验收与使用
1)安装、拆卸单位应具有起重设备安装工程专业承包资质和安全生产许可证;
2)安装、拆卸应制定专项施工方案,并经过审核、审批;
3)安装完毕应履行验收程序,验收表格应由责任人签字确认;
4)安装、拆卸作业人员及司机应持证上岗;
5)施工升降机作业前应按规定进行例行检查,并应填写检查记录;
6)实行多班作业,应按规定填写交接班记录。
![]()
2 一般项目
1、导轨架
1)导轨架垂直度应符合规范要求;
2)标准节的质量应符合产品说明书及规范要求;
3)对重导轨应符合规范要求;
4)标准节连接螺栓使用应符合产品说明书及规范要求。![]()
举个栗子 ![]()
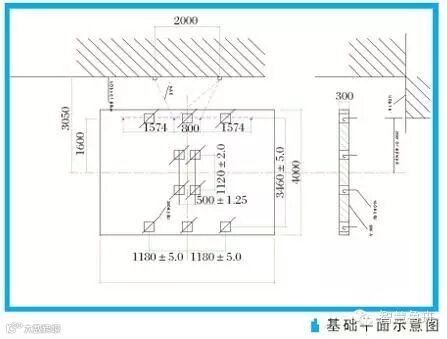
2、基础
1)基础制作、验收应符合说明书及规范要求;
2)基础设置在地下室顶板或楼面结构上,应对其支承结构进行承载力验算;
3)基础应设有排水设施。
![]()
举个栗子 ![]()
3、电气安全
1)施工升降机与架空线路的安全距离和防护措施应符合规范要求;
2)电缆导向架设置应符合说明书及规范要求;
3)施工升降机在其他避雷装置保护范围外应设置避雷装置,并应符合规范要求。![]()
4、通信装置
通信装置应安装楼层信号联络装置,并应清晰有效。
![]()
小结一下,升降机有哪些部件组成? ![]()
猜你喜欢:
3、助力2018安全生产月,这100份安全资料合集值得入手(可下载)
来源:塔吊在线,若有侵权,烦请联系删除

加入我们
投稿展示或者分享资料
一起交流一起成长
扫一扫下方二维码,灵感即刻进

官方微信或qq:483972950
官方qq群:343778875 或648915172
规范图集下载群:61754465
官方微信群需要加官方微信即可进入!
技术交流、资料分享、特权权益服务尽在公众号、微信群、qq群,详情请咨询官方微信和qq!如果群里有其他人向你兜售等不法行为,请千万不要相信上当受骗,请认准我们官方微信和qq!


