提示:点击↑上方"土木工程资源共享"关注加入
点我资料免费下
【重磅福利】
三维平法图集16G101分享
11G101自2011年9月1日实行,16G101自2016年9月1日实行,正好5年一个周期。
当初11G101的推出变化挺大的,因为2010年,《混凝土结构设计规范》(以下简称《混规》)、《建筑抗震设计规范》(以下简称《抗规》)和《高层建筑混凝土结构技术规程》(以下简称《高规》)进行了重大修订,因为G101是以规范为依据,所以,11G101相对于03G有很大变化,加之,11G101的体系也作了重大调整,进行了一些合并,从原6本图集压缩了3本图集。
那么,16G101相对于11G101有哪些变化呢?无重大变化,相似度约90%。但即使10%的差异也是需要研读。
平面表示法及平法制图规则不会有变化,规则有稳定性,不可能一直变来变去,但可以局部修正和完善。
其次,原规范依据没有变化,如果说有变化,仅《中国地震动参数区划图》(GB18306-2015)是新增的。
同时,16G101-1总说明3:“当依据的标准进行修订或有新的标准出版实施时,本图集与现行工程建设标准不符的内容、限制或淘汰的技术产品,视为无效。工程技术人员在参考使用时,应注意加以区分,并应对本图集相关内容进行复核后使用。”原图集无此说明,这条说明有多重含义,一是图集从属和依附于规范;二、凡图集与规范不符的以规范为准;三、当规范修订,图集不符部分视为无效;四,使用者不能教条地使用图集,要与规范对照复核后使用。
以下为三维图集部分内容,获取办法在文章后面有说明:
第1章柱平法施工图导读 1
1.1柱平法施工图制图规则 1
1.2柱平法施工图实例 4
1.3柱标准构造详图 6
第2章剪力墙平法施工图导读 19
2.1剪力墙平法施工图制图规则 19
2.2剪力墙平法施工图实例 28
2.3剪力墙标准构造详图 31
第3章梁平法施工图导读 55
3.1梁平法施工图制图规则 55
3.2梁平法施工图实例 63
3.3梁标准构造详图 65
第4章楼盖、板平法施工图导读 81
4.1楼盖、板平法施工图制图规则 81
4.2楼盖、板平法施工图实例 99
4.3楼盖、板标准构造详图 100
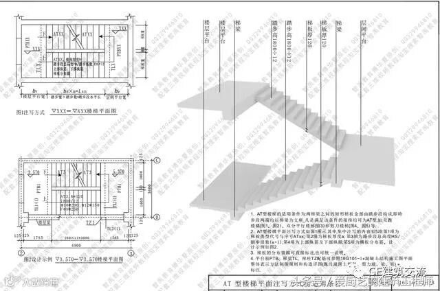
第5章板式楼梯平法施工图导读 113
5.1板式楼梯平法施工图制图规则 113
5.2板式楼梯平法施工图实例 115
5.3板式楼梯标准构造详图 116
第6章独立基础平法施工图导读 130
6.1独立基础平法施工图制图规则 130
6.2独立基础平法施工图实例 135
6.3独立基础标准构造详图 136
第7章条形基础平法施工图导读 154
7.1条形基础平法施工图制图规则 154
7.2条形基础平法施工图实例 158
7.3条形基础标准构造详图 159
第8章梁板式筏形基础平法施工图导读 167
8.1梁板式筏形基础平法施工图制图规则 167
8.2梁板式筏形基础平法施工图实例 171
8.3梁板式筏形基础标准构造详图 172
第9章桩基承台平法施工图导读 179
9.1桩基承台平法施工图制图规则 179
9.2桩基承台平法施工图实例 182
9.3桩基承台标准构造详图 183
9.4六边形承台CTJ钢筋排布构造 190
16G101-1部分图集:





16G101-2部分三维图集:



16G101-3部分三维图集:




视频教程


获取文件办法:
以上16g101(全套)三维图集获取办法:
关注微信公众号:土木工程资源共享
输入:16g101三维图集
(系统自动发送我的百度网盘下载链接给您)
切记发送其他内容不会自动回复链接。

您的转发是对我们最大的支持
喜欢就点关注及文末广告哦!
猜你喜欢:
3、助力2018安全生产月,这100份安全资料合集值得入手(可下载)

加入我们
投稿展示或者分享资料
一起交流一起成长
扫一扫下方二维码,灵感即刻进

官方微信或qq:483972950或208218379
官方qq群:343778875 或648915172
规范图集下载群:61754465
官方微信群需要加官方微信即可进入!
技术交流、资料分享、特权权益服务尽在公众号、微信群、qq群,详情请咨询官方微信和qq!如果群里有其他人向你兜售等不法行为,请千万不要相信上当受骗,请认准我们官方微信和qq!


