提示:点击↑上方"土木工程资源共享"关注加入
点我资料免费下
【重磅福利】
导言
施工图识读是所有工程人的必修技能之一,今天就给各位分享一下,在市政管道工程中常见的工程图都应该怎么识读吧。
一、管道材料
1.基本要求 具有足够的强度和一定的刚度 管道内壁表面光滑,减小水流阻力 具有一定的耐腐蚀能力 具有足够的密闭性 易加工,经济 2.常用管材 (1)混凝土管和钢筋混凝土管 强度高、取材方便;抗酸碱及抗渗性差、接头多、自重大,运输中易破损。 适用于土质不良地段、穿越铁路、道路时。 管口形式:承插、平口、企口
![]()
![]()
![]()
△预应力钢筒混凝土管PCCP ![]()
钢筒混凝土管
![]()
△现浇钢筋混凝土管渠 (2) 陶土管 上釉后管壁光滑、抗渗、抗腐蚀;易碎、强度低。 适用于排除酸性工业废水或地下水有侵蚀性时。 管口形式:承插、平口
(3)金属管 强度高、抗渗、管壁光滑、接口少;价格高、易腐蚀。 适用于抗震等级高、地下水位高或承受高压、流砂严重或对渗漏要求特别高的地段。 管口形式:法兰、承插 n常见管材:钢管、铸铁管 ![]()
△铸铁管 (4)塑料管道 施工方便、材质轻、内壁光滑;强度较低、刚性差、热胀冷缩大、在日照下易老化。 管口连接:粘接、电熔焊接 常见管材:UPVC硬聚氯乙烯、PE聚乙烯、PP聚丙烯。 ![]()
![]()
△塑料管电熔焊接
![]()
△PE管
(5)新型管材 nHDPE高密度聚乙烯、FRP玻璃钢、玻纤混凝土等 ![]()
![]()
△FRP管
3.给水管件 ①配件 n在管道的转弯、分支、变径及连接其他设备处使用 如:三通、四通、弯头、异径管(变径管)、短管(变接口)等。
②附件 输配水控制 止回阀:控制水流只朝一个方向流动,防止倒流 排气阀:排骨管道中的气体,减小水流阻力 泄水阀:排空管道,清除沉淀物 消防栓:消防车取水设施 ![]()
二、管道构造
1、基础 包括:地基、基础、管座 ![]()
![]()
①砂土基础
弧形素土基础、砂垫层基础 适用于土壤条件非常好、无地下水的地区,管道直径小于600mm,管顶覆土厚度在0.7-2.0m之间的管道,不在车行道下的次要管道及临时性管道。 ![]()
②混凝土枕基
在管道接口下设混凝土垫块 适用于土壤条件较好、无地下水的地区,给排水支管。
③混凝土带形基础 沿管道全长铺设带状水泥混凝土 n适用于各种土质,特别是土壤条件差、震区、重要管道等。 按管座的形式,分为90度、135度、180度、360度四种管座基础,根据管道埋置深度选择。
![]()
![]()
![]()
2.排水管道附属构筑物
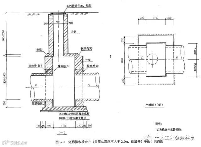
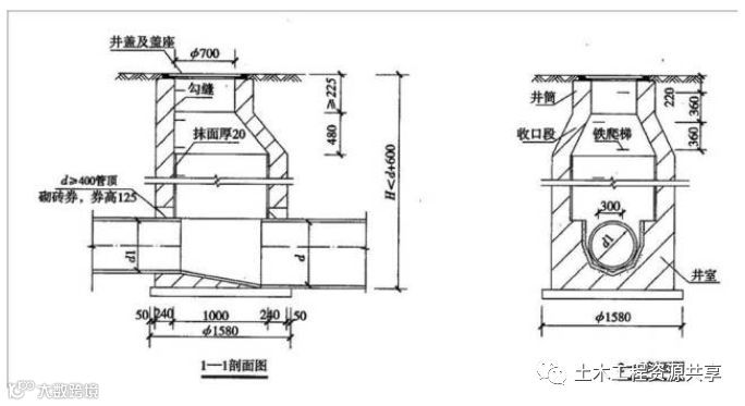
(1)检查井 n功能:便于对管道衔接以及定期检查和疏通。 位置:管道交汇、转弯、尺寸或坡度改变处、跌水、相隔一定距离的直线段上。 构造:由井底、井身、井盖组成。
![]()
井底 :
一般采用低标号混凝土、基础采用碎、卵石或混凝土; 宜设流槽,并使流槽底具有一定坡度,以降低水流阻力,防止淤积; 流槽两侧至井壁间应有不小于20cm的宽度,以便于养护人员下井时立足,即沟肩。
井身 : 以砖、石砌筑,也可以钢筋混凝土现浇。 不需要下井的浅检查井,井身为直壁圆筒形;需要下井的其井身在构造上分为井室、渐缩部、井筒三个部分。 井室直径不小于1m,井筒直径不小于0.7m。井室与井筒间以渐缩部连接。也可在井室上加钢筋混凝土盖板,在盖板上砌筑井筒。
井盖: 由井盖和盖座组成,常用采用铸铁、钢筋混凝土等。 为防止雨水流入,盖顶应略高于地面。 ![]()
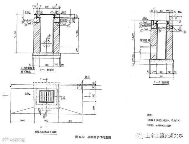
(2)雨水口
功能:收集地表径流的雨水,将其引入雨水管道。 位置:道路交叉口、直线上一定距离(25-50m)处、路缘石低洼地。 构造:由基础、井箅、井筒、连接管组成。 ![]()
4.给水管道附属构筑物
(1)阀门井 功能:安装各种给水管道附件,方便操作和养护。 (2)泄水阀井 功能:排除泄水阀所排放 水,由湿井与阀门井相连组成。 (3)支墩 功能:防止管道的承插接口因承受过大的水流推力,而导致接口脱落。 位置:弯管、三通、变径等位置
三、管道工程图一般规定
1.标高 标准规定,室外工程应标注绝对标高;无绝对标高时也可标注相对标高。 压力管应标注管中心标高 沟渠和重力管应标注沟(管)内底标高 2.管径 公称直径:DN,常用于金属管材。 如铸铁管DN25 外径:D×δ,常用于不锈钢管、无缝钢管。 如不锈钢管D108×4 内径:d,常用于混凝土管、陶土管等。 如钢筋混凝土管d300
四、平面图
图示内容 表明管道的平面位置,管道直径、长度、坡度,检查井位置、编号,水流方向等。 比例:1:500或1:1000,与道路施工图一致。 方位:坐标网或指北针 道路平面图:中心线、边线、桩号等 管线:雨水Y、污水W、给水J,以不同的线型表示。 附属构筑物:图例表示并编号,如W5,5号污水检查井。 标高:地面标高和管道标高 管道:直径、长度、坡度、流向。图2-105
![]()
五、纵断面图
图示内容 表示地面起伏情况、管道敷设深度、管道直径及坡度、与其他管道交接情况。 横向表示长度、竖向表示管径与标高。 图样部分 比例:竖向比例常为横向比例的10倍n线形:粗双线—管道、粗实线—地面、双竖线—检查井。 支管标注:SYD400—方位、代号、管径。即表示由南向接入的直径400mm的雨水管道。 ![]()
图表部分 编号:检查井编号 平面距离:相邻检查井的中心距离 管径及坡度:当管径与坡度不变时,可只标一个 管道标高:排水管是指检查井进、出口管道内底标高 设计路面标高:由道路中线设计标高、道路横坡、检查井距道路中心线的距离而推算。 原地面标高:原始自然地面。 ![]()
![]()
六、构筑物详图

猜你喜欢:
3、助力2018安全生产月,这100份安全资料合集值得入手(可下载)
版权申明:版权归原作者所有,如涉及作品版权问题,请与我们联系,我们将第一时间删除内容!

加入我们
投稿展示或者分享资料
一起交流一起成长
扫一扫下方二维码,灵感即刻进

官方微信或qq:483972950
官方qq群:343778875 或648915172
规范图集下载群:61754465
官方微信群需要加官方微信即可进入!
技术交流、资料分享、特权权益服务尽在公众号、微信群、qq群,详情请咨询官方微信和qq!如果群里有其他人向你兜售等不法行为,请千万不要相信上当受骗,请认准我们官方微信和qq!
点个“好看”,新年鸿运当头!

















