提示:点击↑上方"土木工程资源共享"关注加入
点我资料免费下
【重磅福利】
项目介绍
碧桂园龙城二期总建筑面积约12.6万平米。主体采用铝模+钢支撑体系。其中5#楼主体结构采用铝模施工,为结构免抹灰。3#6#7#楼主体采用钢支撑施工,为结构薄抹灰。1#、2#、8#、9#、10#楼多层洋房正常抹灰。结构施工过程穿插施工。

经验分享
➤1、重视前期工作
① 强化设计,提前沟通图纸
通过及时组织设计单位和施工单位沟通图纸优化调整建议,减少施工过程中的变更和返工。项目上设置专职资深图纸对接人,第一时间解决各种图纸问题。
▲ 图纸问题沟通会
② 做好图纸深化设计
项目部结合“精确备料、精准定位、一次成活”为目标,开展了主体结构深化优化,识别了门窗洞企口优化,砌体小墙垛现浇优化,窗下填充墙优化,立面复杂节点优化,墙体交界面防裂优化等形成了铝模板配模优化图、钢支撑体系配模优化图。
▲ 铝模板优化平面图
▲ 钢支撑优化平面图
③ 前期高标准策划
项目进场时就高标准定位,通过前期策划,建立项目三维效果图优化现场平面布置。实施分区管理,隔离措施到位,规划合理,设施配置到位。
➤2、高标准,严管控
① 高标准工法,样板先行
现场设置施工样板展示区, 坚持每道工序样板先行的原则。施工现场设置框架柱、剪力墙、砌体、抹灰、窗洞、构造柱、安装管线施工、屋面及卫生间防水等样板,做好对班组交底,有效地预防控制质量通病的产生。
② 验收公示制度
宣贯、培训、实施验收公示制度,使施工现场的每个人员都清楚验收关注点。每个关注点拍照片预报验,又让每个人员清楚验收的标准,提高了验收效率和验收质量。
▲ 砌体验收公示表
▲ 微信图文报验
③ 不间断培训交底
对每批新工人进行技术交底,将项目部支模体系、施工工艺、加固方式、各节点做法、质量通病防治措施,垂直平整度等质量要求传达到每个工人。
④ 落实“三张表”制度
混凝土浇筑隐蔽验收前,同步报验混凝土浇筑前模板成型质量自检数据,形成第一张表,数据达100%合格,验收公示必须附第一张表。混凝土浇筑过程中,同浇筑顺序一起对所有数据进行测量,形成第二张表,对于不合格数据及时调模,保证一次成优。拆模后及时进行墙、板质量实测实量检测,形成第三张表。发现不合格数据,及时处理,并总结分析产生的原因,避免再次爆点。
➤ 3、利用先进技术与工艺
① 使用BIM技术深化设计
项目部基于BIM软件对悬挑脚手架进行排布,重点对转角部位工字钢布置、连墙件位置进行明确,并对各类周转材料进行自动统计,提高了脚手架方案的针对性和可实施性。
对于机电部分,将优化形成的管线最优综合排布方案模型与相关方沟通确认,生成机电各专业深化图纸、预留预埋深化图纸,有效指导现场施工,保证安装工程一次成优。
使用Revit创建参数化的U-PVC管材管件族,卫生间排水管材在BIM模型下自动生成优化后的加工料单,在加工棚内进行集中加工、现场拼装施工。
![]()
② 机电标准化
机电安装施工前结合专业图纸,对公共区域点位、管井、电井、空调插座与空调孔洞等进行优化。合理排布安装所有设备,实现使用功能,排布美观,井井有条,利于业主的操作及维修,一次性施工到位,避免返工。工厂化集中高精度加工,提高效率、一次成优,减少材料浪费,避免现场垃圾产生。现场设置机电安装样板、悬挂水电工法展示牌确保每个班组熟悉施工要点。
③ 高精砌块
积极推广落实新工艺新材料,砌体工程采用精密加气块,配合铝模使用,现场达到结构与砌体双免抹灰。
➤ 4、活动倒逼现场
通过观摩会、工地开放日、第三方创优巡检等一些列活动倒逼现场,使现场做的常态化管理。
项目亮点展示
➤ 1、铝合金模板体系
① 企口优化
▲ 墙体企口优化
② 下挂梁构造柱优化,一次浇筑到位
③ 机电管道预埋,水管预埋
④ 精准标高控制
➤2、成套钢支撑体系
① 精准配模
剪提前绘制每一道墙的配模图,采用精密木工机床裁切模板,精密配模。为每块模板编号,分类堆放,按班组领取。
② 定位钢筋
剪力墙钢筋:纵向钢筋每1.5米范围增加一道竖向定位筋,水平方向顶部增设一道水平定位筋,更好的控制钢筋定位。
③ 垂直度控制
在外墙、楼梯间、电梯井以及较长墙体设置钢丝绳反拉以及布置钢管顶撑控制墙体垂直度
④ 钢楼梯模
钢支撑体系楼梯使用钢模具,减少对工人的依赖性,可达到清水楼梯的效果。
⑤ 外墙防错台漏浆
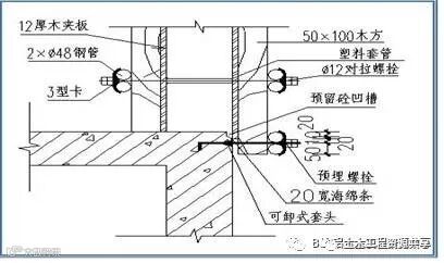
外墙上下层接缝处预留模板加固连接件,使其接缝严密。 同时,在该部位模板下口用透明胶横向粘挂小木条套管,进行堵浆、截浆。
⑥ 角铁压缝控制漏浆
墙板模板根部采用角铁固定。定位筋距离地面200mm,间距600mm。
➤3、线盒、配电箱一次性预埋
➤4、集中加工车间
通过前期图纸深化,形成相应的配料清单,结合场地规划布置,已形成安装、钢筋、木工、砌体、预制块、定型化设施等集中加工车间,实现工厂化集中批量加工,定量配送,严格控制材料造成的主体成型误差。
➤5、工艺创新
自主创新的楼板厚度控制器,相比常规楼板控制器,操作更简单。因混凝土块控制器中间部位留空设置,混凝土浇筑后可以与楼板混凝土完美融合,解决了控制器处漏水问题,不需拆除,节约了时间和成本。
更多铝模相关文章及视频,精彩不容错过!
您的转发是对我们最大的支持
猜你喜欢:
3、助力2018安全生产月,这100份安全资料合集值得入手(可下载)

加入我们
投稿展示或者分享资料
一起交流一起成长
扫一扫下方二维码,灵感即刻进

官方微信或qq:483972950
官方qq群:343778875 或648915172
规范图集下载群:61754465
官方微信群需要加官方微信即可进入!
技术交流、资料分享、特权权益服务尽在公众号、微信群、qq群,详情请咨询官方微信和qq!如果群里有其他人向你兜售等不法行为,请千万不要相信上当受骗,请认准我们官方微信和qq!






































