提示:点击↑上方"土木工程资源共享"关注加入
点我资料免费下
【重磅福利】
推荐语
施工图审查是房企把控项目设计质量的重要环节,万科针对施工图审查过程中经常出现的错项漏项进行了总结,全面强大。

一、标高及结构布置
1.面层及标高
(1)普通楼层的降板及结构标高
(2)转换层的降板及结构标高
多层项目的“梁上托柱”转换,要求没有高层建筑那么严格,楼板厚度最小取120,梁高估算取1/8,并以计算为准。降板一般也同普通楼层;高层项目的转换层要求较严,板厚为180,一般不允许设降板。
当转换层作为住宅布置时,建筑面层一般为400(350的卫生间降板加上50的厅房面层),采用陶粒混凝土局部垫高,排水都在本层解决,不穿梁板。转换层的梁尺寸较大,一般高度取1/6的跨度,宽度600~1000不等。合理的转换层柱网一般不超过7.5米。
2.梁的高度(结构梁板布置)
(1)周圈梁的梁高应和门窗设计统一
(2)非外立面上的框架梁梁高一般可取1/12的跨度,次梁可取1/12~1/14。
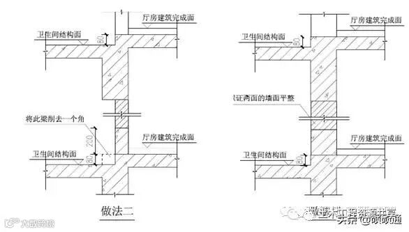
(3)穿过厨房、卫生间、阳台等降板房间的次梁,一般梁顶标高也降,即梁顶标高同板面标高。
(4)厨房、小降板卫生间和普通厅房之间的梁一般做成缺口梁,梁顶标高同普通厅房的结构板标高。
(5)室内悬挑梁要注意不要露出梁头,尽量将梁设置成同高。
3.结构梁定位及尺寸
卫生间结构梁的定位和尺寸符合建筑的要求
4.结构找坡
住宅屋面、露台采用≥2%上斜下平的变厚度结构找坡;
双面停车(非住宅室内)的车库顶面,一般采用≥2%的上下都斜的同厚度结构找坡;
车库楼面采用1%的上下都斜的同厚度结构找坡。
二、门窗设计
1.和管道矛盾门窗和管道打架
门窗平面布置应尽量避开管道;门窗两边有排水管或安装空调处,应设置门窗垛。
2.门窗数量和开启数量
(1)门窗数量
a.住宅设计规范采光通风要求
b.夏热冬暖地区节能规范要求,外窗各朝向窗墙面积比规定:北向不大于0.45;东、西向不大于0.30;南向不大于0.50。
c.夏热冬冷地区节能规范要求:
(2)门窗的开启数量
a.住宅设计规范通风要求,卧室、起居室(厅)、明卫生间的通风开口面积不应小于该房间地板面积的1/20。厨房的通风开口面积不应小于该房间地板面积的1/10,并不得小于0.60㎡。
b.夏热冬暖地区节能规范要求,外窗(包括阳台门)的可开启面积不应小于所在房间地面面积的8﹪;或者外窗的可开启面积不应小于外窗面积的45%。
c.夏热冬冷地区节能规范要求,开窗面积没有特别规定,多层住宅外开窗宜采用平开窗。
3.门窗开启方式
(1)厨房、卫生间可以多用上悬窗;
(2)厅、卧多用平开窗、推拉门;
(3)出阳露台可用推拉门,但应设雨蓬(南方);
(4)作为入户门的开启扇应带门锁。
4.门窗的合理尺寸
(1)开启扇宽度≤650
(2)门高≤2350
(3)推拉门宽度≤1000
(4)入户门做门槛石
入户门的尺寸要符合区域战略采购的规定:
外墙铝合金门窗高度
5.门窗的立面分格
(1)门窗顶面一般应平齐;
(2)在立面展开图上,横梃的位置应基本一致,且不应位于视线高度范围内(1400~1800);
(3)底部反坎 :凸窗窗台高450;落地窗至少设混凝土反坎100高(结构~结构),且与立面符合。
(4)楼梯间窗的底标高和开启扇高度应和平台的标高对应,符合使用功能。
(5)门窗分格太大,会很大程度上影响成本。建议:分格尺寸≤1100x2300或≤1500x1600。
6.门窗的低窗防护
(1)无室外阳台的外窗台距离室内地面高度小于0.90m时,必须采用安全玻璃并加设可靠的防护设施,窗台高度低于0.6米的凸窗,其计算高度应从窗台面起算。
(2)对于碰撞后可能发生高处人体或玻璃坠落的情况,防护措施必须采用可靠的护栏。
(3)承受水平荷载的栏杆除处于首层(5米高度以下)可用钢化玻璃以外,其余的玻璃栏杆必须采用钢化夹层玻璃,玻璃栏杆(高度1.1米左右)采用10+1.52+10的钢化夹胶玻璃,铝合金玻璃栏杆至少采用6+0.76+6的钢化夹胶玻璃。
三、屋面设计
1.屋面的标高
对于屋面、露台,由于做法高度有变化,建筑图上一般只标注结构标高,所以屋面、露台的建筑、结构标注的标高是一样的。
2.屋面的分户墙
分户墙不应低于1800。
3.屋面的反坎高度
(1)出屋面的门槛高度同露台,即屋面降板250~300或做250~300(结构-结构)高的混凝土门槛。即室内或门槛比屋面完成面最高点高50~70,比室内高200~250。
(2)屋面和房间墙体的交接处设置不小于500高的混凝土反梁或反坎。
(3)女儿墙、分户墙至少做500高的混凝土反坎。
4.屋面的排水
(1)板面跨中不设反梁,若设反梁,反梁至少反200以上,并在梁紧贴板面的标高处预留过水洞,并在洞口做疏水处理。
(2)住宅屋面采用≥2%的上斜下平变厚度的结构找,坡面积大于100平米增设两个排水地漏。学习qq群44642190
(3)当小于100平米时,设一个地漏,但必须附加一个泄水口。
(4)屋面找坡方向不宜拐弯找坡,应增设侧排地漏来解决 。
(5)当采用侧排地漏时,地漏口的过水面积应足够大,满足屋面排水的要求。
5.屋面的节点设计
(1)天窗
a.屋面天窗反坎应至少高出屋面的完成面大于200,即高出结构面至少400高。天窗应独立设置,不能和女儿墙、其他房间的外墙连在一块。若确认不能避免,应在四周设排水沟,其紧挨的墙体应做混凝土反梁,反梁应比天窗高200以上。
b.天窗应高过屋面,并在天窗四周应设排水沟或不锈钢泛水板。
c.节能规范要求,天窗面积不应大于屋顶总面积的4%,其传热系数K不应大于4.0 W/(m2·K),天窗本身的遮阳系数SC不应大于0.5。
d.出屋面烟道出风口设置不合理,影响排烟效果。增加出风面积,并加百页。
(2)烟道
a.出屋面烟道不能和女儿墙整浇在一起 。
在上人屋面或靠近上人屋面,排烟道出屋面的烟囱孔底标高不应低于顶层露台地面完成面1800。
b.出屋面烟道应设≥500高的混凝土反坎。
c.出屋面烟道不宜设开口的洞口,否则应设防水百页。
d.如无排水管井,卫生间排气管不宜走室内,应沿外墙敷设。
(3)排气口
a.排气口如设在(或靠近)上人屋面,排气口距屋面完成面应不小于1800。
b.如排气口设在非上人屋面,排气口距屋面完成面不应小于500。
c.排气口不应影响露台及窗。
d.老虎窗和坡屋面相交处至少设600高的混凝土反坎或全部做成混凝土。
e.老虎窗等小屋面檐口应做反边100高,并在反边设排气孔。
(4)老虎窗
a.老虎窗和坡屋面相交处至少设600高的混凝土反坎或全部做成混凝土。
b.老虎窗等小屋面檐口应做反边100高,并在反边设排气孔。
四、结构知识
1.荷载
(1)荷载分为:恒载、活载。
(2)活载普通厅房、厨卫、楼梯为2KN/m2,阳台为2.5KN/m2,消防楼梯为3.5KN/m2,普通车库为4KN/m2,消防车道为20KN/m2,不上人屋面为0.7KN/m2,上人屋面为2KN/m2,屋顶花园为3KN/m2。
(3)楼面估算荷载可按15~28KN/m2(包括所有荷载)。
2.构件尺寸
(1)普通构件尺寸:双向板厚为1/40~1/45跨度;梁高度:1/12跨度,地下室顶板梁约为1/10;混凝土墙1/16~1/20高度。
(2)框架柱最小350x350
(3)人防构件尺寸:
临空墙:300(计算要求);
人防隔墙:250;
人防顶板:200;
人防底板:根据水头计算。
五、其他
1.花池
(1)花池四周设混凝土池壁。和结构主体相连时,也必须设混凝土池壁。
(2)花池必须设排水孔。
(3)覆土花池做滤水层。
2.入户门上未设雨蓬
(1)所有外立面门上必须设雨蓬或有顶盖;雨蓬板面标高应比室内楼面标高底,或在雨蓬根部设不小于150的反坎。
(2)室外楼梯必须做不小于150的反坎。
3.覆土厚度
根据植物种类设置覆土厚度;
六、扩初部分
1.出图纸存在的问题
(1)图纸深度不够:平立剖、结构、设备;
(2)规范理解不透:车库、人防、消防;
(3)技术方案不深:平面、剖面、结构、设备;
(4)专业协调不够:结构和地形、给排水和总图、给排水和规划。
2.提高扩出图纸质量的措施
(1)明确出图标准和内容,交底:
《扩初出图标准和图纸目录》《施工图设计指导书》;
(2)上部户型方案、架空层及地下室(包括人防布置)方案由项目负责人确认;
(3)上部结构方案、地下室方案、基础方案、设备方案通过技术部审核沟通条件图确认;
(4)项目负责人收图时请核对图纸目录、报建资料、审图资料。
您的转发是对我们最大的支持
猜你喜欢:
3、助力2018安全生产月,这100份安全资料合集值得入手(可下载)

加入我们
投稿展示或者分享资料
一起交流一起成长
扫一扫下方二维码,灵感即刻进

官方微信或qq:483972950
官方qq群:343778875 或648915172
规范图集下载群:61754465
官方微信群需要加官方微信即可进入!
技术交流、资料分享、特权权益服务尽在公众号、微信群、qq群,详情请咨询官方微信和qq!如果群里有其他人向你兜售等不法行为,请千万不要相信上当受骗,请认准我们官方微信和qq!















