提示:点击↑上方"土木工程资源共享"关注加入
点我资料免费下
【重磅福利】
导语
![]()
实测实量,是指应用测量工具,通过现场测试、丈量,得到能真实反映产品质量的数据,把误差控制在规范允许范围之内的方法。实测实量项目涵盖了主体结构阶段、砌筑阶段、抹灰阶段和装修阶段的主要工序。
中建三局集团对于实测实量做法的交底演示
实测实量之混凝土工程 混凝土工程主要测量:
· 截面尺寸偏差
· 表面平整度
· 垂直度
· 顶板水平极差2
实测实量之砌筑工程
砌筑工程主要测量:
· 表面平整度
· 垂直度3
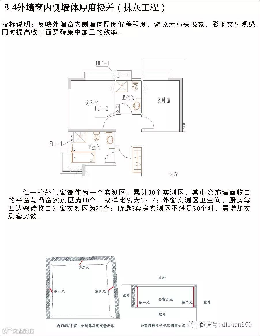
实测实量之抹灰工程
抹灰工程主要测量:
· 表面平整度
· 垂直度
· 室内净高偏差
· 阴阳角方正
· 开间/进深偏差
· 门窗洞口尺寸偏差
中天集团实测实量关键指标讲解
一、平整度
反映层高范围内剪力墙、砼柱表面平整程度。
二、垂直度
反映层高范围内剪力墙、砼柱表面垂直的程度。
三、截面尺寸、门窗洞口尺寸
反映层高范围内墙、柱、门窗洞口施工尺寸与设计图尺寸的偏差。
四、阴阳角方正度
反映层高范围内抹灰墙体阴阳角方正程度。
五、顶板平整度
反映层高范围内砼顶板平整程度。
六、方正度
选用同一房间内同一垂直面的砌体墙面与房间方正度控制线之间距离的偏差,作为实测指标,以综合反映同一房间方正程度。
七、房间开间/进深偏差
选用同一房间内开间、进深实际尺寸与设计尺寸之间的偏差。
每一个测量分项都由以下几个部分组成:
1、测量对象
2、合格标准
3、测量工具
4、抽样测量原则
5、测量方法
6、测量示意图
万科集团实测实量控制做法
第一篇:万科实测实量体系-总则
万科实测实量取样原则
第二篇:万科实测实量尺寸控制篇
混凝土结构工程尺差控制
砌筑工程尺差控制
③抹灰工程尺差控制
第三篇:万科定尺加工尺寸控制
万科砌筑工程尺差控制
万科抹灰工程尺差控制
☞点击:工程资料免费下载
第四篇:万科质量观感控制篇
万科设备安装观感质量
万科抹灰程观感质量
③万科装饰工程观感质量
万科饰面砖工程观感质量
⑤万科地面砖工程观感质量
万科室内门观感质量
铝合金门窗观感质量
⑧万科木地板工程观感质量
第五篇:万科防渗漏篇
第六篇:万科防空鼓/开裂篇
实测区与合格率计算点:所选户型内有饰面砖墙面的厨房、卫 生间等每一自然间作为1个实测区。所选套房内所有墙体全检。累计 实测实量10个实测区。1个实测区的实测值作为1个实测合格率计算 点。所选2套房的实测区不满足10个时,需增加实测套房数。
数据记录:所选同一实测区只要发现有1条裂缝或通过空鼓锤敲 击发现有1处空鼓就可以认为该实测区的1个实测点不合格。反之,则 该实测区1个实测点为合格。不合格点均按“1”记录,合格点均按 “0”记录。
18.9.裂缝/空鼓(地面饰面砖工程)
指标说明:反映户厨房、卫生间、走道等地面饰面砖工程裂缝/空 鼓的程度。
18.9 裂缝/空鼓(地面饰面砖工程)
实测时,厨房和卫生间户内墙面测量部位需完成贴砖工程。同一实测区通过目测、空鼓锤敲击方式,检查是否符合合格标准。
18.9裂缝/空鼓(地面饰面砖工程)
您的转发是对我们最大的支持
猜你喜欢:
3、助力2018安全生产月,这100份安全资料合集值得入手(可下载)
版权申明:版权归原作者所有,如涉及作品版权问题,请与我们联系,我们将第一时间删除内容!

加入我们
投稿展示或者分享资料
一起交流一起成长
扫一扫下方二维码,灵感即刻进

官方微信或qq:483972950
官方qq群:343778875 或648915172
规范图集下载群:61754465
官方微信群需要加官方微信即可进入!
技术交流、资料分享、特权权益服务尽在公众号、微信群、qq群,详情请咨询官方微信和qq!如果群里有其他人向你兜售等不法行为,请千万不要相信上当受骗,请认准我们官方微信和qq!
点个“好看”,新年鸿运当头!




















































































































































































