提示:点击↑上方"土木工程资源共享"关注加入
点我资料免费下
【重磅福利】
一、铣接法地下墙施工流程
1.1 铣槽机铣接法工法示意图
1.2 铣抓结合施工流程图 根据地勘报告,一期槽上部土体采用SG60液压抓斗成槽机进行成槽施工。为防止成槽机精度达不到要求,待液压抓斗成槽机成槽至25m时,采用铣槽机进行下部分的铣槽施工,二期槽采取铣槽机一铣成槽。成槽前必须使用导向架对槽段进行精确定位。双轮铣铣槽速率不宜过快,切削速度宜控制在10cm/min。地下连续墙抓铣结合施工工艺流程图详见图4-1。 槽段终孔并验收合格后,即采用液压铣槽机进行泵吸法清孔换浆。将铣削头置入孔底并保持铣轮旋转,铣头中的泥浆泵将孔底的泥浆输送至地面上的泥浆分离器,由振动筛除去大颗粒钻碴后,进入旋流器分离泥浆中的粉细砂。经净化后的泥浆流回到槽孔内,如此循环往复,直至回浆达到 “砼浇筑前槽内泥浆”的标准后,然后再置换新鲜泥浆。在清孔过程中,可根据槽内浆面和泥浆性能状况,加入适量的新浆以补充和改善孔内泥浆。
1.3 铣槽机工作原理和铣接法工艺 液压铣槽机是地下连续墙开挖设备,采用在机体底部的两套液压驱动的铣轮相对旋转,通过安装在铣轮上的刀具切削地层。切削下来的渣土与膨润土泥浆混合,用安装在铣轮上部的泥浆泵泵送出槽孔,至泥浆净化系统将膨润土泥浆和渣土分离,泥浆可返回槽孔继续利用。 铣槽机成槽原理图见下图:
二、铣接法地下墙分幅及施工顺序
铣槽机机械尺寸为定尺,每铣的成槽宽度为2.8m,所以三铣成槽的槽段划分宽度最合适应为6.4~7m(一期槽成槽实际宽度),一期槽的分幅宽度包括两侧须多浇筑的30cm混凝土(二期槽成槽时的切割宽度),本工程一期槽的分幅宽度为6.6m。 在正式施工地下墙前必须对槽段进行最为妥善的划分,确保铣槽机能正常铣槽。 二期槽分幅宽度为2.2m,不包含切割两侧一期槽接头混凝土,每边切割宽度30cm。详见下图: 超深地墙施工顺序为先一期槽段,再二期槽段,持续施工,当相邻两Ⅰ期槽强度达80%时,开始进行其间的Ⅱ期槽施工,以免时间太长混凝土强度过高,增加铣削的难度。确保施工质量。地连墙成槽顺序详见附图二。 地下墙施工顺序要满足以下几个要求: 1、二期槽施工时候,相邻两个一期槽已经施工时间要长于3天,且不要长于2周。 2、确保各工作面之间距离合适,距离太近设备作业会相互影响,距离太远设备来回奔波浪费时间。 3、先集中完成一个区域再施工另一个区域,这样可以使各工作面都始终在一个区域内施工,距离不用拉的太远。已经施工好的区域也可用于结构施工准备。
三、主要施工工艺及控制要点
3.1 导墙形式及制作 (1)导墙形式 导墙结构设置采用倒“L”形结构钢筋混凝土导墙。墙厚度为200mm,墙间距离为1.25m、1.05m,深度为1.8m,导墙内翻边为1m,且必须入原状土,外翻边与施工道路相接,双层钢筋Φ16@200。 (2)导墙施工流程 (3)导墙施工方法 导墙质量的好坏直接影响地下连续墙的轴线和标高,并且是成槽设备导向、存储泥浆稳定液位、维护上部土体稳定和防止土体坍落的重要措施。施工时在场地上分段沿地下墙轴线设置龙门柱,以准确控制导墙轴线。采用反铲挖土机开挖沟槽,完毕后由人工进行修坡,随后立导墙模板,模板内放置钢筋网片。导墙要对称浇筑,强度达到70%后方可拆模。拆除后设置上下两档圆木或现浇钢筋砼对撑,水平间距2m,并向导墙沟内回填土方,以免导墙产生位移。在未回填土方之前,在导墙顶面铺设安全网片,导墙两边设置栏杆和彩条旗,保障施工安全。 (4)导墙制作允许偏差 导墙是地下连续墙在地表面的基准物,导墙的平面位置和制作质量决定了地下连续墙的平面位置和施工质量,因而,导墙施工放样必须正确无误,导墙制作尺寸必须符合规范。导墙允许偏差见下表:
(5)导墙施工技术措施 在回填土上部需做导墙和施工道路的部分先铺30cm厚建筑垃圾,再铺20cm厚碎石道渣,最后做导墙和施工道路。视情况需要也可在回填土内部增加加固措施。 (6)导墙施工注意要点
在导墙施工全过程中,都要保持导墙沟内不积水。 导墙沟侧壁土体是导墙浇捣混凝土时的外侧土模,应防止导墙沟宽度超挖或土壁坍塌。 现浇导墙分段施工时,水平钢筋应预留连接钢筋与邻接段导墙的水平钢筋相连接,同时应该避免接缝与槽段的分幅太近。 导墙是液压成槽机和铣槽机成槽作业的起始阶段导向物,必须保证导墙的内净宽度尺寸与内壁面的垂直精度达到有关规范的要求。 导墙立模结束之后,浇筑混凝土之前,应对导墙放样成果进行最终复核,并请监理单位验收签证。 导墙混凝土自然养护到70%设计强度以上时,方可进行成槽作业,在此之前禁止车辆和起重机等重型机械靠近导墙。 在导墙施工前,应根据管线交底内容尽量多挖样洞,尤其是埋深较深的雨污水管,在导墙的施工阶段就力争处理掉。
3.2 泥浆制备 3.2.1.泥浆储存系统 泥浆搅拌、循环、废弃的泥浆储存采用15个泥浆筒仓,另外浇筑8个6m×10m×2.5m的混凝土泥浆池,共计储浆15*70+8*150=2250m³,最大单幅槽段为工作井1.2m厚6.6m一期槽,单幅最大理论方量为601.9m³,储浆量满足最大理论方量三倍。泥浆系统平面布置如下图:
(1)泥浆筒系统 新鲜泥浆储存采用泥浆筒¢2.7m*12m。 泥浆筒内泥浆主要用于清孔过程中新鲜泥浆供应。 1)泥浆筒仓运作剖面图见图4.3-4 2)泥浆筒安装流程见图4.3-5 3)泥浆筒安装技术措施 泥浆筒必须安放在坚固的基础上,泥浆筒基础采用30cm道渣,其上铺设35cmC30混凝土,配筋¢16双排。 安装泥浆筒前,应提供带有500×500×20mm厚的预制钢板的钢筋混凝土平台。 用吊车将泥浆筒吊装到位,搭建好第一个泥浆筒后,为确保安全,用钢丝绳将其拉紧。 安装好泥浆缸后,需用7mm填角焊将泥浆缸安装到预制钢板上。见图4.3-6:泥浆筒和预埋钢板固定图 泥浆筒基础周边应设置排水沟和集水坑,防止雨水浸泡地基。
见图4.3-8:泥浆筒系统照片
4)泥浆筒仓安装稳定计算 见附件1:泥浆筒仓安装稳定计算 3.2.2.泥浆系统工艺流程 泥浆系统运作工艺见下图: 3.2.3.泥浆材料 采用复合钠基膨润土美国捷高(优钻100)膨润土。 为解决常规泥浆在地下墙施工中,尤其是在地下墙施工中其护壁性能、携渣能力、稳定性、回收处理等种种方面的不足,我们选用新型的复合钠基膨润土(优钻100)泥浆。 该膨润土是美国“捷高”公司生产,膨润土来源于中国最好的膨润土矿产地——辽宁。该膨润土是一种高造浆率、添加特制聚合物的200目钠基膨润土,适合于各种土层,尤其是超深地下墙的护壁要求。 复合钠基膨润土泥浆由钠基膨润土和高分子量聚合物、添加剂组成。其护壁机理为,聚合物分子在槽壁表面的吸附胶结作用,由聚合物和膨润土颗粒共同构成的泥皮对槽壁的胶结作用。 由于采用了钠基膨润土,其水化后的膨胀倍数为钙基膨润土的10倍以上,膨润土的小板结构充分打开。膨润土的小板与高分子聚合物之间的桥接作用,可在槽壁孔壁形成又薄又韧、致密的泥皮。大大降低了泥浆的滤失,使泥浆的失水量减少,从而降低了对周边地层含水量的扰动,使孔壁周边的地层尽量保持原状,防塌性能增强,见图4.3-11。
3.2.4.泥浆材料特性 优钻100(钠基膨润土)是一种较高造浆率、添加特制聚合物的钠基膨润土。它具有以下特性。 1)泥浆化学稳定性强,携砂能力强 由于新型泥浆有很强的抵御较强的有害离子侵袭,其化学稳定性强,在不断的循环和使用过程中始终保持较强的稳定性和携砂能力,能够在较长时间中悬浮泥浆中的砂粒,有效地减少超深地下墙施工中沉渣过厚现象的发生。 2)低密、低切力 低固相泥浆在初配和循环中的固相含量都不高,密度一般在1.02~1.04g/cm3,粘度和切力也比细分散泥浆小。这种泥浆有下述优点:泥浆容易净化;槽内泥浆与灌注混凝土的密度、粘度差大,混凝土受泥浆的危害减小。 3)配制简单,快速 4)作用时间长,泥浆混合后可在较长时间内保持泥浆性能稳定。 5)在不稳定地层中可形成薄的、致密的泥皮。 6)泥浆稳定性好,悬浮渣能力强,新鲜泥浆比重一般在1.03~1.10,只要一成槽,土、砂颗粒可以马上混入泥浆中并增大泥浆比重到1.1~1.2之间。 3.2.5.泥浆配制 优钻100在专用拌浆筒中进行搅拌。配浆用水采用净化后的湖水,在配浆前,加入适量纯碱将酸性水或硬水的PH值调到8~9,以达到最佳配浆效果。 3.2.6.泥浆性能指标及配合比设计 (1)泥浆掺量和指标的关系 泥浆材料进场后,需按照以上指标进行检验,满足要求方可使用。 (2)新鲜泥浆配合比 (3)泥浆的各项性能指标
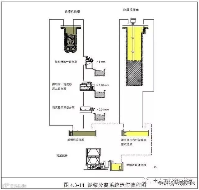
3.2.7.泥浆回收和再生处理 清孔回收泥浆必须通过泥浆分离系统进行分离后再经过调浆后方可继续使用,为确保泥浆分离效果,本工程采用德国宝峨泥浆分离系统,该分离系统每小时处理泥浆量达300m3,完全能满足泥浆分离要求。见图4.3-13:泥浆分离系统图.
循环泥浆经过分离净化之后,虽然清除了许多混入其间的土渣,但并未恢复其原有的护壁性能,因为泥浆在使用过程中,要与地基土、地下水接触,并在槽壁表面形成泥皮,这就会消耗泥浆中的膨润土成分,并受混凝土中水泥成分与有害离子的污染而削弱了的护壁性能,因此,循环泥浆经过分离净化之后,还需调整其性能指标,恢复其原有的护壁性能,这就是泥浆的再生处理。 宝峨泥浆分离系统运作流程见图4.3-14: (1)净化泥浆性能指标测试 通过对净化泥浆的比重、PH值和粘度等性能指标的测试,了解净化泥浆中主要成分膨润土、纯碱消耗的程度。 (2)补充泥浆成分 补充泥浆成分的方法是向净化泥浆中补充膨润土、纯碱等成分,使净化泥浆基本上恢复原有的护壁性能。
3.2.8. 泥浆废弃处理 (1)废弃指标 一般来说,当泥浆的性能指标达到如下3项时,应考虑废弃处理,废弃泥浆材用罐车拉到指定地点排放。 a. 泥浆比重ρ>1.25; b. 泥浆中的含砂量>10%以上; c 泥浆的pH>13。 (2)劣化泥浆处理 劣化泥浆是指浇灌墙体混凝土时同混凝土接触受水泥污染而变质劣化的泥浆和经过多次重复使用,粘度和比重已经超标却又难以分离净化使其降低粘度和比重的超标泥浆。 本工程劣化泥浆先用泥浆箱暂时收存,然后泵送到指定区域沥干后外弃。 3.3 成槽挖土 3.3.1 成槽设备 铣接法地下墙配备2台德国宝峨铣槽机,配备有垂直度显示仪表和自动纠偏装置,可以做到随挖随测随纠。为确保成槽质量及施工效率,可同时配置两套金泰SG60成槽机,挖除槽段上部土体,铣抓结合。 (1)铣槽机及配套泥浆分离系统 采用2台德国宝峨BC40液压铣槽机,由于我公司铣槽机设备较新,性能好,维修率低,设备使用效率高,因此完全可以满足本工程进度要求。 一期槽由抓斗成槽机配合铣槽机进行成槽,二期槽全部由铣槽机进行成槽。 2)铣槽机齿轮选择 在强风化~中风化岩石中,铣槽机配标准轮铣槽,在微风化花岗岩中,铣槽机配备锥轮进行铣槽,下图为标准齿和锥齿照片:
本工程配备标准齿可满足铣槽要求。 3)金泰SG60成槽机 地下连续墙上部25m土体采用金泰SG60液压抓斗成槽机进行成槽。SG60成槽机性能见下表4.3-5:
3.3.2 成槽方法 铣接法接头地下连续墙一期槽采用抓铣结合成槽,即上部粘土地层(上部约25m土体)用液压抓斗(液压抓斗施工工艺见第五章)开孔,下部土用铣槽机进行铣槽,二期槽全部采取铣槽机成槽。 3.3.3 成槽顺序及流程 (1)一期槽成槽 一期槽分三铣成槽,成槽顺序见下图 (2)二期槽成槽安装定位架,一铣成槽。 3.3.4 铣槽机成槽注意要点 成槽前需对二期槽进行精确定位。必须使用导向架,固定导向架时可在撑开的四个位置分别垫四个木块(不要选择铁块或混凝土块),这样导向架就会固定得更加牢靠。 双轮铣下放到3.5~5.0米才可以铣槽。切削不要切得太快,切削速度一般控制在4~6厘米/分钟。如果铣槽深度超过8.0~9.0米,可以提高切削的速度至10~11厘米/分钟。 一定要确保所有的铣齿状况良好,时刻注意X向、Y向的垂直度。 泥浆的质量必须控制得很好,否则会使铣头的浮力增加,X向、Y向纠偏会比较困难。 不要在槽成槽时将X向纠偏板完全打开,如果这样做,铣头立即会卡在槽中。使用纠偏板切记要慢慢打开纠偏板,一点一点慢慢地进行纠偏。 当穿过硬的土层的时候,要密切注意纠偏板处在地层中什么位置,如果纠偏板正好在硬地层,而铣轮正好在软土地层,那就要注意,在纠偏推出纠偏板的时候,纠偏板会和硬土层卡的非常紧,增加了斗体下放的阻力,这是会告诉你一个错觉,你还以为是铣轮遇到阻力使斗放不下去,但如果此时处在软土中的铣轮已经将铣轮下土铣掉,斗又被拎空的被纠偏板卡在硬土层时候,你还用很大的力向下放斗同时再收纠偏板的时候,就会造成斗以下摔下去的很危险结果,因此当放斗阻力大时候,必须先将斗拎住,然后铣削一段时间,确保铣轮下杂物抽干净,然后将纠偏板收起来,在慢慢下放。 当正在铣软土层和硬土层交界处的时候,纠偏是比较困难的,因为纠偏板所处的位置是软土,顶出去后受下面硬土影响会没有反应,这也要靠机手根据自己的经验去操作。
3.3.5 成槽过程中精度控制 (1)目测纠偏 在槽段开挖过程中,槽段垂直度可以通过目测法来初步判断,使槽段开挖垂直度偏差在最大允许值范围之内。操作如下图: 目测纠偏仅是现场管理的一般参照,并随时和铣槽机电脑屏幕显示的偏斜量进行对照,以电脑显示的偏斜量作为纠偏的依据,最终偏斜量以超声波检测结果为准。
(2)铣槽机纠偏 铣槽机有纠偏装置,可以随挖随进行纠偏,确保成槽垂直度要求,根据安装在液压成槽机上的探头,随时将偏斜的情况反映到通过探头连线在驾驶室里的电脑上,驾驶员可根据电脑上四个方向动态偏斜情况启动液压成槽机上的液压推板进行动态的纠偏,这样通过成槽中不断进行准确的动态纠偏,确保地下墙的垂直精度要求。另外在铣槽时要保持钢丝绳受力状态,便于控制精度。纠偏原理见下图
3.3.6 槽段检验 ① 槽段检验的内容 (a)槽段的平面位置。 (b)槽段的深度。 (c)槽段的壁面垂直度。 ② 槽段检验的工具及方法 (a)槽段深度检测: 用测锤实测槽段左中右三个位置的槽底深度,三个位置的平均深度即为该槽段的深度。 (b)槽段壁面垂直度检测: 每幅槽段完成成槽后,用超声波测壁仪器在槽段内扫描槽壁壁面,测量地下连续墙垂直度及成槽状态,对地下连续墙成槽质量进行评价,见下图: ③ 成槽质量评定 以实测槽段的各项数据,评定该槽段的成槽质量等级。 3.4 铣接法清孔、换浆 本工程地下墙在完成铣槽后用铣槽机及配套的宝峨泥浆分离系统进行清孔换浆。 槽孔终孔并验收合格后,即采用液压铣槽机进行泵吸法清孔换浆。将铣削头置入孔底并保持铣轮旋转,铣头中的泥浆泵将孔底的泥浆输送至地面上的泥浆分离器,由振动筛除去大颗粒钻碴后,进入旋流器分离泥浆中的粉细砂。经净化后的泥浆流回到槽孔内,如此循环往复,尽可能的将泥浆中的泥沙分离干净后开始置换槽内泥浆。
换浆回收泥浆过程中,必须用泥浆分离系统对回收泥浆进行分离,分离后泥浆应经过检测,合格的泥浆继续循环使用,不合格的作废弃处理。见图4.3-27:泥浆系统管理示意图
清孔完成后,在下放钢筋笼前需要进行沉渣测定,如果不满足标准必须再次进行扫孔,确保槽段深度和沉渣厚度符合要求。
3.5 刷壁 为避免清孔和置换泥浆过程中,置换出的品质较差的循环泥浆在地下墙接头处留下厚的泥皮影响接头防渗效果,因此在完成二期槽成槽、且清孔换浆后,再对相邻已经施工完成的地下连续墙接头进行刷壁。刷壁器采用钢丝刷的刷壁器,利用其较大的自重使钢丝刷子紧贴于锯齿形的砼表壁上,从而可对其进行较为彻底的刷洗。刷壁过程中上下反复清刷,每上升一次清除一次刷子上的淤泥,直到钢丝刷上不再有泥为止,刷壁完成后用抓斗扫除刷壁时沉积在槽底沉渣。 3.6 扫孔 分两次扫孔,第一次扫孔是在成槽完成后,扫除槽底淤泥和沉渣,由于泥浆有一定的粘度,土渣在泥浆中沉降会受阻滞,沉到槽底需要一段时间,因而扫孔需要在成槽结束一定时间之后才开始,直到槽底沉渣完全扫除干净后再清孔和换浆。 第二次扫孔是在清孔、换浆和刷壁完成后,用抓斗扫除槽底部可能存在的残余的沉渣。 3.7 钢筋笼制作 1)钢筋笼制作要求 (1)钢筋笼在胎膜上分整幅制作成型 (2)按设计要求钢筋笼主筋和加筋采用机械连接,其余钢筋全部采用电焊焊接,不得用镀锌铁丝绑扎。 (3)各种钢筋笼主筋和加筋的接头按规范要求作抗拉试验,试件试验合格后,方可制作钢筋笼。 (4)按翻样图布置各类钢筋,保证钢筋横平竖直,间距符合规范要求,钢筋接头焊接牢固,成型尺寸正确无误。 (5)钢筋笼在迎土面、开挖面合理设置保护层定位板,采用高强度保护层块进行保护层定位,与钢筋笼连接牢固。 (6)按翻样图构造混凝土导管插入通道,通道内净尺寸至少大于导管外径5cm,导管导向钢筋必须焊接牢固,导向钢筋搭接处应平滑过渡,防止产生搭接台阶卡住导管。 (7)为了防止钢筋笼在吊装过程中产生不可复原的变形,各类钢筋笼均设置纵向抗弯桁架,异型幅钢筋笼还需增设定位斜拉杆。 (8)为了保证钢筋笼吊装安全,吊点位置的确定与吊环、吊具的安全性应经过设计与验算,作为钢筋笼最终吊装环中吊杆构件的钢筋笼上竖向钢筋,必须同相交的水平钢筋自上至下的每个交点都焊接牢固。 (9)严格按设计要求及翻样图纸焊装预留插筋(或接驳器)、预埋铁件,并保证插筋、埋件的定位精度符合规定要求。 (10)钢筋笼制成品必须先通过”三检”,再填写”隐蔽工程验收报告单”,请监理单位验收签证,否则不可进行吊装作业。 (11)钢筋笼质量检验标准见下表:
3.8 钢筋笼吊装 本工程共计189幅钢筋笼,钢筋笼为整幅吊装,最重的钢筋笼,长52.76m,宽5.5m,厚1.06m,约重65T,全部钢筋笼采用320T吊车和200T吊车双机抬吊(详见吊装方案) (1)起吊钢筋笼设备的配置 根据工作井钢筋笼长52.76m,配置320T履带吊作为主吊,200T吊车作为副吊,进行双机抬吊,主吊设置三道吊点,副吊设置三道吊点。 (2)钢筋笼起吊方法 起吊钢筋笼时,先用320T履带吊(主吊)和200T履带吊(副吊)双机抬吊,将钢筋笼水平吊离地面30cm左右,停机检查吊点的可靠性及钢筋笼的平衡情况,确认正常后开始缓慢升主、副吊,升到一定高度后,主吊继续升同时缓慢放副吊,将钢筋笼凌空吊直。 钢筋笼双机抬吊作业状态见下面示意图4.3-30:
为了防止钢筋笼在起吊、拼装过程中产生不可复原的变形,各种形状钢筋笼均设置纵、横向桁架。主桁架由Φ28“X”形钢筋构成,加强桁架由Φ28X”形钢筋构成。对于拐角幅及特殊幅钢筋笼除设置纵、横向起吊桁架和吊点之外,另要增设”人字”桁架和斜拉杆进行加强,以防钢筋笼在空中翻转角度时产生变形。 3.9 水下砼浇筑 墙体混凝土按照浇灌水下混凝土规范要求采用高于设计强度一个等级的商品混凝土。 水下砼浇注采用导管法施工,砼导管选用D=270的钢导管,丝牙接头。用吊车将导管吊入槽段规定位置,导管上顶端安上方形漏斗。在砼浇注前要测试砼的塌落度,并做好试块。按规范要求做混凝土抗压抗渗试块。钢筋笼沉放就位后,应及时灌注混凝土,导管插入到离槽底300~500mm,灌注混凝土前应在导管内设置球胆,以起到隔水作用,并检查混凝土配合比后方可浇注混凝土。检查导管的安装长度,并做好记录,每车混凝土填写一次混凝土上升高度及导管埋设深度的记录,在浇注中导管插入混凝土深度应始终保持在2~4m。导管间水平布置一般为1.5m,最大不大于3m,距槽段端部不应大于1.5m。在砼浇注时,不得将路面洒落的砼扫入槽内,污染泥浆。砼泛浆高度30~50cm,以保证墙顶砼强度满足设计要求。
猜你喜欢:
3、助力2018安全生产月,这100份安全资料合集值得入手(可下载)
版权申明:版权归原作者所有,如涉及作品版权问题,请与我们联系,我们将第一时间删除内容!

加入我们
投稿展示或者分享资料
一起交流一起成长
扫一扫下方二维码,灵感即刻进

官方微信或qq:483972950
官方qq群:343778875 或648915172
规范图集下载群:61754465
官方微信群需要加官方微信即可进入!
技术交流、资料分享、特权权益服务尽在公众号、微信群、qq群,详情请咨询官方微信和qq!如果群里有其他人向你兜售等不法行为,请千万不要相信上当受骗,请认准我们官方微信和qq!
点个“好看”,新年鸿运当头!

























