提示:点击↑上方"土木工程资源共享"关注加入
点我资料免费下
【重磅福利】
目录:
一、施工技术准备
二、施工组织部署
三、施工工艺流程
四、质量验收标准
五、常规检验试验
六、质量通病防治
七、安全注意事项
八、红线相关规定
九、特殊砼工程

施工技术准备
➤施工方案
混凝土施工方案应由项目总工组织编制,并组织项目相关人员进行讨论和审定,确保方案的正确性和可实施性。
➤技术交底
技术交底应由生产经理组织,由现场工程师编制完成。施工前应分别对劳务管理人员和现场作业人员进行交底,杜绝方案与现场“2张皮”现象。
➤检验批划分:地下室按后浇带与变形缝划分;主楼按自然层划分,单层需要分批浇筑时,相应增加检验批;所有水平与竖向结构分开
➤浇筑前,根据砼配合比通知单,到搅拌站进行开盘鉴定和随机抽查
➤由技术经理组织现场工程师对模板和支架、钢筋工程、预埋管件等分项工程进行验收,合格后方能进行混凝土浇筑。
➤现场工程师提前了解浇筑时的天气情况,并制定相应的技术措施
施工组织部署
➤班组与交接班安排
砼泵平均泵送量:Q1=QMaxαη
其中:Q1——每台混凝土泵的实际平均输出量(m3/h)
Qmax——每台混凝土泵的最大输出量(m /h)
α ——配管条件系数,取 0.8-0.9
η ——作业效率,可取 0.5-0.7
经验数据:标准层一般30m³/h,底板砼40m³/h。
根据现场情况与泵车平均泵送量得出下表数据:
据上表确定砼班组数、每班人数及现场工程师交接班安排
➤确定罐车数和搅拌站
式中:N1—— 砼罐车台数(台)
Q1—— 每台泵的平均输出量(m³/h)
V1—— 每台砼罐车容量(m³)
S0—— 砼罐车的平均速度(km/h)
L1——砼罐车的往返距离(km)
T1—— 每台砼罐车总计停歇时间(min)
注:实际浇筑应考虑每台泵现场预备2辆罐车。
➤区段划分与浇筑路线
区段划分:根据浇筑能力和温度控制要求合理划分区段,确保砼浇筑的连续性,避免出现冷缝。
浇筑路线:按照由低到高、由远及近、边浇边退的原则确定砼浇筑路线;同一区域,先浇筑竖向结构后水平结构。
全面分层:从短边开始,沿长边方向浇筑,上层在下层初凝前浇筑完。
分段分层:适用于结构厚度不大而面积或长度较大的情况。
斜面分层:斜面分层方案多用于长度较大的结构。
三、施工工艺流程

注:本部分主要内容为普通混凝土施工工艺要点,同时涉及“大体积砼及混凝土超高泵送”相关工艺要求。
➤泵管架设与连接


垂直向上配管时,地面水平管折算长度不宜<垂直管长度1/5,且≮15m,因场地所限,不能放置上述要求长度的水平管时,可采用弯管;泵送高度>100m时,应在混凝土泵出料口3~6m处的输送管处设置截止阀;
垂直向上配管时,地面水平管折算长度不宜<垂直管长度1/5,且≮15m,因场地所限,不能放置上述要求长度的水平管时,可采用弯管;泵送高度>100m时,应在混凝土泵出料口3~6m处的输送管处设置截止阀;


➤砼浇筑
1、润管砂浆应装在专用灰盆内,用铁铲在该浇筑范围内均匀撒开
2、浇筑水平结构砼时应在2-3m范围内水平移动布料,且垂直于模板布料
3、夏季宜在夜间施工,白天应在卸料处和泵管表面采用草袋覆盖
4、实体厚度≤2m 混凝土工程,宜采用整体推移式连续浇筑法;>2m宜采用整体分层连续浇筑
➤砼浇筑(柱砼)


➤砼浇筑(墙柱节点)


➤砼浇筑(分层要求)

浇筑过程,应“一个坡度、薄层浇筑、循序推进、一次到顶”,坡度按1:6~1:7 控制斜坡面上的混凝土确保外露时间≤45 分钟。
➤砼浇筑(泌水处理)

浇筑过程中,泌水和浮浆顺浇筑面流到坑底,汇集到浇筑方向一侧,由抽水机抽走;少量来不及排除的泌水随着混凝土推进被赶至基坑顶部,由模板顶部排出。

当浇筑面坡脚接近顶端模板时,改变浇筑方向,从顶端往回浇筑,与原斜坡交成一个积水坑,并将水及时排除。
➤砼浇筑(振捣)
1、快插慢拔:快插可防止上层混凝土振实后而下层混凝土内气泡无法排出;慢拔则能使混凝土能填满振捣棒所造成的空洞。
2、捣棒略上下抽动,使混凝土振捣密实,插点要均匀,插点之间距离控制在50cm,离开模板距离为20cm。
3、采用单一的行列形式,不要与交错式混用,以免漏振,振捣时间要控制在20~30s。
4、上层混凝土应在下层混凝土初凝之前浇筑完毕, 并在振捣上层混凝土时,振捣棒插入下层 5~10cm,使上下层混凝土之间更好的结合。
5、为保证插入精度,根据浇筑厚度在距振捣棒端部系红绳,作为深度标记。
6、底板混凝土表层进行二次振捣,待第一振捣完成20-30min并已浇筑出一定面积后,在混凝土初凝前进行第二次振捣 。
➤砼浇筑(振捣)
1、梁柱接头处钢筋过密时,绑扎时适当调整接头处钢筋间距,以保证砼顺利通过,并留置振捣孔。
2、严格控制粗骨料粒径,选择适宜坍落度,用Φ30振动棒振捣,并规范操作。
3、雨水、冲洗模板的污水不得残留在柱模内,垃圾应及时清理掉。
➤砼浇筑(防堵管)
1、料斗内的混凝土应保持在缸筒口上100mm~150mm之间。避免吸入空气而造成塞管,反之,混凝土太多则反抽时会溢出并加大搅拌轴负荷。
2、泵送过程中,若需中断泵送,应预先确定中断浇筑部位,中断时间≯1h。
3、泵送少量混凝土,管道较短时,每隔5min正反转2-3个行程;停歇时间超过20min、管道又较长时,应每隔5min开泵一次;长时间停泵(超过45 min)且气温高,宜将混凝土从泵和输送管中清除。
➤砼浇筑(处理堵管)
1、反复进行反泵和正泵,逐步吸出混凝土,重新搅拌后再进行泵送;
2、可用木槌敲击等方法,查明堵塞部位,在管外击松混凝土后,重复进行反泵和正泵,排除堵塞;
3、当上述两种方法无效时,在混凝土卸压后,拆除堵塞部位的输送管,排除堵塞物后,再接通管道。重新泵送前,应先排除管内空气,打紧接头。
➤砼浇筑(平整度控制)


浇筑过程中坚持采用三次抹压成型工艺,浇筑振捣成型后进行第一次抹压。
混凝土收水并开始初凝时(可以踩出脚印但不下陷为准),用木抹子进行第二次抹压。
混凝土初凝后终凝前,使用铁抹子进行第三遍抹压,封闭其吸水裂缝,最后达到收光的效果。


➤砼养护
1、砼养护应在浇筑完12小时内进行,普通砼养护7天,商品砼、大体积砼、抗渗砼养护14天,后浇带保持28天湿润养护
2、夏季气温高,除了浇水养护外,尚应采取遮盖措施避免阳光直射,必要时可以用冰水搅拌混凝土,进行预降温
3、冬季施工时,特别是大体积砼,应采取加防冻剂和覆麻袋等防冻措施,气温低于-5℃时,严禁采用浇水养护
四、质量验收标准
五、质量通病防治
标准养护条件:温度20℃±2℃、相对湿度95%以上、并养护28d.
六、质量通病防治
➤麻面
混凝土表面局部缺浆粗糙,或有小凹坑,无钢筋外露
➤原因分析
1)模板表面粗糙或清理不干净;
2)脱模剂涂刷不均匀或局部漏刷;
3)模板接缝拼接不严,浇筑时缝隙漏浆;
4)振捣不密实,砼中的气泡未排出,一部分汽泡停留在模板表面。
➤预防措施
1)模板表面清理干净;
2)浇筑砼前,应用清水湿润模板,不留积水,严密拼接模板缝隙;
3)脱模剂须涂刷均匀,不得漏刷;
4)砼须分层均匀振捣密实,严防漏振,每层砼均应振捣至汽泡派出为止。
➤蜂窝
局部酥松,砂浆少,石子多,形成蜂窝状的孔洞。
➤原因分析
1)配合比不准确或骨料计量错误;
2)砼搅拌不均,和易性差,振捣不密实;
3)下料不当,没有分段分层浇筑,造成混凝土漏振、离析;
4)模板封堵不严,或支设不牢,造成严重漏浆或墙体烂根。
➤预防措施
1)严格控制砼质量,坍落度、骨料等不合格者坚决不许浇筑;
2)下料高度>2m者设串筒或溜槽,分层下料、分层振捣,防止漏振和过振;
3)基础、柱、薄壁墙、肋板等应待下部砼沉实后再浇筑上部砼,避免“烂脖子”。
➤孔洞
混凝土结构内有空腔,局部没有混凝土,或蜂窝特别大。
➤原因分析
1)在钢筋密集处或预留孔洞和埋件处,砼浇筑不畅通;
2)砼离析,砂浆分离,石子成堆,或严重跑浆;
2)砼中有泥块、木块等杂物掺入;
4)一次下料过多,振捣不到。
➤预防措施
1)难于下料的地方,可采用人工摊铺砼浇筑;
2)正确的振捣严防漏振,边角加强振捣 。
3)防止土块或木块等杂物的掺入;
4)选用合理的下料浇筑顺序;
5)加强施工技术管理和质量检查工作。
➤缝隙夹层
施工缝处砼结合不好,有缝隙或有杂物
➤原因分析
1)浇筑前,未认真处理施工缝表面;
2)捣实不够;
3)浇筑前垃圾未能清理干净。
➤预防措施
1)砼浇筑以前,认真清理模板内的垃圾杂物,并处理好施工缝表面;
2)浇筑过程中,要振捣密实;同时防止木块等杂物掉入砼中。
3)冬期施工时要制定冬期施工预防措施,防止冰雪的夹层。
➤缺棱掉角
施工缝处砼结合不好,有缝隙或有杂物
➤原因分析
1)浇筑前模板湿润不够,未刷脱模剂;
2)砼养护不好;
3)过早拆除侧面非承重模板;
4)拆模时外力作用或重物撞击,棱角被碰掉
➤预防措施
1)浇筑砼前充分湿润或刷涂均匀脱模剂,浇筑后应认真洒水养护;
2)拆除侧面非承重模板时,砼应具有足够的强度;
3)拆模时不能用力过猛过急吊运时,严禁模板撞击棱角;
4)加强成型砼保护。
➤露筋
钢筋砼结构内部的主筋、副筋或箍筋等裸露在砼表面
➤原因分析
1)浇筑砼时,垫块发生位移或数量太少;
2)砼构件截面小,钢筋过密;
3)砼配合比不当,产生离析;
4)保护层小或该处砼漏振;
5)浇筑前未模板未浇水湿润,吸水粘结
➤预防措施
1)浇筑砼前,认真检查,保证钢筋位置及保护层厚度;
2)钢筋密集时,选用适当粒径的石子;
3)若使用木模板,浇筑前浇水润湿木模板。
➤酥松脱落
构件表面酥松、脱落,表面强度比内部强度低很多
➤原因分析
1)木模板润湿不够;
2)炎热刮风天,砼脱模后,未浇水养护;
3)冬期浇筑砼时,没有采取保温措施。
➤预防措施
1)注意以上分析的原因
2)砼在特殊天气下的施工时,应制定特殊的施工措施;
3)加强砼的养护及保温工作;
4)出现通病后,制定出处理措施。
➤烂根
墙、柱根部混凝土松动、不密实,砂浆少石子多
➤原因分析
1)模板根部缝隙堵塞不严;
2)浇注前未下同混凝土配合比成份相同的无石子砂浆;
3)混凝土和易性差,水灰比过大石子沉底;
4)混凝土集中下料,砼离析或石子赶堆;
5)振捣不实;
➤预防措施
1)模板根部堵严,外墙柱留老螺杆
2)浇注前先浇50㎝同成分无石子砂浆;
3)搅拌站严格控制配合比,浇筑过程严禁加水;
4)墙柱超过2米分次浇筑并设串筒或溜槽,分层下料分层振捣密实。
七、安全注意事项
1、认真做好分部分项工程安全技术交底工作,被交底人要签字认可
2、防护设施变动须经安全主管批准,并采取有效防护措施,作业完后恢复
3、浇筑时搭好跳板,不得直接踩踏钢筋;夜间施工要有足够的照明设备
4、严禁用塔吊起吊布料机砼泵管辅助布料作业,避免螺栓松动
5、混凝土养护时,预留孔洞必须按规定设围栏,并设安全标志
6、已经磨损严重及局部穿孔现象的泵管不准使用,以防爆管伤人
7、堵管时,不得强行加压泵送,以防发生炸管等事故
8、浇捣混凝土时应戴手套、穿胶鞋,不得站在模板或支撑上操作
9、楼面混凝土在浇捣时不要堆积过量,以免引起过载造成模板系统
10、拆管道接头时,应先进行反抽,卸除管道内砼压力,以防砼喷出伤人
八、红线相关规定
1、施工缝凿毛必须在混凝土终凝后进行,并清理干净后才能进入下道工序
2、楼板砼必须用平板振动器进行辅助振捣;竖向构件拆模后至少养护7天
3、必须现场取样制做试块,按规范要求进行养护和送检
4、混凝土缺陷必须有专门的、有效的修补方案,并严格按方案精心实施。
九、特殊砼工程
大体积砼测温
➤布点要求
1、以所选浇筑体平面图对称轴线的半条轴线为测试区,测试区内分层布置
2、每条测试轴线上,监测点位不宜少于4组,根据结构的几何尺寸布置
3、沿厚度方向,须布置外表、底面和中心测温点,其余测点间距≯600mm
4、混凝土浇筑体底面的温度,宜为混凝土浇筑体底面上50mm处的温度
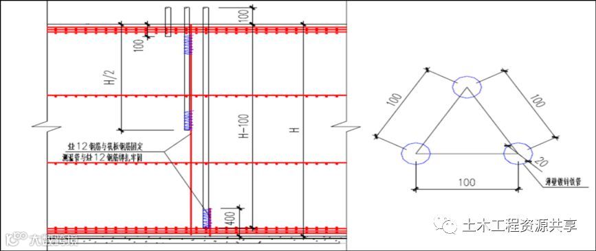
➤测温管布置
1、每个测温点不少于三根,其间距各为100mm 呈等边三角形布置,每个测温孔位置分别设在结构表面-10cm,底面+10cm 和中心位置;
2、为免砼封堵管,管口高于砼顶面100mm,上下管口采用钢丝网封堵;
3、测温管用Φ20薄壁镀锌铁管,测温完毕用防水砂浆填塞,用钢筋头捣实。
自密实砼
➤定义
具有高流动度、不离析、均匀性和稳定性,浇注时依靠其自重流动,无需振捣而达到密实的混凝土。
➤坍落扩展度
自密实砼坍落度大(240mm~270mm),可用坍落扩展度试验代替坍落度试验做混凝土拌合物初步控制用。
➤高抛法施工要点
1、浇筑前先浇筑100~200mm厚同强度等级砂浆,防止粗骨料回弹;
2、除最后一节,每节柱浇至离顶端500mm处,以防焊接高温影响砼质量;
3、砼最大倾落高度不宜>9m,否则应采用串筒、溜槽等辅助装置;
4、抛落的高度不足4m时,用振捣棒密插短振,管外配合人工木槌敲击;
5、当混凝土全部浇筑完毕后,应喷涂砼养护液,用塑料布将管口封住;
➤顶升浇筑法
➤简介
顶升法利用输送泵的压力将自密实混凝土从钢管柱底部预留的开孔位置连续由下往上挤压顶入钢管内,直到注满钢管柱的免振捣施工方法,减少了工序环节,降低了劳动强度,加快了施工进度。
1、钢管柱开孔时割下来的钢板,应编号保存,以便日后焊接封口时方便;
2、混凝土拌合物运至浇筑地点时的温度,不宜超过35℃;并不宜低于5℃;
3、混凝土从搅拌机卸出到浇筑完毕的延续时间不能超过一小时;
3、混凝土从搅拌机卸出到浇筑完毕的延续时间不能超过一小时;
第一次浇灌时用于润滑输送管的砂浆不得替代混凝土注入柱内;
钢管混凝土柱顶部必须设置溢流孔或排气孔。溢流孔截面不小于混凝土输送管面积,且宜用钢管接高超过柱顶100mm左右,确保混凝土充满,待混凝土终凝后将管割掉用高标号水泥砂浆抹平;
由于泵管与顶升口的连接为法兰连接,对泵管与顶升口的连接方向有要求高,现场需加工8~10个400mm长的短弯管,用于泵管与顶升口的连接。
➤护壁砼浇筑
1、护壁砼宜现场集中搅拌,严格按配比下料,塌落度控制在6-8㎝为宜;
2、采用人工拌和、人工插捣,护壁模板支好后在模板上口放置一斗笠型盖帽,砼从井口吊至作业面,通过盖帽斜边滑落到位,每节护壁分层浇筑;
3、桩护壁应高出地面0.3m左右,护壁每节一般要求1m,在较软弱的土层内每节护壁的高度宜减少为0.5m,视安全情况而定。
➤桩芯砼浇筑
1、混凝土浇筑时的坍落度为12~14cm;
2、在浇筑前利用第一节护壁上控制标高制作不同的标高控制杆,以便控制浇筑时的标高,同时必须考虑桩顶预留100mm厚的浮浆层要剃凿;
3、对于直径大于2m的大直径桩,第一次浇筑到扩底部位的顶面,随即振捣密实,再分层浇筑桩身,直至桩顶;
4、桩芯混凝土浇灌时必须留有试件,每根桩至少应有一组试件(每50m3做一组),且每个浇注台班不得少于一组(每组三件)。
➤特殊情况处理
➤遇流砂:
护壁应采用300-500mm高钢护筒施工,并随挖随检,随浇混凝土。对少量流砂的桩位,先将附近无流砂的桩孔先挖深,使其起集水井作用,将桩孔和附近的地下水位降至井底下。
➤遇塌孔
在塌方处,砌砖外模,按设计要求加设钢筋网,再支钢内模浇灌筑混凝土护壁。混凝土应加速凝剂,加快凝固速度。要保证混凝土密实度,避免渗漏。
➤水下砼浇筑
采用垂直导管法,混凝土在重力作用下从导管下口排出。导管采用Ф200-Ф300钢管。导管下端始终埋在混凝土表面之下。只有第一批混凝土直接与水泥浆接触。在整个浇筑过程中,导管下口应埋于混凝土中0.8-1.2m。导管不能横向移动,否则将会使泥浆混入混凝土中。每层1m,导管每节长1m,每次拆除一节,可用手动力葫芦提升导管。加强对导管根部振捣,防止因导管提升造成局漏振。
更多铝模相关文章及视频,精彩不容错过!
您的转发是对我们最大的支持
猜你喜欢:
3、助力2018安全生产月,这100份安全资料合集值得入手(可下载)

加入我们
投稿展示或者分享资料
一起交流一起成长
扫一扫下方二维码,灵感即刻进

官方微信或qq:483972950
官方qq群:343778875 或648915172
规范图集下载群:61754465
官方微信群需要加官方微信即可进入!
技术交流、资料分享、特权权益服务尽在公众号、微信群、qq群,详情请咨询官方微信和qq!如果群里有其他人向你兜售等不法行为,请千万不要相信上当受骗,请认准我们官方微信和qq!
































