提示:点击↑上方"土木工程资源共享"关注加入
点我资料免费下
【重磅福利】
导言
随着城市高层建筑的逐渐增多,施工中对外架工程的安全、经济、实用、美观要求也越来越受到关注,附着式升降脚手架俗称爬架,相对传统的钢管脚手架省工、省料。它是一项新型技术,其构造简单、操作方便、经济实用等特点受到施工单位的广泛欢迎,已成为高层建筑外架施工的首选工具。
爬架关键技术简介
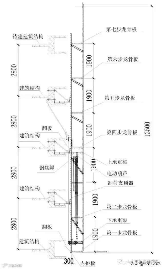
(1)爬架构件介绍 主要组成构件含上下承重梁、竖龙骨、导轨、转角立柱、附墙支座、提升挂座、电动葫芦、防护网片、钢板冲孔网、花纹龙骨板、钢板网龙骨板、刚性支座、智能控制系统配件、斜弦杆、翻板、内挑板、机位防坠器等,详见:图1~3
图1 爬架构件介绍大样图
图2 爬架立面示意图 效果图
图3 爬架标准层侧立面图 (2)爬架工作原理
将专门设计的升降机构固定(附着)在建筑物上,将脚手架同升降机构连接在一起,但可以相对运动,通过对固定于升降机构上的动力设备将脚手架提升或者下降,从而实现脚手架爬升或下降。 (3)爬架的组装工艺流程 a 搭设爬架组装前平台→ b 铺设龙骨板→ c 连接龙骨板→ d 安装架体固定连接杆→e 竖龙骨的对接→ f 转角立柱处防护网片的安装→ g 导轨与龙骨板之间的连接→ h 导轨之间的连接→ i 防护网托扣的安装→ j 防护网片与托扣之间的连接→ k 安装附墙件以及卸荷支顶器→ l 安装内挑板以及翻板→ m 安装踢脚板→ n 水平拉结杆的连接→ o 电动葫芦各构件安装→ p 挂电动葫芦→ q 上、下承重梁的安装→ r 标准附墙支座的安装→ s 水平附墙支座安装→ t 斜拉杆的安装→ u 竖向斜弦杆的安装
(4)爬架的关键技术要点 根据《建筑施工工具式脚手架安全技术规范》JGJ202-2010强制条文规定: ① 架体高度不得大于5倍楼层高 ② 架体宽度不得大于1.2m ③ 直线布置的架体支承跨度不得大于7m,折线或曲线布置的架体,相邻两主框架支撑点处的架体外侧距离不得大于5.4m ④ 架体的水平悬挑长度不得大于2m,且不得大于跨度的1/2 ⑤ 架体全高与支撑跨度的乘积不得大于110㎡ 爬架提升之前
① 提升之前清扫干净架体内垃圾,打开所有翻板 ② 提升时架体上不允许任何人员逗留,操作人员可在楼层内操作,严禁在架体上走动 ③ 爬架提升之前,必须检查卸荷装置、防坠装置、防倾装置处于工作状态 ④ 打开塔吊附着处的活动龙骨板和防护网片 ⑤ 提升之前,翻板全部处于打开状态 爬架提升之后 ① 架体提升到位后用支顶器卸荷,每个机位至少安装两层卸荷支顶器 ② 电动葫芦及时松钩,不能使电动葫芦长时间承载 ③ 提升之后,翻板全部处于关闭状态 爬架在施工过程中常见的安全隐患是高空坠落,因此在架体的底部必须设置密闭的走道板并在距墙内侧设置翻板。 效益对比分析 DM-300防火型全防护智能升降爬与传统钢管脚手架相比较,具有以下优点: 1 ) 实现了脚手架机械化施工 2 ) 消除了高处危险搭设作业 3 ) 高空作业环境密封严密 4 ) 有效降低高处坠落和物体打击事故率 5 ) 绿色施工节材低碳效果惊人 从爬架与型钢悬挑脚手架相比,其经济方面更为优势,比对分析详见下表: 比较项目 附着式整体爬升脚手架 型钢钢管脚手架 适用范围 适用于高层和超高层建筑;结构比较方正,突出构件较少的建筑。 适用于高层和超高层建筑,使用范围较广。 进度方面 升降速度快,提升效能平均1天1层,爬升过程中对施工完全没有影响,施工工序正常进行,不占用塔吊,有助于加快工期的总体进度 由于工人搭设悬挑式脚手架经验多,所以对工期把握比较准确。但拆搭脚手架时,需要塔吊配合运输,对工程进度有一定影响。 经济效益 根据项目1#楼(38层)整体式爬升脚手架综合单价的每平米建筑单价为:39.81元/㎡。 根据项目13#楼(38层)悬挑工字钢脚手架综合单价分析,每平米建筑单价为(含型钢):42.65元/㎡。 材料方面 只需要定量的钢管、扣件等搭设材料,爬架的升降过程总损耗量小。 使用型钢、钢管、扣件、脚手板、安全网等搭设材料多且损耗量大。 人工方面 升降时操作环境良好,工人劳动强度小,人工消耗量小 搭设、拆除时大量的人工搭设外脚手架、铺设脚手板和安全网,劳动强度大,且人工消耗量大 文明施工 不占用施工场地,整个建筑外立面清爽干净 悬挑架在第二次搭设时候安全网要重新更换,外观较新。但是材料用料较大,对场地狭小的有不利影响。 检查与维修 检查与维护工程量较小,1个人24小时便可进行一次全面检查 检查、维护工程量大,全面检查一次费工且周期长 结构影响 架体及其承担的荷载传给与之相连的剪力墙结构,对这部分结构的强度有一定要求。 悬挑架工字钢固定要在顶板上预埋,对顶板结构产生不利影响,易产生裂缝。对于剪力墙结构来说预留洞口较多,削弱墙体和柱子钢筋,对结构不利。
以下为项目爬架现场图
猜你喜欢:
3、助力2018安全生产月,这100份安全资料合集值得入手(可下载)
本文来源于网络

加入我们
投稿展示或者分享资料
一起交流一起成长
扫一扫下方二维码,灵感即刻进

官方微信或qq:483972950
官方qq群:343778875 或648915172
规范图集下载群:61754465
官方微信群需要加官方微信即可进入!
技术交流、资料分享、特权权益服务尽在公众号、微信群、qq群,详情请咨询官方微信和qq!如果群里有其他人向你兜售等不法行为,请千万不要相信上当受骗,请认准我们官方微信和qq!
点击阅读原文有惊喜,喜欢就点这里▼













