提示:点击↑上方"土木工程资源共享"关注加入
点我资料免费下
【重磅福利】
1 外墙渗漏

图1.1.1 外墙线条防水节点示意图
说明:1. 外墙面设置的凸出墙面宽度超过 200mm的线条的根部应设置混凝 土翻边。
2.翻边宜与线条结构一次性浇筑, 高度不小于150mm,二次浇筑时 应对结合面进行凿毛、清理以及润 浆处理。
3.宜在其迎水面做防水层,防水水 平和上翻高度为200mm,具体做 法参见上图。
1.1.2外墙雨棚点

图1.1.3 外墙雨棚防水节点示意图
说明:1. 外墙面设置的雨棚根部应设置 混凝土翻边。
2.翻边宜与线条结构一次性浇筑, 高度不小于150mm,二次浇筑时 应对结合面进行凿毛、清理以及 润浆处理。3.雨棚宜在其迎水面满做防水层, 具体做法参见上图。

3.混凝土翻边宜与线条结构一次性 浇筑,高度不小于100mm,二次 浇筑时应对结合面进行凿毛、清 理以及润浆处理。
4.空调百叶下部不宜设置反坎,当 百叶下部有反坎时,靠室内墙体 的混凝土翻边应高于百叶下挡水 坎完成面不小于50mm,确保在 空调机位地漏堵塞的情况下积水 可以从百叶下溢出,具体做法参 见上图。
1.1.4外墙支架构造节点
说明:1.外墙装饰构架.室外壁灯等与砖墙体 连接部位宜为混凝土基层(混凝土预 制块或现浇的混凝土块);
2.严禁将填充墙做为固定点(实心砖 除外),宜在施工图纸中表达;
3.膨胀螺栓宜在保温施工前安装,避 免扰动保温层。具体做法参见下图

1.1.4 室外楼梯与外墙相交处应设置强度等级C20以上的素混凝土翻边,高度200mm以上, 宽度同墙体厚度。


说明:1.外墙面封堵完成后宜在管洞周边涂刷50*50mmJS防 水涂料一遍,厚度为1.0mm。
3.木模拉杆应做到外低内高,防止渗漏,具体做法参 见示意图
说明:1.外墙脚手架眼、外墙悬挑架型钢洞及其他孔 洞应在内外墙抹灰前,进行封堵封堵,根据外墙的类 型不同采用不同封堵方式,宜采用双侧对拉螺杆进行 关模浇筑混凝土。
2.孔洞封堵宜优先选用混凝土封堵,且建议分2次浇 筑。具体做法参见下图。

说明:1.穿外墙的空调管道均应在混凝土或 砖墙上预埋套管,套管宜按不小于5% 坡度内高外低留设。
2.外墙保温及装饰施工前应对套管进 行接长,接长pvc套管与钢套管搭接长 度大于50mm。
3.出外墙的其他预留孔如排气孔、新 风口等均宜参照此做法实施,具体做 法参见下图。

1.3.2 穿越外墙的管道需设置套管,套管管径需大于管道管径两个规格,套管与管道间需采 用柔性防水材料进行封堵处理。
1.3.3 设置在外立面的各专业管道支架应提前施工,立管安装宜在外墙保温工程及涂料(或 其他装饰层)施工完成后进行,确保管道后面外墙完成面施工质量。
1.3.4 阳台外墙根部应设置强度等级C20以上的素混凝土翻边,高度200mm以上,宽度同墙 体厚度。
1.4.1外墙上无遮挡可淋雨的外窗应设混凝土窗台,混凝土强度等级不低于C20,采用构造配 筋,厚度不小于60mm。窗台端部为砌体结构时嵌固长度不小于120mm,窗台端部为砼结构 时窗台压顶设拉结筋与砼结构拉结。
1.4.2外窗台装饰完成面必应形成向外不小于10%的坡度,变坡处宜在窗型材中心线(或宽度 三分之二)以外,窗洞上口完成面或窗楣必应设滴水线或成品鹰嘴。
1.4.3 在条件具备的情况下宜采用附框安装门窗。
(1)外门窗安装前必应按门窗预留洞口尺寸,预留连接片,待安装好门窗后修补,严禁采 用边安装边砌口。
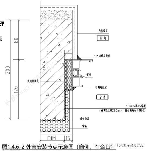
1.4.5 全现浇外墙窗洞口应设置企口,企口深度不小于15mm。
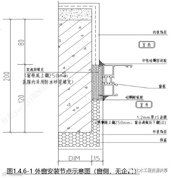
1.4.6 外窗窗侧.窗眉.窗台的安装节点宜按照下列详图做法实施。







说明:外墙勒脚应设置混凝土翻边, 混凝土强度等级不宜小于C20。
1.5.2 在建筑室外周边宜设置排水明沟和散水。散水应按照规范要求在转角处和每隔一 定间距设置分隔缝,缝内采用建筑油膏嵌缝。
2.1.1 成品建筑的下沉式卫生间在回填完成后宜加设二次防水层,防水层翻边300mm。
说明:1.成品建筑的卫生间地砖宜采用薄贴 法或湿贴法施工。
2.淋浴区隔断下部应设置止水措施, 具体构造详见下图。

说明:1.厨卫间混凝土翻边在浇筑前应进行基层凿 毛、清理以及润浆处理,混凝土浇筑完成后 几何成型尺寸应规正、密实,与基层结合紧 密。
2.模板支设严禁采用铁丝穿拉固定,应采用 夹模或夹具等方式进行支设。

图2.1.3 厨房卫生间翻边节点示意图
说明:1.卫生间采用侧排时,穿剪力墙 应设置刚性防水套管,宜在侧排 支管位置设置混凝土墩包管。
2.套管周边用柔性防水材料填塞, 两边各预留20mm用油膏嵌缝。

图2.1.4 卫生间侧排管道节点示意图
说明:1.厨卫门槛处宜设置挡水坎,防 止用水区水串入功能房间。

2.2.1 穿越楼板的UPVC排水立管及支管均需在主体结构施工时预埋止水节随主体结构浇筑, 以减少后期管道周边的渗漏风险。
2.2.2 卫生间排水设计为同层排水,应考虑沉箱排水措施,宜设置单独的沉箱排水立管及地漏。
2.2.3 异层排水的地漏其安装完成标高宜与结构完成标高齐平。
2.2.4 卫生间、厨房及屋面防水施工前宜进行24h结构蓄水试验,验收合格后方可进行下一道 工序施工。防水施工完成后应按照规范要求进行闭水试验。
说明:1.卫生间排气道周围应浇筑 混凝土强度等级不低于C20 混凝土翻边。
2.高度为相邻房间建筑完成 面以下50mm,宽度为100 mm。
3.混凝土浇筑前需进行凿毛、 清理以及润浆处理。浇筑完 成后需在其周边进行24小时 蓄水试验,做法参见下图。

图2.2.5 异层排水卫生间排气道混凝土翻边节点示意图
注:H为卫生间楼地面装饰完成面标高
说明:
1.厨卫间竖向管洞在管道或地漏安装 完成后,其四周的封堵必应采用顶撑 或卡箍的支模方式浇筑细石混凝土, 严禁采用铁丝穿拉、苯板吊模修补。
2.浇筑前应将洞内清理干净,充分润 湿并涂刷素水泥浆,第一次浇筑细石 混凝土高度为洞高2/3,第二次浇筑 混凝土高度为洞高1/3并低于结构面 10mm。
3.浇筑完成后需进行24小时蓄水试验, 最好在管道根部设置混凝土支墩封包, 做法参见左图。

图2.2.6 同层排水卫生间铸铁立管节点示意图
注:当排水立管为材质为UPVC时,楼板位置宜采用成 品止水节安装

图2.2.7 厨房烟道节点示意图
1.卫生间立管穿装饰包管道时,位于装饰层下部的包管位置采用混凝 土包裹。
2.混凝土包墩高度同砌体翻边,浇 筑前应进行基层凿毛、清理以及润 浆处理。

图2.2.8卫生间包管墙体下部节点示意图
3 转换层及底层给排水管道设置要求
3.1 主楼若须设置排水管转换的应设置转换层或管廊,转换层、管廊应设置排水措施及防水 处理并预留充足的检修空间及通道,严禁回填、隐蔽。
3.2 排水支管不应与排水横干管连接,应在横干管转立管之后弯头600mm 以下位置进行管 道合并。
3.3 高层建筑当排水立管管道为 UPVC时其横干管的第一个弯头应采用铸铁大弯头,与前后 PVC-U 排水管进行连接。
3.4 出户管道的水平横干管不应设置在一层室内的回填层内,若条件不允许应考虑预留足够 的检修空间及通道。
3.5 建筑一层排水应与楼上层排水管分别排出室外接至检查井。
3.6 塔楼排水横管进总平污水管井的管道长度不宜超过5m。
3.7 埋地管道周边回填应尽量采用连砂石回填,按500mm分层夯实,严禁使用建筑垃圾、 建渣和腐质土进行回填。
3.8设置于总平或回填层内排水管道需覆土填埋部分应有防沉降措施专项方案,对埋地管道 进行防沉降保护。
获取文件办法:
以上开裂防治措施攻略电子版获取办法:
关注微信公众号:土木工程资源共享
输入:渗漏防治措施
(系统自动发送我的百度网盘下载链接给您)
切记发送其他内容不会自动回复链接。
您的转发是对我们最大的支持
此文为公众号土木工程资源共享整理,如有转载,请注明!

加入我们
投稿展示或者分享资料
一起交流一起成长
扫一扫下方二维码,灵感即刻进

官方微信或qq:483972950
官方qq群:343778875 或648915172
规范图集下载群:61754465
官方微信群需要加官方微信即可进入!
技术交流、资料分享、特权权益服务尽在公众号、微信群、qq群,详情请咨询官方微信和qq!如果群里有其他人向你兜售等不法行为,请千万不要相信上当受骗,请认准我们官方微信和qq!
点击阅读原文有惊喜,喜欢就点这里▼