提示:点击↑上方"土木工程资源共享"关注加入
点我资料免费下
【重磅福利】
设备管线综合布置
在设备、管线参数确定后,设备间机电工程施工前完成深化设计。利用BIM软件对安装各专业图纸进行叠加,找出管线、设备碰撞位置。对于碰撞的管线、设备调整时应遵循以下原则:
1)确定设备和与设备相连的管、配件尺寸及管线进出口位置;
2)排布达到设备进出口处,设备基础中心线或外边沿、设备中心线或边沿、立管中心线、支架、仪表、阀门操作手柄等标高、朝向一致;
2、质量控制要点:成排成线,部件标高、朝向一致,维护方便,各专业必须依照综合管线布置图施工(距离管线弯头500mm范围内应设置支吊架)。



走廊吊顶综合管线布置,优先采用共用支架。对于碰撞的管线,调整时应遵循以下原则:
2、设备、管线接头应避开大梁位置,同时考虑贴近吊顶,保证检修空间;
4、施工难度小的避让施工难度大的,桥架布设应便于后期电缆敷设;
5、桥架和水管多层水平布置时,桥架应位于水管上方;高中压在上,低压在下,经常检修的在下;与吊顶表面末端设施连接的管线宜贴近吊顶,减少交叉;
6、间距要求如下:管道外壁(或保温层的外表面)距墙面或侧边的距离不宜小于150mm,距柱、梁之间的距离宜为50mm,各种管道外壁(或保温层外表面)之间的距离宜为100~150mm。风道的外壁距墙之间的距离宜为200~300mm。管道上有阀门且设置同一断面的,应考虑阀门在保温时对管道间距的要求。
质量控制要点:支架设置合理,管线排布整齐、紧凑、层次清晰,便于检修。


某工程走廊综合布线图(南区宿舍2层为例)


精装应出具设备点位排布图,若精装修不出此图专业应配合装修重新深化设备点位排布图(尤其注意吊顶检修孔的排布)。
1)所有设备的中心在一条线上,局走廊或吊顶板块的中心,间距均匀,对称布置;
探测器至空调送风口边沿的水平距离不应小于1.5m;至回风口边沿的水平距离不应小于500mm;
感温探测器距高温光源边沿不应小于500mm,距风扇边沿不小于100mm,距凸出扬声器边沿不应小于300mm;
火灾探测器边缘与照明灯具边沿不应小于300mm,与各类自动喷水灭火喷头边沿不应小于300mm,自喷头与灯具间距不应小于300mm。

根据设计图纸、桥架容量及尺寸、配电箱尺寸,核对竖井管线设备位置及空洞预留尺寸、位置,进行深化设计电井内设施排布。排布应遵循下列原则:
2)配电箱应沿墙整齐排列,同范围箱体下沿标高一致。箱体高度600mm以内,底边距地1.5m;箱体高度600~800mm,底边距地1.2m;箱体高度800~1000mm,底边距地1.0m;箱体高度1000~1200mm,底边距地0.8m;箱体高度1200mm以上落地安装;预空间满足安全距离及检修空间要求;
4)电井内水平接地支线应敷设到所有管线设备就近位置,与设备连接可靠;
5)电井应设门槛,桥架、插接母线在地面或穿楼板处有不低于50mm的挡水台,桥架、插接母线穿楼板处应做20~30mm防火封堵,顶部设置防火托板,加装饰圈。



电井内水平接地支线应敷设到所有管线设备就近位置,与设备连接可靠。
管井安装施工前,根据设计图纸测量管井实际尺寸,以及留洞修洞。
1)、沿墙整齐排列,以管道保温最终外形尺寸为依据,保持管道间距均匀;距墙距离以管道外缘为准,但应考虑空调冷冻水管道支架处绝热垫木的尺寸。
管道穿楼板处根部应设套管或护墩,套管与管道之间应做防火封堵,顶部齐平光滑,设装饰圈。
管道油漆应完整、均匀、光亮,保冷层牢固平顺严密,标识应清晰醒目。
质量控制要点:管道排列整齐,标识齐全准确,支架标高一致。套管下设牢固、严密,标高一致,环缝均匀,封堵规范,表面密实平整,根部处理细腻。


支架制作、安装:
根据管道的数量、管径、走向、空间布局选用合适的支架形式;下料应采用切割机,用台钻钻螺栓孔(严禁采用气割吹孔),孔径为螺栓直径+2mm;型钢切割面应打磨光滑,端部倒圆弧角,倒角半径为型钢端面边长的1/3~1/2,支架拐角处应采用45°拼接,拼接缝采用焊接,焊缝应饱满、打磨平滑;支架应先刷防锈漆两道,再刷面漆一道,埋地支架埋入部分及地面以上50mm(±1mm)内刷防锈漆两道后再沥青防腐面漆两道。
支架宜优先采用预埋钢板焊接安装固定,预埋件与墙面交接处应处理干净;支架固定采用后置钢板膨胀螺栓时,螺栓距钢板边沿尺寸应为25~30mm,螺栓根部应加垫片,外露支架的螺栓宜采用圆头螺帽收头;成排支架标高、形式、朝向应一致,支撑面应为平面。
质量控制要点:支架上不得采取气割螺孔和存在废孔;支架安装牢固、平整;焊缝应饱满、平滑;油漆均匀、光亮。
支架做法示意图:



弯头托架
根据弯头外形加工制作曲面支撑钢板,托架管中心应与支承板中心一致;将法兰安装在托管高度中间位置,法兰螺栓向下,外露长度为螺杆长度的1/2且长度一直;托架顶部焊接曲面支承钢板,钢板与管道之间设橡胶垫,与弯头底部焊接牢固,防锈漆及面漆涂刷均匀、无污染。
质量控制要点:托架安装牢固,焊缝饱满平滑,成排支架位置、高度一致,曲面板与弯头焊接牢固,法兰安装。

立管承重支架
根据管道公称直径大小,选择不同厚度的钢板,加工成肋板,校正管道的垂直度,先将肋板底端焊接固定到管道周围的支架上,再将肋板侧面与管道焊接,检查焊缝,再次校正管道垂直度,无误后,刷防锈漆、面漆,设计要求保温的进行管道保温。
质量控制要点:支架安装牢固,焊缝饱满平滑,肋板垂直且均匀分布于管道四周。


U形卡环、管夹
选择与管径匹配的卡环,卡环安装固定螺栓孔应保证管道顺直且居卡环中间,卡环与管道应接触紧密。圆钢卡环与不锈钢管、铜管连接固定时,卡环应套塑料保护软管,管道与支架间接触面应垫与角钢同宽的隔离橡胶垫。扁钢卡环应与木托同宽,与螺栓应满焊连接;在与支架连接处应垂直,扁钢端部与支架宜留有5~8mm收缩余量,卡环端部外露支架的螺栓宜采用圆头螺帽收头,油漆涂刷应均匀。
质量控制要点:卡环保持垂直,卡环末端安装圆头螺帽,扁钢宽度同木托宽度。


结合图纸和BIM模型确定管线排布走向、间距、标高等。
根据支架承载管线的数量、规格、自重、介质、动静荷载效应等计算,确定支架的规格和形式。
在建筑基层上用膨胀螺栓固定单/双头板,在C形钢内卡紧弹簧螺母,将支撑立柱与单/双头板固定,立柱与横担采用连接件、弹簧螺母、六角螺栓固定,用力矩扳手核查紧固力。
质量控制要点:支架安装牢固,成排支架应排列成线、标高一致。


标识部位应选在宜观察部位。应设在便于操作、观察的直线段上,避开管件等部位,成排管道标识应整齐一致。
垂直管道宜标识在朝向通道侧管道轴线中心,成排管道以满足标识高度的直线段最短管道为基准,依次一致标识。
水平管道轴线距地小于1.5m时,标识在管道正上方;在1.5m~2.0m时,标识在正视侧面;大于2.0m时,标识在正下方或侧面。
管径在80~150mm时,文字大小为50~60mm宽;管径大于150mm时,文字大小为80~100mm宽。箭头与文字间、文字与文字间间距大于1个文字宽度。桥架、风管宽度小于200mm时,字体宽度为50~60mm;桥架、风管宽度大于200mm时,文字宽度为100mm,字体间距不大于1个字符。

配电箱标识
箱(柜)体标识采用自喷漆喷涂或用不干胶纸粘贴方式进行标识,字体宽度为40~45mm左右,内容应反映箱(柜)用途;箱(柜)内开关采用背胶纸打印粘贴在空开上,应反映控制对象的名称;系统图采用背胶纸打印,粘贴在箱(柜)门内侧合适位置,宜采用A4纸规格尺寸。


电缆标识
在电缆始端、末端、转弯处、分支处应设置标识,电气竖井桥架内每层每根电缆均应标识,标识牌应采用定型加工的电缆标牌用尼龙扎带绑扎在电缆上。
标识项目应直接打印在电缆标牌上,标题采用黑色黑体3号字,内容采用4号字,成排挂牌方向应一致。


设备标识
设备标识为挂牌标识


1、阀门橡塑绝热板保温:测量阀门的直径、长度、高度、螺栓外露长度、阀门压盖尺寸、凸出或拐弯等特殊或异形部位尺寸。绝热质量和厚度符合设计要求。
放样时,绝热板总长度为阀门长度、法兰厚度、外露螺栓长度及两端面保温板厚度之和,宽度为绕阀体上法兰周长的放样长度。压盖及其他凸出部位应考虑单独放样。圆面、弧面或圆圈应用圆规放样。先用橡塑填料将阀体凹进去部位粘贴填平,然后将专用胶均匀涂抹于阀体及填料上。防止接缝处不严密或开裂,可在接缝处粘一道5mm厚30mm宽的橡塑带加强密封。


2、保温管道穿墙处理:保温管道穿墙、板时,保温层应连续。应采用橡塑保温管(板)进行穿墙、穿楼板保温,用橡塑专用胶粘接牢固,接缝严密,两端与墙面平齐,对接严密平整,两侧加牢固规整装饰圈保护。保温管(板)与墙、板面根部应粘贴装饰圈,接缝应放在顶部或正视不明显处,装饰圈宽度20~50mm。
质量控制要点:绝热严密,不得有冷桥及热桥现象,装饰圈宽度均匀,并与墙面触紧密平整。


3、弯头橡塑保温:测量管道直径及弧长,外侧放样尺寸为外弧长度加20~30mm。所有接缝用专用胶水粘接牢固,粘贴接缝应放在弯头内侧。接缝外粘5mm厚、30mm宽橡塑板条加强密封口。
质量控制要点:绝热板面外弧圆滑、内弧无褶皱,接缝严密。

4、空调水管道支吊架处绝热:在管道与支吊架之间设置绝热管托,管托内径应与管道相匹配,用U形卡箍固定在支吊架上。卡环与绝热管托接触紧密,居管托宽度中心。橡塑绝热管(板)端面应与管托粘接牢固紧密。
质量控制要点:橡塑管(板)与管托粘接、卡环处预留宽度。采用木托时,防腐处理应到位。管托厚度不得小于绝热层厚度,接点紧密,表面平整,不得有冷热桥现象。

1、管道穿楼板处理:先按管道规格及所穿楼板的厚度切割套管(套管比立管大1~2个规格,套管间隙10~20mm为宜,套管高出装饰面层20~30mm,多水房间应为50mm),套管规格应考虑管道保温或保冷层厚度,使保温或保冷在套管内不间断,套管安装前内外刷防锈漆,按所需数量套入管道,调直固定好立管,用木楔把套管临时固定于洞口,用捻凿把油麻填塞与套管间隙的2/3处,(多水房间时,钢套管应焊防水翼板)调整套管与管道的同心度,套管与板底平齐,套管与管道之间的缝隙用石棉绳封堵严密。补洞混凝土浇筑完成后其余间隙用石棉绳填塞,套管顶部打密封胶密封,密封胶要求与套管上部平齐,胶缝要求均匀,套管底部安装装饰圈,板面上外露套管刷黑色或灰色油漆,管道为PVC管,设计有阻火圈时,底部应加设阻火圈。
当管道穿过防火堤、防火墙、楼板时,应安装套管。穿防火堤和防火墙的套管长度不应小于防火堤和防火墙的厚度,穿楼板套管长度应高出楼板50mm,底部与楼板底面相平;管道与套管间的空隙应采用防火材料封堵。


2、管道穿墙:先按管道规格及完成装饰面层的厚度切割套管,套管比管道大1~2个规格(套管间隙10~20mm为宜),套管应考虑管道保温或保冷层厚度,使保温或保冷层在套管内不间断,套管与装饰后墙面平齐,砌体套管安装前内外刷漆防锈后套入管道并安放于各个洞口处,用木楔、油麻固定,使套管与管道同心,套管与墙面平齐,用石棉绳填塞套管两边的间隙,修补洞口后安装装饰圈。地下室外墙的套管按设计要求选用刚性防水套管或柔性防水套管,装饰圈的宽度与管道的直径相匹配,DN100以下装饰圈宽20mm,DN100~150以内装饰圈宽300mm。对于非防火墙可用3mm的橡胶板制作,有防火要求的应采用不燃材料。

3、管道丝扣连接:螺纹连接的密封填料应均匀附着在管道的螺纹部分;拧紧螺纹时,不得将填料挤入管道内;拧紧时外露丝为2~3扣;连接后,应将连接处外部清理干净;外露丝扣刷防锈漆防腐。

1、卫生器具安装:根据卫生器具规格、间距及排水管位置进行排布,使器具与排水管、配件与墙面砖骑缝或居中。水嘴出水口宜于台盆落水口上下对正。排水管应垂直,成排存水弯应朝向一致,存水弯与排水管间隙用沥青麻丝填塞密实后加不锈钢装饰圈,地漏应避开人上厕所时常站的地方,且距板块中间对称设置。
质量控制要点:器具、排水管、配件等与墙、地面砖居中、对缝,周边打胶光滑密实。成排器具安装应排列整齐,高度一致,间距均匀。





2、设备地脚螺栓防水防腐保护:对室外和多水房间安装的设备地脚螺栓,根据设备地脚螺母大小及螺栓外露长度确定套管的直径及高度,成排或同一区域内螺栓外露长度应一致,以确保套管高度一致且覆盖螺栓顶面5mm。套管直径与螺母直径匹配,套管安装后用黄油填塞套管与螺栓之间的间隙,上口与套管平齐。

3、水泵吸水、出水变径管安装质量控制要点:水泵吸水口安装上平偏心大小头,出水口安装同心大小头,螺栓外露长度不大于螺杆直径的1/2,且长度一致。


4、室内消火栓箱安装:暗装消火栓箱安装应复核预留洞的位置、尺寸,将箱体置于预留洞内,箱体外表面距墙面应保留装饰面层厚度,箱体与洞口之间空隙填塞密实,抹压平整。明装消火栓箱安装应确定箱体在墙面上的安装位置,找平、找正,用膨胀螺栓将箱体固定在墙上,固定点不少于四处。
从箱门开启侧将管道接入消火栓内,栓口朝外,阀门中心距墙侧面140mm(带自救卷盘时距箱侧面250mm),距箱里侧表面100mm。螺纹连接时应有2~3扣的外露丝扣,清理干净丝扣处的麻丝,并做防腐处理。消防控制按钮安装在箱门开启处、箱内侧的最上部,并注意电气专业的配合。除箱门安装玻璃者以及能被击碎的透明材料外,均应设置箱门紧急开启的手动机构,与墙面交接清爽无污染。
质量控制要点:开门见栓、见钮,栓口安装高度1.1m允许偏差±20mm,阀门中心距箱侧面为140mm(250mm)允许偏差±5mm,箱体安装的垂直度允许偏差为3mm,箱门开启角度不应小于160°,标识醒目。

吊顶内金属导管敷设
按施工图放线,放出管路走向,确定支吊架位置。按照管路路径设计好支架、吊架、铁件及管弯等,电管弯曲半径应大于4d,以最小电管管径来确定间距,安装支吊架。用管卡把管道在支吊架上固定,长距离管路用管道连接件连接,成排电管间距应均匀。电气设备与器具的出口及过长线路或导管弯曲较多时应设置接线盒,无吊顶时应采用明装线盒,有吊顶入口处应侧向入口,无吊顶或吊顶为可移动块料的接线盒口朝下,接线盒两侧300mm处应增加管卡固定(或专设支架固定)。螺纹连接的焊接钢管在螺纹上涂金属粉导电膏,管箍旋紧,镀锌管在管箍连接处两侧设接地卡,再用黄绿双色线将其跨接,KBG、JDG管的管道连接件按工艺操作即可,保证接地导通。
质量控制要点:支吊架间距均匀,弯曲半径符合要求,电管安装横平竖直、固定牢固、排列整齐、内壁光滑无毛刺,接地良好。


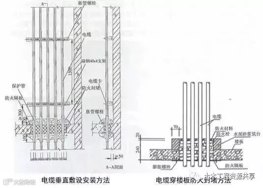
敷设前检查电缆规格、型号、截面、电压,外观无扭曲、损坏,进行绝缘测试及耐压试验。采用机械放电缆时,应将机械选好适当位置安装,并将钢丝绳和滑轮安装好;人力放电缆是将滚轮提前安装好。电缆按顺序摆放,排列整齐,尽量避免交叉。敷设时要按适当的间距加以固定,支架距离不得大于1.5m,放一根立即卡箍一根,穿越楼板可采用加设套管和防火枕两种方式,敷设完成后应将套管与电缆间隙用防火堵料封堵严密,并且及时装设标志牌。电缆进入竖井、盘柜以及穿入管子时,出入口及管口应密封。明敷在竖井内带有麻护层的电缆,应剥除麻护层,并对其铠装加以防腐。
电缆终端头,竖井的两端均应装设标志牌。标志牌上应注明线路编号,无编号时,写明电缆型号、规格及起点,字迹应清晰、防腐不易脱落,挂装牢固。电缆在终端头和接头处要留出备用长度。
质量控制要点:支架牢固、电缆排列整齐、固定点间距均匀牢固、标识明确清晰、防火封堵严密。


1、过路接线盒:在导管敷设时,按照规范要求在适当位置设置过路接线盒。过路盒安装时距地高度宜为300mm;在结构板内安装过路盒时,应用扎丝绑紧,盒内填充密实,表面用胶带密封;导管应垂直进入线盒,焊接管丝头伸入线盒内长度不大于5mm,盒子内外钢管锁母上紧,(或KBG、JDG管可用盒接头与过路接线盒连接)接地,用φ6圆钢在焊管间、焊管与过路盒间进行接地跨接;盒内穿线应留有适当余量;管口加护口;安装过路盒面板,面板紧贴墙面或顶面。
质量控制要点:面板方正、垂直度、平整度符合要求,接地可靠。

2、成排开关插座盒安装:根据结构500mm线和结构墙面线,确定成排线盒的高度及位置,墙内主筋上做标记,上下用两根钢筋穿接线盒,两侧加短钢筋与结构立筋焊接定位,盒口与模板面平齐,固定端正牢靠,间距均匀。
质量控制要点:线盒安装端正,间距均匀,与模板接触紧密,成排盒子标高一致、品牌一致。
单相两孔插座,面对插座的右孔或上孔与相线连接,左孔或下孔与零线连接。单相三孔插座,面对插座的右孔与相线连接,左孔与零线连接;单相三孔、三相四孔及三相五孔插座的接地(PE)或接零(PEN)线接在上孔。插座的接地端子不与零线端子连接。同一场所的三相插座,接地的相序一致。接地(PE)或接零(PEN)线在插座间不串联连接。
开关安装位置便于操作,开关边缘距门框边缘的距离150mm~200mm,开关距地面高度1.3m。


1、配电柜安装:参照配电柜的宽厚尺寸,制作10号槽钢基础,按设计位置安装,在型钢基础的下面四角适当的位置钻孔,在地面相应位置用膨胀螺栓固定基础型钢,调整水平度;将配电柜与型钢基础对正,然后用螺栓固定,成排配电柜两两之间侧面用螺栓连接;按系统图或接线图要求将电缆、电线与相应的电器端子连接;将电源的接地线(PE线)、各回路的接地线(PE线)、金属导管的接地线接在配电柜的接地端子上。配电室房门应加设防水防火挡鼠板,高度不低于0.7m。
控制质量要求:安装牢固,配电柜正面侧面的垂直度不大于3mm每2m;成排配电柜前面平整度不大于2mm,顶高高差不大于2mm,相邻配电柜连接缝隙不大于2mm。配电柜门内应粘贴配电系统图。


2、明配管进箱处理:对于明配导管,距配电箱300处进行固定;箱体采用开孔器开孔,孔径与管径相一致,开孔间距均匀,边沿间距不小于20mm;进入箱体的导管端部套丝,采用锁母固定,外露2~3扣丝;箱体与导管之间、箱体与装设电气部件的门之间采用编织软铜线进行接地连接,编织软铜线两端压接接线端子。
质量控制要点:管口进箱高度不大于5mm,户口齐全,一管一孔,上下锁母上紧。



3、桥架与配电箱的连接:配电箱顶部划线、钻孔,用电锯开条形孔,清理孔边沿毛刺,孔两端为弧形,两端尺寸小于桥架宽度10mm左右,厚度小于等于桥架厚度的80%,孔中心与桥架中心对应,开孔处补漆,孔周边粘贴橡胶条护口。箱体与桥架用1~1.5mm厚、90°的桥架连接片连接,连接螺栓丝头朝外,加设专用垫片,刃面朝向桥架连接片,螺栓外露2~3扣丝。桥架与箱体采用4mm²黄绿双色多股软铜线或编织软铜线接地跨接。


4、箱(柜)内接线:先将线(缆)理顺,按照100~200mm的间距用尼龙扎带进行绑扎,拐角两侧30~50mm及分支处应设扎带,按照黄色(L1)、绿色(L2)、红色(L3)、淡蓝色(N)、黄绿相间色(PE)分别接入A相、B相、C相、N线、PE线端子上,多股线应压接线端子;标识:应在N、PE端子排附近刻写或粘贴“N"、“PE”标识,进入配电盘的外部回路应扎回路牌,进入配电盘的控制线在导线套上号码管;接地:配电箱(柜)的接地螺栓、箱门上的接地螺栓、电源进线回路的PE线、配电箱馈出各个回路的PE线、与配电箱连接金属导管均应PE端子直接连接,导通良好。
质量控制要点:线(缆)绑扎牢固,相序正确,配线整齐,接地可靠,每个端子压线不多于2根。

1、桥架直线段安装连接:按图测量、放线、定位;支架安装时应挂线或弹线找直,用水平尺找平,以保证成排支架安装后横平竖直;桥架用连接片连接(或连接段连接),垫圈、弹簧垫、螺母紧固,螺母应位于桥架外侧。除镀锌桥架外,相邻段桥架之间应采用不小于4mm²软铜线做接地跨接。在桥架外,沿桥架全长敷设不小于φ8的圆钢或25x4的镀锌扁钢接地母线,每个支架和接地母线可靠跨接,接地母线刷黄绿相间油漆。采用桥架连接段连接的优点是桥架底部无缝隙,整齐美观。
质量控制要点:水平段平直度偏差不大于1.5mm每米,全长不大于10mm,相邻段之间缝隙不大于2mm。桥架、支架的接地跨接严格按照要求做。




2、桥架三通安装:根据电缆桥架走向,按照最大电缆直径的10~15倍选择三通形式和弯曲半径。在距三通接口500mm处设置支架,桥架宽度大于800mm时,应在三通底部增加支架。两段桥架与桥架、桥架与支架之间跨接接地。


3、桥架进出线管:根据出线口位置,在桥架侧面开孔,一管一孔。管端套5~6扣丝,与桥架连接内外侧采用锁母固定,管口伸入桥架内不大于5mm,导管与桥架采用不小于4mm²的软铜线接地跨接。
质量控制要点:管口光滑,开孔尺寸与线管一致,固定牢固,接地可靠。


4、伸缩节安装:当桥架经过建筑伸缩缝或桥架直线长度大于30m(铝合金及其他材料直线段长度大于15m)时,应设置伸缩节,伸缩节应设置在伸缩缝位置或直线长度的中间。伸缩节两侧各设置一个支架,支架与伸缩节端部距离不大于500mm。伸缩节补偿收缩衬板应设在伸缩节外侧,衬板螺栓孔应开成条形孔,衬板长度为两个连接板长度之和加30mm,双螺母应位于桥架外侧,且不能拧紧,以保证自由伸缩。伸缩节两端桥架应采用软铜线做接地跨接,接地线中间应留有余量。
质量控制要点:桥架伸缩节安装与其他段桥架平直,内壁光滑,连接顺直,伸缩自如。


5、桥架内电缆敷设:按图确定起点终点及电缆敷设途径;绘制桥架各个断面电缆位置,对载流量大的电缆应保持一定的间距,整个桥架内的电缆截面不应超过桥架截面的60%;电缆敷设前应清扫桥架,检查桥架有无毛刺等可能划伤电缆的缺陷;电缆在桥架内分层排列整齐,不应交叉,电缆在起点、终点、水平弯曲处电缆与桥架应绑扎,竖直电缆最高点、自身重力作用下宜跑位,转弯处、三通处应做绑扎固定,与电桥架间每间隔1m绑扎一次,同一回路的单芯电缆、双拼回路应间距1m自捆扎;穿越防火墙和楼板处防火封堵应严密;电缆起点、终点、转弯及每隔50m处设电缆标牌,标牌内容清晰。
质量控制要点:电缆排列整齐、固定牢固、弯曲半径大于10d,无交叉,无扭绞,无破损,无划伤,标牌齐全。


1、电源配管连接:根据电动机接线盒位置敷设电源管,成排电动机接线盒宜同向排列。电源敷设在靠近接线盒的方向,管口离地高度宜≥300mm,低于电动机接线盒中心100~200mm,室外电源管高度与接线盒中心一致,管口安装防水弯头。在距管口50~100mm处焊接接地螺栓。软管管径应与电源管同径,软管应留有适当余量,两端采用专用管接头盒专用盒接头连接。导线压倒接线盒内的接线端子上。电动机底座、电源管应与接地母线可靠连接。
质量控制要点:管盒连接牢固紧密,排列整齐,接地可靠,接地软线截面不小于4mm²。



2、电源管穿外墙做法:在穿外墙位置敷设套管,宜内高外低并设止水翼环,管径为电缆外径的2倍,长度为每边出墙面100mm。有散水时应伸出散水外边沿100mm,套管两端制作喇叭口,内壁刷防锈漆,外壁出墙刷沥青漆。电缆穿入套管后,两端嵌入沥青麻丝,沥青麻丝在套管内填充密实,距管口深度大于50mm,并应使电缆在套管内居中。

1、避雷接地测试点:预埋扁铁钢及100x100x50线盒,线盒与墙面平齐,镀锌扁钢钻φ12孔,安装防松垫片及蝴蝶螺母,螺母居预埋盒中心。编织软铜线一端连接在蝴蝶螺母上,另一端压接铜鼻子用于接地测试。铜质面板用螺丝固定在预埋盒上,在测试点正上方50mm处粘贴铜质或不锈钢标识牌,标识牌应标明接地测试地点、接地符号、施工单位、编号,标高尺寸及位置与相邻沉降观测点及标识牌一致。
质量控制要点:测试点距地高度一般为0.5m,端子箱平整度误差不大于1mm。


2、配电室接地母线:用扁钢制作接地母线支架,支架末端加工成燕尾形,埋设深度不小于50mm,出墙平直长度为10~15mm,上弯立面长度为40mm。支架安装间距为1m,离地面高度为300mm。接地母线应先调直或煨弯后焊接在支架上,接地母线搭接长度大于等于扁钢宽度的2倍且三面施焊。每房间设不小于2处的蝴蝶螺母作为临时接线柱,过门处暗敷埋设,转角用扁铁煨制圆弧形,煨弯半径R≥100mm,穿墙板处加设套管保护。接地母线应刷45°斜向黄绿相间标识油漆,条纹间距100mm,临时接线柱两侧各留20mm宽度不刷漆。
质量控制要点:支架间距均匀,距墙距离一致,接地母线敷设顺直,油漆涂刷均匀,分色清晰。



3、圆钢避雷带敷设:按设计位置弹线、定位,一般情况下,避雷带应居女儿墙(屋脊)中心,当女儿墙宽度大于300mm时,支架布设于距外沿150mm处,距变形缝、转弯300mm处设支架,直线段支架均匀分布,间距不大于1m;支架埋深不小于80mm,出女儿墙顶面不小于150mm,调整、校正支架的垂直度,根部套不锈钢装饰圈并用耐候胶密封固定。圆钢调直后敷设在支架上,转弯、搭接、变形缝处圆钢煨弯加工,转弯处煨弯半径为80~100mm,搭接处一端钢筋煨乙字弯,与另一端圆钢上下搭接,搭接长度为100mm,搭接点宜设在离支架不小于200mm位置处,双面施焊,焊缝连接饱满,焊渣清理干净,焊接点应先刷防锈漆,再刷银粉漆,防腐处理到位;变形缝处钢筋煨成向下半圆形。将防雷引下线可靠焊接在避雷带上。拉通线校正避雷带的高度、平直度。



接地装置的焊接应采用搭接焊,搭接长度应符合下列规定:
1扁钢与扁钢搭接为扁钢宽度的2倍,不少于三面施焊。
4扁钢与钢管,扁钢与角钢焊接,紧贴角钢外侧两面,或紧贴3/4钢管表面,上下两侧施焊;
明敷接地引下线及室内接地干线的支持件间距应均匀,水平直线部分0.5-1.5m;垂直直线部分1.5-3m;弯曲部分0.3-0.5m.
屋顶设置避雷针或避雷线,主要作用是对建筑物和屋面设备起到保护作用。其质量控制主要为:屋面的设备、金属构件、金属管道、金属支架、电气设备金属外壳都必须和接地干线可靠连接。避雷线安装应平直,镀锌层完好,接头应采用双面焊接,圆钢搭接长度6倍直径,焊接焊口须防腐处理。引下线宜采用圆钢或扁钢。当采用圆钢时,直径不应小于8mm。当采用扁钢时,截面不应小于48mm2,厚度不应小于4mm。对于装设在烟囱上的引下线,圆钢直径不应小于12mm。扁钢截面不应小于100mm2且厚度不应小于4mm。避雷带跨越建筑物变形缝时,应设补偿装置。接闪器应热镀锌,焊接处应涂防腐漆。在腐蚀性较强的场所,还应加大其截面或采取其他防腐措施。



屋面利用金属栏杆做避雷带示例

不锈钢管金属栏杆一般管壁较薄,截面积达不到避雷带设计的要求,尤其是在连接处,更是薄弱环节,应在其连接处做加强处理,确保在遭到雷击时安全泻流。

4、引下线标识:用厚度等于1mm的不锈钢板加工制作标识牌,具体要求见图;用黄、绿油漆对引下线进行相间标识,黄绿漆相间30~40mm;在引下线正下方距女儿墙顶面150mm处用云石胶粘贴标识牌,位置明显,便于观察。

5、屋面金属通气管接地:采用镀锌扁钢自屋面避雷网从透气管根部引出,用抱箍沿透气管固定,距根部或装饰台面间距300mm,根部与接地线连接,搭接长度不小于100mm,透气管的连接部位做接地跨接。


6、屋面金属体接地:用-25x4的镀锌扁钢从就近的避雷网引接地线,接地扁钢一端与避雷网连接,另一端在金属体附近地面引出,应高于设备基础100~200mm。无振动设备在金属体上直接焊接,有震动设备和非碳钢金属体应用编织软铜线两端压端子跨接,编织软铜线外套黄绿双色热缩套且热缩。伸出地面的接地母线应刷黄绿相间油漆。体积较大的金属体应做不小于2处的接地,高度高于避雷网时,应加避雷针保护。接地母线附近应做接地标识。


7、高层建筑管道顶部和底部接地:有接地预埋钢板或垂直接地母线上引接接地母线,接地母线距地300~500mm,距墙10~15mm,并间隔100mm刷45°斜向黄绿相间油漆。将于管径相匹配的接地抱箍安装于管道上,抱箍必须与金属体紧密接触,编织软铜线一端与抱箍连接,另一端与接地母线连接,螺栓连接处应加平垫片和弹簧垫片。DN≥100mm时,采用10mm²编织软铜线,DN≤80mm时,采用4mm²编织软铜线。


8、等电位连接:按图纸设计预埋或明装接地干线,接地干线与等电位箱接地排连接,等电位箱与裸露金属构件连接。等电位接地干线应从与接地装置有不小于2处直接连接的干线引出,等电位连接干线或局部等电位箱间形成环路,支线间不应串联。等电位箱体表面应标识明确。



大口径(b≥2500mm)镀锌钢板风管加固:利用1.2mm厚的镀锌钢板制作C形条,沿风管宽度方向将C形条按600~750mm间距铆接。铆钉按200~220mm间距铆接在风管内侧。加固完成后安装风管两侧法兰。


1、支吊架安装:
1)、悬吊架安装:横担下料长度为风管底面宽度+100mm(含保温),角钢端部倒圆角,倒角半径宜为角钢边长的1/3~1/2。吊杆穿孔中心距横担端头25mm,横担统一刷灰色防锈漆两道。外露吊杆端部用螺母加固后加圆头螺帽收头。
2)、固定支架宜设在主梁和次梁上,其设置方向应同于其他支架。固定支架伸入梁的长度不宜小于200mm,固定点每侧不少于两个,上部固定点距支架顶端不宜小于50mm,底部固定点距梁底端不宜小于50mm,固定点间距不宜小于100mm,所有型钢支架尖角必须倒成圆弧角。
3)、水平风管支吊架间距不大于3m,风管长度大于20m时应设置防晃支架。支吊架距风口应不大于200mm。
质量控制要点:通丝螺杆的垂直度控制在2mm每米内,吊杆根部干净、横担平正。

2、风管穿越防火分区做法:用2mm厚钢板加工制作风管套管,套管接缝应满焊,套管尺寸比风管四周尺寸大30~50mm,套管长度与墙面厚度一致。安装完后用防火材料将套管与风管间隙填塞密实。用2mm厚、30~50mm宽黑色橡胶装饰圈收口,装饰圈角部45°拼接。风管穿越防火分区处必须设防火阀,防火阀距墙分隔墙间距不大于200mm,风管长边大于630mm时,宜在防火阀两侧设单支吊架。

3、风管与风机软连接:确定风管与风机之间的距离和同心性,距离要求150~200mm,风管、风机同心径;制作软接两端法兰,中低压系统法兰螺栓孔间距120~150mm,高压及净化系统距80~100mm,软接长度为法兰间距加20~30mm伸缩量,用铆钉将软接均匀平整的固定在法兰上,铆钉位置和法兰螺栓位置对应,风机法兰与风管法兰螺栓孔对应,螺栓朝向与介质流向一致,螺栓外露长度为2~3扣丝。屋面与防暴场所采用不小于4mm²的黄绿双色铜芯软线压接铜鼻子接地跨接。成排风机中心线应在一条线上。

根据策划后的图纸,确定风口位置,在风口颈部用手枪钻打眼,孔径4mm,打眼间距不大于100mm,用自攻丝和1.5~2.0mm厚的金属条将三防布固定到风口颈部。方木防火防腐处理后固定在吊顶龙骨上,用自攻丝将风口固定在方木上,自攻丝间距不大于300mm,校正风口,与吊顶结合严密。

您的转发是对我们最大的支持
此文为公众号土木工程资源共享整理,如有转载,请注明!

加入我们
投稿展示或者分享资料
一起交流一起成长
扫一扫下方二维码,灵感即刻进

官方微信或qq:483972950
官方qq群:343778875 或648915172
规范图集下载群:61754465
官方微信群需要加官方微信即可进入!
技术交流、资料分享、特权权益服务尽在公众号、微信群、qq群,详情请咨询官方微信和qq!如果群里有其他人向你兜售等不法行为,请千万不要相信上当受骗,请认准我们官方微信和qq!
点击阅读原文有惊喜,喜欢就点这里▼