提示:点击↑上方"土木工程资源共享"关注加入
点我资料免费下
【重磅福利】
相关文章推荐:不会做装配式建筑灌浆?看完这篇就全懂了!
装配式建筑相信大家已不陌生,特别在近几年,3D打印技术出现之后,装配式建筑将会成为新型建筑主流。今天,咱们一起来了解一下装配式建筑的施工工艺流程吧。
目的
指导参与装配式生产厂家考察的人员了解考察工作的程序、要点,对被考察单位的各方能力做出客观的综合评价。
适用范围
适用于装配式结构的厂家考察和交底。



装配式厂家考察工作分解
一、介绍《装配式厂家单位考察记录表》的构成




二、装配式厂家推荐原则
公司员工均可推荐施工单位,但在考察记录中,需填写施工单位来源推荐人信息。
三、装配式厂家考察原则
1、新单位经公司联合考察认可后,纳入公司的合资格单位库,方可参与工程投标。
2、联合考察的部门包括:集团工程招标管理部,工程管理中心,区域、项目部。
3、供方推荐人,与供方有关联人员需回避考察。
四、装配式厂家考察准备工作
1、查询拟考察单位有没有诚信问题或法院通报的重大合同纠纷案件。
2、为提高考察效率,提前把拟考察施工单位基本信息表发给施工单位填写,方便我司提前了解拟考察单位的基本情况。
3、组织部门对拟考察施工单位先进行摸查,初步评估该单位实力能够达到我司基本要求后,再组织相关部门联合考察,以提高对施工单位考察的效率。
4、提前告知施工单位我司考察项目经理的原则:
1)原则上考察项目经理(或执行经理)和将来拟派我司投标的项目经理(或执行经理)是同一人。
2)若将来另派项目经理,要求提供该项目经理的社保及业绩证明,公司对项目经理的评价,区域、项目对项目经理团队约谈把关。
五、装配式厂家总部考察
考察新的施工单位时,必须考察其公司总部,最好能约见其法人代表,记录好其联系方式和地址;不允许仅考察新单位分公司或办事机构。
考察施工单位总部,介绍双方人员,交换名片。并请施工单位简单介绍公司情况,包括过往业绩、管理模式等。

我们必须提醒施工单位实施“营改增”后需要面临的问题: 我们要求装配式类工程的合作单位都要具备一般纳税人资格,这将作为我司邀请投标的前提条件。
六、招标文件等重点内容交底
1、招标方式及报价形式
我们的招标方式是采用邀请招标,工程量清单报价。
强调:
1)为保证整个投标过程的公平、公正、公开,邀请投标单位现场参与开标,若投标单位不能参与现场开标,必须承认开标结果,公司法务部门监督开标过程。
2)定标的原则是合理低价中标,低于成本且无合理解释的投标将按废标处理。
2、付款方式
1)签订施工合同之后,甲方有预付款(一般10%,分三次付清);
2)每月完成合同工程的部分,通过现场监理认可签字,业主中期支付(扣留5%作为质量保证金);
3)工程竣工后,除预留的5%作为质量保证金后,其余的都付清;
4)工程质量缺陷责任期完成后(一般为两年),业主付清所有预留的质量保证金。
3、介绍项目工程规模,品质要求及装配式材料进场的时间要求。
工程概况
B1#楼地下一层,地上10层,总建筑面积8260.38㎡。该楼主要使用功能为普通住宅。地下部分为全现浇剪力墙结构,地上部分采用预制圆孔板装配式剪力墙结构体系,楼梯间和电梯井部分采用现浇剪力墙结构。

B1#楼地下1层,层高3.6m,为非人防普通地下室,地上10层,层高均为2.7m,建筑檐口标高27.0m。顶部设有出屋面楼电梯间及水箱间。

本工程地下结构采用现浇钢筋混凝土剪力墙结构。基础采用钢筋混凝土筏板基础。地上主体结构形式采用预制圆孔板装配式剪力墙与现浇剪力墙相结合的结构体系。
楼、屋盖体系采用带桁架钢筋的混凝土叠合楼板+叠合梁体系。
标准层楼梯采用预制钢筋混凝土楼梯。
本工程采用的预制构件包括:内、外墙圆孔板(外墙带外保温)、连梁模壳、窗台板、带桁架钢筋的叠合楼板预制层、叠合梁、楼梯、空调板、女儿墙板。

装配式图纸解读
本工程建筑平面凹凸变化不大,主体结构布置简单、规整,上下对应贯通,门窗洞口上下对齐,无错洞。
一、材料要求
1、混凝土

2、钢筋

本工程使用的钢筋除混凝土模壳内非受力的分布钢筋采用冷轧带肋钢筋外,其余受力及分布钢筋均采用热轧钢筋,所有纵向受力钢筋均采用HRB400高强钢筋。
二、结构设计主要技术指标

抗震设防有关参数

三、结构计算简介
1、整体计算:根据《装配式剪力墙结构设计规程》(DB11/1003-2013)第5.3条的规定,本工程采用同现浇钢筋混凝土剪力墙相同的振型分解反映谱方法进行多遇地震下的弹性分析计算。
2、现浇剪力墙计算:根据《装配式混凝土结构技术规程》(JGJ 1-2014)第8.1.1条要求,装配式剪力墙结构中的现浇剪力墙肢水平地震作用弯矩、剪力均乘以1.1的增大系数进行配筋设计。
四、预制构件
1、预制圆孔板剪力墙墙板:
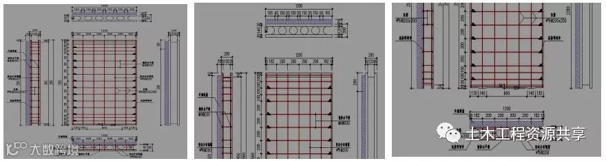
墙板由标准钢筋网片、混凝土组成(外墙增加保温),经在标准的模具内进行混凝土浇筑而成。预制墙板的上下和左右都有贯通的凹槽,中间由若干椭圆孔等距分布在板内。
墙体钢筋:
1)墙板模壳内设置钢筋网片,其中水平向钢筋为墙体计算水平钢筋,竖向为分布钢筋,孔间肋部设置拉筋。
2)孔内在现场设置墙体竖向钢筋与横筋组成的梯子筋网片。
3)墙板分为内墙标准板、外墙标准板、门窗洞边板等。
4)窗下墙板和女儿墙板均采用与外墙圆孔板相同的板型制作,顶部均设置现浇混凝土压顶。
2、墙体竖缝连接
预制墙板两侧均设有深≥165mm,宽≥120mm的半椭圆形通长凹槽。 楼层内标准预制墙板之间、预制墙板与墙体现浇段之间采用标准节点连接。通过位于预制墙板端部的水平拉锚螺栓进行转换连接,实现墙体水平钢筋的连接。



施工简介
B1#住宅楼建筑平面布置为四个单元组合。

工期要求:该主体工程工期确定约为 90 天,其中:一层主体结构 15 天/层,二层主体结构 10 天/层,三层以上主体结构 7 天/层。
施工难点:本工程垂直运输是关键,塔吊使用频率高,使用时间长,合理高效运用塔吊,并在塔吊运行过程中保证安全施工,杜绝安全隐患,预防发生安全事故。
施工难点:该工程为预制板剪力装配式结构,质量要求高,为确保工程质量和保证工期,采取夜间赶工、工序交叉、平面流水等多种施工组织形式进行作业,做到多工作面施工。
一、本工程剪力墙装配式体系的介绍
剪力墙体系的主要特点:
1、竖向钢筋连接采用绑扎搭接,便于施工和验收。
2、竖向构件采用预制圆孔墙板,便于构件设计、生产、运输和吊装。能够实现构件设计标准化和构件生产工业化。
3、采用标准化定型模板和支撑系统,装配式安装施工,提高施工效率,缩短施工工期。
4、所有预制构件之间通过现浇混凝土形成可靠的连接,结构安全可靠。
5、减少了现场湿作业及模板安装工作量,节约了施工现场人工投入。
6、减少了现场施工周转材料消耗,降低了施工现场的环境污染。

装配式圆孔板剪力墙结构施工工序流程





钢筋工程
本工程钢筋等级分为Ⅰ级、Ⅲ级热轧钢筋。钢筋连接形式分为滚压直螺纹机械连接与绑扎搭接两种形式。其中基础筏板受力钢筋直径16mm以上均采用滚压直螺纹机械连接。

一、钢筋分项质量过程控制程序




钢筋连接:钢筋连接应按照设计图要求施工,钢筋连接选用搭接连接,搭接长度需符合相关规范要求。
钢筋安装过程中,采用与预制圆孔板构件安装要求一致的定型定制量具对钢筋安装位置进行检验和校正,保证钢筋安装符合设计及预制圆孔板构件安装要求。钢筋测量及定制量具。

与预制圆孔墙板内水平分布钢筋预埋件进行连接的对拉螺栓采用符合设计要求的内六角螺栓,对拉螺栓必须拧入预埋件螺丝孔内。

墙筋绑扎前, 用钢丝刷将污染的钢筋清理干净,测量工及时弹出墙体内外边线及控制线。混凝土工根据墙体内外边线用扁铲剔凿并将浮浆、石渣清理干净。
校正钢筋位置。根据已弹好的墙内外边线,对有偏差的钢筋按 1:6打弯对钢筋进行校正,对钢筋间距偏差进行校正。

墙板叠合板吊装模板安装工程
本工程地下墙体模板采用15mm厚多层胶合板,50×100木方作次楞,48×3.5mm钢管作主楞(两根),钢管做斜撑。地下顶板模板采用12mm厚多层胶合板,50×100木方作次楞,100×100mm木方主楞,支撑体系采用碗口架体系。

本工程地上墙体结构核心筒部位采用86系钢模。其它墙体采用预制圆孔板 ,支撑采用专用支撑体系,板与板、板与现浇柱采用螺栓转换连接。


一、运输与存放
根据装配式结构施工方案制定预制构件进场运输计划及现场构件存放计划。预制圆孔板构件采用横向竖直码放,设有专用托盘固定支架,并支垫稳固。
二、支撑体系及模板工程
现浇柱混凝土的定型墙模板包括:预埋螺栓、模板固定底盘、定型墙模板和斜支撑。


固定底盘通过预埋螺栓安装固定在楼板上,安装位置应与定型模板安装位置一致,定型模板底端通过螺栓与固定底盘连接固定,在定型模板两侧安装可双向调长度的斜支撑,通过调节斜支撑校正定型模板,保证定型模板的垂直与稳定。

定型墙模板顺序:模板固定底盘→安装定型墙模板→斜支撑→拉接横梁→检查验收。

模板需采取有效的密封防漏浆措施,可采用密封条或密封棒进行密封。
宜选用水性脱模剂,脱模剂应能有效减小混凝土与模板间的吸附力,并应有一定的成膜强度,且不应影响脱模后混凝土表面的后期装饰。
支撑系统安装:安装预制圆孔墙板构件采用EVE支撑系统。支撑系统包括定型墙模板、固定底盘、预埋螺栓、定型墙模板斜支撑、拉接横梁、预制构件拉接螺栓及螺母等。


三、预制圆孔墙板构件安装准备工作
1、预制圆孔墙板混凝土结构施工前,宜选择有代表性的单元或构件进行试安装,根据试安装结果及时调整完善施工方案,确定施工工艺及工序。
2、应复核构件安装位置、节点连接构造及临时支撑系统。
3、安装施工前应按工序要求检查核对已施工完成结构部分的质量,测量放线后,做好安装定位标志。
4、预制构件搁置的底面应清理干净。
5、吊装机具应满足吊装重量、构件尺寸及作业半径等施工要求。
6、对吊装吊具进行检查,采用质量合格的吊具并对出现损伤的吊具及时修复或更换。

您的转发是对我们最大的支持
猜你喜欢:
3、助力2018安全生产月,这100份安全资料合集值得入手(可下载)

加入我们
投稿展示或者分享资料
一起交流一起成长
扫一扫下方二维码,灵感即刻进

官方微信或qq:483972950
官方qq群:343778875 或648915172
规范图集下载群:61754465
官方微信群需要加官方微信即可进入!
技术交流、资料分享、特权权益服务尽在公众号、微信群、qq群,详情请咨询官方微信和qq!如果群里有其他人向你兜售等不法行为,请千万不要相信上当受骗,请认准我们官方微信和qq!

