提示:点击↑上方"土木工程资源共享"关注加入
点我资料免费下
【重磅福利】
正文

1分部工程概况
2 施工部署
序号 |
项 目 |
项 目 目 标 |
1 |
质量目标 |
北京市结构长城杯 |
2 |
工期目标 |
主体结构日期:2014年6月1日~2014年09月30日 |
3 |
安全目标 |
杜绝死亡事故,尽量减少轻伤事故。 |
序号 |
层 数 |
卸料平台形式 |
卸料平台使用部位 |
1 |
2#-5#楼 |
悬挑式卸料平台 |
2-4/H、18-20/H轴 |
2 |
1#楼 |
悬挑式卸料平台 |
6-8/A、14~16/A轴 |
3
材料机具准备
3.1 材料用量表
序号 |
材料名称 |
规 格 |
备 注 |
1 |
钢丝绳 |
6*19+1 φ21.5 |
抗拉强度为1850N/mm2 |
2 |
工字钢 |
18# |
主梁Q235钢,见平面图 |
3 |
工字钢 |
16# |
次梁Q235钢,见平面图 |
4 |
花纹铁板 |
4mm |
铺于平台底面 |
5 |
雪花铁板 |
2mm |
防护栏板内侧 |
6 |
方钢 |
50*3mm |
防护栏杆竖龙骨 |
7 |
矩管 |
50*30*3mm |
防护栏杆横龙骨 |
8 |
方钢 |
40*3mm |
防护栏杆定位龙骨 |
9 |
钢丝绳夹 |
Y6-20 φ20 |
每个绳扣4个 |
10 |
特制螺栓 |
φ30 |
每个平台四根 |
11 |
圆钢吊环 |
φ25 |
|
12 |
限位吊环 |
φ20 |
每个平台六个 |
13 |
螺栓 |
M10*150mm |
|
14 |
铁板 |
3.2材料部门要根据现场计划提前作好材料进场准备工作,做到及时进场。
4
悬挑式钢平台设计
4.1 悬挑式钢平台设计方案
4.1.1 钢平台是尺寸设计
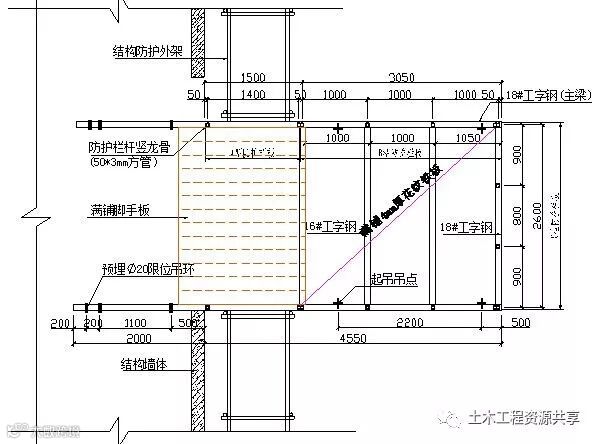
钢平台为悬吊式,长4.5m,宽2.6m;平台计算面积3.05*2.8=8㎡,钢平台外侧采用型钢及雪花铁板制作1.5m高防护。
4.1.2 钢平台材料选择
钢平台两侧主梁选用18#普通工字钢,且使用整根工字钢不得接长;次梁选用16#普通工字钢,平台前端封边次梁选用18#普通工字钢;吊索采用A21.5mm-6×19+1钢丝绳,配套卡环选用22#卡环;防护栏板竖龙骨采用50*3mm方管,横龙骨采用50*30*3mm矩管;钢平台墙体吊环采用A25圆钢(Q235-A)制作;钢平台拉结点采用A25圆钢(Q235-A)制作;焊条采用E43型,焊缝等级3级。所有材料均需为合格材料,所用钢材均需有合格的材质单及检验报告。
4.1.3 钢平台做法简述
主梁与次梁采用满焊;次梁上方满铺4mm花纹铁板,铁板与主次梁进行焊接。钢平台外侧三面设置1.5m高的防护栏板,栏板内侧焊接固定2mm厚雪花铁板,外侧正立面采用自攻螺钉固定企业标识牌及限载吨位标识牌。主梁间距2600mm,次梁间距1000mm。主梁上焊接250mm长40*3mm短方管,防护栏板插入后用两颗M10*100mm螺栓固定;防护栏板横龙骨均采用50*3mm方管,横龙骨采用50*30*3mm矩管,竖向间距725mm~1000mm,横向间距750mm,横竖龙骨均需满焊连接;正面防护栏板均需各自独立焊接成一个整体,安装时用M10*150mm螺栓将各段防护栏板连接在一起。A段防护栏板不设置,钢平台安装到位后侧面设置1.2m高的钢管临边防护,外侧密目网用专用绑绳绑扎牢固。
4.1.4 钢丝绳的设置
钢丝绳设于平台前端两侧,每侧设两道钢丝绳,采用6*19+1直径21.5mm的钢丝绳。主梁外侧拉结点吊环处先焊接一块350*180*10mm的铁板,铁板上双面焊接吊环,焊接长度≥125mm,且吊环需弯折至工字钢底部80mm后双面焊接,吊环采用φ25圆钢制作;钢丝绳用卡扣进行固定,每道钢丝绳不得少于四个,卡扣间距≥130mm。受层高影响及施工进度需要,钢丝绳与结构主体拉接点设置在平台以上一层;墙体吊点的位置预留应确保钢丝绳与平台两侧垂直面夹角不宜过大(一般不大于5°);钢丝绳(主绳)吊点距平台前端距离为500mm,保险绳吊点距主绳吊点距离为500mm。
4.1.5 荷载设计
(1)卸料平台设计荷载1.5吨,施工容许荷载为1.0吨,严禁超载堆放。
(2)卸料平台允许堆放相关物料清单:
序号 |
项目 |
材料理论重量 |
允许数量 |
备注 |
1 |
多层板(1220*2440*15mm) |
30Kg/张 |
≤30张 |
1.堆放材料距离围护栏杆不小于300mm; 2.同时上平台操作人数不超过2人; 3.平台的临边防护栏杆上严禁挤靠放置物料或探出护栏放 置物料; 4.单次起吊碗扣件及钢管的数量还需考虑塔吊的起重量及起重后捆绑牢固等因素; 5.物料堆放高度应低于护栏高度。 6.表中物料数量均为单次堆放数量。 |
2 |
脚手板(200*50*4000mm) |
5Kg/m |
≤50块 |
|
3 |
100*100木方(4m) |
5Kg/m |
≤50根 |
|
4 |
50*100木方(4m) |
2.5Kg/m |
≤100根 |
|
5 |
单次堆放4m长钢管 |
3.97Kg/m |
≤62根 |
|
6 |
单次堆放3m长钢管 |
3.97Kg/m |
≤80根 |
|
7 |
单次堆放2m长钢管 |
3.97Kg/m |
≤125根 |
|
8 |
单次堆放1.5m长钢管 |
3.97Kg/m |
≤160根 |
|
9 |
单次堆放直角扣件 |
1.32Kg/个 |
≤700个 |
|
10 |
单次堆放旋转扣件 |
1.46Kg/个 |
≤650个 |
|
11 |
单次堆放对接扣件 |
1.84Kg/个 |
≤540个 |
|
12 |
单次堆放顶托 |
6.8Kg/个 |
≤160个 |
|
13 |
单次堆放2.4m碗扣件. |
3.97Kg/m |
≤100根 |
|
14 |
单次堆放2.1m碗扣件. |
3.97Kg/m |
≤115根 |
|
15 |
单次堆放1.2m碗扣件. |
3.97Kg/m |
≤200根 |
|
16 |
单次堆放0.9m碗扣件. |
3.97Kg/m |
≤270根 |
|
17 |
单次堆放0.6m碗扣件. |
3.97Kg/m |
≤400根 |
4.2 设计图纸
4.2.1 悬挑式卸料平台平面布置图

4.2.2 钢平台立面图

4.2.3 钢平台剖面图
4.2.4 钢平台正立面示意图
4.2.5 钢平台主次梁连接节点图

4.2.6 钢平台与防护栏板连接节点图

4.2.7 吊环与主梁连接节点图

4.2.8 限位吊环安装示意图

4.2.9 悬挑式卸料平台吊环安装示意图
5
施工方法
5.1 平台的制作
根据图纸列出料单→选择加工场地→安放垫木→下料→构件接头连接→组拼→调整各配件关系使之符合图纸要求→各配件间点焊→进一步焊接→焊防护栏杆→焊平台根部支点→铺脚手板→栏杆焊接→栏杆封板→安装钢丝绳→挂标识牌。
5.1.1 根据图纸计算主次梁所需原材的长度,主梁应使用整根工字钢。
5.1.2 平台加工场地应平整,才能保证制作的平台形状正确,满足使用要求。
5.1.3 在选好的场地上,根据平台的尺寸,确定铺垫木方长度及范围,以便于平台的组拼和焊接。
5.1.4 根据图纸平台形状、尺寸将各部位构件组拼成形,临时点焊,用尺子复核各部位尺寸,并进行调整直至符合要求。
5.1.5 焊接时先焊接外框,再焊接内框。同一构件或焊缝均须对称焊接,以减少焊接变形量。
5.1.6 主次梁焊接完毕后按照加工图焊接吊环,焊接吊环前先焊接铁板,铁板与主梁焊接部位需切45°坡口后焊接。吊环采用Q235A级A25圆钢制作。
5.1.7 平台主次梁焊接完毕后在平台主楼上焊接一根250mm长的40*3的短方管,便于防护栏杆插入后固定。
5.1.8 平台根部必须有可靠的支承点,支承点采用18#工字钢焊制牛腿,牛腿长度250mm,牛腿位置根据现场结构确定。
5.1.9 在平台上铺4mm厚花纹铁板,花纹铁板与防护栏板及主次梁焊接固定。
5.1.10 按照图纸所示尺寸分段焊接平台防护栏板龙骨,焊接完毕后,在其内侧焊接固定2.5mm厚雪花铁板。平台正立面外侧用自攻螺钉固定企业标识牌和限载吨位标识牌。
5.1.11 全部焊接完毕后平台外侧涂刷红白相间油漆,各红白条宽度均为200mm,倾斜角度为45°。同时在5mm花纹铁板上自端部起4米处用红色油漆涂刷警戒线(100mm宽),物料堆放时不可超过此线范围。
5.1.12 在平台内外均挂标识牌,外侧标识牌用自攻螺钉进行固定,包括企业标识牌和限载吨位牌;内侧需挂限载吨位牌、堆放物料明细表牌及平台操作规程牌。
6
技术、质量要求
6.1 技术要求
6.1.1 焊接平台所用的工字钢、方管应有材质报告。搭设和制作的各种材料,必须符合规范要求,不合格的材料严禁使用。
6.1.2 焊接采用E43系列焊条,并要求专业厂家进行焊接,以保证焊接质量。
6.1.3 加工制作完毕后,必须由生产部门组织,技术、质量、安全等部门相关人员参加,对平台进行验收,合格后方可投入使用。
6.1.4 为防止空气侵入焊接区域引起焊缝金属产生裂纹或气孔,应采用短弧焊。
6.1.5 热影响区在高温停留不宜过长,以免晶粒过大。
6.1.6 多层焊时,应连续焊完最后一层焊缝,每层焊缝金属的厚度不大于5mm。
6.1.7平台制作过程中,严格按照技术交底和操作规程进行作业,焊缝的长度、高度和强度必须满足规范要求。在首次吊装时,生产、技术、质量、安全等部门相关人员必须到场,对吊装和安装过程进行监控,信号工、塔吊司机和安装工人紧密配合,严格按照操作规程作业。
6.2 外观质量
6.2.1焊缝金属表面焊波应均匀,不得有裂纹、未熔合、夹渣、焊瘤、咬边、烧穿、弧坑和针状气孔等缺陷,焊接区不得有飞溅物 。
6.2.2焊缝必须逐一检查 。
6.2.3直径小于或等于1mm的气孔在100mm长度范围内不得超过5个。
6.2.4咬边(不要求修磨的焊缝)深度不超过0.5mm,累计总长度不超过焊缝长度的20%。
您的转发是对我们最大的支持
猜你喜欢:
3、助力2018安全生产月,这100份安全资料合集值得入手(可下载)
此文来源于网络,如有转载,请注明!

加入我们
投稿展示或者分享资料
一起交流一起成长
扫一扫下方二维码,灵感即刻进

官方微信或qq:483972950
官方qq群:343778875 或648915172
规范图集下载群:61754465
官方微信群需要加官方微信即可进入!
技术交流、资料分享、特权权益服务尽在公众号、微信群、qq群,详情请咨询官方微信和qq!如果群里有其他人向你兜售等不法行为,请千万不要相信上当受骗,请认准我们官方微信和qq!

