提示:点击↑上方"土木工程资源共享"关注加入
点我资料免费下
【重磅福利】
正文
本文从53个角度将混凝土结构工程解剖开来,对于混凝土结构施工来说,堪称史上最全面的解说,大家来看看吧!
一
模板工程
1.1 模板选型、制作
模板选型
模板的材料选择应依据工程的面积部位,层数等进行合理选择,模板的类型及厚度,应经济合理。非标准层模板设计及加工应为标准层考虑通用,调高周转次数,降低成本 。
墙柱木模不宜使用小于15mm多层板 。
地下室模板
地下室墙体一般为非标准层,可考虑选用60系列小钢模,地下核心筒可设计成标准层定型大钢模接高的方法。
模板表面排板方式、立杆龙骨间距、对穿螺栓间距等按模板方案支设 。

导墙设置
地下室外墙应设置300高导墙,导墙上口采用钢筋固定,保证截面尺寸,侧面用钢筋斜撑防止变形。模板下部采用钢筋支撑,保证底板保护层。
此部位模板应位置准确支撑 牢固避免接高错台。
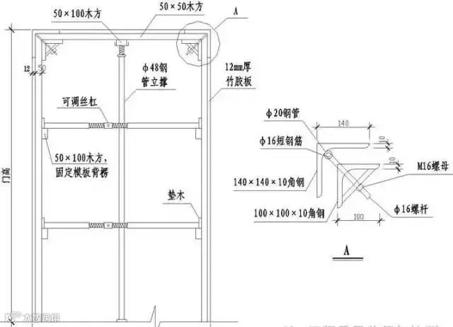
门窗洞口模板
门窗及预留洞口制作成定型木模板墙厚每侧减1mm 。
洞口模板外侧应贴海面条防止漏浆 。

梁柱节点模板
梁柱节点,可根据形状做成圆形或方形定型模板,下探400-600一~两道抱箍,以保证不错台,不漏浆。
梁豁预留准确,无错位、变形。

阴阳角模板
大钢模阴阳角应采用组合拼装形式,以保证接缝平整,不跑浆,并拆卸方便 。
连接紧密,模板阴阳角方正、垂直度达到规范要求。

穿墙螺栓
地下外墙防水混凝土,墙体穿墙螺栓,及顶模撑应设置止水片,顶模撑墙厚每侧减1mm,并刷防锈漆 。
止水片焊接严密、牢固。

墙体模板
墙体若采用木模拼装其背愣应加密至150mm,以避免混凝土出现肋状波纹。
大模板制作拼缝应严密,缝隙硬拼表面平整。

模板高度
墙柱等竖向构件模板高度应为结构净高加30mm-50mm,梁部位设置梁窝。
砼浇筑高度应超过梁底、板底25-30mm 。

楼梯模板
楼梯选用定型钢模或现场拼装木模两跑交接处及最上一步与最下一步,应考虑装修做法厚度。
上口应固定牢固,禁止踩踏,模板侧面应垂直 。

楼板模板
楼板模板宜采用多层板,其厚度可根据楼层及周转次数及成本确定,并采用硬拼缝 方法,不得刮腻子或塞海绵条 。
与地面支撑牢固间距一致。

1.2 模板安装:基本要求
模板基本要求
模板安装的位置,标高、垂直、平整度应符合长城杯允许偏差,截面尺寸可按长城杯允许偏差中负偏差控制,降低成本。安装时尽量按负偏差考虑。
起拱要求
跨度大于等于4m的梁板,楼板按设计要求起拱,当设计无要求时,起拱高度为跨度的1/1000~3/1000,起拱线要顺直不得形成折线。
同跨度应起拱一致 。

门窗洞口安装
门窗洞口尺寸正确支撑牢固,可绑扎附加筋,焊顶模棍,以保证洞口不变形不位移。
不得将顶模钢筋焊接在主筋上 。

单侧支模
地下室外墙单侧支模应有专门施工方案,支撑稳固。以保证不涨模不浮起不变形 。
支模前应仔细检查支撑部位是否牢固。
楼梯间墙体
楼梯间墙体在楼梯位置的两道水平施工缝应重点控制,可预留对穿螺栓孔,以避免错台现象,外墙接茬同样控制 。
模板根部应仔细检查,防止漏浆、错台。
土质地基支撑
支架支撑在土层地基时,基土必须坚实,并设通长跳板 。
雨期应有排水及防沉降措施,冬期应有防冻融措施。
楼板支撑下口
支撑下应铺设垫板,可采用5×10cm,10×10废木方,锯成统一长度,一般长度300 ,摆设方向一致,上下支撑应垂直在同一中心线上 。
支撑严禁直接支在楼板砼上。
楼板支撑上口
支撑上端U托型号应与木方规格相吻合,自由段高度不得过大 。
楼板支撑体系严禁与外墙脚手架连接。
墙体小钢模安装
模板采用组合型小钢模时,其穿墙螺栓的拉结带用10cm的定型钢模或5×10cm木方加工成与钢模同厚的木条,刨平并钻孔用勾头螺栓或插棍与小钢模固定,平整牢固防止此部位,涨模错台 。
根部应用砂浆塞实防止漏浆。
预留洞模板
混凝土墙体门窗预留洞口模板与墙模之间应粘海绵条防止漏浆 。
应与墙体钢筋固定牢固,防止洞口模板变形、位移 。

丁字墙模板
丁字墙门洞大模板应尽量贯通,防止此部位错台 。
角模安装
大模板与角模连接节点,螺栓或卡子应控制间距并全部拧紧上齐,避免漏浆错台 。
角模内侧应设顶模钢筋防止角模板位移 。

模板清理
模板内清理,可采用气泵吸尘器相配合避免加渣 。
梁模板安装
应有统一作法,依据工程实际情况,确定两侧固定方法,避免梁侧涨模及阳角漏浆。
1.3 后浇带施工缝支设:基本要求
基本要求
楼板后浇带截挡,楼板模板验收合格后,在设计要求的后浇带位置弹一条直线,用1.5cm厚×2cm木条固定在模板上(注意一个方向木条厚=保护层,另一个方向为保护层+下铁钢筋直径)作为板下铁保护层,梁底梁侧,同样做法。绑完钢筋后,用多层板锯出凹槽间距 等于钢筋间距多层板高度等于板厚减上下保护层,然后在上铁上面加木条,木条厚等于上铁保护层,此截挡总高度等于混凝土板厚,固定牢固,能够保证混凝土板截面尺寸钢筋间距及钢筋上下保护层的准确,墙体后浇带施工缝截挡与板类似。

后浇带支撑
后浇带部位的支撑,应设计成独立支撑体系,模板拆除时,此部位不拆除,不应采取先拆模后回顶的方法。
一般工程施工中由于难度较大均采用后回顶 但应注意随拆随顶,后浇带梁板按悬挑结构考虑,用双支柱支撑,并有相互拉结,保证其稳固性 。
支撑下口垫木不得垫在下层后浇带钢筋上 。
模板拆除
模板的拆除、堆放:清理及维修、均应制定相应方案及措施,特别是大钢模的拆模顺序及时间的掌握,以免拆早造成粘模,影响砼外观。
拆除后应及时码放、清理,以便下次使用。
二
钢筋工程
2.1 钢筋加工
钢筋码放
钢筋下部要垫木方,钢筋距两端1/6长度处用通长100×100木方垫起(雨天用塑料布遮盖),防止锈蚀。设专人负责钢筋堆放和标识工作,堆放应分规格、分类型集中堆放。钢筋堆放要进行挂牌,标明使用的部位、规格、数量及安全质量等注意事项,并标明其所处的状态(如已检、待检) 。
一级钢也应将底部垫起,严禁随意堆放。
钢筋调直
Ⅰ级钢筋调直时冷拉率不大于4%,一般至少要拉到钢筋表面脱落为止。钢筋调直后应平直、无局部弯曲 。
调直后应及时使用。
切断
一般钢筋采用钢筋切断机进行切断加工,定位筋与需套丝的钢筋必须用无齿锯切割。
相同构件钢筋切断尺寸应一致。

钢筋成型
成型钢筋加工完成后应进行预检:钢筋长度、宽度、弯折角度等几何尺寸应满足设计及抗震要求:
细部要求:Ⅰ级钢筋末端需作180°弯钩,其圆弧弯曲直径(D)不应小于钢筋直径(d)的2.5倍,平直部分长度不小于钢筋直径的3倍。当钢筋末端需作135°弯钩时,Ⅱ级、Ⅲ级钢筋的弯曲直径(D)不小于钢筋直径(d)的4倍, 钢筋作不大于90°弯折时,弯折处的弯曲直径(D)不应小于钢筋直径(d)的5倍。
钢筋成型
箍筋:箍筋平面无翘曲、扭曲变形,四角在同一平面。末端弯钩应保证135°,其弯钩平直部分长度不小于箍筋直径d的10倍(不宜大于10d+10mm,避免浪费),且两个弯钩平直段相互平行。
箍筋平直长度、弯转半径不能过长或过大,避免浪费钢筋。

定位钢筋
定位钢筋尺寸必须准确,焊接牢固,作为保护层钢筋两端应平齐并刷防锈漆。
直螺纹加工
钢筋应采用无齿锯切断,保证端头平直,无马蹄形或翘曲。直螺纹加工完成后应保证牙型饱满,无断牙、秃牙缺陷,牙齿表面光洁端头磨平毛刺,已加工的直螺纹应有保护帽。加工现场放置通规检查工具。直螺纹丝扣加工长度应大于1/2套筒长度,但外露不超过一个完整丝扣。

样板筋
加工现场放置箍筋及各种措施筋样板,措施筋及垫块厚度尺寸必须准确,控制在长城杯标准之内,措施筋的放置间距满足创优策划要求。

2.2 钢筋绑扎
一般要求
受力钢筋绑扎接头应相互错开,钢筋净距大于钢筋直径并不小于25mm,搭接长度,应满足设计要求,规范要求及相应图集要求中的最大值。所有钢筋绑扣应朝混凝土内侧。钢筋的间距排距,规格型号尺寸应准确。措施筋及垫块厚度,必须精确,控制在长城杯标准之内,间距满足方案要求。
钢筋绑扎完毕后应尽量避免踩踏,防止钢筋变形。

直螺纹连接
墙柱或水平受力钢筋采用直螺纹接头时,按要求错开,并使其端头在同一水平面上,以保证箍筋避开套筒位置,以保证此处保护层厚度。墙柱直螺纹接头安装合格后应用红油漆点标识。
墙柱直螺纹接头外露丝扣应控制在半扣至一扣之间。
墙柱起步筋
柱起步箍筋距楼(地)面50mm,墙面水平筋或暗柱箍筋距楼(地)面30-50mm。墙体连梁箍筋应进一根在暗柱内,距暗柱边50mm,第一道箍筋距暗柱边50mm,墙纵向筋距暗柱、门边50mm。
板起步筋
楼板的纵横钢筋距墙边或梁边50mm,梁柱节点箍筋距柱边50mm次梁箍筋距主梁50mm。
搭接要求
绑扎接头,搭接接头取设计规范图集要求最大值外,接头位置应相互错开,搭接段内应保证三个绑扣和三根钢筋通过。
门窗洞口
门窗洞口预留洞固定模板的顶模棍应焊在附加筋上,端头防腐处理。

柱接头位置
柱筋距离地面第一个接头高度应取柱最大截面,1/6柱净高,并大于等于600mm,第二个接头应满足设计及规范要求35d且不小于500mm并避开受力较大部位。
墙、柱接头位置应尽量统一。
板接头位置
板上铁在跨中1/3处接头,下铁过梁轴线,边墙处应至墙外边留一个保护层厚度。
墙拉筋要求
绑扎墙体拉钩时,应制作好工具卡好后再弯避免影响排距,弯钩长度应适当加长,保证平直段长度。
钢筋保护
主次梁及梁柱节点处防止梁板筋过高而影响楼板表面平整度,浇筑砼前,应对外露钢筋进行包裹防止污染。
砼浇筑完成应及时清理、调整钢筋。
三
混凝土工程
商品混凝土
基本要求
混凝土搅拌质量应重点控制,砼初凝和终凝时间,坍落度最少水泥用量,外加剂掺量,砂率水灰比,混凝土强度等级,早强要求及抗渗要求等内容,以保证混凝土质量。
浇筑砼时应有专人对砼进行检查,发现问题立即处理。
泵管支设
泵管应有支设方案,并按相关要求在楼层转弯处固定牢固,冬期应注意保温。
泵管不得与顶板支撑,外脚手外相连。
混凝土浇筑基本要求
1.严格控制混凝土浇筑及接茬时间避免出现冷缝。
2.浇筑楼梯混凝土应铺设马道避免踩踏钢筋。
3.墙、柱施工缝浇筑前应先铺3-5cm厚混凝土减石子砂浆,或1:2水泥砂浆,高度大于2m应用串筒下料。
4.墙体浇筑时,在门窗洞口两侧下料要均匀,防止洞口变形,分层浇筑厚度控制在400mm左右,采用标示杆控制。
5.混凝土应振捣密实,严禁漏振或过振,对墙体联梁等钢筋密集的部位应采用30振捣棒等相应措施,以确保混凝土质量。
6.墙、柱根部应刮平压光,防止烂根现象。
7.竖向构建与水平构建强度等级相差2个以上应按设计要求在梁柱节点距柱边500mm呈450角进行截挡,并分别浇筑。先浇筑柱混凝土在浇筑梁板混凝土。
8.楼板混凝土拉线控制标高,刮平后应分三遍搓压,掌握时间不得过早或过晚,避免或减少砼表面裂缝。特殊部位、异型构件浇筑应有专项浇筑方案 。
施工缝留置
1.楼板施工缝宜留在楼板间1/3范围内。
2.剪力墙竖向施工缝宜留在连梁中间1/3范围内。
3.柱、墙施工缝应留在梁底或板底以上25-30mm。
4.框架结构楼梯应留在楼板上1/3范围内。
5.剪力墙结构楼梯应留在平台1/3部位并留梁窝。
同一部位施工缝留置位置应统一。

施工缝处理
施工缝接茬前应按要求进行处理,剔除软弱层及松散石子,清理干净。
柱根在楼板部位的施工缝应先在弹模板位置线,在柱内5mm用无齿锯切直,然后将线内砼表面软弱层剔除清理干净。
所有施工缝均应弹线用锯切直,以保证接茬密实。
施工缝处理应纵横顺直、棱角清晰
混凝土养护
混凝土浇筑完成后视天气情况一般在12小时以后按方案进行养护。顶板应覆盖,柱、墙应进行包裹养护,并浇水养护7-14天。冬季对墙、柱、板应进行覆盖并测温。
楼板养护时不得集中堆放钢筋网扣架等材料,特殊部位养护应有专项方案 。
混凝土保护
拆模后的混凝土,如踏步,门窗洞口墙柱阳角进行保护防止破损。及时将50线、轴线弹出进行标识。混凝土方案应考虑长墙防裂,以及高等级混凝土内外温差控制措施,防止裂缝出现。
对因设计、施工原因未能施工的部位(如后浇带、预留洞口)也应进行覆盖保护,防止砼破坏。

混凝土清理原则
严禁在混凝土表面打磨及擦粉 ;
清除混凝土表面流坠、毛边 ;
局部涨模、错台、应弹线剔齐 ;
不得随意修补混凝土表面 楼板预留孔洞封堵。
其他
资料齐全正确,及时 标养室符合相应标准要求 ;
钢筋场地及模板场地分类标识,码放整齐 ;
确定行走路线 掌握现场基本知识
本文从53个角度将混凝土结构工程解剖开来,对于混凝土结构施工来说,堪称史上最全面的解说,大家来看看吧!






















您的转发是对我们最大的支持
猜你喜欢:
3、助力2018安全生产月,这100份安全资料合集值得入手(可下载)
本文来源:砼行之声,如需转载请注明出处。

加入我们
投稿展示或者分享资料
一起交流一起成长
扫一扫下方二维码,灵感即刻进

官方微信或qq:483972950
官方qq群:343778875 或648915172
规范图集下载群:61754465
官方微信群需要加官方微信即可进入!
技术交流、资料分享、特权权益服务尽在公众号、微信群、qq群,详情请咨询官方微信和qq!如果群里有其他人向你兜售等不法行为,请千万不要相信上当受骗,请认准我们官方微信和qq!


