提示点击↑上方"土木工程资源共享"关注加入
点我资料免费下
【重磅福利】
一、 TRD工法概述
TRD工法简介
TRD工法(Trench cutting Re-mixing Deep wall method),等厚度水泥土地下连续墙工法,由日本神户制钢所1993年开发的一种利用锯链式切割箱连续施工等厚度水泥土地下连续墙施工技术。
在一般的砂土层中施工的最大深度已达56.7m,壁厚550mm~850mm,也适用于卵砾石、块石等各类地层。
TRD工法与目前传统的单轴或多轴螺旋钻孔机所形成的柱列式水泥土地下连续墙工法不同。TRD工法首先将链锯型切削刀具插入地基,掘削至墙体设计深度,然后注入固化剂,与原位土体混合,并持续横向掘削、搅拌,水平推进,构筑成高品质的水泥土搅拌连续墙。

TRD工法适用范围
TRD工法机具成墙厚度、深度视设备的型号不同而异。
TRD-Ⅰ型:成墙厚度450~550mm,深度20m,可实现河岸护坡30°~45°俯角成墙施工;
TRD-Ⅱ型:成墙厚度550m~700mm,深度35m;
TRD-Ⅲ型:成墙厚度550~850mm,深度60m。
TRD工法不仅可以适用于N值小于100击的软、硬质土层,还可以在直径小于100mm的卵砾石和单轴抗压强度≤5MPa泥岩、强风化基岩中施工。
TRD工法特点





TRD工法原理
通过动力箱液压马达驱动链锯式切割箱,分段连接钻至预定深度,水平横向挖掘推进,同时在切割箱底部注入固化液,使其与原位土体强制混合搅拌,形成的等厚度水泥土搅拌墙,也可插入型钢以增加搅拌墙的刚度和强度。
该工法将水泥土搅拌墙的搅拌方式由传统的垂直轴螺旋钻杆水平分层搅拌,改变为水平轴锯链式切割箱沿墙深垂直整体搅拌。
(1) TRD工法原理图

(2) TRD工法配套设备及施工布置图

(3) TRD工法挖掘机构

(4) TRD工法切割箱

(5) TRD工法挖掘刀具

二、 施工工艺
TRD工法施工工艺:切割箱自行打入挖掘工序、水泥土搅拌墙建造工序、切割箱拔出分解工序。
其中,TRD工法水泥土搅拌墙建造工序有3循环的方法和1循环的方法:
3循环的方法:先行挖掘、回撤挖掘、成墙搅拌,即锯链式切割箱钻至预定深度后,首先注入挖掘液先行挖掘一段距离,然后回撤挖掘至原处,再注入固化液向前推进搅拌成墙;
1循环的方法:切割箱钻至预定深度后即开始注入固化液向前推进挖掘搅拌成墙。
使用3循环或1循环施工方法的判断依据是能否确保切割箱横行速度达到1.7m/h。




三、质量控制
1. 主控项目
2. 一般项目

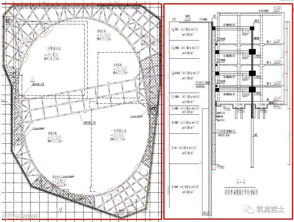
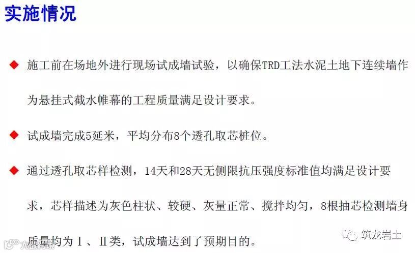
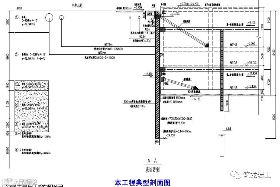
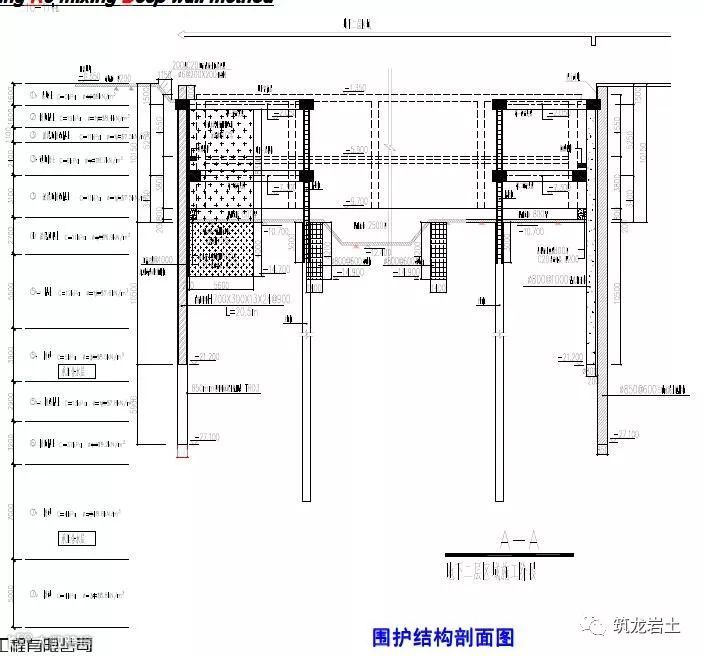
四、工程实例




















































12、检验批的划分、容量及抽样总结!附76个常用检验批验收表!
猜你喜欢:
3、助力2018安全生产月,这100份安全资料合集值得入手(可下载)
来源:上海广大基础工程有限公司
如有侵权,请联系删除

加入我们
投稿展示或者分享资料
一起交流一起成长
扫一扫下方二维码,灵感即刻进
官方微信或qq:483972950
官方qq群:343778875 或648915172



