
点我资料免费下
【重磅福利】
第一章 土方开挖与回填
序言
装配式建筑的主要特征是生产方式的工业化,关键环节是标准化设计,项目设计的优劣在很大程度上决定了装配式建筑的安全性、合理性、经济性以及现场构件安装的可实施性,因此,做好前期的装配式建筑设计是核心。在装配式建筑设计中应当考虑技术前置、管理前移、协同设计,需要从方案阶段开始引入装配式建筑的设计理念,同时考虑设计各专业、内外装、门窗幕墙、构件制作与运输、施工安装、模板、外架等相关技术条件,进行协作协同设计,才能达到装配式建筑“两提两减”的目标。
目前大部分装配式建筑设计人员仍处于按照施工图拆分构件的初级阶段,对其他专业的相互关系、构件生产、铝模、外爬架以及施工安装的技术知识了解不够充分,造成装配式建筑方案不合理、连接节点错误、构件制作和运输困难、构件安装困难等问题,进而造成装配式建筑的成本增加、质量难以控制、现场工效低下、影响结构安全。
本章将针对装配式建筑项目中由于前期设计考虑不到位或相关单位介入时间不及时而造成的常见问题进行梳理分析,提出相应的防治措施。
1.1 装配式建筑前期策划
问题1
未进行装配式建筑方案设计前期技术策划或策划方案不合理
原因分析
未进行前期技术策划;对产业配套、场地自身及周边情况了解不足,或装配式建筑方案在设计阶段介入时间过晚
影响及后果
1.项目周边预制构件生产企业排产情况了解不足,运输距离不在合理的范围内;
2.场地高差、路线限高(限宽)等原因造成预制构件无法运输到项目现场:
3.场地周边环境对塔吊设置限制过大,造成塔吊的覆盖范围或吊重无法满足预制构件安装要求
规范标准相关规定
《装配式混凝土建筑技术标准》(GB/T51231-216)
3.0.8装配式混凝土建筑应进行技术策划,对技术选型、技术经济可行性和可建造性进行评估,并应科学合理地确定建造目标与技术实施方案
防治措施
1.对项目周边的产能和生产线可生产的预制构件类型进行调研分析,确定设计方案中的预制构件类型;
2充分考察项目及周边场地情况,实地调研预制构件厂到项目现场的运输路线
3.结合项目总图和周边情况,合理分析塔吊设置,确保预制构件可吊装
问题2
户型标准化或预制构件标准化程度较低
原因分析
1.建筑方案前期未考虑装配式建筑特点
2.户型设计或立面设计过于复杂;
3.对标准化设计和成本控制考虑不足
影响及后果
户型和预制构件种类过多,影响建造工期,加大项目管理难度,增加建造成本
规范标准相关规定
《装配式混凝土建筑结构技术规程》(DBJ15-107-2016)
3.0.2装配式建筑设计应遵循少规格、多组合、标准化的原则
防治措施
1.项目方案阶段应考虑装配式建筑设计;
2.减少户型和预制构件种类,做到“少规格、多组合”;
3.重视标准化设计理念,单个项目数量少于50个的预制构件需慎重选择
问题3
预制构件类型选择不合理,未综合考虑后期安装工艺
原因分析
1.缺乏标准化设计概念,装配式建筑方案设计时预制构件选型不合理;
2.预制构件的选择仅考虑满足相关政策及文件的要求,缺乏系统性;
3.不了解预制构件生产及安装工艺,构造节点设计不合理
影响及后果
土建成本增量加大,预制构件现场安装困难,未达到装配式建筑预期,甚至可能影响结构安全或建筑性能
规范标准相关规定
《装配式混凝土建筑设计文件编制深度标准》(T/BAS4-2019)
3.1.1装配式建筑方案宜进行标准化设计,预制构件布置方案应合理,设计内容应满足国家标准、行业标准以及地方相关规定、要求
防治措施
1.重视标准化设计,选择合适的预制构件类型;
2.预制构件方案选择应“重体系、轻构件”,应选择合适的预制部位;
3.构造节点设计应满足规范和概念设计要求,便于生产和施工
1.2 建筑设计-外立面设计
问题4
建筑立面分隔缝与预制构件拼缝未协调统一
原因分析
设计深化考虑不足或设计疏漏
影响及后果
预制外墙板拼缝处外墙腻子易岀现开裂、收缩、鼓胀等问题,影响立面观感
规范标准相关规定
《装配式混凝土建筑结构技术规程》(DBJ15-107-2016)
3.0.1装配式混凝土建筑应采用系统集成的方法统筹设计、生产运输、施工安装,实现全过程的协同
防治措施
建筑立面明缝宜设置在预制外墙板拼缝处,同时应考虑非标准层的立面延伸
问题案例图示
图1-1建筑立面分隔缝与预制外墙板拼缝未协调统一,外墙腻子在预制外墙板拼缝处开裂、鼓胀
参考做法图示
图1-2建筑立面明缝设置在预制外墙板拼缝处
问题5
建筑设计未考虑现浇部位与预制构件交接位置的预制构件安装支承
原因分析
1.建筑立面设计未统筹考虑预制构件安装工艺,或设计图纸节点表达不全面;
2.现浇部位与预制构件交接位置未考虑预制构件的安装支承
影响及后果
1.立面线条不连续,影响建筑立面效果;
2.交接部位预制构件安装困难,采用钢管支撑影响质量
规范标准相关规定
《装配式混凝土建筑结构技术规程》(DBJ15-107-2016)
3.0.1装配式混凝土建筑应采用系统集成的方法统筹设计、生产运输、施工安装,实现全过程的协同
防治措施
1.建筑设计应考虑混凝土现浇部位与预制构件交接位置关系,节点表达应全面;
2.建筑设计应考虑混凝土现浇部位与预制构件交接位置的预制构件安装支承
问题案例图示
图1-3现浇部位与首层预制构件交接层未做现浇反坎支撑预制构件,采用钢管支撑预制凸窗側板,安装困难影响后期外立面处理
参考做法图示
图1-4现浇部位混凝土反坎作为首层预制构件安装支承
问题6
预制构件的复杂线条,影响模板施工
原因分析
建筑设计在预制构件上设置复杂线条,预制构件与模板连接节点施工困难
影响及后果
预制构件复杂线条部位与模板无法有效贴合,安装困难,易漏浆或涨模,影响观感质量,后期处理费工费时
规范标准相关规定
《装配式混凝土结构技术规程》(JGJ1-2014)
在装配式建筑方案设计阶段,应协调建设、设计、制作、施工各方之间的关系,并应加强建筑、结构、设备、装修等专业的配合
《组合铝合金模板工程技术规程》(JGJ386-2016)
4.1.5模板配板设计应与主体结构设计、预制构件设计相互协调
防治措施
建筑设计时应考虑预制构件线条对安装的影响,与模板连接部位的预制构件线条宜简单,方便安装
问题案例图示
![]()
图1-5预制构件上下线条均有斜度,与模板连接处难以配板,施工困难
参考做法图示
图1-6预制构件与模板连接处线条简单,方便施工
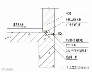
1.2 建筑设计-外墙防水设计
问题7
预制外墙板水平接缝处未设置构造防水
原因分析
设计深化考虑不足或设计疏漏
影响及后果
后期易出现外墙渗水,影响使用
规范标准相关规定
《装配式混凝土结构技术规程》(JGj1-2014)
5.3.4预制外墙板的接缝及门窗洞口等防水薄弱部位宜采用材料防水和构造防水相结合的做法,并应符合下列规定1墙板水平缝宜采用高低缝或企口缝构造
防治措施
建筑设计时应考虑预制构件线条对安装的影响,与模板连接部位的预制构件线条宜简单,方便安装
问题案例图示
图1-7预制外墙板水平接缝未设置构造防水
参考做法图示
图1-8预制外墙板间水平接缝设置合理构造防水
图1-9预制外墙板与现浇结构水平接缝设置合理构造防水
问题8
预制外墙板接缝未设计排水导管
原因分析
1.设计只是封闭缝隙,未考虑分层排水问题,出现髙压力水情况
2.设计表达不清或施工打胶时遗漏
3.外墙板拼缝防水构造设计不合理
影响及后果
预制外墙板拼缝处渗漏,影响建筑使用性能
规范标准相关规定
《装配式混凝土建筑结构技术规程》(DBJ15-107-2016)
5.4.3外挂墙板的接缝应符合下列规定3板缝空腔宜设置排水导管,板缝内侧应设置气密条密封构造,气密条直径宜大于缝宽1.5倍
防治措施
1.预制外墙板竖向拼缝位置,建议不大于3层设置一个排水孔;
2.预制外墙板应采用合理的防水构造
问题案例图示
无 参考做法图示
图1-10预制外墙板竖向拼缝位置,设置排水导管,及时将水排出,避免出现高压力水情况
问题9
预制挑板下檐未设计截水措施
原因分析
设计深化考虑不足或设计疏漏
影响及后果
雨水沿挑板下表面流到外墙面,污染墙面、门窗或渗人室内
规范标准相关规定
《建筑外墙防水工程技术规程》(JGJ/T235-2011)
5.1.2建筑外墙节点构造防水设计应包括门窗洞口、雨篷、阳台、变形缝、伸出外墙管道、女儿墙压顶、外墙预埋件、预制构件等交接部位的防水设防
防治措施
预制挑板下檐应设计滴水线或鹰嘴
问题案例图示
图1-11预制挑板下檐未表达截水措施
参考做法图示
图1-12 预制挑板下檐明确表达了截水措施做法
1.2 建筑设计-节点标高设计
问题10
预制外墙板的水平拼缝标高设计不合理
原因分析
设计未考虑水平拼缝对室内装修效果的影响
影响及后果
影响室内装修及居住体验
防治措施
设计时将水平缝隐藏在建筑面层以下(卫生间除外)
问题案例图示
图1-13预制外墙板水平拼缝高于室内建筑完成面,影响室内装修效果及居住体验
参考做法图示
图1-14预制外墙板水平拼缝设计在室内建筑完成面以下
问题11
室内建筑完成面高度超出预埋窗框边缘
原因分析
设计未考虑室内装饰层或保温层厚度对预埋窗框的影响
影响及后果
窗台处建筑完成面高出预埋窗框,窗户无法开启或室内观感差
防治措施
节点设计应考虑建筑完成面对预制构件细部尺寸的影响
问题案例图示
图1-15设计未考虑室内装饰层、保温层厚度对预埋窗框的影响,窗台处建筑完成面高出预埋窗框,导致窗户无法开启或室内观感差
参考做法图示
图1-16设计应考虑室内装饰层、保温层厚度对预埋窗框的影响,避免窗台处建筑完成面高出预埋窗框
1.2 建筑设计-预制构件编号
问题12
镜像预制构件未区别编号
原因分析
未考虑镜像预制构件间的差异,采用相同编号
影响及后果
预制构件生产为同一个构件,后期无法安装,费工费时
防治措施
1.镜像预制构件设计时,宜保证预制构件中心线对称,减少因镜像而产生的非标准化;
2.不同预制构件,包括镜像、预埋点位不同的构件,均应区分编号;
3.预制构件上的窗框应标注窗框型号(包括窗框的镜像关系),与生产单位交底到位,明确相似构件、镜像构件的区别
参考做法图示
图1-17不同预制构件(镜像、预埋点位不同等情况)均应区分编号
1.3 建筑设计-结构安全设计
问题13
结构主体计算未准确考虑预制构件的影响
原因分析
结构设计时未考虑预制构件对主体结构计算的影响
影响及后果
结构计算参数选取错误,影响结构安全
规范标准相关规定
《装配式混凝土建筑结构技术规程》(DBJ15-107-2016)
63.1当同一层内既有预制又有现浇抗侧力构件时,地震设计状况下宜对现浇抗侧力构件在地震作用下的弯矩和剪力进行适当放大。
8.1.1抗震设计时,对同一层内既有现浇墙肢也有预制墙肢的装配整体式剪力墙结构,现浇墙肢水平地震作用弯矩、剪力宜乘以不小于1.1的增大系数。
93.5应合理评估线支承式外挂墙板对相连构件刚度及整体结构刚度的影响
防治措施
充分考虑预制构件连接构造,按照规范要求考虑相关计算参数
问题案例图示
无 参考做法图示
无
问题14
预制混凝土构造墙设计不合理
原因分析
预制混凝土构造墙设计未与主体结构设计相配合,结构设计计算未充分考虑混凝土构造墙对整体结构刚度与结构构件承载力的影响
影响及后果
结构计算模型与实际情况不符,影响结构安全(特别是构造墙下方是普通次梁时,形成实际的结构转换梁,底层梁及相关连接构件存在严重安全隐患)
规范标准相关规定
《建筑抗震设计规范》(GB50010-2010)(2016年版)
3.5.5装配式结构构件的连接,应能保证结构的整体性。
3.7.1非结构构件,包括建筑非结构构件和建筑附属机电设备,自身及其与结构主体的连接,应进行抗震设计。
37.4框架结构的围护墙和隔墙,应估计其设置对结构抗震的不利影响,避免不合理设置而导致主体结构的破坏
防治措施
合理设计混凝土构造墙与主体结构的连接方式,符合抗震设防要求,且充分考虑其对主体结构的影响
问题案例图示
/
参考做法图示
/
问题15
设计剪刀梯时梯板间隔墙设计在预制滑动楼梯梯板上
原因分析
1.未考虑预制楼梯的滑动特点对隔墙安全的影响;
2.建筑设计时未考虑隔墙下楼层支撑梁最小宽度要求
影响及后果
隔墙设置在预制滑动楼梯梯板上,当预制楼梯滑动时,可能会造成隔墙倾覆,出现安全隐患,并造成预制楼梯宽度不统一,降低标准化程度
规范标准相关规定
《建筑抗震设计规范》(GB50011-2010)(2016年版)
3.7.3附着于楼、屋面结构上的非结构构件,以及楼梯间的非承重墙体,应与主体结构有可靠的连接或锚固,避免地震时倒塌伤人或砸坏重要设备
防治措施
楼梯间宽度应考虑楼梯隔墙的支撑方案,建议设置隔墙下楼层支撑梁,支撑梁宽度不宜小于150mm
问题案例图示
图1-18剪刀梯隔墙设置在预制滑动楼梯梯板上,当预制楼梯滑动时,可能会造成隔墙倾覆,出现安全隐患
参考做法图示
图1-19当楼梯为剪刀梯时,中间陽墙应支撑于不小于150mm宽的现浇梁上
问题16
预制构件与现浇部位连接处未设计抗剪槽或粗糙面
原因分析
1.预制构件深化设计不满足规范相关要求
2.预制构件生产企业未按要求制作抗剪槽或粗糙面
影响及后果
1.影响结合面混凝土受力性能,存在结构安全隐患;
2.结合面可能产生收缩裂缝,甚至开裂渗漏;
3.现场需对预制构件进行人工凿毛,费工费时
规范标准相关规定
《装配式混凝土结构技术规程》(JG1-2014)
6.5.5预制构件与后浇混凝土、灌浆料、坐浆料的结合面应设置粗糙面、键槽并应符合规定。
113.7采用后浇混凝土或砂浆、灌浆料连接的预制构件结合面,制作时应按设计要求进行粗糙面处理。设计无具体要求时,可采用化学处理、拉毛或凿毛等方法制作粗糙面
防治措施
1.应按规范要求设计抗剪键槽或粗糙面;
2.应严格按照预制构件深化图生产预制构件
问题案例图示
图1-20预制构件与现浇结构连接处未设计抗剪槽、粗糙面
参考做法图示
图1-21预制阳台与现浇结构连接梁端面按规范设置抗剪槽、粗糙面
问题17
预制构件连接节点设计不符合原结构设计要求
原因分析
深化设计人员不熟悉结构设计规范,为方便生产或安装,随意更改结构连接节点
影响及后果
预制构件连接节点不满足设计和规范要求,影响结构安全
规范标准相关规定
《装配式混凝土建筑深化设计技术规程》(DBJ/T15-155-2019)
30.3深化设计应符合国家有关法律法规和工程建设标准的规定,应在装配式混凝土建筑的施工图基础上进行
防治措施
预制构件深化设计应严格按照原设计要求进行,预制构件深化图纸应经原施工图设计单位审核确认
问题案例图示
/ 参考做法图示
/
1.3 结构设计-结构节点设计
问题18
预制阳台梁上存在现浇构造柱时,预制阳台未预留插筋
原因分析
设计深化考虑不足或设计疏漏
影响及后果
后期对预制构件凿毛、植筋,施工困难,同时影响结构耐久性
规范标准相关规定
/
防治措施
设计应考虑预制构件与现浇部位交接关系,预留插筋或预埋连接钢板
问题案例图示
/
参考做法图示
图1-22设计图纸清晰表达预制阳台上现浇构造柱的预留插筋位置、数量
问题19
预制构件与现浇梁底面、侧面或现浇墙面未平齐
原因分析
预制构件设计时,未考虑结构整体成型效果、模板配板难度和施工难度
影响及后果
1.预制构件(如预制凸窗)底部与现浇梁底不平齐,导致模板设计安装困难;
2.工程中常用的铝模板阴角板尺寸最小为100m×100mm×4mm,预制构件与现浇梁交接时出现小于100mm的错台需单独定制阴角板,模板加固困难、易涨模漏浆,影响工期
规范标准相关规定
《装配式混凝土建筑结构技术规程》(DBJ15-107-2016)
3.0.1装配式混凝土建筑应采用系统集成的方法统筹设计、生产运输、施工安装,实现全过程的协同。
《组合铝合金模板工程技术规程》(JGj386-2016)
4.1.5模板配板设计应与主体结构设计、预制构件设计相互协调
防治措施
预制构件设计宜同现浇梁底面平齐,便于模板安装加固
问题案例图示
图1-23预制凸窗底部与现浇梁底不平齐,模板设计安装困难
参考做法图示
图1-24预制凸窗底部与现浇梁底平齐,方便模板设计安装,结构整体成型简洁、美观
问题20
叠合楼板未按要求预留模板传料口
原因分析
叠合楼板设计未考虑铝模竖向传递
影响及后果
铝模板无法进行竖向传递,影响铝模拼装效率,费工费时
规范标准相关规定
《装配式混凝土建筑结构技术规程》(DBJ15-107-2016)
30.1装配式混凝土建筑应采用系统集成的方法统筹设计、生产运输、施工安装,实现全过程的协同
防治措施
1.住宅建筑宜按照一个户型预留一个传料口,公共建筑宜按照每100m²预留一个传料口;
2.叠合楼板拼缝≥300mm时,宜在拼缝现浇部位设置传料口;叠合楼板拼缝≤300mm时,宜在叠合楼板中设置传料口
问题案例图示
/ 参考做法图示
图1-25叠合楼板拼缝≥300mm,传料口设置于拼缝现浇部位
1.3 结构设计-预制构件节点设计
问题21
预制构件吊点位置设计不合理
原因分析
1.预制构件吊点设计未经受力验算;
2.预制构件吊点位置未考虑钢筋、预埋件避让、后期操作难易等
影响及后果
预制构件起吊时吊点处混凝土易开裂,导致吊钉(环)被拔出,引发安全事故
规范标准相关规定
/
防治措施
预制构件吊点位置设计应经受力计算确定,位置距预制构件边缘应满足计算要求
问题案例图示
图1-26预制构件吊点位置距预制构件边缘仅50mm,预制构件起吊时吊点处混凝土易开裂,导致吊钉(环)被拔出,引发安全事故
参考做法图示
图1-27预制构件吊点经受力计算,位置与预制构件边缘距离满足计算要求
问题22
预埋件位置不合理,导致钢筋保护层厚度不足
原因分析
预制构件在设计预埋件位置时未考虑钢筋排布、钢筋保护层厚度
影响及后果
容易造成钢筋锈蚀,影响预制构件耐久性
规范标准相关规定
《混凝土结构设计规范》(GB50010-2010)
8.2.1构件中普通钢筋及预应力筋的混凝土保护层应满足下列要求1构件中受力钢筋的保护层厚度不应小于钢筋的公称直径d
防治措施
预制构件设计应考虑各种预埋件的规格大小,合理布置,预埋件距预制构件边不宜小于75mm
问题案例图示
图1-28预埋件位置未考虑钢筋排布,距离预制构件边过近,导致钢筋保护层厚度不足
参考做法图示
/
1.4 机电与装修设计
问题23
预制阳台预留立管弯头无法安装
原因分析
图纸深化时未考虑预埋地漏与立管实际安装尺寸
影响及后果
现场安装时地漏弯头无法安装,需要重新钻孔进行二次处理,费工费时,影响质量
规范标准相关规定
《装配式混凝土建筑技术标准》(GB/T51231-2016)
7.1.3装配式混凝土建筑的设备与管线应合理选型,准确定位。
7.1.4装配式混凝土建筑的设备与管线设计应与建筑设计同步进行,预留预埋应满足结构专业相关要求,不得在安装完成后的预制构件上剔凿沟槽、打孔开洞等
防治措施
设计时应充分考虑给排水、电气、暖通等专业预留预埋,并满足其施工安装要求避免返工处理
问题案例图示
图1-29设计图纸预留地漏位置与立管过近,导致现场安装时地漏弯头无法安装,需要重新钻孔进行二次处理
参考做法图示
图1-30设计图纸预留地漏位置与立管间距满足施工安装要求
问题24
叠合板下隔墙有线盒开关,叠合板对应位置未预留孔洞
原因分析
设计未充分考虑叠合板与板下隔墙线管的连接
影响及后果
现场在叠合板上后开洞,费工费时,影响质量
规范标准相关规定
《装配式混凝土结构技术规程》(JGJ1-2014)
5.4.4预制构件中电气接口及吊挂配件的孔洞、沟槽应根据装修和设备要求预留
防治措施
加强多专业设计提前协同,应充分考虑机电线管连接的预留预埋
问题案例图示
图1-31叠合板下隔墙有线盒开关,叠合板对应位置未预留孔洞,现场在叠合板上后凿孔洞,费工费时,影响质量
参考做法图示
图1-32叠合板在需要位置预留孔洞,施工方便,无需二次处理
问题25
预制构件预留线盒未设计接线管
原因分析
预制构件深化设计与机电预留预埋协调不到位
影响及后果
现场需对预制构件重新开槽埋管,费工费时,影响质量
规范标准相关规定
《装配式混凝土建筑技术标准》(GB/T51231-2016)
7.1.4装配式混凝土建筑的设备与管线设计应与建筑设计同步进行,预留预埋应满足结构专业相关要求,不得在安裝完成后的预制构件上剔凿沟槽、打孔开洞等
防治措施
设计时应充分考虑给排水、电气、暖通等专业预留预埋
问题案例图示
图1-33预制构件预留线盒未设计接线管,现场需对预制构件重新开槽埋管,费工费时,影响质量
参考做法图示
图1-34预制构件预留线盒、接线管设置准确
问题26
预制构件内预埋管线与钢筋冲突
原因分析
预制构件深化设计时未考虑预埋管线与钢筋的相对关系
影响及后果
底部线管无法与预制构件预埋线管对接,需二次处理,费工费时,影响质量
规范标准相关规定
《装配式混凝土建筑技术标准》(GB/T51231-2016)
8.1.4装配式混凝土建筑的内部部品与室内管线应与预制构件的深化设计紧密配合,预留接口位置应准确到位
防治措施
1.预制构件深化设计时应考虑预埋管线与钢筋的相对关系
2.调整预制构件预埋管线的走向
问题案例图示
图1-35预制构件预埋管线与钢筋“打架”,导致与底部线管连接困难
参考做法图示
图1-36预制构件预埋管线做法正确,方便施工
猜你喜欢:
3、助力2018安全生产月,这100份安全资料合集值得入手(可下载)
本文整理自装配式混凝上建筑常见问题防治指南(2019版)如有侵权,联系删除!
加入我们
投稿展示或者分享资料
一起交流一起成长
扫一扫下方二维码,灵感即刻进
官方微信或qq:483972950
官方qq群:343778875 或648915172







































