根据工程项目提供的“建筑图”和“结构图”结合《建筑施工脚手架安全技术统一标准》和《建筑施工扣件式钢管脚手架安全技术规范》的有关规范要求,新型悬挑脚手架厂家设计绘制出专项“悬挑梁平面布置图”。

∆立杆的基本纵距不大于1.5m,每挑脚手架搭设高度不超过20米
1: 根据悬挑梁平面布置图,我们对各号栋楼现场进行预埋,新型悬挑脚手架预埋件应在内、外侧模板及钢筋布设好后,浇筑混凝土前进行预埋。

施工现场工人使用充电式手电钻打孔预埋,无需拉线接电,施工效率高且现场不杂乱
注:如有超长悬挑梁(杆件长度大于2400mm),工程项目的悬挑梁布置图中有注明需要增设下支撑杆的,需在悬挑层的下层提前设置“下支撑杆”的预埋。


(1):每根悬挑梁,在外侧模板上开两个Φ1.25cm的圆孔,再通过配套专用的螺杆临时固定,确保混凝土浇筑过程中预埋件不会产生偏位。
(2):预埋件安装时,需确保预埋件与模板接触面的无缝隙紧贴,防止砼浇捣时,混凝土浆水渗入到预埋件的管内部。
(3):预埋件安装完毕后,砼浇捣时,严禁振动棒直接与预埋件接触,以确保预埋件不被损坏或发生偏移。
(4);安装螺杆使用完毕后(无论是在悬挑层或上拉层使用完毕后),均应及时回收、保管好,以备下挑安装预埋件时使用(安装螺杆,每栋楼仅配一挑,需注意保管)。

为保证新型悬挑承力架安装后的整体美观,上拉杆、下撑杆、悬挑梁这三项预埋件的设置,均应尽可能设置在相对同一高度。为提高预埋件的使用安全,确保预埋件的受力最大化,所有预埋件位置的设置,应在砼浇捣面往下10cm至20cm处的范围内(见上图)为最佳预埋位置。
2:对于悬挑结构(如:阳台),施工单位在预埋前,栋号长或施工员需严格检查悬挑结构的配筋,有没有按施工方案或计算书里的新配筋图来布设钢筋。


3:对于悬挑结构(如:阳台)的新配筋布设,不局限于悬挑本层,同时,上拉层的钢筋布设,也必须按施工方案或计算书里的新配筋图来布设钢筋。(注:当上拉杆调节至受力状态后,上拉层的受力是远远大于悬挑层本层的受力)
4:如本项目的悬挑梁平面布置图里出现“上下孔悬挑梁”。针对上下孔的悬挑梁,预埋件为上、下布设,孔中对中间距为:230mm。


5:现场预埋时,务必确保同根悬挑梁的两个预埋件在同一个水平线上。(定位器与水平尺我公司均会配备到贵项目现场)


6: 本项目首次预埋时,需提前预埋2根*3组,共6根预埋件,以备现场拉拔试验时使用。



(2):预埋后,在混凝土浇筑完8天后,方可做拉拔试验;
(3):做拉拔试验时,我公司提供的计算书内会标示出针对本项目的“受拉承载力设计值”,当拉拔数据超过设计值时,可停止试验,以免造成结构破坏。
(4):做完拉拔试验后,此6根高强螺杆可周转至上挑使用。
1:安装双头螺杆:混凝土强度达到5MPa或相关要求的强度后,开始安装双头螺杆。


安装S8.8级、M20*225mm长的高强“双头螺杆”
2、安装双头螺杆时,虽无法看清内端是否与预埋件内的方形螺母牢靠连接,但可观测双头螺杆的外露长度,确定是否已安全连接。注:安全起见,须满足外露长度小于等于6cm时。

3、安装双头螺杆时,考虑到混凝土强度还没有跟上来,扭力不宜过大,以免造成“对边的梁墙板”破裂。

根据预埋件的安装位置,按图纸标示的型号,找到对应型号的悬挑梁,逐条布置于悬挑层各个部位。




(1):混凝土达到12MPa或规定要求后,方可开始搭设外架,此过程严禁在悬挑梁或钢管架体上堆放重型材料。严禁在此过程中吊放塔吊上的任何材料。
(2):在不具备连接“上拉杆”条件时,脚手架可搭设最高高度为13米,当悬挑层上层的混凝土强度达到要求后,应尽快将上拉杆组装好,并及时将“斜拉杆”调节至受力状态后,方可再往上搭设脚手架。

在超长悬挑梁(大于1750mm)处,搭设脚手架前、应前提将下支撑杆安装好并调节至受力状态。下支撑杆“预埋孔位”的布设,参照上层悬挑梁2个预埋孔的其中任意1个往下垂直部位。



1、在硬防护铺设前,先将拉杆连接好(1:便于硬防护上开孔找定位;2:便于轴销连接安装)


在悬挑层的上一层混凝土浇筑前,将斜拉杆“上端拉接点”的预埋件(150mm长)布置好。


待外侧模板拆除,混凝土强度达到规定要求后(一般在砼浇筑后72小时的样子),开始把“双耳拉环”扭入预埋件内连接,并将“斜拉杆”连接好,同时调节至受力状态。最后再将外架往上搭设至20米(以内)。

预埋件安装时,必需要将预埋件埋入结构梁、柱、剪力墙的钢筋混凝土内,严禁埋入建筑物的素混凝土内。如果有素混凝土阻碍预埋件安装时,可以适当避开。如果无法避开,则要采取以下措施中的一种:1、采用加长预埋螺栓或螺杆直接安装时,要求预埋螺栓长度垂直伸入梁、柱、剪力墙混凝土内140mm长;2、在每根工字钢安装位置素混凝土处增加300mmx300mm钢筋笼,钢筋笼应为Ⅱ钢筋组成,网格密度100mmx100mm,直径10mm以上,每个网格交叉点要有钢筋垂直伸入主体构梁、柱、剪力墙内,共计16根,锚固长度按照国家相关规范,钢筋笼中心以预埋件中心为中心,此种加固方法要求钢筋伸入梁、柱、剪力墙的方向和预埋件伸入混凝土的方向平行。
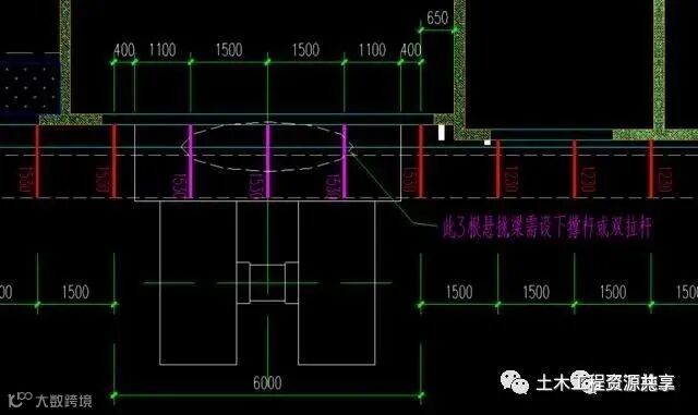
2、如悬挑梁需承受施工电梯进、出料的活动荷载,1230以上的悬挑梁,必须在对应的悬挑梁处增设下支撑杆或采用双拉杆。(下图所示的为1530mm长的悬挑梁)

3、梁外侧有飘窗板凸出时,斜拉杆上拉接点的预埋,放置在飘窗板的梁下方。同时,为了安全,脚手架内外立柱间距应适当缩小,由规范上的830mm改为630mm。


4、悬挑梁底座板与建筑结构面的接触,如发生不平整接触或由于出现“炸模”,导致悬挑梁安装时角度有偏差,需采用特制“挂钩垫片”进行垫平或调整角度,以确保整体稳定性。


5、悬挑梁平面布置图深化过程中,局部出现“脚手架立杆”落空,现场需临时准备16#工字钢做“扁担梁”横搁其上,如有此现象,必须将上、下两根悬挑梁采用抱箍或直接焊接固定,确保整体稳定。



6、新型悬挑脚手架发至贵项目的材料(悬挑梁、斜拉杆等),均以按悬挑梁平面布置图设计的规格及数量一对一发货,不多不少的。如工程项目有多栋楼采用本工艺,在发货时一辆货车内会同时装上多栋楼的材料。施工单位在安装悬挑梁时,请务必严格按双方确定好的悬挑梁布置图对应的规格进行安装,同时注意保管。严禁随意将成品悬挑梁冲当“扁担梁”或不按图纸上对应的规格进行安装。以免后面的楼层安装悬挑梁时,规格对不上或数量缺失,导致耗工误时等不必要的麻烦。
1、史上最全市政工程竣工资料归档内容整理,这个必须收藏!
2、超全面的施工单位报验资料全集,值得收藏!
3、建筑资料员的辛酸,看下女汉子是怎么说的;
4、验收资料,建设监理签字用语规范大全,收藏备用!
5、从资料员到工程师的打怪升级之路,值得一看!
6、验收资料,监理签字用语规范大全,就是这么专业!
7、监理从开工至竣工,需要收集整理哪些资料?
8、40条工程资料审批意见,史上最标准版!
9、基础及主体结构验收的这些资料,记得要准备好!
10、工地施工资料不会做?看这里,做资料不在迷茫!
11、工程部资料归档、保管、移交、整理……超齐全;
12、检验批的划分、容量及抽样总结!附76个常用检验批验收表!
13、安全内业资料最强总结,看完就用!
14、超牛!看资料员新手怎样做出一项漂亮的工程资料!
15、资料员、施工员、技术员请注意!三分钟搞懂施工技术资料编制重难;
16、合格资料员的4个阶段工作流程,有了它做起来事半功倍