提示:点击↑上方"土木工程资源共享"关注加入
点我资料免费下
【重磅福利】
对于参加2021一级建造师考试的考生们而言,考后最关注的问题莫过于考试成绩了。为方便考生及时了解自己的考试情况,做好进一步的工作或学习安排,小编将在一建考试结束后第一时间整理真题答案的最新信息,供大家参考。
工程经济入口→进入
建筑管理入口→进入
现在要推荐给大家的是文字版2021一级建造师《市政实务》考试真题及答案,希望对考生估分有所帮助。
1.下列索赔项目中,只能申请工期索赔的是( )。
A.工程施工项目增加
B.征地拆迁滞后
C.投标图纸中未提及的软基处理
D.开工前图纸延期发出
【参考答案】D
【考察考点】1K420032工程索赔的应用
【解析】延期发出图纸产生的索赔,由于是施工前准备阶段,该类项目一般只进行工期索赔。
2.关于水泥混凝上面层原材料使用的说法,正确的是( )。
A.主干路可采用32.5级的硅酸盐水泥
B.重交通以上等级道路可采用矿渣水泥
C.碎砾石的最大公称粒径不应大于26.5mm
D.宜采用细度模数2.0以下的砂
【参考答案】C
【考察考点】1K420093水泥混凝土面层施工质量检查与验收
【解析】重交通以上等级道路、城市快速路、主干路应采用425级及以上的道路硅酸盐水泥或硅酸盐水泥(A选项错误)、普通硅酸盐水泥;中、轻交通等级道路可来用矿渣水泥(B选项错误),其强度等级宜不低于32.5级。
宜使用人工级配,粗集料的最大公称粒径,碎砾石不应大于26.5mm(C选项正确),宜采用质地坚硬、细度模数在2.5以上、符合级配规定的洁净粗砂、中砂,技术指标应符合规范要求(D选项错误)。
3.下列因素中,可导致大体积混凝土现浇结构产生沉陷裂缝的是( )。
A.水泥水化热
B.外界气温变化
C.支架基础变形
D.混凝土收缩
【参考答案】C
【考察考点】1K420102大体积混凝上浇筑施工质量检查与验收
【解析】混凝土的沉陷裂缝:支架、支徨变形下沉会引发结构裂缝,过早拆除模板支架易使未达到强度的混凝土结构发生裂缝和破损。
4.水平定向钻第一根钻杆入土钻进时,应采取( )方式。
A.轻压慢转
B.中压慢转
C.轻压快转
D.中压快转
【参考答案】A
【考察考点】IK420135城市非开挖管施工质量检查与验收
【解析】第一根钻杆入土钻进时,应采取轻压慢转的方式,稳定钻进导入位置和保证入土角,且入土段和出土段应为直线钻进,其直线长度宜控制在20m左右。
5.重载交通、停车场等行车速度慢的路段,宜选用( )的沥青。
A.针入度大,软化点高
B.针入度小,软化点高
C.针入度大,软化点低
D.针入度小,软化点低
【参考答案】B
【考察考点】1K411014沥青混合料组成与材料
【解析】对高等级道路,夏季高温持续时间长、重载交通、停车场等行车谏度慢的路段,尤其是汽车荷载剪应力大的结构层,宜采用稠庋大(针入度小)的沥青。高等级道路,夏季高温持续时间长的地区、重载交通、停车站、有信号灯控制的交叉路口、车速较慢的路段或部位需选用软化点高的沥青。
6.盾构壁后注浆分为( )、二次注浆和堵水注浆。
A.喷粉注浆
B.深孔注浆
C.同步注浆
D.渗透注浆
【参考答案】C
【考察考点】1K413034盾构掘进技术
【解析】管片壁后注浆按与盾构推进的时间和注浆目的不同,可分为同步注浆、二次注浆和堵水注浆。
7.在供热管道系统中,利用管道位移来吸收热伸长的补偿器是( )。
A.自然补偿器
B.套筒式补偿器
C.波纹管补偿器
D.方形补偿器
【参考答案】B
【考察考点】1K415023供热管网附件及供热站设施安装要点
【解析】自然补偿器、方形补偿器和波纹管补偿器是利用补偿材料的变形来吸收热伸长的,而套筒式补偿器和球形补偿器则是利用管道的位移来吸收热伸长的。
8.下列盾构施工监测项目中,属于必测的项目是( )。
A.土体深层水平位移
B.衬砌环内力
C.地层与管片的接触应力
D.隧道结构变形
【参考答案】D
【考察考点】1K413035盾构法施工地层变形控制措施
【解析】
9.在软土基坑地基加固方式中,基坑面积较大时宜采用( )。
A.墩式加固
B.裙边加固
C.抽条加固
D.格栅式加固
【参考答案】B
【考察考点】1K413024地基加回处理方法
【解析】基坑面积较大时,直采用裙边加
10.城市新型分流制排水体系中,雨水源头控制利用技术有( )、净化和收集回用。
A.雨水下渗
B.雨水湿地
C.雨水入塘
D.雨水调蓄
【参考答案】A
【考察考点】1K415011城市排水体制选择
【解析】对于新型分流制排水系统,强调雨水的源头分散控制与末端集中控制相结合,减少进入城市管网中的径流量和污染物总量,同时提高城市内涝防治标准和雨水资源化回用率。雨水源头控制利用技术有雨水下渗、净化和收集回用技术,末端集中控制技术包括雨水湿地、塘体及多功能调蓄等。
11.关于预应力混凝土水池无粘结预应力筋布置安装的说法,正确的是( )。
A.应在浇筑混凝土过程中,逐步安裝、放置无粘结预应力筋
B.相邻两环无粘结预应力筋锚固位置应对齐
C.设计无要求时,张拉段长度不超过50m,且锚固肋数量为双数
D.无粘结预应力筋中的接头采用对焊焊接
【参考答案】C
【解析】无粘结预应力筋布置安装
(1)锚肋数量和布置,应符合设计要求设计无要求时,张拉段无粘结预应力筋长不超过50m,且锚固肋数量为双数(C选项正确)。
(2)安装时,上下相邻两环无粘结预应力筋锚回位置应错开一个锚回肋应以锚回肋数量的一半为无粘结预应力筋分段张拉段)数量:每段无粘结预应力筋的计算长度应加入一个锚固肋竞度及两端张拉工作长度和锚具长度(B选项错误)。
(3)应在浇筑混凝土前安装、放置;浇筑混凝土时,不得踏压,撞碰无粘结预应力筋、支撑架及端部预埋件(A选项错误)。
(4)无粘结预应力筋不应有死弯,有死弯时应切问断
(5)无粘结预应力筋中严禁有接头(D选项错误)
12.利用立柱、挡板挡土,依靠填土本身、拉杆及固定在可靠地基上的锚锭块维持整体稳定的挡土建筑物是( )。
A.扶壁式挡土墙
B.带卸荷板的柱板式挡土墙
C.锚杆式挡土墙
D.自立式挡土墙
【参考答案】D
【考察考点】1K411016不同形式挡上墙的结构特点
【解析】自立式挡土墙是利用板桩挡土,依靠填土本身、拉杆及固定在可靠地基上的锚锭块维持整体稳定的挡土建筑物。
13.液性指数IL=0.8的土,软硬状态是( )。
A.坚硬
B.硬塑
C.软塑
D.流塑
【参考答案】C
【考察考点】1K411023岩上分类与不良土质处理方法
【解析】液性指数I:土的天然含水量与塑限之差值对望性指数之比值,I=(o-op)/p I可用以判别土的软硬程度;Ⅱ<0为坚硬、半坚硬状态,05<0.5为硬塑状态,0.5<1.0为软塑状态,Ⅱ≥10流塑状态。
14.污水处理厂试运行程序有:①单机试车;②设备机组空载试运行;③设备机组充水试验;④设备机组自动开停机试运行;⑤设备机组负荷试运行。正确的试运行流程是( )。
A.①→②→③→④→⑤
B.①→②→③→⑤→④
C.①→③→②→④→⑤
D.①→③→②→⑤→④
【参考答案】D
【考察考点】1K414013给水与污水处理厂试运行
【解析】基本程序
(1)单机试车
(2)设备机组充水试验。
(3)设备机组空载试运行。
(4)设备机组负荷试运行。
5)设备机组自动开停机试运行。
15.关于燃气管网附属设备安装要求的说法,正确的是( )。
A.阀门手轮安装向下,便于启阀
B.可以用补偿器变形调整管位的安装误差
C.凝水缸和放散管应设在管道高处
D.燃气管道的地下阀门宜设置阀门井
【参考答案】D
【考察考点】1K415033燃气管网附属设备安装要点
【解析】选项A错误,阀门手轮不得向下。
选项B错误,不得用补偿器变形调整管位的安装误差。
选项C错误,凝水缸的作用是排除燃气管道中的冷凝水和石油伴生气管道中的轻质油。放散管是一种专门用来排放管道内部的空气或燃气的装置。
凝水缸设置在管道低处,放散管设在管道高处。
选项D正确,为保证管网的安全与操作方便,燃气管道的地下阀门宜设置阀门井。
16.由甲方采购的HDP膜材料质量抽样检验,应由( )双方在现场抽样检查。
A.供货单位和建设单位
B.施工单位和建设单位
C.供货单位和施工单位
D.施工单位和设计单位
【参考答案】A
【考察考点】1K416012生活垃圾填埋场填埋区防渗层施工技术
【解析】HDP膜材料质量抽样检验,应由供货单位和建设单位双方在现场抽样检查。
17.关于隧道施工测量的说法,错误的是( )。
A.应先建立地面平面和高程控制网
B.矿山法施工时,在开挖掌子面上标出拱顶、边墙和起拱线位置
C.盾构机掘进过程应进行定期姿态测量
D.有相向施工段时需有贯通测量设计
【参考答案】C
【考察考点】1K417011施工测量主要内容与常用仪器
【解析】施工前应建立地面平面控制,地面高程控制可视现场情况以三、四等水准或相应精度的三角高程测量布设,A选项正确敷设洞内基本导线、施工导线和水准路线,并随施工进展而不断延伸;在开挖掌子面上放样,标出拱顶、边墙和起拱线位置,衬砌结构支模后应检测、复核竣工断面,B选项正确盾构机拼装后应进行初始姿态测量,掘进过程中应进行实时妥态测量,C选项错误有相向施工段时应进行赁通测量设计,应根据向开挖段的长度,按设计要求布设二、三等或四等三角网,或者布设相应精度的精密导线,D选项正确
18.现浇混凝土箱梁支架设计时,计算强度及验算刚度均应使用的荷载是( )。
A.混凝土箱梁的自重
B.施工材料机具的荷载
C.振捣混凝土时的荷载
D.倾倒混凝土时的水平向冲击荷载
【参考答案】A
【考察考点】1K412012模板、支架和拱架的设计、制作、安装与拆除
【解析】
注:表中代号意思如下:
①模板、拱架和支架自重。
②新浇筑混凝土、钢筋混凝土或圬工、砌体的自重力。
③施工人员及施工材料机具等行走运输或堆放的荷载。
④振捣混凝土时的荷载。
⑤新浇筑混凝土对侧面模板的压力。
⑥倾倒混凝土时产生的水平向冲击荷载。
⑦设于水中的支架所承受的水流压力、波浪力流冰压力、船只及其他漂浮物的撞击力。
⑧其他可能产生的荷载,如风雪荷载、冬期施工保温设施荷载等。
19.钢管混凝土内的混凝土应饱满,其质量检测应以( )为主。
A.人工敲击
B.超声波检测
C.射线检测
D.电火花检测
【参考答案】B
【考察考点】1K420104钢管混凝土浇筑施工质量检查与验收
【解析】钢管內混凝土饱满,管壁与混凝土紧密结合,混凝土强度应符合设计要求。检验方法:观察出浆孔混凝土溢出情况,检查超声波检测报告,检查混凝土试件试验报告。
20.在工程量清单计价的有关规定中,可以作为竞争性费用的是( )。
A.安全文明施工费
B.规费和税金
C.冬雨季施工措施费
D.防止扬尘污染费
【参考答案】C
【考察考点】1K420023工程量清单计价的应用
【解析】措施项目中的安全文明施工费必须按国家或省级、行业建设主管部门的规定计算,不得作为竞争性费用。
规费和税金应按国家或省级、行业建设主管部门的规定计算,不得作为竞争性善用。
扬尘污染防治妻已纳入建筑安装工程费用的安全文明施工费中,是建设工程造价的一部分,是不可竞争性费用。
21.水泥混凝土路面基层材料选用的依据有( )。
A.道路交通等级
B.路基抗冲刷能力
C.地基承载力
D.路基的断面形式
E.压实机具
【参考答案】AB
【考察考点】1K411013水泥混凝土路面构造特点
【解析】基层材料的选用原则:根据道路交通等级和路基抗冲刷能力来应择基层材料。特重交通宜选用貧混凝土、碾压混凝土或沥青混凝土;重交通道路宜选用水泥稳定粒料或沥青稳定碎石;中、轻交通道路宜选择水泥或石灰粉煤灰稳定粒料或级配粒料。湿润和多雨地区,繫重交通路段宜采用排水基层。
22.土工合成材料用于路堤加筋时应考虑的指标有( )强度。
A.抗拉
B.撕破
C.抗压
D.顶破
E.握持
【参考答案】ABDE
【考察考点】1K411033土工合成材料的应用
【解析】路堤加筋的主要目的是提高路堤的稳定性。当加筋路堤的原地基的承载力不足时,应先行技术处理。加筋路堤填土的压实度必须达到路基设计规范规定的压实标准。土工格栅、土工织物、土工网等土工合成材料均可用于路堤加筋,其中土工格栅宜选择強庋高、变形小、糙度大的产品。土工合成材料应具有足够的抗拉强庋、较髙的撕破强庋、顶破强度和握持强度等性能。
23.配制高强度混凝土时,可选用的矿物掺合料有( )。
A.优质粉煤灰
B.磨圆的砾石
C.磨细的矿渣粉
D.硅粉
E.膨润土
【参考答案】ACD
【考察考点】1K412014混凝土施工技术
【解析】配制高强度混凝士的矿物掺合料可选用优质粉煤灰、磨细矿渣粉、硅粉和磨细天然沸石粉。
24.关于深基坑内支撑体系施工的说法,正确的有( )。
A.内支撑体系的施工,必须坚持先开挖后支撑的原则
B.围栎与围护结构之间的间隙,可以用C30细石混凝土填充密实
C.钢支撑预加轴力出现损失时,应再次施加到设计值
D.结构施工时,钢筋可临时存放于钢支撑上
E.支撑拆除应在替换支撑的结构构件达到换撑要求的承载力后进行
【参考答案】BCE
【考察考点】1K413022深基坑支护结构与边坡防护
【解析】内支撑体系的施工
(1)內支撑结构的施工与拆除顺序应与设计致,必须坚持先支撑后开挖的原则。选项A错误
(2)围檩与围护结构之间紧密接触,不得留有缝隙。如有间隙应用强度不低于C30的细石混凝土填充密实或采用其他可靠连接措施。
(3)钢支撑应按设计要求施加预压力,当监测到预加压力出现损失时,应再次施加预压力。
(4)支拆除应在替换支珵的结构构件达到换瑝要求的承载力后进行。当主体结构的底板和楼板分块浇筑或设置后浇带时,应在分块部位或后带处设置可靠的传力构件。支撑拆除应根据支问材料、形式、尺寸等具体情况采用人工、机械和爆破等方法。
25.城市排水管道巡视检查内容有( )。
A.管网介质的质量检查
B.地下管线定位监测
C.管道压力检查
D.管道附属设施检查
E.管道变形检查
【参考答案】ABDE
【考察考点】1K415016给水排水管网维护与修复技术
【解析】管道巡视检查內容包括管道漏点监测、地下管线定位监测、管道变形检查、管道腐蚀与结垢检查、管道附属设施检查、管网介质的质量检查等。
26.关于在拱架上分段浇筑混凝土拱圈施工技术的说法,正确的有( )。
A.纵向钢筋应通长设置
B.分段位置宜设置在拱架节点、拱顶、拱脚
C.各分段接缝面应与拱轴线成45°
D.分段浇筑应对称拱顶进行
E.各分段内的混凝土应一次连续浇筑
【参考答案】BDE
【考察考点】1K412035钢筋(管)混凝士拱桥施工技术
【解析】分段浇筑钢筋混凝土拱圈(拱肋)时,纵向不得采用通长钢筋,钢筋接头应安设在后浇的几个间隔槽内,并应在浇筑间隔槽混凝土时焊接。选项A错跨径大于或等于16m的拱圈或拱肋,宜分段浇分段位置,拱式拱架宜设置在拱架受力反弯点、拱架节点、拱顶及拱脚处。选项B正确分段浇筑程序应符合设计要求,应对称于拱顶进行。各分段内的混凝土应一次连续浇筑完毕,因故中断时,应将施工缝凿成垂直于拱轴线的平苗或台阶式接合面。选项C错误,选项E正确跨径小于16m的拱圈或拱肋混凝土,应按拱圈全竞从两端拱脚向拱顶对称、连续浇筑,并在拱脚混凝土初凝前全部完成。
27.现浇混凝土水池满水试验应具备的条件有( )。
A.混凝土强度达到设计强度的75%
B.池体防水层施工完成后
C.池体抗浮稳定性满足要求
D.试验仪器已检验合格
E.预留孔洞进出水口等已封堵
【参考答案】CDE
【考察考点】1K414023构筑物满水试验的规定
【解析】满水试验前必备条件:
(1)池体的混凝土或砖、石砌体的砂浆已达到设计强度要求;池内清理洁净,池内外缺陷修补完毕。
(2)现浇钢筋混凝土池体的防水层、防腐层施工之前;装配式预应力混凝土池体施加预应力且锚固端封锚以后,保护层喷涂之前,砖砌池体防水层施工以后,石砌池体勾缝以后。
(3)设计预留孔洞、预埋管口及进出水口等己做临时封堵,且经验算能安全承受试验压力。
(4)池体抗浮稳定性满足设计要求。
(5)试验用的充水、充气和排水系统已准备就绪经检查充水、充气及排水闸门不得渗漏。
(6)各项保证试验安全的措施已满足要求满足设计的其他特殊要求。
(7)试验所需的各种仪器设备应为合格产品,并经具有合法资质的相关部门检验合格。
28.关于竣工测量编绘的说法,正确的有( )。
A.道路中心直线段应每隔100m施测一个高程点
B.过街天桥测量天桥底面高程及净空
C.桥梁工程对桥墩、桥面及附属设施进行现状测量
D.地下管线在回填后,测量管线的转折、分支位置坐标及高程
E.场区矩形建(构)筑物应注明两点以上坐标及室内地坪标高
【参考答案】BCE
【考察考点】1K417013竣工图编绘与实
【解析】道路中心直线段应每25m施测一个坐标和高程点;曲线段起终点、中间点,应每隔15m施测一个坐标和高程点;道路坡度变化点应加测坐标和高程,A选项错误;过街天桥应测注天桥底面高程,并应标注与路面的净空高,B选项正确;在桥梁工程竣工后应对桥墩、桥面及其附属设施进行现状测量,C选项正确;地下管线竣工测量宜在覆土前进行,主要包括交叉点、分支点、转折点、变材点、变径点、变坡点、起讫点、上杆、下杆以及管线上附属设施中心点等,D选项错误;场区建(构)筑物竣工测量,如渗沥液处理设施和泵房等,对矩形建(构)筑物应注明两点以上坐标,圆形建(构)筑物应注明中心坐标及接地外半径:建
(构)筑物室内地坪标高;构筑物间连接管线及各线交叉点的坐标和标高,E选项正确。
29.关于污水处理氧化沟的说法,正确的有( )。
A.属于活性污泥处理系统
B.处理过程需持续补充微生物
C.利用污泥中的微生物降解污水中的有机污染物
D.经常采用延时曝气
E.污水一次性流过即可达到处理效果
【参考答案】ACD
【考察考点】1K414012给水与污水处理工艺流程
【解析】二级处理以氧化沟为例,示,主要去除污水中呈胶体和溶解状态的有机污染物质。通常采用的方法是微生物处理法,具体方式有活性污泥法和生物膜法。经过二级处理后, BOD5去除率可达90%以上,二沉池出水能达标排放。
(1)活性污泥处理系统,在当前污水处理领域,是应用最为广泛的处理技术之一,曝气池是其反应器。污水与污泥在曝气池中混合,污泥中的微生物将污水中复杂的有机物降解,并用释放出的能量来实现微生物本身的繫殖和运动等。
(2)氧化沟是传统活性污泥法的一种改型,污水和活性污泥混合液在其中循环流动,动力来自于转刷与水下推进器。一般不需要设置初沉池,并且经常来用延时曝气。
30.关于给水排水管道工程施工及验收的说法,正确的有( )。
A.工程所用材料进场后需进行复验,合格后方可使用
B.水泥砂浆内防腐层成形终凝后,将管道封堵
C.无压管道在闭水试验合格24小时后回填
D.隐蔽分项工程应进行隐蔽验收
E.水泥砂浆内防腐层,采用人工抹压法时,须一次抹压成形
【参考答案】AD
【考察考点】1K432051给水排成管边E科施工质量控制的规定
【解析】选项A正确,工程所用的管材、管道附件、构(配件和主要原材料等产品进人施工现场时必须进行进场验收并妥善保管。进场验收时应检查每批产品的订购合同、质量合格证书、性能检验报告、使用说明书、进口产品的商检报告及证件等并按国家有关标准规定进行复验,验收合格后方可使用
选项B错误,水泥砂浆内防腐层成形后,应立即将管道封堵,终凝后进行潮湿,养护。
选项C错误,无压管道在闭水或闭气试验合格后应及时回填。
选项D正确,所有隐蔽分项工程应进行隐蔽验收,未经检验或验收不合格不得进行下道分项工程施工。
选项E错误,水泥砂浆内防腐层,栗用人工抹压法施工时,应分层抹压。
案例1
31某公司承接一项城镇主干道新建工程,全长1.8km,勘宗报告显示K0+680-K0+920为暗塘,其他路段为杂填十目地下水丰富。设计单位对暗塘段采用水泥土搅拌桩方式进行处理,杂填土段采用改良士换填的方式进行处理。全路段士路基与基层之间设置一层200mm厚级配碎石垫层,部分路段垫层顶面铺设一层士工格栅,K0+680、K0+920处地基处理横断面示意图如图1所示。
项目部确定水泥掺量等各项施工参数后进行水泥搅拌桩施工,质检部门在施工完成后进行了单桩承载力、水泥用量等项目的质量检验。
垫层验收完成,项目部铺设固定土工格栅和摊铺水泥稳定碎石基层,采用重型压路机进行碾压,养护3天后进行下一道工序是施工。
项目部按照制定的扬尘防控方案,对土方平衡后多余的土方进行了外弃。

问题:
1、土工格栅应设置在哪些路段的垫层顶面?说明其作用
2、水泥搅拌桩在施工前采用何种方式确定水泥掺星
3、补充水泥搅拌桩地基质量检验的主控项目
4、改正水泥稳定碎石基层施工中的错误指出
5、项目部在土方外弃时应采用哪些扬尘防空措施。
【解析】
1暗塘路段的垫层顶面,具有加舫、防护、过滤、排水、隔离等功能。
【考点来源】K411033土工合成材料的应用
2水泥士搅拌法利用水泥作为回化剂通过特制的搅拌机械,就地将软土和固化剂(浆液或粉体漒制搅拌,应根据室内试验确定需加回地基士的固化剂和外加剂的掺量,如果有成熟经验时,也可根据工程经验确定。
3.压实度、弯沉值考点来源】1K411021城镇道路路基施工技术
4错误之处一:采用重型压机进行碾压;更正:应先采用。
错误之处二:养护3天后进行下一道工序是施工。
更正:养护7天后进行下一道工序是施工。
5运送车辆不得装载过满车辆出场前设专人检查,在场地出口处设置洗车池,待土方车出口时将车轮冲洗干净;应要求司机在转穹、上坡时减速慢行,避免遗撒;安排专人对土方车輛行驶路线进行检查,发现遗撒及时清扫。土方外运时采取覆盖,洒水降尘措施。
案例2
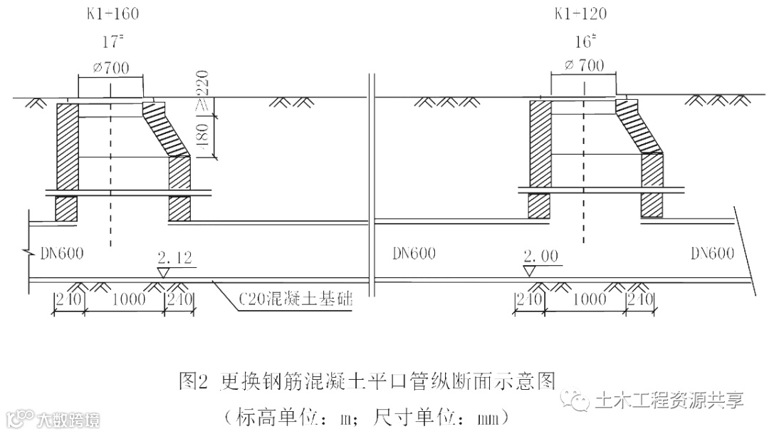
32某区养护管理单位在雨季到来之前,例行城市道路与管道巡视检查,在K1+120和K1+160步行街路段沥青路面发现多处裂纹及路面严重变形。经CCT影像显示,两井之间的钢筋混凝土平接口抹带脱落,形成管口漏水。
养护单位经研究决定,对两井之间的雨水管取开挖换管施工,如图2所示。管材仍采用钢筋混凝土平口管。开工前,养护单位用砖砌封堵上下游管口,做好临时导水措施。
养护单位接到巡视检查结果处置通知后,将该路段采取15m低围挡封闭施工,方便行人通行,设置安全护栏将施工区域隔离,设置不同的安全警示标志,道路安全警告牌,夜间挂闪烁灯示警,并派养护工人维护现场行人交通。

问题:
1、土工格栅应设置在哪些路段的垫层顶面?说明其作用。
2、水泥搅拌桩在施工前采用何种方式确定水泥掺量。
3、补充水泥搅拌桩地基质量检验的主控项目4、改正水泥稳定碎石基层施工中的错误之处。
5、项目部在土方外弃时应采用哪些扬尘防控措施。
【解析】
1.危害:造成路面裂纹(2分),变形(2分),塌陷(2分)。
21160-1120-1=39m(2分)。铺管应从16#井开始。
(2分)
3正确(分)最旱拆除封堵时间:更换后的管道严密性试验闭水试验)合格后(2分)。
4改正一:应采取高度不小于2.5m(1分)的围挡封闭改正二:应选用砌体(1分)、金板材(1分)等硬质材料(1分隔离施工区域。改正三:派专职交通疏导员(2分)维护现场行人交通。
33某项目部承接一项河道整治项目,其中一段景观挡土墙,长为50m,连接既有景观挡土墙。该项目平均分5个施工段施工,端缝为20mm,第一个施工段临河测需沉6基础桩,基础方桩按梅花形布置如图三所)。围堰与沉桩工程同时开工,依次再进行挡土墙施工,最后完成新建路面施工与栏杆安装。
项目部根据方案使用柴油锤击桩,遭附近居民投诉,监理随即叫停,要求更换沉桩方式。完工后,进行挡土墙施工,挡土墙施工工序有机械挖土、A、碎石垫层、立基础模板、B、浇筑混凝土、立墙身模板、浇筑墙体、压顶采用一次性施工。
问题:
1根据图3所示,该档土墙结构形式属哪种类型端缝属哪种类型?
2计算a的数值与第一段挡土墙基础方桩的根数。
3.监理叫停施工是否合理?柴油锤沉桩有哪些原因会影响居民?可以更换哪几种沉桩方式?
4根据背景资料,正确写出A.B工序名称。
【解析】
1、重力式挡土墙(2分),沉降缝变形缝(2分)
2、(10000350-350)+(6-1)+2=930mm(3分),6+6+5=17根(2分)
3、合理(1分),噪声大(1分),振动大(1分),柴油燃烧污染大气会影响居民分)(共3分,给满为止),静力压桩(2分),钻孔埋桩(2分)
4、A:地基处理及验收(2分),B:安装基础钢筋(2分)
案例3
某项目部承接一项河道整治项目,其中一段景观挡土墙,长为50m,连接既有景观挡土墙。该项目平均分5个施工段施工,端缝为20mm,第一个施工段临河测需沉6基础桩,基础方桩按梅花形布置如图三所)。围堰与沉桩工程同时开工,依次再进行挡土墙施工,最后完成新建路面施工与栏杆安装。
项目部根据方案使用柴油锤击桩,遭附近居民投诉,监理随即叫停,要求更换沉桩方式。完工后,进行挡土墙施工,挡土墙施工工序有机械挖土、A、碎石垫层、立基础模板、B、浇筑混凝土、立墙身模板、浇筑墙体、压顶采用一次性施工。

问题:
1根据图3所示,该档土墙结构形式属哪种类型端缝属哪种类型?
2计算a的数值与第一段挡土墙基础方桩的根数。
3.监理叫停施工是否合理?柴油锤沉桩有哪些原因会影响居民?可以更换哪几种沉桩方式?
4根据背景资料,正确写出A.B工序名称。
【解析】
1、重力式挡土墙(2分),沉降缝变形缝(2分)
2、(10000350-350)+(6-1)+2=930mm(3分),6+6+5=17根(2分)
3、合理(1分),噪声大(1分),振动大(1分),柴油燃烧污染大气会影响居民分)(共3分,给满为止),静力压桩(2分),钻孔埋桩(2分)
4、A:地基处理及验收(2分),B:安装基础钢筋(2分)
案例4
某公司承建一座城市桥梁工程,双向四车道,桥跨布置为4联x(5x20m),上部结构为预应力混凝土空心板,横断面布置空心板共24片,桥墩构造橫断面如图4-1所示。空心板中板的预应力钢绞线设计有N1、N2两种型式,均由同规格的单根钢绞线索组成,空心板中板构造及钢绞线索布置如图42所示。


项目部编制的空心板专项施工方案有如下内容:解析:坍落度A大于B(分),混凝土质量评定时用B(2分)。
项目部编制的空心板专项施工方案有如下内容
(1)钢绞线采购进场时,材料员对钢绞线的包装、标志等资料进行查验,合格后入库存放随后,项目部组织开展钢绞线见证取样送检工作,检测项目包括表面质量等。
(2)计算汇总空心板预应力钢绞线用量,
(3)空心板预制侧模和芯模均采用定型钢模板。混凝土浇筑完成后及时组织对侧模及芯模进行拆除,以便最大程度地满足空心板预制进度。
(4)空心板浇筑混凝土施工时,项目部对混凝土拌合物进行质量控制,分别在混凝土拌合站和预制厂浇筑地点随机取样检测混凝土拌合物的坍落度,其值分别为A和B,并对坍落度测值进行评定。
结合图4-2,分别指出空心板预应力体系属于先张法和后张法。有粘结和无粘结预应力体系中的哪种体系?
2、指出钢绞线存放的仓库需具备的条件。
3、补充施工方案(1)中钢绞线线入库时材科员还需查验的资料;并指出见证取样还需检测的项目。
4、列式计算全桥空心板中板的钢绞线用量。
(单位m,计算果保留3位小数)
5、分别指出施工方案3)中空心板预制时侧模和芯模拆除所需满足的条件。
6、指出施工方案(4)中坍落度值A、B的大小关系;混凝土质量评定时应使用哪个数值?
【解析】
1、结合图42,分别指出空心板预应力体系属于先张法和后张法。有粘结和无粘结预应力体系中的哪种体系?
解析:
后张法(1分),有粘结预应力体系(1分)
2、指出钢绞线存放的仓库需具备的条件。
解析:存放的仓库应干燥(1分)、防潮(1分)、通风良好(1分)、无腐蚀气体和介质(1分)。
3、补充施工方案(1)中钢绞线线入库时材科员还需查验的资料;并指出见证取样还需检测的项目。
解析:还需查验的资料:质量证明文件(1分)、规格(1分)
见证取样还需检测的项目:外形(1分)、尺寸(1分)、力学性能试验(1分)
4、列式计算全桥空心板中板的钢绞线用量。(单位m,计算果保留3位小数)
解析:
N1钢绞线单根长度:2x
(4535+4189-1056+700=20960mm(1分)
N2钢绞线单根长度:2x
(6903+2597+243+700=20886mm(1分)
一片空心板需要钢纹线长度2×(20.96-20.886)=83.692m(1分)
全桥空心板中板数量:22×4×5=440片(1分)全桥空心板中板的钢绞线用量:
440×83.692=36824.48m(4分)
5、分别指出施工方案(3)中空心板预制时侧模和芯模拆除所需满足的条件。
解析:侧模拆除条件:混凝土强度应能保证结构棱角不损坏时方可拆除3分),混凝土强度宜25MPa及以上(3分)
芯模拆除所需要满足条件:混凝土抗压强宸能保证结构表面不发生塌陷和裂缝时,方可拔出(1分)
6、指出施工方案(4)中坍落度值A、B的大小关系;混凝土质量评定时应使用哪个数值?
解析:坍落度A大于B(2分),混凝土质量评定时用B(2分)
案例5
某公司承建一项城市主干路工程,长度24km,在桩号K1+180-K1+196位置与铁路斜交,采用四踣地道桥顶进下穿铁路的方案。为保证铁路正常通行,施工前由铁路管理部门对铁路线进行加固。顶进工作坑顶进面采用放坡加网喷混凝土方式支护,其余三面采用钻孔灌注柱加桩间网喷支护,施工平面及剖面图如图5-1、5-2所示。
项目部编制了地道桥基坑降水、支护、开挖、顶进方案并经过相关部门审批。施工流程如图5-3所示
混凝士钻孔灌注桩施工过程包括以下内容:采用旋挖钻成孔,桩顶设置冠梁,钢筋笼主筋采用直螺纹套简连接;桩顶锚固钢筋按伸入冠梁长度500mm进行预留,混凝士浇筑至桩顶设计高程后,立即开始相邻桩的施工。



【问题】
1直螺纹连接套筒进场需要提供哪项报告?出钢筋丝头加工和连接件检测专用工具的名称。
2改正混凝土灌注桩施工过程的错误之处。
3补全施工流程图中A、B名称。
4地道桥每次顶进,除检查液压系统外,还应检查哪些部位的使用状况?
5在每一顶程中测量的内容是哪些?
6地道桥顶进施工应考虑的防排水措施是哪些?
【解析】
1、产品合格证(1分),产品说明书(1分)
产品试验报告单(1分)、型式检验报告(1分),钢筋套丝机(1分),力矩扳手扭矩扳手1分)
2、改正一混凝土浇筑完成后应超出设计标高0.5-1m(2分)。改正二成孔应采取跳挖(2分),不能立即开始相邻桩施工(2分)。
3、A地道桥制作(2分),B:监控量测(分)
4、顶柱(铁)安装(2分和后背变化情况(2分)
5、各观测点左右偏差值(2分),高程偏差值(2分)
和顶程及总进尺(2分)
猜你喜欢:
3、助力2018安全生产月,这100份安全资料合集值得入手(可下载)
来源:网络
版权属于原作者

加入我们
投稿展示或者分享资料
一起交流一起成长
扫一扫下方二维码,灵感即刻进
官方微信或qq:483972950
官方qq群:343778875 或648915172



