大数跨境
0
0

【施工技术·市政】收藏!高墩爬模施工作业指导书

【施工技术·市政】收藏!高墩爬模施工作业指导书 AI土木通
2021-11-15
1
导读:专注为工程人共享建筑业精品资料 欢迎关注下载更多资源工作技能提升I软件及使用教程I注册类考试课件I图集规范下载资料有任何疑问,欢迎添加小tomu微信号:TomuArc咨询交流。

提示点击上方"土木工程资源共享"关注加入

点我资料免费下【重磅福利】

1.爬模施工
1.1 模板体系施工
1)模板组装施工
①常用模板拼装工具有:
手电钻、开孔器、钻头、批头、电刨、电锯、曲线锯、锯片、墨斗、铅笔、卷尺、角尺、电锯、靠尺、线坠、油漆刷、灰刀、毛笔、扳手、胶枪、气钉枪、气钉等。
②辅助材料有:
油漆、玻璃胶、原子灰、自攻螺钉、铁钉、钢丝等
③拼装平台
模板拼装采取模板正面打自攻螺钉,拼装平台要求高度200-400mm,可选用“工”字钢,或者槽钢搭设平台;要求操作平台搭设牢固、安全、平稳,对应的各构件平行而且确保在同一水平面上,对角线长度保持一致。
④组装背楞
用套管支撑在两片槽钢中间,螺栓穿过槽钢上的的孔和套管把它们连接成整体背楞。每组背楞所需的套管数量及连接位置均由设计图纸指出(过程如下图)。
⑤放置背肋
按照图纸所示间距把背楞排放在搭设平台上,在背楞上画上定位线,拉准对角线,让任意两条背楞构成的长方形对角线相等。
⑥木梁组装
按图纸尺寸,先在背楞两端各放一根木工字梁,画上定位线,拉准对角线,让两根木梁构成的长方形对角线相等,然后用连接爪螺栓固定。这两根木工字梁的同一端连上一根细线,作为基准线,其他木梁都对齐这根基准线排放,并保证与两边的木梁平行,把每根木梁用连接爪固定。在固定连接爪的时候,将要装吊钩的木梁两侧都要用连接爪,两边的木梁连接爪要固定在木梁内侧,其余的木梁连接爪的方向交错放置。最后按图纸尺寸装上吊钩  。特别注意,在选择安装吊钩的木梁时,距吊钩孔距离最近的木梁腹板指接缝应该大于1.5米;安装吊钩时,要用一块钢板和吊钩夹紧木梁,然后用螺栓固定,钢板的大小尺寸和孔位与吊钩的钢板一样。
⑦模板组装
⑧打对拉螺杆或埋件孔
根据图纸模板拉杆孔的大小,给手电钻装好相应的开孔器。按图纸孔位,用墨斗弹好线,确定孔在模板上的位置,要求孔的上下、左右位置偏差在2㎜以内。注意,保证电钻与模板面垂直,打好的孔无偏斜现象。每个孔的内壁、孔沿上刷好两遍油漆,防止模板渗水膨胀。这样,模板的拼装就完成了。用油漆毛笔按图号标明每块模板,防止模板过多,混乱使用。
2)模板施工
首节墩身施工时,外侧模直接采用只安装上架体的爬模模板系统,不安装爬模架体,内模利用异型木模板。外侧模板通过芯带进行连接。模板之间可以直接拼缝时,采用拼缝一的做法,当模板与模板之间不能拼在一起时,则增加拼缝模板,用芯带压住拼缝模板,按拼缝二做法。
内外模采用D20对拉杆进行连接整体,拉杆设相应直径的PVC套管,施工完毕后,抽出拉杆,用砂浆填补拉杆孔。外侧模阳角处模板通过45°的D20斜拉杆进行连接,角部做成企口式。
合模前模板用洗衣粉水清洗面板,清洗面板宜用中等硬度的毛刷刷洗,保证板面清洁。模板晾干后,用刷子或干净的毛巾,将模板表面刷上脱模剂。不要刷太多,严禁流淌,以有油光而无油痕为最佳。保证脱模剂均匀,雨后可再刷一遍脱模剂。
检查钢筋是否与模板拉杆孔、埋件系统相冲突,有冲突的须调整钢筋位置。
吊模时,起重机吊钩挂好两根钢丝绳,头带卡环,栓在木梁吊钩上。吊车要缓慢起动,在模板没离开地面时,起动一定要慢。吊车转到指定的位置,缓慢落钩,模板落稳后,将模板临时栓好,解开吊钩卡环。继续吊下一块模板。
合模校正时,先将模板边缘用仪器或线坠校正模板的垂直度,并用角尺调整阴阳角模板的角度,确保垂直度与角度达到设计要求。然后穿好套管、拉杆,拧紧螺母。复查模板,调整至符合浇混凝土要求。注意,套管不宜过长,伸出模板背面20㎜为佳。
浇筑完混凝土后,当混凝土强度达到6MPa时,可以松动对拉螺杆一到二扣,当混凝土强度达到10MPa时可以进行拆模。拆模时先卸下拉杆螺母,抽出拉杆,堆放在适当位置。卸下芯带,将模板后移或者吊走。如模板内有定位的埋件系统,应先拆卸安装螺栓。
2.埋件施工
在模板就位前,通过模板面板上的孔,用安装螺栓M36´50从模板背面将爬锥M36/D20固定于模板面板上,混凝土浇筑后,卸下M36的螺栓,模板后移,将受力螺栓安装在爬锥上。将支架卡在受力螺栓上,插上销子,爬模爬升完毕后,人在吊平台上用套筒扳手和爬锥专用拆卸工具将受力螺栓和爬锥取出,以便重复利用,同时用砂浆抹好由爬锥留下的孔。爬锥上均匀涂脱模剂,防止爬锥拆卸困难。
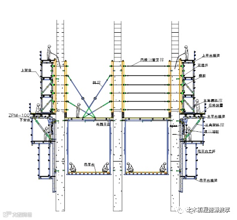
3.爬模架体的安装

1)准备两片木板300mmx2440mm左右,按照爬锥中到中间距摆放在水平地面上。保证两条轴线绝对平行,轴线与木板连线夹角90°,两对角线误差不超过2mm。将三角架扣放在木板轴线上,保证三角架中到中间距等于爬第一次浇筑爬锥中到中间距。两三角架对角线误差不超过2mm,安装平台立杆,用钢管扣件连接。两三脚架间同样用钢管扣件连接。注意加斜拉钢管。

2)安装平台板,平台要求平整牢固,在与部件冲突位置开孔,以保证架体使用,并再次校正两三角架中道中间距是否为第一次浇筑爬锥中到中间位置。

3)将拼好的架体整体吊起,平稳挂于第一次浇筑时埋好的受力螺栓(挂座体)上,插入安全插销。

4)拼装桁架、安装所有操作平台。先在模板下垫四根木梁,然后在模板上安装主背楞、斜撑、挑架,注意背楞调节器与模板背楞的支撑情况,安装背楞扣件,用钢管扣件将挑架连接牢固,注意加斜拉钢管。斜撑用铁丝和模板背楞绑在一起,防止在吊起过程中晃动。平台要求平整牢固,在与部件冲突位置开孔,以保证架体使用。

5)将拼装好的模板和架体整体吊起,平稳挂于第一次浇筑时埋好的受力螺栓(挂座体)上,插入安全插销。利用斜撑调节角度,校正模板。完成吊装过程。

4.爬升流程

混凝土浇筑完后→ 拆模后移→ 安装附装置→ 提升导轨→ 爬升架体→ 绑扎钢筋→ 模板清理刷脱模剂→ 埋件固定模板上→ 合模→浇筑混凝土。
(1)预埋件安装,将爬锥用受力螺栓固定在模板上,爬锥孔内抹黄油后拧紧高强螺杆,保证混凝土不能流进爬锥螺纹内。埋件板拧在高强螺杆的另一端。锥面向模板,和爬锥成反方向。
(2)埋件如和钢筋有冲突时,将钢筋适当移位处理后进行合模。
(3)提升导轨,请将上下换向盒内的换向装置调整为同时向上。换向装置上端顶住导轨。
 (4)爬升架体时上下换向盒同时调整为向下,下端顶住导轨。(爬升或提导轨液压控制台有专人操作,每榀架子设专人看管是否同步,发现不同步,可调液压阀门控制)
(5)导轨提升就位后拆除下层的附墙装置及爬锥,周转使用。注:附墙装置及爬锥共3套,2套压在导轨下,1套周转。
5.吊架施工
墩身内模采用吊架施工。吊架施工与爬模施工同步进行。吊架施工采用在墩身上预埋螺栓,安装吊架,在其上铺设施工平台,安装内模。内模利用斜撑进行调整,然后安装水平钢管支撑进行加固。
6.爬模安全操作规程
(1)爬模安装埋件、挂座时必须系好安全带和佩戴必要防护用品。高强螺杆和爬锥连接必须要拧紧,爬锥面顶到模板面板且不能转动即可。爬锥上均匀涂脱模剂,防止爬锥拆卸困难。
(2)混凝土强度必须到达10MPa以上,方可爬升。
(3)严禁夜间光线不足时进行爬升作业。
(4)在雷雨、大风(6级以上)、大雾等恶劣天气情况下,爬模不得进行操作。
(5)爬模爬升时除爬模操作人员外,其他人员一律离开爬模架,爬升到位后其他作业方可进行。
(6)爬模时下端四周外10米用警戒线维护,所有人员不得进入警戒区,以防高空有物体坠落。
(7)爬升架体或提导轨前,操作人员检查机械是否运转正常,正常方可爬升,架上不许放太多物料,准备好一切爬升工具,方可进行爬模。
(8)爬模操作人员须经过严格培训后,经项目部安检部门认可后方能独立操作。
(9)爬模爬升时,爬升架上不得堆放重物。
7.爬模施工专项安全保证措施
爬模施工安全管理措施:
a)严格按照设计图纸进行操作。
b)工人在进行模板安装及拆除时,必须戴安全带,安全带挂在安全的骨架上。
c)工人必须戴安全帽,穿防滑鞋,发现有违规者,应制止。
d)模板吊升应有专人指挥。
e)模板上的脚手架必须符合安全要求,平台跳板必须与脚手架捆绑牢固,跳板尽量不要求出现悬挑的现象,若需要时,必须按设计要求或规定的标准搭设跳板,发现有不符合要求时,应立即整改直至满足要求为止,否则不准进入下一道工序。
f)设置防坠落安全网。
g)墩身四周设置安全区域,做好围栏,防止坠物伤人。
h)模板拆除要等到混凝土达到10MPa后才能进行。
i)液压自爬模板吊升必须在白天进行。
j)当遇到雷雨、风力达到6级以上时,不得进行作业。
k)严禁上下同时作业,严防高空坠落。
l)严禁在液压自爬模板架上堆放重物,液压自爬模板架主平台设计荷载3KN/m2,上平台及吊平台为0.75 KN/m2。
m)做好班前安全技术交底。
n)因违反安全管理规定,造成人员受伤或死亡,必须视情节严重程度严厉处罚。
高空安全管理措施:
a)作业人员必须定期进行检查,对不适宜高处作业的人员:不得从事此项工作;
b)高处作业人员必须系好安全带、戴安全帽、穿防滑鞋,禁止打赤脚或穿拖鞋作业。
c)作业人员上下操作平台要安设爬梯,不得攀登护栏上下,发现违规者,立即制止。
d)操作平台临空应设置栏杆,要接安全网等防护设施,严防高空坠物。
e)安全网在使用前,应按规定进行试验,合格后方准使用。
f)高空作业区的风力6级以上时,应停止作业。
g)塔吊操作必须具备塔吊司机专业资质,每个塔吊配齐专业指挥员操作前后都必须严格检查电路搭接,钢丝绳的安全可靠性,在保证安全条件下方可操作。
h)因违反安全管理规定,造成人员受伤或死亡,必须视情节严重程度严厉处罚。
i)经常检查支设模板钓钩、斜支撑及平台连接处螺栓是否松动,发现问题及时组织处理。
j)模板架料堆放架、支撑架必须坚固,与地连接牢固;模板架料必须按照指定地点集中放置,禁止零星放置。高大模板在不利天气来临前必须拉好兜风绳。高大模板兜风绳必须常备,遇到突发灾害性气候时,应立即拉好,同时多层板、钢管、扣件等必须紧急用重物压盖或用苫布覆盖,人员立即撤离到安全地点。
k)模板就位前要有缆绳纤拉,防止模板旋转,碰撞伤人。
l)模板堆放区场地面必须坚实无下沉。
m)模板支拆要采取临时固定措施,防止倾倒伤人。
n)传递物料、工具严禁抛掷,以防坠落伤人。



1、史上最全市政工程竣工资料归档内容整理,这个必须收藏!

2、超全面的施工单位报验资料全集,值得收藏!

3、建筑资料员的辛酸,看下女汉子是怎么说的;

4、验收资料,建设监理签字用语规范大全,收藏备用!

5、从资料员到工程师的打怪升级之路,值得一看!

6、验收资料,监理签字用语规范大全,就是这么专业!

7、监理从开工至竣工,需要收集整理哪些资料?

8、40条工程资料审批意见,史上最标准版!

9、基础及主体结构验收的这些资料,记得要准备好!

10、工地施工资料不会做?看这里,做资料不在迷茫!

11、工程部资料归档、保管、移交、整理……超齐全

12、检验批的划分、容量及抽样总结!附76个常用检验批验收表!

13、安全内业资料最强总结,看完就用!

14、超牛!看资料员新手怎样做出一项漂亮的工程资料!

15、资料员、施工员、技术员请注意!三分钟搞懂施工技术资料编制重难

16、合格资料员的4个阶段工作流程,有了它做起来事半功倍

您的转发是对我们最大的支持

猜你喜欢:

1、工程葵花辞典(微信版),工程人100%需要,人手必备!

2、土木工程资源共享,一个土建类职业快速提升的平台!

3、助力2018安全生产月,这100份安全资料合集值得入手(可下载)

4、【公路工程】公路工程施工作业标准化,有这一套就够了!

5、【安全月】你可能急需的32套安全高清挂图

6、施工技术小动画视频134个,有需要的可以来下!skr!

7、做好安全技术交底,用这个靠谱!想看哪个工种点哪个,so easy!

8、史上最全质量通病防治措施攻略大全,你的工程一定需要!





加入我们

投稿展示或者分享资料

一起交流一起成长

扫一扫下方二维码,灵感即刻进

官方微信或qq:483972950  

官方qq群:343778875 或648915172

点击阅读原文有惊喜,喜欢就点这里
【声明】内容源于网络
0
0
AI土木通
作为深耕土木行业10年的权威资源平台,构建了覆盖建筑工程、道路桥梁、水利工程等领域规范图集与资料的共享​,以​“让每个土木人都能零门槛驾驭AI”​为使命,开启智能建造新纪元!
内容 5703
粉丝 0
AI土木通 作为深耕土木行业10年的权威资源平台,构建了覆盖建筑工程、道路桥梁、水利工程等领域规范图集与资料的共享​,以​“让每个土木人都能零门槛驾驭AI”​为使命,开启智能建造新纪元!
总阅读8.5k
粉丝0
内容5.7k